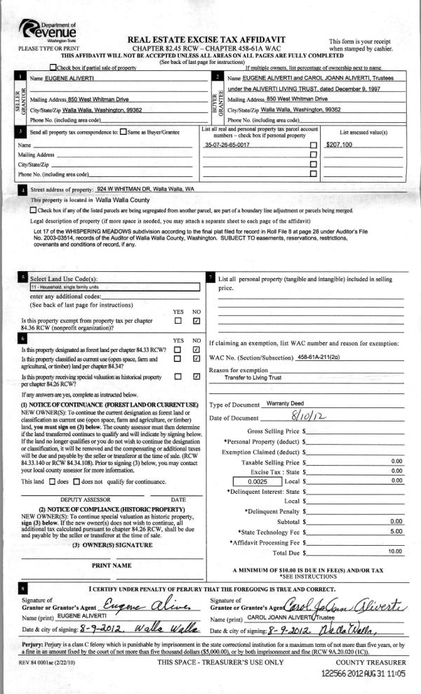
Property
Account |
| Property ID: | 16795 | Abbreviated Legal Description: | HOMELAND ADDN LT 9 |
| Parcel Number: | 360728780009 | Agent Code: | |
| Type: | Real | | |
| Tax Area: | 1 - OL-140-F | Land Use Code | 11 |
| Open Space: | N | DFL | N |
| Historic Property: | N | Remodel Property: | N |
| Multi-Family Redevelopment: | N | | |
| Township: | 7 | Section: | 28 |
| Range: | 36 |
Location |
| Address: | 859 DOW DR WA 99362 | Mapsco: | |
| Neighborhood: | G Res | Map ID: | |
| Neighborhood CD: | 614011 |
Owner |
| Name: | PERFETTI CAROL | Owner ID: | 54181 |
| Mailing Address: | 859 DOW DR WALLA WALLA, WA 99362 | % Ownership: | 100.0000000000% |
| | | Exemptions: | |
Taxes and Assessment Details
Values
| (+) Improvement Homesite Value: | + | $0 | |
| (+) Improvement Non-Homesite Value: | + | $315,490 | |
| (+) Land Homesite Value: | + | $0 | |
| (+) Land Non-Homesite Value: | + | $102,500 | |
| (+) Curr Use (HS): | + | $0 | $0 |
| (+) Curr Use (NHS): | + | $0 | $0 |
| | | -------------------------- | |
| (=) Market Value: | = | $417,990 | |
| (–) Productivity Loss: | – | $0 | |
| | | -------------------------- | |
| (=) Subtotal: | = | $417,990 | |
| (+) Senior Appraised Value: | + | $0 | |
| (+) Non-Senior Appraised Value: | + | $417,990 | |
| | | -------------------------- | |
| (=) Total Appraised Value: | = | $417,990 | |
| (–) Senior Exemption Loss: | – | $0 | |
| (–) Exemption Loss: | – | $0 | |
| | | -------------------------- | |
| (=) Taxable Value: | = | $417,990 | |
Taxing Jurisdiction
| Owner: | PERFETTI CAROL | | |
| % Ownership: | 100.0000000000% | | |
| Total Value: | $417,990 | | |
| Tax Area: | 1 - OL-140-F |
| CERFD | CURRENT EXPENSE REFUND 010 | 0.0000000000 | $417,990 | $417,990 | $0.00 | | |
| CURREXP | CURRENT EXPENSE 010 | 1.0175366760 | $417,990 | $417,990 | $425.32 | | |
| HUMNSERV | HUMAN SERVICES 119 | 0.0250000000 | $417,990 | $417,990 | $10.45 | | |
| SLDREL | SOLDIERS RELIEF 121 | 0.0155990005 | $417,990 | $417,990 | $6.52 | | |
| EMERGSER | EMS 147 | 0.3792580840 | $417,990 | $417,990 | $158.53 | | |
| EMSRFD | EMS REFUND 147 | 0.0000000000 | $417,990 | $417,990 | $0.00 | | |
| PORTRFD | PORT REFUND 640 | 0.0000000000 | $417,990 | $417,990 | $0.00 | | |
| PORTWWGEN | PORT OF WW 640 | 0.2460186015 | $417,990 | $417,990 | $102.83 | | |
| SD140BOND | SD #140 BOND 764 | 0.8342371393 | $417,990 | $417,990 | $348.70 | | |
| SD140GEN | SD #140 GENERAL 760 | 2.0646500647 | $417,990 | $417,990 | $863.00 | | |
| ST2 | STATE SCHOOL PART 2 600 | 0.8131451643 | $417,990 | $417,990 | $339.89 | | |
| STATESCHL | STATE SCHOOL 600 | 1.5158548041 | $417,990 | $417,990 | $633.61 | | |
| STREFUND | STATE REFUND LEVY 603 | 0.0000000000 | $417,990 | $417,990 | $0.00 | | |
| CWWBOND | C OF WW BOND 643 | 0.2760494372 | $417,990 | $417,990 | $115.39 | | |
| CWWGEN | CITY OF WW 631 | 1.6100204973 | $417,990 | $417,990 | $672.97 | | |
| CWWRFD | CITY OF WALLA WALLA REFUND 631 | 0.0000000000 | $417,990 | $417,990 | $0.00 | | |
| | Total Tax Rate: | 8.7973694689 | | | | | |
| | | | | Taxes w/Current Exemptions: | $3,677.21 | | |
| | | | | Taxes w/o Exemptions: | $3,677.21 | | |
Improvement / Building
| Improvement #1: | RESIDENTIAL | State Code: | 11 | 1776.0 sqft | Value: | $315,490 |
| Exterior Wall: | METAL/STEEL | Heating/Cooling: | WARM & COOLED AIR | | Number of Bathrooms: | 2 | Number of Bedrooms: | 3 | | Plumbing: | 9 | Roof Covering: | COMP SHINGLE |
|
| | Type | Description | Class CD | Sub Class CD | Year Built | Area |
| | MA | Main Area | 1 | 30 | 1978 | 1776.0 |
| | SI1 | SITE IMPROVEMENT | 1 | 30 | 1978 | 3.5 |
| | ATG | Attached Garage | 1 | 30 | 1978 | 616.0 |
| | S1F | Single One Story Fireplace | 1 | 30 | 1978 | 1.0 |
| | CPC | COVERED CARPORT/PATIO | 1 | 30 | 1978 | 176.0 |
| | RPC | OPEN PORCH W/ROOF , CEILED | 1 | 30 | 1978 | 114.0 |
Sketch
Property Image
Land
| 1 | RES 1 | Converted: Residential | 0.2353 | 10250.00 | 0.00 | 0.00 | 1.00 | $102,500 | $0 |
Roll Value History
| 2025 | N/A | N/A | N/A | N/A | N/A |
| 2024 | $315,490 | $102,500 | $0 | $417,990 | $417,990 |
| 2023 | $315,490 | $102,500 | $0 | $417,990 | $417,990 |
| 2022 | $300,460 | $84,560 | $0 | $385,020 | $385,020 |
| 2021 | $231,130 | $84,560 | $0 | $315,690 | $315,690 |
| 2020 | $165,090 | $84,560 | $0 | $249,650 | $249,650 |
| 2019 | $165,090 | $84,560 | $0 | $249,650 | $249,650 |
| 2018 | $194,080 | $47,300 | $0 | $241,380 | $241,380 |
| 2017 | $176,440 | $47,300 | $0 | $223,740 | $223,740 |
| 2016 | $160,400 | $47,300 | $0 | $207,700 | $207,700 |
| 2015 | $160,400 | $47,300 | $0 | $207,700 | $207,700 |
| 2014 | $160,400 | $47,300 | $0 | $207,700 | $207,700 |
| 2013 | $160,400 | $47,300 | $0 | $207,700 | $207,700 |
| 2012 | $164,000 | $47,300 | $0 | $0 | $0 |
| 2011 | $164,000 | $47,300 | $0 | $0 | $0 |
| 2010 | $144,800 | $47,300 | $0 | $0 | $0 |
| 2009 | $166,100 | $47,300 | $0 | $0 | $0 |
| 2008 | $166,100 | $47,300 | $0 | $0 | $0 |
| 2007 | $108,800 | $24,800 | $0 | $0 | $0 |
| 2006 | $108,800 | $24,800 | $0 | $0 | $0 |
Deed and Sales History
| 1 | 12/18/2013 | WARRANTY D | WARRANTY DEED | MALLEN JANET | PERFETTI CAROL | | | $170,000.00 | 125127 | 2013-12072 |
| 2 | 08/03/2012 | WARRANTY D | WARRANTY DEED | WILCOX, MELISSA M | MALLEN, JANET | | | | 0 | CC #12-3-00037-3 |
| 3 | 11/30/2006 | WARRANTY D | WARRANTY DEED | WOOD, DORIS K | MALLEN, JANET E | | | $217,000.00 | 111772 | 2006-14331 |
| 4 | 10/11/2002 | WARRANTY D | WARRANTY DEED | LITZENBERGER, ALWOOD LIFE EST | WOOD, DORIS K | | | $136,500.00 | 100570 | 2002-11500 |
| 5 | 06/13/1985 | QCD | QUIT CLAIM DEED | | | | | $83,000.00 | 0 | 1859-006742 |
Payout Agreement
| No payout information available.. |