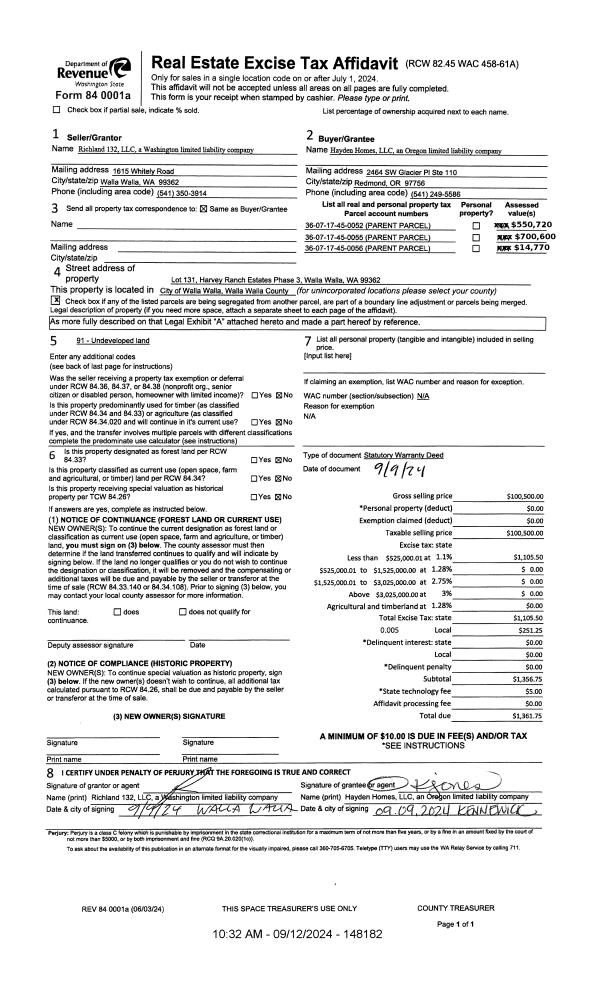
Property
Account |
| Property ID: | 16789 | Abbreviated Legal Description: | LENNONS & WILDWOOD LOT 2 BLK 5 |
| Parcel Number: | 360721630502 | Agent Code: | |
| Type: | Real | | |
| Tax Area: | 1 - OL-140-F | Land Use Code | 11 |
| Open Space: | N | DFL | N |
| Historic Property: | N | Remodel Property: | N |
| Multi-Family Redevelopment: | N | | |
| Township: | 7 | Section: | 21 |
| Range: | 36 |
Location |
| Address: | 1038 FRANCIS AVE WA 99362 | Mapsco: | |
| Neighborhood: | G-SFR | Map ID: | |
| Neighborhood CD: | 514011 |
Owner |
| Name: | HART JUSTIN A & CHERISH M | Owner ID: | 56640 |
| Mailing Address: | 2243 KENNEWICK PL NE RENTON, WA 98056 | % Ownership: | 100.0000000000% |
| | | Exemptions: | |
Taxes and Assessment Details
Values
| (+) Improvement Homesite Value: | + | $0 | |
| (+) Improvement Non-Homesite Value: | + | $420,130 | |
| (+) Land Homesite Value: | + | $0 | |
| (+) Land Non-Homesite Value: | + | $43,500 | |
| (+) Curr Use (HS): | + | $0 | $0 |
| (+) Curr Use (NHS): | + | $0 | $0 |
| | | -------------------------- | |
| (=) Market Value: | = | $463,630 | |
| (–) Productivity Loss: | – | $0 | |
| | | -------------------------- | |
| (=) Subtotal: | = | $463,630 | |
| (+) Senior Appraised Value: | + | $0 | |
| (+) Non-Senior Appraised Value: | + | $463,630 | |
| | | -------------------------- | |
| (=) Total Appraised Value: | = | $463,630 | |
| (–) Senior Exemption Loss: | – | $0 | |
| (–) Exemption Loss: | – | $0 | |
| | | -------------------------- | |
| (=) Taxable Value: | = | $463,630 | |
Taxing Jurisdiction
| Owner: | HART JUSTIN A & CHERISH M | | |
| % Ownership: | 100.0000000000% | | |
| Total Value: | $463,630 | | |
| Tax Area: | 1 - OL-140-F |
| CERFD | CURRENT EXPENSE REFUND 010 | 0.0000000000 | $463,630 | $463,630 | $0.00 | | |
| CURREXP | CURRENT EXPENSE 010 | 1.0175366760 | $463,630 | $463,630 | $471.76 | | |
| HUMNSERV | HUMAN SERVICES 119 | 0.0250000000 | $463,630 | $463,630 | $11.59 | | |
| SLDREL | SOLDIERS RELIEF 121 | 0.0155990005 | $463,630 | $463,630 | $7.23 | | |
| EMERGSER | EMS 147 | 0.3792580840 | $463,630 | $463,630 | $175.84 | | |
| EMSRFD | EMS REFUND 147 | 0.0000000000 | $463,630 | $463,630 | $0.00 | | |
| PORTRFD | PORT REFUND 640 | 0.0000000000 | $463,630 | $463,630 | $0.00 | | |
| PORTWWGEN | PORT OF WW 640 | 0.2460186015 | $463,630 | $463,630 | $114.06 | | |
| SD140BOND | SD #140 BOND 764 | 0.8342371393 | $463,630 | $463,630 | $386.78 | | |
| SD140GEN | SD #140 GENERAL 760 | 2.0646500647 | $463,630 | $463,630 | $957.23 | | |
| ST2 | STATE SCHOOL PART 2 600 | 0.8131451643 | $463,630 | $463,630 | $377.00 | | |
| STATESCHL | STATE SCHOOL 600 | 1.5158548041 | $463,630 | $463,630 | $702.80 | | |
| STREFUND | STATE REFUND LEVY 603 | 0.0000000000 | $463,630 | $463,630 | $0.00 | | |
| CWWBOND | C OF WW BOND 643 | 0.2760494372 | $463,630 | $463,630 | $127.98 | | |
| CWWGEN | CITY OF WW 631 | 1.6100204973 | $463,630 | $463,630 | $746.45 | | |
| CWWRFD | CITY OF WALLA WALLA REFUND 631 | 0.0000000000 | $463,630 | $463,630 | $0.00 | | |
| | Total Tax Rate: | 8.7973694689 | | | | | |
| | | | | Taxes w/Current Exemptions: | $4,078.72 | | |
| | | | | Taxes w/o Exemptions: | $4,078.72 | | |
Improvement / Building
| Improvement #1: | RESIDENTIAL | State Code: | 11 | 1254.0 sqft | Value: | $420,130 |
| Exterior Wall: | SIDING | Heating/Cooling: | WARM & COOLED AIR | | Number of Bathrooms: | 3 | Number of Bedrooms: | 3 | | Plumbing: | 11 | Roof Covering: | COMP SHINGLE |
|
| | Type | Description | Class CD | Sub Class CD | Year Built | Area |
| | MA | Main Area | 4 | 40 | 1938 | 1254.0 |
| | UPFL | Upper Floor (included in main area) | 4 | 40 | 1938 | 200.0 |
| | SI1 | SITE IMPROVEMENT | 4 | 40 | 1938 | 2.5 |
| | BASE | BASEMENT | 4 | 40 | 1938 | 1054.0 |
| | BPF | BASEMENT -PARTITIONED FINISH | 4 | 40 | 1938 | 1054.0 |
| | DTG | Detached Garage | 4 | 40 | 1938 | 357.0 |
| | OPS | OPEN PORCH W/STEPS | 4 | 40 | 1938 | 45.0 |
| | S1F | Single One Story Fireplace | 4 | 40 | 1938 | 1.0 |
Sketch
Property Image
Land
| 1 | RES 1 | Converted: Residential | 0.1377 | 6000.00 | 0.00 | 0.00 | 1.00 | $43,500 | $0 |
Roll Value History
| 2025 | N/A | N/A | N/A | N/A | N/A |
| 2024 | $395,930 | $66,000 | $0 | $461,930 | $461,930 |
| 2023 | $420,130 | $43,500 | $0 | $463,630 | $463,630 |
| 2022 | $381,940 | $43,500 | $0 | $425,440 | $425,440 |
| 2021 | $293,800 | $43,500 | $0 | $337,300 | $337,300 |
| 2020 | $226,000 | $43,500 | $0 | $269,500 | $269,500 |
| 2019 | $226,000 | $43,500 | $0 | $269,500 | $269,500 |
| 2018 | $226,000 | $43,500 | $0 | $269,500 | $269,500 |
| 2017 | $243,180 | $27,000 | $0 | $270,180 | $270,180 |
| 2016 | $231,600 | $27,000 | $0 | $258,600 | $258,600 |
| 2015 | $231,600 | $27,000 | $0 | $258,600 | $258,600 |
| 2014 | $193,000 | $27,000 | $0 | $220,000 | $220,000 |
| 2013 | $193,000 | $27,000 | $0 | $220,000 | $220,000 |
| 2012 | $203,500 | $27,000 | $0 | $0 | $0 |
| 2011 | $203,500 | $27,000 | $0 | $0 | $0 |
| 2010 | $203,300 | $27,000 | $0 | $0 | $0 |
| 2009 | $228,900 | $27,000 | $0 | $0 | $0 |
| 2008 | $149,500 | $27,000 | $0 | $0 | $0 |
| 2007 | $149,500 | $27,000 | $0 | $0 | $0 |
| 2006 | $116,700 | $12,000 | $0 | $0 | $0 |
Deed and Sales History
| 1 | 04/30/2025 | QCD | QUIT CLAIM DEED | HART JUSTIN A & CHERISH M | HART JUSTIN A & CHERISH M & PATRICK HADLEY | | | | 149317 | 2025-02339 |
| 2 | 05/18/2015 | SWD | STATUTORY WARRANTY DEED | HAMILTON TIMARK & LAURIEN C | HART JUSTIN A & CHERISH M | | | $269,000.00 | 128002 | 2015-04220 |
| 3 | 12/11/2006 | WARRANTY D | WARRANTY DEED | JACOBSON, CHRISTIAN J | HAMILTON, TIMARK & LAURIEN C | | | $266,900.00 | 111865 | 2006-14767 |
| 4 | 12/08/2004 | WARRANTY D | WARRANTY DEED | HALL, CHRISTOPHER & CHANDRA | JACOBSON, CHRISTIAN J | | | $178,900.00 | 0 | 2004-14079 |
| 5 | 10/03/2001 | WARRANTY D | WARRANTY DEED | | | | | $132,900.00 | 98124 | 3200-110697 |
Payout Agreement
| No payout information available.. |