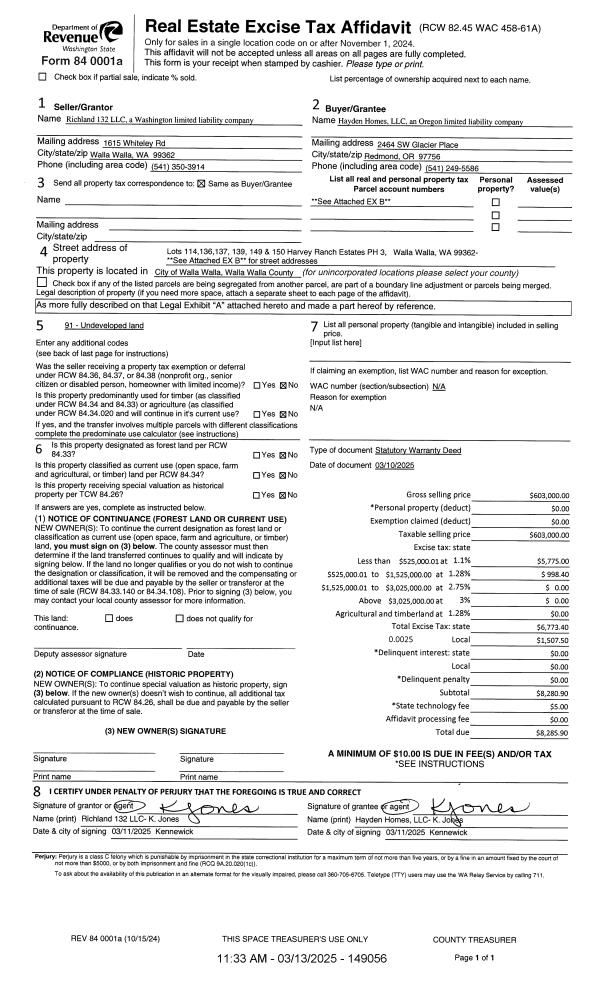
Property
Account |
| Property ID: | 16754 | Abbreviated Legal Description: | 19-8-36 TAX 1; W1/2NE1/4 LESS TAX 2; W1/2SE1/4 LY NLY OF CO RD LESSTAX 2 & LESS 2 AC PTN IN NW1/4SE1/4; E1/2SW1/4 LY NLY OF CO RD |
| Parcel Number: | 360819110002 | Agent Code: | |
| Type: | Real | | |
| Tax Area: | 100 - 140-8 | Land Use Code | 83 |
| Open Space: | Y | DFL | N |
| Historic Property: | N | Remodel Property: | N |
| Multi-Family Redevelopment: | N | | |
| Township: | 8 | Section: | 19 |
| Range: | 36 |
Location |
| Address: | WA 99362 | Mapsco: | |
| Neighborhood: | 0 Farm | Map ID: | |
| Neighborhood CD: | 3230 |
Owner |
| Name: | SMALL SUSAN JOY BROWN & | Owner ID: | 69122 |
| Mailing Address: | SHARON LOUISE BROWN HUDSON 290 BALDWIN RD WALLA WALLA, WA 99362 | % Ownership: | 100.0000000000% |
| | | Exemptions: | |
Taxes and Assessment Details
Values
| (+) Improvement Homesite Value: | + | $0 | |
| (+) Improvement Non-Homesite Value: | + | $0 | |
| (+) Land Homesite Value: | + | $0 | |
| (+) Land Non-Homesite Value: | + | $0 | |
| (+) Curr Use (HS): | + | $0 | $0 |
| (+) Curr Use (NHS): | + | $293,700 | $106,860 |
| | | -------------------------- | |
| (=) Market Value: | = | $293,700 | |
| (–) Productivity Loss: | – | $186,830 | |
| | | -------------------------- | |
| (=) Subtotal: | = | $106,870 | |
| (+) Senior Appraised Value: | + | $0 | |
| (+) Non-Senior Appraised Value: | + | $106,860 | |
| | | -------------------------- | |
| (=) Total Appraised Value: | = | $106,860 | |
| (–) Senior Exemption Loss: | – | $0 | |
| (–) Exemption Loss: | – | $0 | |
| | | -------------------------- | |
| (=) Taxable Value: | = | $106,860 | |
Taxing Jurisdiction
| Owner: | SMALL SUSAN JOY BROWN & | | |
| % Ownership: | 100.0000000000% | | |
| Total Value: | $293,700 | | |
| Tax Area: | 100 - 140-8 |
| CERFD | CURRENT EXPENSE REFUND 010 | 0.0000000000 | $106,860 | $106,860 | $0.00 | | |
| CURREXP | CURRENT EXPENSE 010 | 1.0175366760 | $106,860 | $106,860 | $108.73 | | |
| HUMNSERV | HUMAN SERVICES 119 | 0.0250000000 | $106,860 | $106,860 | $2.67 | | |
| SLDREL | SOLDIERS RELIEF 121 | 0.0155990005 | $106,860 | $106,860 | $1.67 | | |
| EMERGSER | EMS 147 | 0.3792580840 | $106,860 | $106,860 | $40.53 | | |
| EMSRFD | EMS REFUND 147 | 0.0000000000 | $106,860 | $106,860 | $0.00 | | |
| FD8EXP | FD #8 EXPENSE 697 | 0.6647992540 | $106,860 | $106,860 | $71.04 | | |
| RLBRFD | RURAL LIBRARY REFUND 623 | 0.0000000000 | $106,860 | $106,860 | $0.00 | | |
| RURALLIB | RURAL LIBRARY 623 | 0.3710609029 | $106,860 | $106,860 | $39.65 | | |
| PORTRFD | PORT REFUND 640 | 0.0000000000 | $106,860 | $106,860 | $0.00 | | |
| PORTWWGEN | PORT OF WW 640 | 0.2460186015 | $106,860 | $106,860 | $26.29 | | |
| SD140BOND | SD #140 BOND 764 | 0.8342371393 | $106,860 | $106,860 | $89.15 | | |
| SD140GEN | SD #140 GENERAL 760 | 2.0646500647 | $106,860 | $106,860 | $220.63 | | |
| ST2 | STATE SCHOOL PART 2 600 | 0.8131451643 | $106,860 | $106,860 | $86.89 | | |
| STATESCHL | STATE SCHOOL 600 | 1.5158548041 | $106,860 | $106,860 | $161.98 | | |
| STREFUND | STATE REFUND LEVY 603 | 0.0000000000 | $106,860 | $106,860 | $0.00 | | |
| COROAD | COUNTY ROAD 115 | 1.6549953990 | $106,860 | $106,860 | $176.85 | | |
| CRPRD | COUNTY ROAD REFUND 115 | 0.0000000000 | $106,860 | $106,860 | $0.00 | | |
| | Total Tax Rate: | 9.6021550903 | | | | | |
| | | | | Taxes w/Current Exemptions: | $1,026.08 | | |
| | | | | Taxes w/o Exemptions: | $1,026.08 | | |
Improvement / Building
Sketch
| No sketches available for this property. |
Property Image
Land
| 1 | WASTE | Waste | 2.5000 | 0.00 | 0.00 | 0.00 | 1.00 | $0 | $0 |
| 2 | 65-C1 | Class 1 65 BU | 175.7600 | 0.00 | 0.00 | 0.00 | 1.00 | $293,700 | $106,860 |
Roll Value History
| 2025 | N/A | N/A | N/A | N/A | N/A |
| 2024 | $0 | $300,900 | $102,820 | $102,820 | $102,820 |
| 2023 | $0 | $293,700 | $106,860 | $106,860 | $106,860 |
| 2022 | $0 | $270,140 | $102,470 | $102,470 | $102,470 |
| 2021 | $0 | $247,290 | $102,120 | $102,120 | $102,120 |
| 2020 | $0 | $230,250 | $104,930 | $104,930 | $104,930 |
| 2019 | $0 | $220,580 | $107,570 | $107,570 | $107,570 |
| 2018 | $0 | $219,520 | $122,150 | $122,150 | $122,150 |
| 2017 | $0 | $210,210 | $123,910 | $123,910 | $123,910 |
| 2016 | $0 | $210,210 | $124,440 | $124,440 | $124,440 |
| 2015 | $0 | $208,450 | $110,030 | $110,030 | $110,030 |
| 2014 | $0 | $208,450 | $111,430 | $111,430 | $111,430 |
| 2013 | $0 | $197,000 | $91,000 | $91,000 | $91,000 |
| 2012 | $0 | $63,400 | $0 | $0 | $0 |
| 2011 | $0 | $70,100 | $0 | $0 | $0 |
| 2010 | $0 | $65,000 | $0 | $0 | $0 |
| 2009 | $0 | $65,400 | $0 | $0 | $0 |
| 2008 | $0 | $56,800 | $0 | $0 | $0 |
| 2007 | $0 | $60,000 | $0 | $0 | $0 |
Deed and Sales History
| 1 | 01/24/2024 | BARGAIN & | BARGAIN & SALE DEED | SMALL SUSAN JOY BROWN & | SMALL SUSAN JOY BROWN & | | | | 147057 | 2024-00400 |
| 2 | 03/18/2021 | SWP | Special Warranty Deed | BROWN DONNA B | SMALL SUSAN JOY BROWN & | | 15 PARCELS | $0.00 | 141197 | 2021-03519 |
| 3 | 11/16/2010 | WARRANTY D | WARRANTY DEED | BROWN, RODNEY L ESTATE OF | BROWN DONNA B | | | | 119339 | 2010-09352 |
Payout Agreement
| No payout information available.. |