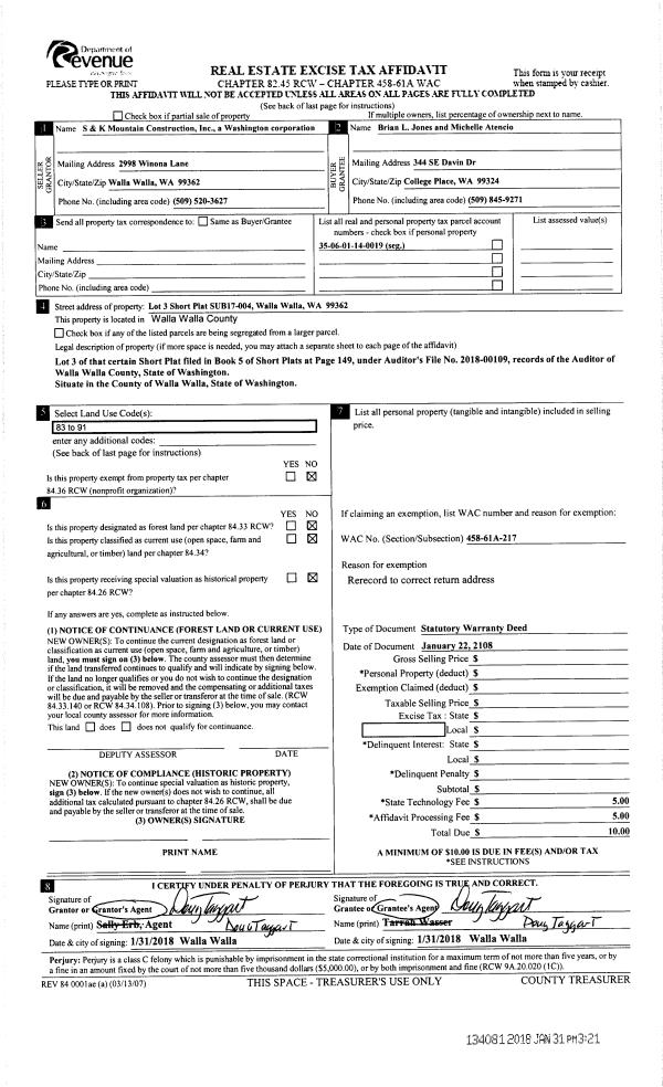
Property
Account |
| Property ID: | 16541 | Abbreviated Legal Description: | TABLEROCK SUBD LOT 35 |
| Parcel Number: | 360604580035 | Agent Code: | |
| Type: | Real | | |
| Tax Area: | 5 - OL-140 | Land Use Code | 11 |
| Open Space: | N | DFL | N |
| Historic Property: | N | Remodel Property: | N |
| Multi-Family Redevelopment: | N | | |
| Township: | 6 | Section: | 4 |
| Range: | 36 |
Location |
| Address: | 143 ELK FORK DR WA 99362 | Mapsco: | |
| Neighborhood: | VG Res Rural/City Inf | Map ID: | |
| Neighborhood CD: | 615012 |
Owner |
| Name: | MOORE MICHAEL D & KELLY J | Owner ID: | 62596 |
| Mailing Address: | 143 ELK FORK DR WALLA WALLA, WA 99362 | % Ownership: | 100.0000000000% |
| | | Exemptions: | |
Taxes and Assessment Details
Values
| (+) Improvement Homesite Value: | + | $0 | |
| (+) Improvement Non-Homesite Value: | + | $595,560 | |
| (+) Land Homesite Value: | + | $0 | |
| (+) Land Non-Homesite Value: | + | $120,000 | |
| (+) Curr Use (HS): | + | $0 | $0 |
| (+) Curr Use (NHS): | + | $0 | $0 |
| | | -------------------------- | |
| (=) Market Value: | = | $715,560 | |
| (–) Productivity Loss: | – | $0 | |
| | | -------------------------- | |
| (=) Subtotal: | = | $715,560 | |
| (+) Senior Appraised Value: | + | $0 | |
| (+) Non-Senior Appraised Value: | + | $715,560 | |
| | | -------------------------- | |
| (=) Total Appraised Value: | = | $715,560 | |
| (–) Senior Exemption Loss: | – | $0 | |
| (–) Exemption Loss: | – | $0 | |
| | | -------------------------- | |
| (=) Taxable Value: | = | $715,560 | |
Taxing Jurisdiction
| Owner: | MOORE MICHAEL D & KELLY J | | |
| % Ownership: | 100.0000000000% | | |
| Total Value: | $715,560 | | |
| Tax Area: | 5 - OL-140 |
| CERFD | CURRENT EXPENSE REFUND 010 | 0.0000000000 | $715,560 | $715,560 | $0.00 | | |
| CURREXP | CURRENT EXPENSE 010 | 1.0175366760 | $715,560 | $715,560 | $728.11 | | |
| HUMNSERV | HUMAN SERVICES 119 | 0.0250000000 | $715,560 | $715,560 | $17.89 | | |
| SLDREL | SOLDIERS RELIEF 121 | 0.0155990005 | $715,560 | $715,560 | $11.16 | | |
| EMERGSER | EMS 147 | 0.3792580840 | $715,560 | $715,560 | $271.38 | | |
| EMSRFD | EMS REFUND 147 | 0.0000000000 | $715,560 | $715,560 | $0.00 | | |
| PORTRFD | PORT REFUND 640 | 0.0000000000 | $715,560 | $715,560 | $0.00 | | |
| PORTWWGEN | PORT OF WW 640 | 0.2460186015 | $715,560 | $715,560 | $176.04 | | |
| SD140BOND | SD #140 BOND 764 | 0.8342371393 | $715,560 | $715,560 | $596.95 | | |
| SD140GEN | SD #140 GENERAL 760 | 2.0646500647 | $715,560 | $715,560 | $1,477.38 | | |
| ST2 | STATE SCHOOL PART 2 600 | 0.8131451643 | $715,560 | $715,560 | $581.85 | | |
| STATESCHL | STATE SCHOOL 600 | 1.5158548041 | $715,560 | $715,560 | $1,084.69 | | |
| STREFUND | STATE REFUND LEVY 603 | 0.0000000000 | $715,560 | $715,560 | $0.00 | | |
| CWWBOND | C OF WW BOND 643 | 0.2760494372 | $715,560 | $715,560 | $197.53 | | |
| CWWGEN | CITY OF WW 631 | 1.6100204973 | $715,560 | $715,560 | $1,152.07 | | |
| CWWRFD | CITY OF WALLA WALLA REFUND 631 | 0.0000000000 | $715,560 | $715,560 | $0.00 | | |
| | Total Tax Rate: | 8.7973694689 | | | | | |
| | | | | Taxes w/Current Exemptions: | $6,295.05 | | |
| | | | | Taxes w/o Exemptions: | $6,295.05 | | |
Improvement / Building
| Improvement #1: | RESIDENTIAL | State Code: | 11 | 2288.0 sqft | Value: | $595,560 |
| Exterior Wall: | HARDBOARD | Heating/Cooling: | HEAT PUMP | | Number of Bathrooms: | 3 | Number of Bedrooms: | 5 | | Plumbing: | 17 | Roof Covering: | COMP SHINGLE |
|
| | Type | Description | Class CD | Sub Class CD | Year Built | Area |
| | MA | Main Area | 1 | 40 | 2005 | 2288.0 |
| | SI1 | SITE IMPROVEMENT | 1 | 40 | 2005 | 4.5 |
| | BASE | BASEMENT | 1 | 40 | 2005 | 1803.0 |
| | BPF | BASEMENT -PARTITIONED FINISH | 1 | 40 | 2005 | 1803.0 |
| | ATG | Attached Garage | 1 | 40 | 2005 | 621.0 |
| | RPC | OPEN PORCH W/ROOF , CEILED | 1 | 40 | 2005 | 177.0 |
| | RPC | OPEN PORCH W/ROOF , CEILED | 1 | 40 | 2005 | 208.0 |
| | GFP | GAS FIREPLACE | 1 | 40 | 2005 | 2.0 |
Sketch
Property Image
Land
| 1 | RES 1 | Converted: Residential | 0.2875 | 12525.00 | 0.00 | 0.00 | 1.00 | $120,000 | $0 |
Roll Value History
| 2025 | N/A | N/A | N/A | N/A | N/A |
| 2024 | $595,560 | $120,000 | $0 | $715,560 | $715,560 |
| 2023 | $595,560 | $120,000 | $0 | $715,560 | $715,560 |
| 2022 | $567,200 | $95,000 | $0 | $662,200 | $662,200 |
| 2021 | $405,140 | $95,000 | $0 | $500,140 | $500,140 |
| 2020 | $368,310 | $95,000 | $0 | $463,310 | $463,310 |
| 2019 | $368,310 | $95,000 | $0 | $463,310 | $463,310 |
| 2018 | $396,420 | $50,000 | $0 | $446,420 | $446,420 |
| 2017 | $344,720 | $50,000 | $0 | $394,720 | $394,720 |
| 2016 | $344,720 | $50,000 | $0 | $394,720 | $394,720 |
| 2015 | $344,720 | $50,000 | $0 | $394,720 | $394,720 |
| 2014 | $328,300 | $50,000 | $0 | $378,300 | $378,300 |
| 2013 | $328,300 | $50,000 | $0 | $378,300 | $378,300 |
| 2012 | $262,100 | $55,000 | $0 | $0 | $0 |
| 2011 | $218,300 | $70,000 | $0 | $0 | $0 |
| 2010 | $218,300 | $70,000 | $0 | $0 | $0 |
| 2009 | $250,300 | $70,000 | $0 | $0 | $0 |
| 2008 | $250,300 | $70,000 | $0 | $0 | $0 |
| 2007 | $263,700 | $50,000 | $0 | $0 | $0 |
| 2006 | $63,600 | $50,000 | $0 | $0 | $0 |
Deed and Sales History
| 1 | 02/07/2018 | SWD | STATUTORY WARRANTY DEED | ALLEN PETER J & CAROL L | MOORE MICHAEL D & KELLY J | | | $470,900.00 | 134121 | 2018-01082 |
| 2 | 10/02/2006 | WARRANTY D | WARRANTY DEED | SAENZ, ALEX & BRENDA | ALLEN, PETER J & CAROL L | | | $329,900.00 | 111353 | 2006-11848 |
| 3 | 12/07/2004 | WARRANTY D | WARRANTY DEED | GATEWOOD, W PAUL | SAENZ, ALEX & BRENDA | | | $53,000.00 | 106347 | 2004-14017 |
Payout Agreement
| No payout information available.. |