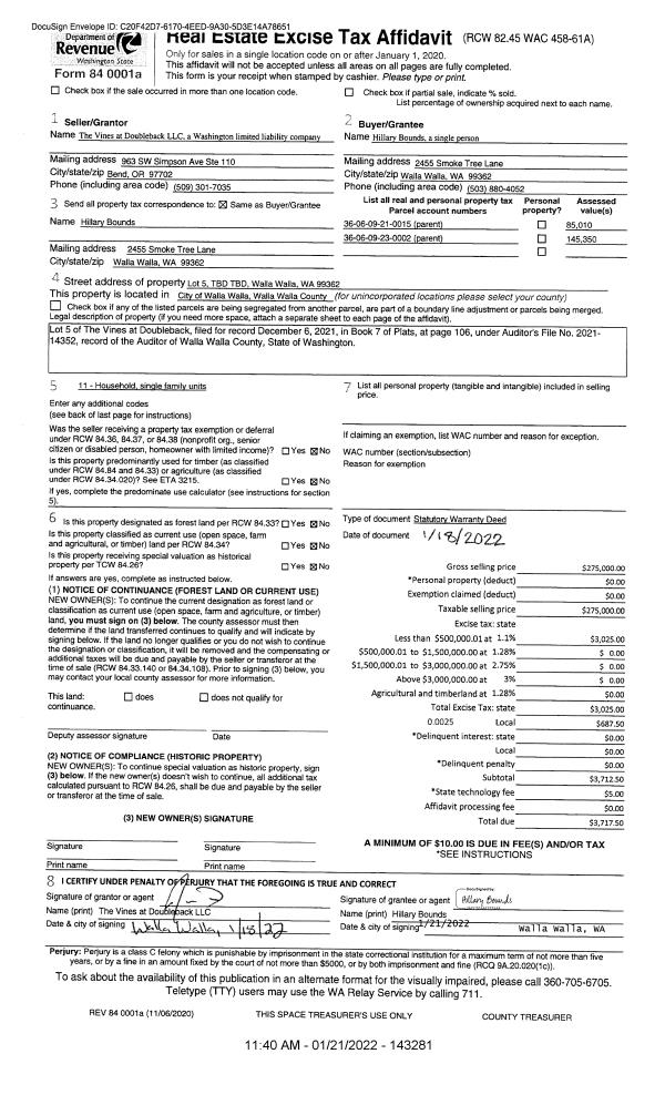
Property
Account |
| Property ID: | 16540 | Abbreviated Legal Description: | CRISCOLA'S ADDITION SUBDIVISION LOT 9 |
| Parcel Number: | 350726690009 | Agent Code: | |
| Type: | Real | | |
| Tax Area: | 311 - 250-4 | Land Use Code | 11 |
| Open Space: | N | DFL | N |
| Historic Property: | N | Remodel Property: | N |
| Multi-Family Redevelopment: | N | | |
| Township: | 7 | Section: | 26 |
| Range: | 35 |
Location |
| Address: | 29 PRIMROSE LN WA 99362 | Mapsco: | |
| Neighborhood: | GOOD SFR Rural/City Inf | Map ID: | |
| Neighborhood CD: | 314012 |
Owner |
| Name: | LIBBY FAMILY LIVING TRUST | Owner ID: | 72023 |
| Mailing Address: | 29 PRIMROSE LN WALLA WALLA, WA 99362 | % Ownership: | 100.0000000000% |
| | | Exemptions: | |
Taxes and Assessment Details
Values
| (+) Improvement Homesite Value: | + | $498,620 | |
| (+) Improvement Non-Homesite Value: | + | $0 | |
| (+) Land Homesite Value: | + | $150,000 | |
| (+) Land Non-Homesite Value: | + | $0 | |
| (+) Curr Use (HS): | + | $0 | $0 |
| (+) Curr Use (NHS): | + | $0 | $0 |
| | | -------------------------- | |
| (=) Market Value: | = | $648,620 | |
| (–) Productivity Loss: | – | $0 | |
| | | -------------------------- | |
| (=) Subtotal: | = | $648,620 | |
| (+) Senior Appraised Value: | + | $0 | |
| (+) Non-Senior Appraised Value: | + | $648,620 | |
| | | -------------------------- | |
| (=) Total Appraised Value: | = | $648,620 | |
| (–) Senior Exemption Loss: | – | $0 | |
| (–) Exemption Loss: | – | $0 | |
| | | -------------------------- | |
| (=) Taxable Value: | = | $648,620 | |
Taxing Jurisdiction
| Owner: | LIBBY FAMILY LIVING TRUST | | |
| % Ownership: | 100.0000000000% | | |
| Total Value: | $648,620 | | |
| Tax Area: | 311 - 250-4 |
| CERFD | CURRENT EXPENSE REFUND 010 | 0.0000000000 | $648,620 | $648,620 | $0.00 | | |
| CURREXP | CURRENT EXPENSE 010 | 1.0175366760 | $648,620 | $648,620 | $659.99 | | |
| HUMNSERV | HUMAN SERVICES 119 | 0.0250000000 | $648,620 | $648,620 | $16.22 | | |
| SLDREL | SOLDIERS RELIEF 121 | 0.0155990005 | $648,620 | $648,620 | $10.12 | | |
| EMERGSER | EMS 147 | 0.3792580840 | $648,620 | $648,620 | $245.99 | | |
| EMSRFD | EMS REFUND 147 | 0.0000000000 | $648,620 | $648,620 | $0.00 | | |
| FD4EXP | FD #4 EXPENSE 686 | 0.8836993059 | $648,620 | $648,620 | $573.19 | | |
| RLBRFD | RURAL LIBRARY REFUND 623 | 0.0000000000 | $648,620 | $648,620 | $0.00 | | |
| RURALLIB | RURAL LIBRARY 623 | 0.3710609029 | $648,620 | $648,620 | $240.68 | | |
| PORTRFD | PORT REFUND 640 | 0.0000000000 | $648,620 | $648,620 | $0.00 | | |
| PORTWWGEN | PORT OF WW 640 | 0.2460186015 | $648,620 | $648,620 | $159.57 | | |
| SD250BOND | SD #250 BOND 773 | 1.4560608159 | $648,620 | $648,620 | $944.43 | | |
| SD250GEN | SD #250 GENERAL 770 | 2.3880724087 | $648,620 | $648,620 | $1,548.95 | | |
| ST2 | STATE SCHOOL PART 2 600 | 0.8131451643 | $648,620 | $648,620 | $527.42 | | |
| STATESCHL | STATE SCHOOL 600 | 1.5158548041 | $648,620 | $648,620 | $983.21 | | |
| STREFUND | STATE REFUND LEVY 603 | 0.0000000000 | $648,620 | $648,620 | $0.00 | | |
| COROAD | COUNTY ROAD 115 | 1.6549953990 | $648,620 | $648,620 | $1,073.46 | | |
| CRPRD | COUNTY ROAD REFUND 115 | 0.0000000000 | $648,620 | $648,620 | $0.00 | | |
| | Total Tax Rate: | 10.7663011628 | | | | | |
| | | | | Taxes w/Current Exemptions: | $6,983.23 | | |
| | | | | Taxes w/o Exemptions: | $6,983.23 | | |
Improvement / Building
| Improvement #1: | RESIDENTIAL | State Code: | 11 | 2284.0 sqft | Value: | $498,620 |
| Exterior Wall: | STUCCO | Heating/Cooling: | HEAT PUMP | | Number of Bathrooms: | 2 | Number of Bedrooms: | 4 | | Plumbing: | 12 | Roof Covering: | COMP SHINGLE |
|
| | Type | Description | Class CD | Sub Class CD | Year Built | Area |
| | MA | Main Area | 1 | 45 | 2007 | 2284.0 |
| | CPC | COVERED CARPORT/PATIO | 1 | 45 | 0 | 284.0 |
| | GFP | GAS FIREPLACE | 1 | 45 | 0 | 1.0 |
| | RPC | OPEN PORCH W/ROOF , CEILED | 1 | 45 | 0 | 275.0 |
| | SI1 | SITE IMPROVEMENT | 1 | 45 | 0 | 3.5 |
| | ATG | Attached Garage | 1 | 45 | 2007 | 900.0 |
| | UTST | Utility Storage Shed | 1 | 45 | 2007 | 240.0 |
Sketch
Property Image
Land
| 1 | RES 1 | Converted: Residential | 0.6000 | 26136.00 | 0.00 | 0.00 | 1.00 | $150,000 | $0 |
Roll Value History
| 2025 | N/A | N/A | N/A | N/A | N/A |
| 2024 | $573,410 | $150,000 | $0 | $723,410 | $723,410 |
| 2023 | $498,620 | $150,000 | $0 | $648,620 | $648,620 |
| 2022 | $453,290 | $150,000 | $0 | $603,290 | $603,290 |
| 2021 | $380,720 | $75,000 | $0 | $455,720 | $455,720 |
| 2020 | $346,110 | $75,000 | $0 | $421,110 | $421,110 |
| 2019 | $346,110 | $75,000 | $0 | $421,110 | $421,110 |
| 2018 | $329,630 | $75,000 | $0 | $404,630 | $404,630 |
| 2017 | $313,930 | $75,000 | $0 | $388,930 | $388,930 |
| 2016 | $313,930 | $75,000 | $0 | $388,930 | $267,000 |
| 2015 | $295,700 | $75,000 | $0 | $370,700 | $267,000 |
| 2014 | $295,700 | $75,000 | $0 | $370,700 | $337,000 |
| 2013 | $295,700 | $75,000 | $0 | $370,700 | $337,000 |
| 2012 | $259,600 | $75,000 | $0 | $334,600 | $334,600 |
| 2011 | $262,000 | $75,000 | $0 | $0 | $0 |
| 2010 | $256,500 | $75,000 | $0 | $0 | $0 |
| 2009 | $293,300 | $75,000 | $0 | $0 | $0 |
| 2008 | $284,800 | $75,000 | $0 | $0 | $0 |
| 2007 | $0 | $2,400 | $0 | $0 | $0 |
| 2006 | $0 | $2,400 | $0 | $0 | $0 |
Deed and Sales History
| 1 | 07/29/2022 | SWD | STATUTORY WARRANTY DEED | PLATNER C ELWYN & PATSY J | LIBBY FAMILY LIVING TRUST | | | $675,000.00 | 144391 | 2022-06341 |
| 2 | 06/29/2017 | SWD | STATUTORY WARRANTY DEED | DECCIO CLAUDIA R | PLATNER C ELWYN & PATSY J | | | $425,000.00 | 132690 | 2017-04992 |
| 3 | 05/06/2013 | WARRANTY D | WARRANTY DEED | DECCIO, ERNEST M ESTATE OF | DECCIO, CLAUDIA R | | | $0.00 | 123911 | 2013-04513 |
| 4 | 10/02/2006 | WARRANTY D | WARRANTY DEED | PREAS, DAN D & MARVA | DECCIO, ERNEST & CLAUDIA | | | $80,000.00 | 111356 | 2006-11874 |
| 5 | 08/09/2005 | WARRANTY D | WARRANTY DEED | CRISCOLA, VIRGIL E | PREAS DAN D & MARVA | | | $320,000.00 | 108181 | 2005-09789 |
|   | |
Payout Agreement
| No payout information available.. |