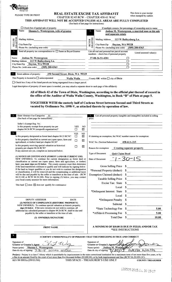
Property
Account |
| Property ID: | 16304 | Abbreviated Legal Description: | 14-6-35 PARCEL 16 TRACT A (PT LOT 2) LESS PTN TO WW CO FOR RDPURPOSES |
| Parcel Number: | 350614210016 | Agent Code: | |
| Type: | Real | | |
| Tax Area: | 311 - 250-4 | Land Use Code | 11 |
| Open Space: | N | DFL | N |
| Historic Property: | N | Remodel Property: | N |
| Multi-Family Redevelopment: | N | | |
| Township: | 6 | Section: | 14 |
| Range: | 35 |
Location |
| Address: | 4119 OLD MILTON HWY WA 99324 | Mapsco: | |
| Neighborhood: | G SFR Rural | Map ID: | |
| Neighborhood CD: | 214013 |
Owner |
| Name: | KIRK ADRIANNA R | Owner ID: | 69805 |
| Mailing Address: | JOHNNY NAVA 4119 OLD MILTON HWY WALLA WALLA, WA 99362 | % Ownership: | 100.0000000000% |
| | | Exemptions: | |
Taxes and Assessment Details
Values
| (+) Improvement Homesite Value: | + | $0 | |
| (+) Improvement Non-Homesite Value: | + | $254,740 | |
| (+) Land Homesite Value: | + | $0 | |
| (+) Land Non-Homesite Value: | + | $119,450 | |
| (+) Curr Use (HS): | + | $0 | $0 |
| (+) Curr Use (NHS): | + | $0 | $0 |
| | | -------------------------- | |
| (=) Market Value: | = | $374,190 | |
| (–) Productivity Loss: | – | $0 | |
| | | -------------------------- | |
| (=) Subtotal: | = | $374,190 | |
| (+) Senior Appraised Value: | + | $0 | |
| (+) Non-Senior Appraised Value: | + | $374,190 | |
| | | -------------------------- | |
| (=) Total Appraised Value: | = | $374,190 | |
| (–) Senior Exemption Loss: | – | $0 | |
| (–) Exemption Loss: | – | $0 | |
| | | -------------------------- | |
| (=) Taxable Value: | = | $374,190 | |
Taxing Jurisdiction
| Owner: | KIRK ADRIANNA R | | |
| % Ownership: | 100.0000000000% | | |
| Total Value: | $374,190 | | |
| Tax Area: | 311 - 250-4 |
| CERFD | CURRENT EXPENSE REFUND 010 | 0.0000000000 | $374,190 | $374,190 | $0.00 | | |
| CURREXP | CURRENT EXPENSE 010 | 1.0175366760 | $374,190 | $374,190 | $380.75 | | |
| HUMNSERV | HUMAN SERVICES 119 | 0.0250000000 | $374,190 | $374,190 | $9.35 | | |
| SLDREL | SOLDIERS RELIEF 121 | 0.0155990005 | $374,190 | $374,190 | $5.84 | | |
| EMERGSER | EMS 147 | 0.3792580840 | $374,190 | $374,190 | $141.91 | | |
| EMSRFD | EMS REFUND 147 | 0.0000000000 | $374,190 | $374,190 | $0.00 | | |
| FD4EXP | FD #4 EXPENSE 686 | 0.8836993059 | $374,190 | $374,190 | $330.67 | | |
| RLBRFD | RURAL LIBRARY REFUND 623 | 0.0000000000 | $374,190 | $374,190 | $0.00 | | |
| RURALLIB | RURAL LIBRARY 623 | 0.3710609029 | $374,190 | $374,190 | $138.85 | | |
| PORTRFD | PORT REFUND 640 | 0.0000000000 | $374,190 | $374,190 | $0.00 | | |
| PORTWWGEN | PORT OF WW 640 | 0.2460186015 | $374,190 | $374,190 | $92.06 | | |
| SD250BOND | SD #250 BOND 773 | 1.4560608159 | $374,190 | $374,190 | $544.84 | | |
| SD250GEN | SD #250 GENERAL 770 | 2.3880724087 | $374,190 | $374,190 | $893.59 | | |
| ST2 | STATE SCHOOL PART 2 600 | 0.8131451643 | $374,190 | $374,190 | $304.27 | | |
| STATESCHL | STATE SCHOOL 600 | 1.5158548041 | $374,190 | $374,190 | $567.22 | | |
| STREFUND | STATE REFUND LEVY 603 | 0.0000000000 | $374,190 | $374,190 | $0.00 | | |
| COROAD | COUNTY ROAD 115 | 1.6549953990 | $374,190 | $374,190 | $619.28 | | |
| CRPRD | COUNTY ROAD REFUND 115 | 0.0000000000 | $374,190 | $374,190 | $0.00 | | |
| | Total Tax Rate: | 10.7663011628 | | | | | |
| | | | | Taxes w/Current Exemptions: | $4,028.63 | | |
| | | | | Taxes w/o Exemptions: | $4,028.63 | | |
Improvement / Building
| Improvement #1: | RESIDENTIAL | State Code: | 11 | 1312.0 sqft | Value: | $254,740 |
| Exterior Wall: | PLYWOOD | Heating/Cooling: | STOVE-NO HEAT | | Number of Bathrooms: | 1 | Number of Bedrooms: | 1 | | Plumbing: | 6 | Roof Covering: | COMP SHINGLE |
|
| | Type | Description | Class CD | Sub Class CD | Year Built | Area |
| | MA | Main Area | 1 | 30 | 1975 | 1312.0 |
| | SI1 | SITE IMPROVEMENT | 1 | 30 | 1975 | 1.5 |
| | WDR | WOOD DECK W/ROOF | 1 | 30 | 1975 | 60.0 |
| | HAYSHED | HAYSHED | 1 | 30 | 1975 | 560.0 |
| | HAYSHED | HAYSHED | 1 | 30 | 1975 | 650.0 |
| | DTG | Detached Garage | 1 | 30 | 1975 | 816.0 |
| | BNV | BUILDING NO VALUE | 1 | 30 | 1975 | 1.0 |
Sketch
Property Image
Land
| 1 | RES 1 | Converted: Residential | 0.9900 | 43124.00 | 0.00 | 0.00 | 1.00 | $119,450 | $0 |
Roll Value History
| 2025 | N/A | N/A | N/A | N/A | N/A |
| 2024 | $254,740 | $119,450 | $0 | $374,190 | $374,190 |
| 2023 | $254,740 | $119,450 | $0 | $374,190 | $374,190 |
| 2022 | $242,610 | $119,450 | $0 | $362,060 | $362,060 |
| 2021 | $161,740 | $119,450 | $0 | $281,190 | $281,190 |
| 2020 | $167,290 | $74,300 | $0 | $241,590 | $241,590 |
| 2019 | $167,290 | $74,300 | $0 | $241,590 | $241,590 |
| 2018 | $152,080 | $74,300 | $0 | $226,380 | $226,380 |
| 2017 | $152,080 | $74,300 | $0 | $226,380 | $226,380 |
| 2016 | $144,840 | $74,300 | $0 | $219,140 | $219,140 |
| 2015 | $120,700 | $74,300 | $0 | $195,000 | $195,000 |
| 2014 | $120,700 | $74,300 | $0 | $195,000 | $195,000 |
| 2013 | $120,700 | $74,300 | $0 | $195,000 | $195,000 |
| 2012 | $120,700 | $74,300 | $0 | $0 | $0 |
| 2011 | $120,700 | $74,300 | $0 | $0 | $0 |
| 2010 | $120,700 | $74,300 | $0 | $0 | $0 |
| 2009 | $165,000 | $44,600 | $0 | $0 | $0 |
| 2008 | $94,700 | $45,000 | $0 | $0 | $0 |
| 2007 | $94,700 | $45,000 | $0 | $0 | $0 |
| 2006 | $94,700 | $45,000 | $0 | $0 | $0 |
Deed and Sales History
| 1 | 07/06/2021 | SWD | STATUTORY WARRANTY DEED | WILLIAMS MICHAEL A & JANICE A | KIRK ADRIANNA R | | | $376,000.00 | 141977 | 2021-08174 |
| 2 | 04/02/2014 | COMMUNITY | COMMUNITY PROPERTY AGREEMENT | WILLIAMS MICHAEL A & JANICE A | | | | | 0 | 2014-02265 |
| 3 | 05/11/2006 | QCD | QUIT CLAIM DEED | WILLIAMS, MICHAEL A & JANICE A | WALLA WALLA COUNTY | | | | 110229 | 2006-05385 |
| 4 | 12/01/1992 | WARRANTY D | WARRANTY DEED | | | | | $48,000.00 | 78076 | 2029-210712 |
Payout Agreement
| No payout information available.. |