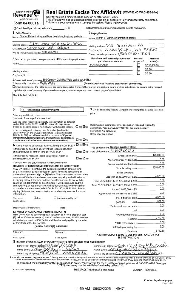
Property
Account |
| Property ID: | 16299 | Abbreviated Legal Description: | ENNIS ANNEX LOT 1 OF SHORT PLAT (PTN LOT 4 BLOCK 6) |
| Parcel Number: | 360721550641 | Agent Code: | |
| Type: | Real | | |
| Tax Area: | 1 - OL-140-F | Land Use Code | 11 |
| Open Space: | N | DFL | N |
| Historic Property: | N | Remodel Property: | N |
| Multi-Family Redevelopment: | N | | |
| Township: | 7 | Section: | 21 |
| Range: | 36 |
Location |
| Address: | 1339 UNIVERSITY ST WA 99362 | Mapsco: | |
| Neighborhood: | A-SFR | Map ID: | |
| Neighborhood CD: | 513011 |
Owner |
| Name: | RUIZ ALEXIS | Owner ID: | 73604 |
| Mailing Address: | JENNIFER ALICIA ESPARZA 1339 UNIVERSITY ST WALLA WALLA, WA 99362 | % Ownership: | 100.0000000000% |
| | | Exemptions: | |
Taxes and Assessment Details
Values
| (+) Improvement Homesite Value: | + | $0 | |
| (+) Improvement Non-Homesite Value: | + | $224,200 | |
| (+) Land Homesite Value: | + | $0 | |
| (+) Land Non-Homesite Value: | + | $45,590 | |
| (+) Curr Use (HS): | + | $0 | $0 |
| (+) Curr Use (NHS): | + | $0 | $0 |
| | | -------------------------- | |
| (=) Market Value: | = | $269,790 | |
| (–) Productivity Loss: | – | $0 | |
| | | -------------------------- | |
| (=) Subtotal: | = | $269,790 | |
| (+) Senior Appraised Value: | + | $0 | |
| (+) Non-Senior Appraised Value: | + | $269,790 | |
| | | -------------------------- | |
| (=) Total Appraised Value: | = | $269,790 | |
| (–) Senior Exemption Loss: | – | $0 | |
| (–) Exemption Loss: | – | $0 | |
| | | -------------------------- | |
| (=) Taxable Value: | = | $269,790 | |
Taxing Jurisdiction
| Owner: | RUIZ ALEXIS | | |
| % Ownership: | 100.0000000000% | | |
| Total Value: | $269,790 | | |
| Tax Area: | 1 - OL-140-F |
| CERFD | CURRENT EXPENSE REFUND 010 | 0.0000000000 | $269,790 | $269,790 | $0.00 | | |
| CURREXP | CURRENT EXPENSE 010 | 1.0175366760 | $269,790 | $269,790 | $274.52 | | |
| HUMNSERV | HUMAN SERVICES 119 | 0.0250000000 | $269,790 | $269,790 | $6.74 | | |
| SLDREL | SOLDIERS RELIEF 121 | 0.0155990005 | $269,790 | $269,790 | $4.21 | | |
| EMERGSER | EMS 147 | 0.3792580840 | $269,790 | $269,790 | $102.32 | | |
| EMSRFD | EMS REFUND 147 | 0.0000000000 | $269,790 | $269,790 | $0.00 | | |
| PORTRFD | PORT REFUND 640 | 0.0000000000 | $269,790 | $269,790 | $0.00 | | |
| PORTWWGEN | PORT OF WW 640 | 0.2460186015 | $269,790 | $269,790 | $66.37 | | |
| SD140BOND | SD #140 BOND 764 | 0.8342371393 | $269,790 | $269,790 | $225.07 | | |
| SD140GEN | SD #140 GENERAL 760 | 2.0646500647 | $269,790 | $269,790 | $557.02 | | |
| ST2 | STATE SCHOOL PART 2 600 | 0.8131451643 | $269,790 | $269,790 | $219.38 | | |
| STATESCHL | STATE SCHOOL 600 | 1.5158548041 | $269,790 | $269,790 | $408.96 | | |
| STREFUND | STATE REFUND LEVY 603 | 0.0000000000 | $269,790 | $269,790 | $0.00 | | |
| CWWBOND | C OF WW BOND 643 | 0.2760494372 | $269,790 | $269,790 | $74.48 | | |
| CWWGEN | CITY OF WW 631 | 1.6100204973 | $269,790 | $269,790 | $434.37 | | |
| CWWRFD | CITY OF WALLA WALLA REFUND 631 | 0.0000000000 | $269,790 | $269,790 | $0.00 | | |
| | Total Tax Rate: | 8.7973694689 | | | | | |
| | | | | Taxes w/Current Exemptions: | $2,373.44 | | |
| | | | | Taxes w/o Exemptions: | $2,373.44 | | |
Improvement / Building
| Improvement #1: | RESIDENTIAL | State Code: | 11 | 1248.0 sqft | Value: | $224,200 |
| Exterior Wall: | VINYL | Heating/Cooling: | FORCED AIR | | Number of Bathrooms: | 2 | Number of Bedrooms: | 3 | | Plumbing: | 11 | Roof Covering: | COMP SHINGLE |
|
| | Type | Description | Class CD | Sub Class CD | Year Built | Area |
| | MA | Main Area | 1 | 30 | 1915 | 1248.0 |
| | CPC | COVERED CARPORT/PATIO | 1 | 30 | 0 | 240.0 |
| | SI1 | SITE IMPROVEMENT | 1 | 30 | 0 | 1.5 |
| | BASE | BASEMENT | 1 | 30 | 1915 | 400.0 |
| | BPF | BASEMENT -PARTITIONED FINISH | 1 | 30 | 1915 | 400.0 |
| | RPS | PORCH W/STEPS,ROOF | 1 | 30 | 1915 | 120.0 |
| | UTST | Utility Storage Shed | 1 | 30 | 1915 | 256.0 |
| | WOD | Wood Deck | 1 | 30 | 1915 | 28.0 |
Sketch
Property Image
Land
| 1 | RES 1 | Converted: Residential | 0.1674 | 7294.00 | 0.00 | 0.00 | 1.00 | $45,590 | $0 |
Roll Value History
| 2025 | N/A | N/A | N/A | N/A | N/A |
| 2024 | $201,480 | $72,940 | $0 | $274,420 | $274,420 |
| 2023 | $224,200 | $45,590 | $0 | $269,790 | $269,790 |
| 2022 | $224,200 | $45,590 | $0 | $269,790 | $269,790 |
| 2021 | $172,460 | $45,590 | $0 | $218,050 | $218,050 |
| 2020 | $132,660 | $45,590 | $0 | $178,250 | $178,250 |
| 2019 | $132,660 | $45,590 | $0 | $178,250 | $178,250 |
| 2018 | $120,600 | $45,590 | $0 | $166,190 | $166,190 |
| 2017 | $131,490 | $29,200 | $0 | $160,690 | $160,690 |
| 2016 | $125,230 | $29,200 | $0 | $154,430 | $154,430 |
| 2015 | $131,820 | $29,200 | $0 | $161,020 | $161,020 |
| 2014 | $123,200 | $29,200 | $0 | $152,400 | $152,400 |
| 2013 | $123,200 | $29,200 | $0 | $152,400 | $152,400 |
| 2012 | $130,800 | $29,200 | $0 | $0 | $0 |
| 2011 | $130,800 | $29,200 | $0 | $0 | $0 |
| 2010 | $123,200 | $29,200 | $0 | $0 | $0 |
| 2009 | $140,100 | $29,200 | $0 | $0 | $0 |
| 2008 | $124,700 | $29,200 | $0 | $0 | $0 |
| 2007 | $124,700 | $29,200 | $0 | $0 | $0 |
| 2006 | $123,200 | $29,200 | $0 | $0 | $0 |
Deed and Sales History
| 1 | 05/18/2023 | SWD | STATUTORY WARRANTY DEED | SONGBIRD RENTAL COMPANY LLC | RUIZ ALEXIS | | | $290,000.00 | 145824 | 2023-02650 |
| 2 | 01/19/2022 | SWD | STATUTORY WARRANTY DEED | HEBERT SUSAN J | SONGBIRD RENTAL COMPANY LLC | | | $0.00 | 143300 | 2022-00771 |
| 3 | 08/21/2006 | WARRANTY D | WARRANTY DEED | DEJAEGHER, SCOT | HEBERT, SUSAN J | | | $158,000.00 | 111011 | 2006-10050 |
Payout Agreement
| No payout information available.. |