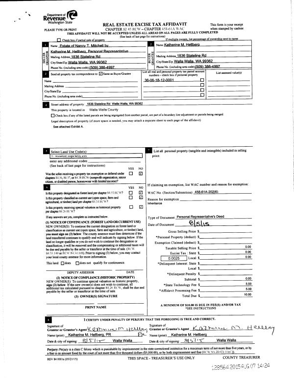
Property
Account |
| Property ID: | 16284 | Abbreviated Legal Description: | CHASE LOT 6 & E 15' OF LOT 5 BLK B LESS ALLEY |
| Parcel Number: | 360729580206 | Agent Code: | |
| Type: | Real | | |
| Tax Area: | 1 - OL-140-F | Land Use Code | 11 |
| Open Space: | N | DFL | N |
| Historic Property: | N | Remodel Property: | N |
| Multi-Family Redevelopment: | N | | |
| Township: | 7 | Section: | 29 |
| Range: | 36 |
Location |
| Address: | 239 W CHESTNUT ST WA 99362 | Mapsco: | |
| Neighborhood: | Fair Res | Map ID: | |
| Neighborhood CD: | 612011 |
Owner |
| Name: | HANSEN MARY J | Owner ID: | 56755 |
| Mailing Address: | 239 W CHESTNUT ST WALLA WALLA, WA 99362 | % Ownership: | 100.0000000000% |
| | | Exemptions: | |
Taxes and Assessment Details
Values
| (+) Improvement Homesite Value: | + | $117,880 | |
| (+) Improvement Non-Homesite Value: | + | $0 | |
| (+) Land Homesite Value: | + | $68,520 | |
| (+) Land Non-Homesite Value: | + | $0 | |
| (+) Curr Use (HS): | + | $0 | $0 |
| (+) Curr Use (NHS): | + | $0 | $0 |
| | | -------------------------- | |
| (=) Market Value: | = | $186,400 | |
| (–) Productivity Loss: | – | $0 | |
| | | -------------------------- | |
| (=) Subtotal: | = | $186,400 | |
| (+) Senior Appraised Value: | + | $0 | |
| (+) Non-Senior Appraised Value: | + | $186,400 | |
| | | -------------------------- | |
| (=) Total Appraised Value: | = | $186,400 | |
| (–) Senior Exemption Loss: | – | $0 | |
| (–) Exemption Loss: | – | $0 | |
| | | -------------------------- | |
| (=) Taxable Value: | = | $186,400 | |
Taxing Jurisdiction
| Owner: | HANSEN MARY J | | |
| % Ownership: | 100.0000000000% | | |
| Total Value: | $186,400 | | |
| Tax Area: | 1 - OL-140-F |
| CERFD | CURRENT EXPENSE REFUND 010 | 0.0000000000 | $186,400 | $186,400 | $0.00 | | |
| CURREXP | CURRENT EXPENSE 010 | 1.0175366760 | $186,400 | $186,400 | $189.67 | | |
| HUMNSERV | HUMAN SERVICES 119 | 0.0250000000 | $186,400 | $186,400 | $4.66 | | |
| SLDREL | SOLDIERS RELIEF 121 | 0.0155990005 | $186,400 | $186,400 | $2.91 | | |
| EMERGSER | EMS 147 | 0.3792580840 | $186,400 | $186,400 | $70.69 | | |
| EMSRFD | EMS REFUND 147 | 0.0000000000 | $186,400 | $186,400 | $0.00 | | |
| PORTRFD | PORT REFUND 640 | 0.0000000000 | $186,400 | $186,400 | $0.00 | | |
| PORTWWGEN | PORT OF WW 640 | 0.2460186015 | $186,400 | $186,400 | $45.86 | | |
| SD140BOND | SD #140 BOND 764 | 0.8342371393 | $186,400 | $186,400 | $155.50 | | |
| SD140GEN | SD #140 GENERAL 760 | 2.0646500647 | $186,400 | $186,400 | $384.85 | | |
| ST2 | STATE SCHOOL PART 2 600 | 0.8131451643 | $186,400 | $186,400 | $151.57 | | |
| STATESCHL | STATE SCHOOL 600 | 1.5158548041 | $186,400 | $186,400 | $282.56 | | |
| STREFUND | STATE REFUND LEVY 603 | 0.0000000000 | $186,400 | $186,400 | $0.00 | | |
| CWWBOND | C OF WW BOND 643 | 0.2760494372 | $186,400 | $186,400 | $51.46 | | |
| CWWGEN | CITY OF WW 631 | 1.6100204973 | $186,400 | $186,400 | $300.11 | | |
| CWWRFD | CITY OF WALLA WALLA REFUND 631 | 0.0000000000 | $186,400 | $186,400 | $0.00 | | |
| | Total Tax Rate: | 8.7973694689 | | | | | |
| | | | | Taxes w/Current Exemptions: | $1,639.84 | | |
| | | | | Taxes w/o Exemptions: | $1,639.84 | | |
Improvement / Building
| Improvement #1: | RESIDENTIAL | State Code: | 11 | 1193.0 sqft | Value: | $117,880 |
| Exterior Wall: | SIDING | Heating/Cooling: | FORCED AIR | | Number of Bathrooms: | 1 | Number of Bedrooms: | 2 | | Plumbing: | 7 | Roof Covering: | COMP SHINGLE |
|
| | Type | Description | Class CD | Sub Class CD | Year Built | Area |
| | MA | Main Area | 1 | 25 | 1903 | 1193.0 |
| | SI1 | SITE IMPROVEMENT | 1 | 25 | 1903 | 1.0 |
| | BASE | BASEMENT | 1 | 25 | 1903 | 300.0 |
| | WDR | WOOD DECK W/ROOF | 1 | 25 | 1903 | 138.0 |
Sketch
Property Image
Land
| 1 | RES 1 | Converted: Residential | 0.2197 | 9570.00 | 0.00 | 0.00 | 1.00 | $68,520 | $0 |
Roll Value History
| 2025 | N/A | N/A | N/A | N/A | N/A |
| 2024 | $129,670 | $68,520 | $0 | $198,190 | $198,190 |
| 2023 | $117,880 | $68,520 | $0 | $186,400 | $186,400 |
| 2022 | $168,400 | $53,590 | $0 | $221,990 | $221,990 |
| 2021 | $112,260 | $53,590 | $0 | $165,850 | $165,850 |
| 2020 | $89,810 | $53,590 | $0 | $143,400 | $12,600 |
| 2019 | $89,810 | $53,590 | $0 | $143,400 | $12,600 |
| 2018 | $69,960 | $46,800 | $0 | $116,760 | $12,600 |
| 2017 | $58,300 | $46,800 | $0 | $105,100 | $12,600 |
| 2016 | $53,000 | $46,800 | $0 | $99,800 | $12,600 |
| 2015 | $53,000 | $46,800 | $0 | $99,800 | $12,600 |
| 2014 | $53,000 | $46,800 | $0 | $99,800 | $12,600 |
| 2013 | $53,000 | $46,800 | $0 | $99,800 | $12,600 |
| 2012 | $70,600 | $46,800 | $0 | $0 | $0 |
| 2011 | $70,600 | $46,800 | $0 | $0 | $0 |
| 2010 | $70,600 | $46,800 | $0 | $0 | $0 |
| 2009 | $83,600 | $46,800 | $0 | $0 | $0 |
| 2008 | $83,600 | $46,800 | $0 | $0 | $0 |
| 2007 | $53,500 | $19,100 | $0 | $0 | $0 |
| 2006 | $53,500 | $19,100 | $0 | $0 | $0 |
Deed and Sales History
| 1 | 06/02/2015 | QCD | QUIT CLAIM DEED | HANSEN MARY JEANETTE | HANSEN MARY J | | | $0.00 | 128120 | 2015-04798 |
| 2 | 08/14/2002 | WARRANTY D | WARRANTY DEED | GOLDEN & KNOWLTON | HANSEN, MARY JEANETTE | | | | 100154 | -100154 |
| 3 | 08/14/2002 | QCD | QUIT CLAIM DEED | HANSEN, ALBERT LUDWICK | HANSEN, MARY JEANETTE | | | | 100153 | -100153 |
| 4 | 03/28/2002 | WARRANTY D | WARRANTY DEED | | | | | $69,000.00 | 99195 | 2002-0003839 |
Payout Agreement
| No payout information available.. |