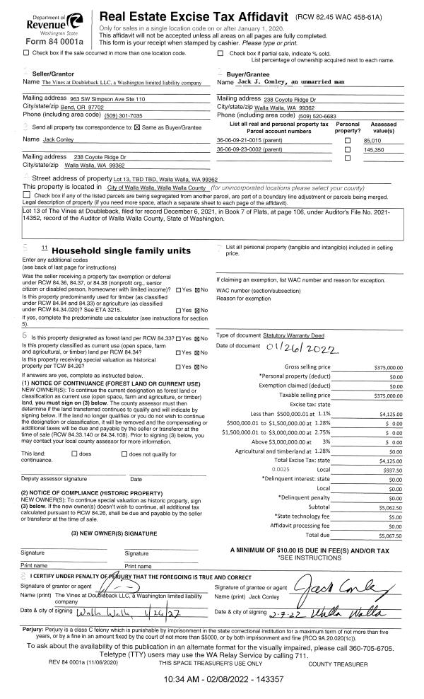
Property
Account |
| Property ID: | 16277 | Abbreviated Legal Description: | GREENS ANNEX TAX 1 LOT 2 BLK 10 |
| Parcel Number: | 360721751008 | Agent Code: | |
| Type: | Real | | |
| Tax Area: | 1 - OL-140-F | Land Use Code | 11 |
| Open Space: | N | DFL | N |
| Historic Property: | N | Remodel Property: | N |
| Multi-Family Redevelopment: | N | | |
| Township: | 7 | Section: | 21 |
| Range: | 36 |
Location |
| Address: | 1726 WALLA WALLA AVE WA 99362 | Mapsco: | |
| Neighborhood: | A-SFR | Map ID: | |
| Neighborhood CD: | 513011 |
Owner |
| Name: | KNOBEL CAROL A | Owner ID: | 67201 |
| Mailing Address: | 5442 MILL CREEK RD WALLA WALLA, WA 99362 | % Ownership: | 100.0000000000% |
| | | Exemptions: | |
Taxes and Assessment Details
Values
| (+) Improvement Homesite Value: | + | $0 | |
| (+) Improvement Non-Homesite Value: | + | $133,950 | |
| (+) Land Homesite Value: | + | $0 | |
| (+) Land Non-Homesite Value: | + | $55,470 | |
| (+) Curr Use (HS): | + | $0 | $0 |
| (+) Curr Use (NHS): | + | $0 | $0 |
| | | -------------------------- | |
| (=) Market Value: | = | $189,420 | |
| (–) Productivity Loss: | – | $0 | |
| | | -------------------------- | |
| (=) Subtotal: | = | $189,420 | |
| (+) Senior Appraised Value: | + | $0 | |
| (+) Non-Senior Appraised Value: | + | $189,420 | |
| | | -------------------------- | |
| (=) Total Appraised Value: | = | $189,420 | |
| (–) Senior Exemption Loss: | – | $0 | |
| (–) Exemption Loss: | – | $0 | |
| | | -------------------------- | |
| (=) Taxable Value: | = | $189,420 | |
Taxing Jurisdiction
| Owner: | KNOBEL CAROL A | | |
| % Ownership: | 100.0000000000% | | |
| Total Value: | $189,420 | | |
| Tax Area: | 1 - OL-140-F |
| CERFD | CURRENT EXPENSE REFUND 010 | 0.0000000000 | $189,420 | $189,420 | $0.00 | | |
| CURREXP | CURRENT EXPENSE 010 | 1.0175366760 | $189,420 | $189,420 | $192.74 | | |
| HUMNSERV | HUMAN SERVICES 119 | 0.0250000000 | $189,420 | $189,420 | $4.74 | | |
| SLDREL | SOLDIERS RELIEF 121 | 0.0155990005 | $189,420 | $189,420 | $2.95 | | |
| EMERGSER | EMS 147 | 0.3792580840 | $189,420 | $189,420 | $71.84 | | |
| EMSRFD | EMS REFUND 147 | 0.0000000000 | $189,420 | $189,420 | $0.00 | | |
| PORTRFD | PORT REFUND 640 | 0.0000000000 | $189,420 | $189,420 | $0.00 | | |
| PORTWWGEN | PORT OF WW 640 | 0.2460186015 | $189,420 | $189,420 | $46.60 | | |
| SD140BOND | SD #140 BOND 764 | 0.8342371393 | $189,420 | $189,420 | $158.02 | | |
| SD140GEN | SD #140 GENERAL 760 | 2.0646500647 | $189,420 | $189,420 | $391.09 | | |
| ST2 | STATE SCHOOL PART 2 600 | 0.8131451643 | $189,420 | $189,420 | $154.03 | | |
| STATESCHL | STATE SCHOOL 600 | 1.5158548041 | $189,420 | $189,420 | $287.13 | | |
| STREFUND | STATE REFUND LEVY 603 | 0.0000000000 | $189,420 | $189,420 | $0.00 | | |
| CWWBOND | C OF WW BOND 643 | 0.2760494372 | $189,420 | $189,420 | $52.29 | | |
| CWWGEN | CITY OF WW 631 | 1.6100204973 | $189,420 | $189,420 | $304.97 | | |
| CWWRFD | CITY OF WALLA WALLA REFUND 631 | 0.0000000000 | $189,420 | $189,420 | $0.00 | | |
| | Total Tax Rate: | 8.7973694689 | | | | | |
| | | | | Taxes w/Current Exemptions: | $1,666.40 | | |
| | | | | Taxes w/o Exemptions: | $1,666.40 | | |
Improvement / Building
| Improvement #1: | RESIDENTIAL | State Code: | 11 | 804.0 sqft | Value: | $133,950 |
| Exterior Wall: | VINYL | Heating/Cooling: | WARM & COOLED AIR | | Number of Bathrooms: | 1 | Number of Bedrooms: | 1 | | Plumbing: | 6 | Roof Covering: | COMP SHINGLE |
|
| | Type | Description | Class CD | Sub Class CD | Year Built | Area |
| | MA | Main Area | 1 | 25 | 1925 | 804.0 |
| | CPC | COVERED CARPORT/PATIO | 1 | 25 | 0 | 600.0 |
| | SI1 | SITE IMPROVEMENT | 1 | 25 | 0 | 1.0 |
| | WOD | Wood Deck | 1 | 25 | 1925 | 106.0 |
| | RESSHOP | RESIDENTIAL SHOP BLD | 1 | 25 | 1925 | 1200.0 |
Sketch
Property Image
Land
| 1 | RES 1 | Converted: Residential | 0.2037 | 8875.00 | 0.00 | 0.00 | 1.00 | $55,470 | $0 |
Roll Value History
| 2025 | N/A | N/A | N/A | N/A | N/A |
| 2024 | $168,680 | $88,750 | $0 | $257,430 | $257,430 |
| 2023 | $133,950 | $55,470 | $0 | $189,420 | $189,420 |
| 2022 | $133,950 | $55,470 | $0 | $189,420 | $189,420 |
| 2021 | $95,680 | $55,470 | $0 | $151,150 | $151,150 |
| 2020 | $56,280 | $55,470 | $0 | $111,750 | $111,750 |
| 2019 | $56,280 | $55,470 | $0 | $111,750 | $111,750 |
| 2018 | $53,600 | $55,470 | $0 | $109,070 | $109,070 |
| 2017 | $45,590 | $35,500 | $0 | $81,090 | $81,090 |
| 2016 | $43,420 | $35,500 | $0 | $78,920 | $78,920 |
| 2015 | $43,420 | $35,500 | $0 | $78,920 | $78,920 |
| 2014 | $33,400 | $35,500 | $0 | $68,900 | $68,900 |
| 2013 | $33,400 | $35,500 | $0 | $68,900 | $68,900 |
| 2012 | $33,400 | $35,500 | $0 | $0 | $0 |
| 2011 | $33,400 | $35,500 | $0 | $0 | $0 |
| 2010 | $33,400 | $35,500 | $0 | $0 | $0 |
| 2009 | $41,000 | $35,500 | $0 | $0 | $0 |
| 2008 | $41,000 | $35,500 | $0 | $0 | $0 |
| 2007 | $41,000 | $35,500 | $0 | $0 | $0 |
| 2006 | $38,800 | $17,700 | $0 | $0 | $0 |
Deed and Sales History
| 1 | 03/08/2021 | LOPA | LACK OF PROBATE AFFIDAVIT | KNOBEL JOHN EDWARD | KNOBEL CAROL A | | | $0.00 | 141185 | 2021-03477 |
| 2 | 12/16/2014 | QCD | QUIT CLAIM DEED | KNOBEL EARL W | KNOBEL JOHN EDWARD | | | $0.00 | 127172 | 2014-09356 |
| 3 | 12/19/2014 | SWP | Special Warranty Deed | KNOBEL EARL W | KNOBEL JOHN E | | | | 127146 | 2014-09251 |
| 4 | 12/01/1964 | WARRANTY D | WARRANTY DEED | | | | | $3,700.00 | 0 | 3120-463286 |
Payout Agreement
| No payout information available.. |