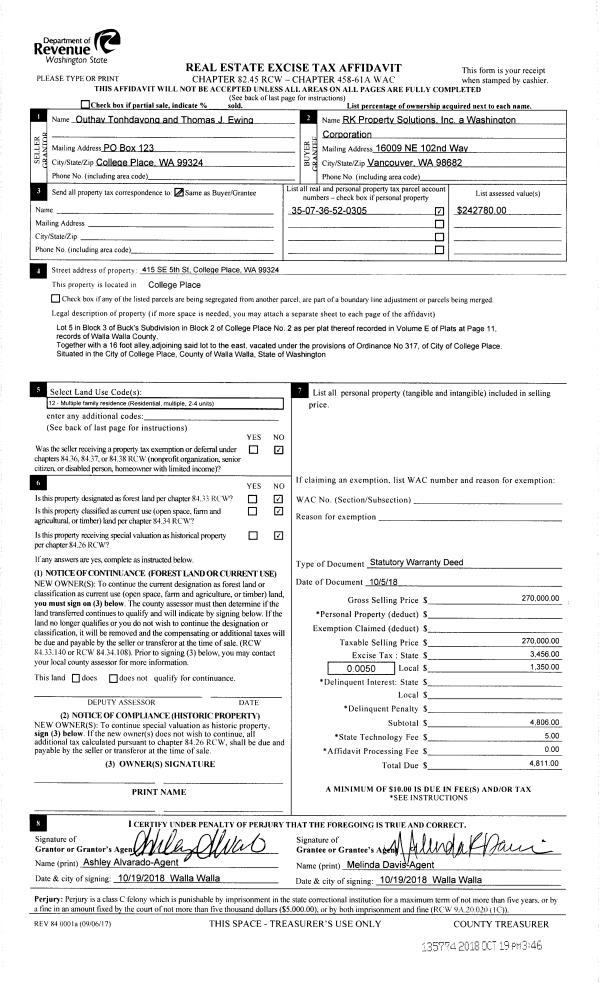
| 1 | 10/11/2019 | SWD | STATUTORY WARRANTY DEED | OWSLEY ROBERT F & JACQUELINE A | ANDERSON JOHN D | | | $160,000.00 | 137859 | 2019-08128 |
| 2 | 07/18/2008 | WARRANTY D | WARRANTY DEED | SMITH, CHRISTOPHER D & ANGELA | OWSLEY, ROBERT F & JACQUELINE | | | $145,000.00 | 115350 | 2008-07358 |
| 3 | 06/14/2006 | WARRANTY D | WARRANTY DEED | SWEENEY, MATTHEW J | SMITH, CHRISTOPHER D & ANGELA | | | $132,500.00 | 110510 | 2006-06913 |
| 4 | 08/26/2005 | WARRANTY D | WARRANTY DEED | SWEENEY, PATRICK J & LESA L | SWEENEY, MATTHEW J | | | $90,000.00 | 108335 | 2005-10607 |
| 5 | 10/07/2003 | WARRANTY D | WARRANTY DEED | SECRETARY OF HOUSING & URBAN D | SWEENEY, PATRICK J & LESA L | | | $62,000.00 | 103206 | 2003-15478 |
| 6 | 08/11/2003 | WARRANTY D | WARRANTY DEED | STANDARD TRUSTEE SERVICE CO | WELLS FARGO HOME MTG INC | | | | 102760 | 2003-12041 |
| 7 | 08/11/2003 | WARRANTY D | WARRANTY DEED | WELLS FARGO HOME MTG INC | SECRETARY OF HOUSING & URBAN~D | | | | 102761 | 2003-12042 |
| 8 | 12/24/1997 | WARRANTY D | WARRANTY DEED | | | | | $63,500.00 | 89593 | 2609-712634 |