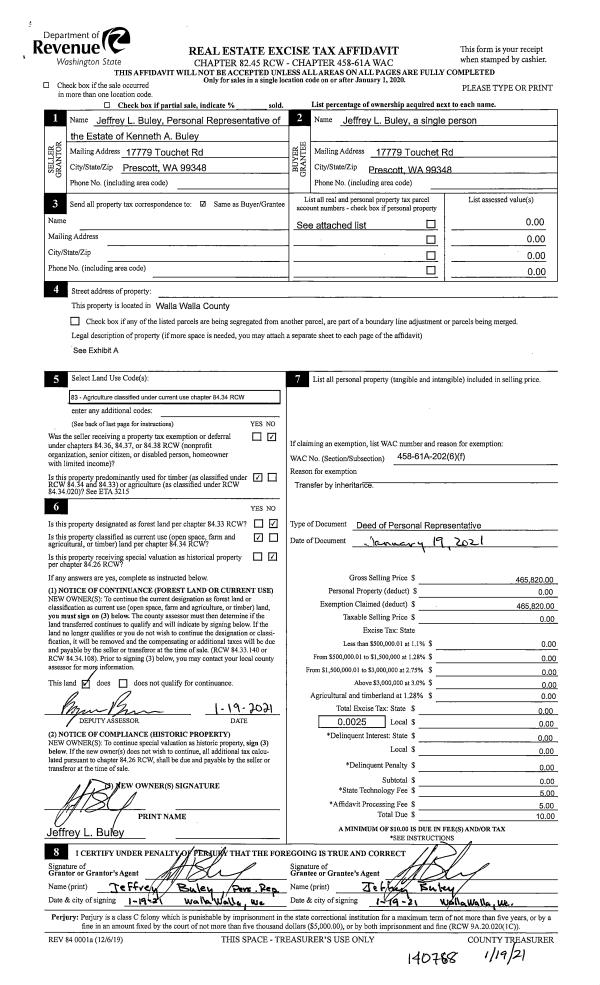
Property
Account |
| Property ID: | 16183 | Abbreviated Legal Description: | BELLA COURT LOT 6 |
| Parcel Number: | 350726750006 | Agent Code: | |
| Type: | Real | | |
| Tax Area: | 75 - CP 250 | Land Use Code | 11 |
| Open Space: | N | DFL | N |
| Historic Property: | N | Remodel Property: | N |
| Multi-Family Redevelopment: | N | | |
| Township: | 7 | Section: | 26 |
| Range: | 35 |
Location |
| Address: | 252 NW RUBY LN WA 99324 | Mapsco: | |
| Neighborhood: | A SFR | Map ID: | |
| Neighborhood CD: | 113011 |
Owner |
| Name: | STEGEMAN SHANNON & STEPHEN MORINA | Owner ID: | 71827 |
| Mailing Address: | 252 NW RUBY LN COLLEGE PLACE, WA 99324 | % Ownership: | 100.0000000000% |
| | | Exemptions: | |
Taxes and Assessment Details
Values
| (+) Improvement Homesite Value: | + | $0 | |
| (+) Improvement Non-Homesite Value: | + | $262,570 | |
| (+) Land Homesite Value: | + | $0 | |
| (+) Land Non-Homesite Value: | + | $70,000 | |
| (+) Curr Use (HS): | + | $0 | $0 |
| (+) Curr Use (NHS): | + | $0 | $0 |
| | | -------------------------- | |
| (=) Market Value: | = | $332,570 | |
| (–) Productivity Loss: | – | $0 | |
| | | -------------------------- | |
| (=) Subtotal: | = | $332,570 | |
| (+) Senior Appraised Value: | + | $0 | |
| (+) Non-Senior Appraised Value: | + | $332,570 | |
| | | -------------------------- | |
| (=) Total Appraised Value: | = | $332,570 | |
| (–) Senior Exemption Loss: | – | $0 | |
| (–) Exemption Loss: | – | $0 | |
| | | -------------------------- | |
| (=) Taxable Value: | = | $332,570 | |
Taxing Jurisdiction
| Owner: | STEGEMAN SHANNON & STEPHEN MORINA | | |
| % Ownership: | 100.0000000000% | | |
| Total Value: | $332,570 | | |
| Tax Area: | 75 - CP 250 |
| CERFD | CURRENT EXPENSE REFUND 010 | 0.0000000000 | $332,570 | $332,570 | $0.00 | | |
| CURREXP | CURRENT EXPENSE 010 | 1.0175366760 | $332,570 | $332,570 | $338.40 | | |
| HUMNSERV | HUMAN SERVICES 119 | 0.0250000000 | $332,570 | $332,570 | $8.31 | | |
| SLDREL | SOLDIERS RELIEF 121 | 0.0155990005 | $332,570 | $332,570 | $5.19 | | |
| COLLPLBOND | C OF CP BOND 644 | 0.4374241808 | $332,570 | $332,570 | $145.47 | | |
| COLLPLGEN | CITY OF CP 632 | 1.4453819216 | $332,570 | $332,570 | $480.69 | | |
| EMERGSER | EMS 147 | 0.3792580840 | $332,570 | $332,570 | $126.13 | | |
| EMSRFD | EMS REFUND 147 | 0.0000000000 | $332,570 | $332,570 | $0.00 | | |
| RURALLIB | RURAL LIBRARY 623 | 0.3710609029 | $332,570 | $332,570 | $123.40 | | |
| PORTRFD | PORT REFUND 640 | 0.0000000000 | $332,570 | $332,570 | $0.00 | | |
| PORTWWGEN | PORT OF WW 640 | 0.2460186015 | $332,570 | $332,570 | $81.82 | | |
| SD250BOND | SD #250 BOND 773 | 1.4560608159 | $332,570 | $332,570 | $484.24 | | |
| SD250GEN | SD #250 GENERAL 770 | 2.3880724087 | $332,570 | $332,570 | $794.20 | | |
| ST2 | STATE SCHOOL PART 2 600 | 0.8131451643 | $332,570 | $332,570 | $270.43 | | |
| STATESCHL | STATE SCHOOL 600 | 1.5158548041 | $332,570 | $332,570 | $504.13 | | |
| STREFUND | STATE REFUND LEVY 603 | 0.0000000000 | $332,570 | $332,570 | $0.00 | | |
| | Total Tax Rate: | 10.1104125603 | | | | | |
| | | | | Taxes w/Current Exemptions: | $3,362.41 | | |
| | | | | Taxes w/o Exemptions: | $3,362.41 | | |
Improvement / Building
| Improvement #1: | RESIDENTIAL | State Code: | 11 | 1143.0 sqft | Value: | $262,570 |
| Exterior Wall: | HARDBOARD | Heating/Cooling: | WARM & COOLED AIR | | Number of Bathrooms: | 2 | Number of Bedrooms: | 3 | | Plumbing: | 9 | Roof Covering: | COMP SHINGLE |
|
| | Type | Description | Class CD | Sub Class CD | Year Built | Area |
| | MA | Main Area | 1 | 30 | 2006 | 1143.0 |
| | SI1 | SITE IMPROVEMENT | 1 | 30 | 2006 | 2.0 |
| | ATG | Attached Garage | 1 | 30 | 2006 | 400.0 |
| | RPC | OPEN PORCH W/ROOF , CEILED | 1 | 30 | 2006 | 54.0 |
| | GFP | GAS FIREPLACE | 1 | 30 | 2006 | 1.0 |
Sketch
Property Image
Land
| 1 | RES 1 | Converted: Residential | 0.1587 | 6913.00 | 0.00 | 0.00 | 1.00 | $70,000 | $0 |
Roll Value History
| 2025 | N/A | N/A | N/A | N/A | N/A |
| 2024 | $262,570 | $70,000 | $0 | $332,570 | $332,570 |
| 2023 | $262,570 | $70,000 | $0 | $332,570 | $332,570 |
| 2022 | $218,810 | $70,000 | $0 | $288,810 | $288,810 |
| 2021 | $182,340 | $70,000 | $0 | $252,340 | $252,340 |
| 2020 | $140,260 | $70,000 | $0 | $210,260 | $210,260 |
| 2019 | $155,260 | $55,000 | $0 | $210,260 | $210,260 |
| 2018 | $110,900 | $55,000 | $0 | $165,900 | $165,900 |
| 2017 | $105,620 | $55,000 | $0 | $160,620 | $160,620 |
| 2016 | $100,590 | $55,000 | $0 | $155,590 | $155,590 |
| 2015 | $95,800 | $55,000 | $0 | $150,800 | $150,800 |
| 2014 | $95,800 | $55,000 | $0 | $150,800 | $150,800 |
| 2013 | $95,800 | $55,000 | $0 | $150,800 | $150,800 |
| 2012 | $103,700 | $55,000 | $0 | $0 | $0 |
| 2011 | $103,700 | $55,000 | $0 | $0 | $0 |
| 2010 | $103,700 | $55,000 | $0 | $0 | $0 |
| 2009 | $121,300 | $55,000 | $0 | $0 | $0 |
| 2008 | $128,200 | $45,000 | $0 | $0 | $0 |
| 2007 | $0 | $5,100 | $0 | $0 | $0 |
| 2006 | $0 | $5,100 | $0 | $0 | $0 |
Deed and Sales History
| 1 | 07/25/2025 | SWD | STATUTORY WARRANTY DEED | STEGEMAN SHANNON & STEPHEN MORINA | FARRENS ALYSHA & NATHANIAL WINDOW | | | $397,000.00 | 149751 | 2025-04319 |
| 2 | 06/17/2022 | SWD | STATUTORY WARRANTY DEED | MOLANDER KEVIN J & KAREN D | STEGEMAN SHANNON & STEPHEN MORINA | | | $390,000.00 | 144171 | 2022-05167 |
| 3 | 12/08/2017 | SWD | STATUTORY WARRANTY DEED | HERRERA FRANCES | MOLANDER KEVIN J & KAREN D | | | $224,888.00 | 133772 | 2017-09875 |
| 4 | 01/19/2017 | QCD | QUIT CLAIM DEED | HERRERA FRANCISCO | HERRERA FRANCISCO | | | $0.00 | 131786 | 2017-00490 |
| 5 | 02/01/2007 | WARRANTY D | WARRANTY DEED | MAJERUS CONSTRUCTION INC | HERRERA, FRANCES | | | $199,900.00 | 112173 | 2007-01307 |
| 6 | 06/13/2006 | WARRANTY D | WARRANTY DEED | HOOVER, KENT & BRENDA | MAJERUS CONSTRUCTION INC | | | $50,000.00 | 110499 | 2006-06862 |
Payout Agreement
| No payout information available.. |