Property
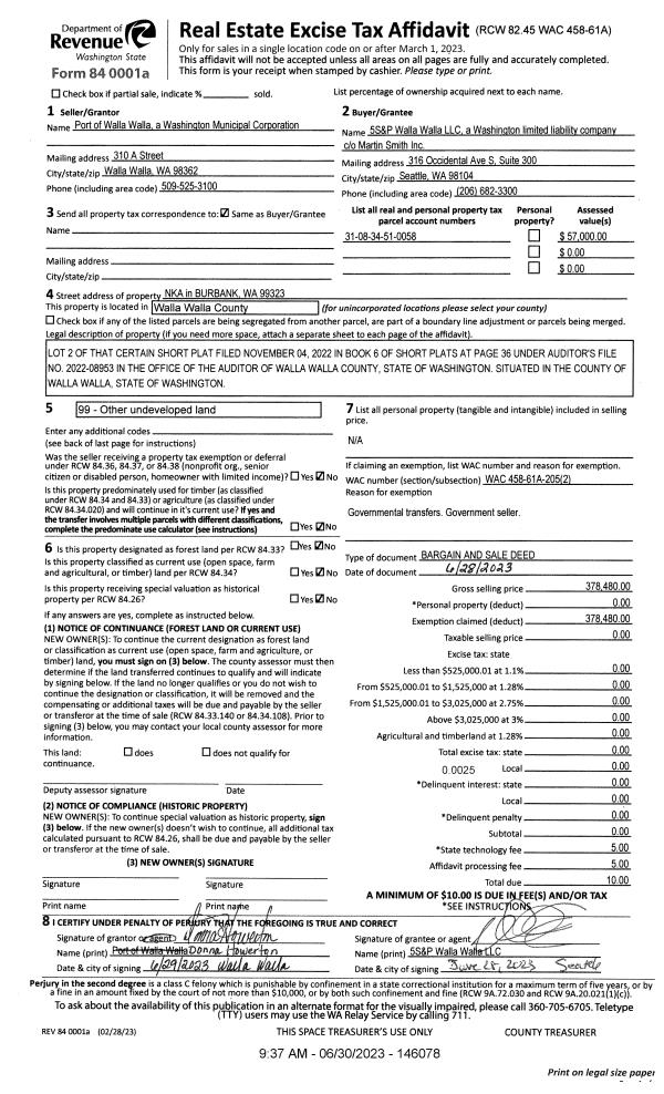
Account |
| Property ID: | 16085 | Abbreviated Legal Description: | WATERTOWN LOT 15 & W 10' OF LOT 16 BLK 10 |
| Parcel Number: | 360721731015 | Agent Code: | |
| Type: | Real | | |
| Tax Area: | 1 - OL-140-F | Land Use Code | 11 |
| Open Space: | N | DFL | N |
| Historic Property: | N | Remodel Property: | N |
| Multi-Family Redevelopment: | N | | |
| Township: | 7 | Section: | 21 |
| Range: | 36 |
Location |
| Address: | 1525 RUTH ST WA 99362 | Mapsco: | |
| Neighborhood: | A-SFR | Map ID: | |
| Neighborhood CD: | 513011 |
Owner |
| Name: | SPENDLOVE CHARISSA | Owner ID: | 67757 |
| Mailing Address: | 1525 RUTH ST WALLA WALLA, WA 99362 | % Ownership: | 100.0000000000% |
| | | Exemptions: | |
Taxes and Assessment Details
Values
| (+) Improvement Homesite Value: | + | $254,020 | |
| (+) Improvement Non-Homesite Value: | + | $0 | |
| (+) Land Homesite Value: | + | $54,690 | |
| (+) Land Non-Homesite Value: | + | $0 | |
| (+) Curr Use (HS): | + | $0 | $0 |
| (+) Curr Use (NHS): | + | $0 | $0 |
| | | -------------------------- | |
| (=) Market Value: | = | $308,710 | |
| (–) Productivity Loss: | – | $0 | |
| | | -------------------------- | |
| (=) Subtotal: | = | $308,710 | |
| (+) Senior Appraised Value: | + | $0 | |
| (+) Non-Senior Appraised Value: | + | $308,710 | |
| | | -------------------------- | |
| (=) Total Appraised Value: | = | $308,710 | |
| (–) Senior Exemption Loss: | – | $0 | |
| (–) Exemption Loss: | – | $0 | |
| | | -------------------------- | |
| (=) Taxable Value: | = | $308,710 | |
Taxing Jurisdiction
| Owner: | SPENDLOVE CHARISSA | | |
| % Ownership: | 100.0000000000% | | |
| Total Value: | $308,710 | | |
| Tax Area: | 1 - OL-140-F |
| CERFD | CURRENT EXPENSE REFUND 010 | 0.0000000000 | $308,710 | $308,710 | $0.00 | | |
| CURREXP | CURRENT EXPENSE 010 | 1.0175366760 | $308,710 | $308,710 | $314.12 | | |
| HUMNSERV | HUMAN SERVICES 119 | 0.0250000000 | $308,710 | $308,710 | $7.72 | | |
| SLDREL | SOLDIERS RELIEF 121 | 0.0155990005 | $308,710 | $308,710 | $4.82 | | |
| EMERGSER | EMS 147 | 0.3792580840 | $308,710 | $308,710 | $117.08 | | |
| EMSRFD | EMS REFUND 147 | 0.0000000000 | $308,710 | $308,710 | $0.00 | | |
| PORTRFD | PORT REFUND 640 | 0.0000000000 | $308,710 | $308,710 | $0.00 | | |
| PORTWWGEN | PORT OF WW 640 | 0.2460186015 | $308,710 | $308,710 | $75.95 | | |
| SD140BOND | SD #140 BOND 764 | 0.8342371393 | $308,710 | $308,710 | $257.54 | | |
| SD140GEN | SD #140 GENERAL 760 | 2.0646500647 | $308,710 | $308,710 | $637.38 | | |
| ST2 | STATE SCHOOL PART 2 600 | 0.8131451643 | $308,710 | $308,710 | $251.03 | | |
| STATESCHL | STATE SCHOOL 600 | 1.5158548041 | $308,710 | $308,710 | $467.96 | | |
| STREFUND | STATE REFUND LEVY 603 | 0.0000000000 | $308,710 | $308,710 | $0.00 | | |
| CWWBOND | C OF WW BOND 643 | 0.2760494372 | $308,710 | $308,710 | $85.22 | | |
| CWWGEN | CITY OF WW 631 | 1.6100204973 | $308,710 | $308,710 | $497.03 | | |
| CWWRFD | CITY OF WALLA WALLA REFUND 631 | 0.0000000000 | $308,710 | $308,710 | $0.00 | | |
| | Total Tax Rate: | 8.7973694689 | | | | | |
| | | | | Taxes w/Current Exemptions: | $2,715.85 | | |
| | | | | Taxes w/o Exemptions: | $2,715.85 | | |
Improvement / Building
| Improvement #1: | RESIDENTIAL | State Code: | 11 | 958.0 sqft | Value: | $254,020 |
| Exterior Wall: | SIDING | Heating/Cooling: | WARM & COOLED AIR | | Number of Bathrooms: | 2 | Number of Bedrooms: | 2 | | Plumbing: | 9 | Roof Covering: | COMP SHINGLE |
|
| | Type | Description | Class CD | Sub Class CD | Year Built | Area |
| | MA | Main Area | 1 | 30 | 1936 | 958.0 |
| | SI1 | SITE IMPROVEMENT | 1 | 30 | 1936 | 1.5 |
| | BASE | BASEMENT | 1 | 30 | 1936 | 644.0 |
| | BPF | BASEMENT -PARTITIONED FINISH | 1 | 30 | 1936 | 644.0 |
| | S1F | Single One Story Fireplace | 1 | 30 | 1936 | 1.0 |
| | WOD | Wood Deck | 1 | 30 | 1936 | 72.0 |
| | RPC | OPEN PORCH W/ROOF , CEILED | 1 | 30 | 1936 | 112.0 |
| | DTG | Detached Garage | 1 | 30 | 1936 | 308.0 |
Sketch
Property Image
Land
| 1 | RES 1 | Converted: Residential | 0.2009 | 8750.00 | 0.00 | 0.00 | 1.00 | $54,690 | $0 |
Roll Value History
| 2025 | N/A | N/A | N/A | N/A | N/A |
| 2024 | $225,180 | $87,500 | $0 | $312,680 | $312,680 |
| 2023 | $254,020 | $54,690 | $0 | $308,710 | $308,710 |
| 2022 | $254,020 | $54,690 | $0 | $308,710 | $308,710 |
| 2021 | $220,890 | $54,690 | $0 | $275,580 | $275,580 |
| 2020 | $147,260 | $54,690 | $0 | $201,950 | $201,950 |
| 2019 | $147,260 | $54,690 | $0 | $201,950 | $80,780 |
| 2018 | $147,260 | $54,690 | $0 | $201,950 | $80,780 |
| 2017 | $151,840 | $35,000 | $0 | $186,840 | $186,840 |
| 2016 | $144,610 | $35,000 | $0 | $179,610 | $179,610 |
| 2015 | $137,720 | $35,000 | $0 | $172,720 | $172,720 |
| 2014 | $125,200 | $35,000 | $0 | $160,200 | $160,200 |
| 2013 | $125,200 | $35,000 | $0 | $160,200 | $160,200 |
| 2012 | $125,200 | $35,000 | $0 | $0 | $0 |
| 2011 | $125,200 | $35,000 | $0 | $0 | $0 |
| 2010 | $117,600 | $35,000 | $0 | $0 | $0 |
| 2009 | $134,500 | $35,000 | $0 | $0 | $0 |
| 2008 | $134,500 | $35,000 | $0 | $0 | $0 |
| 2007 | $134,500 | $35,000 | $0 | $0 | $0 |
| 2006 | $30,500 | $17,500 | $0 | $0 | $0 |
Deed and Sales History
| 1 | 08/14/2020 | SWD | STATUTORY WARRANTY DEED | CAREY PAMELA L | SPENDLOVE CHARISSA | | | $295,000.00 | 139707 | 2020-08077 |
| 2 | 04/29/2014 | SWD | STATUTORY WARRANTY DEED | WATERS MATTHEW D & CHELSEY J | CAREY PAMELA L | | | $177,300.00 | 125787 | 2014-02879 |
| 3 | 06/09/2006 | WARRANTY D | WARRANTY DEED | MORAN, MATTHEW F | WATERS, MATTHEW D & CHELSEY J | | | $170,000.00 | 110482 | 2006-06713 |
| 4 | 09/30/2005 | WARRANTY D | WARRANTY DEED | MIDDLETON, AARON R | MORAN, MATTHEW F | | | $85,000.00 | 108644 | 2005-12210 |
| 5 | 02/10/2004 | WARRANTY D | WARRANTY DEED | SCOTT, JEFFREY | MIDDLETON, AARON R | | | $50,435.00 | 104057 | 2004-01482 |
| 6 | 02/20/2001 | WARRANTY D | WARRANTY DEED | | | | | $52,500.00 | 96639 | 3080-101581 |
Payout Agreement
| No payout information available.. |