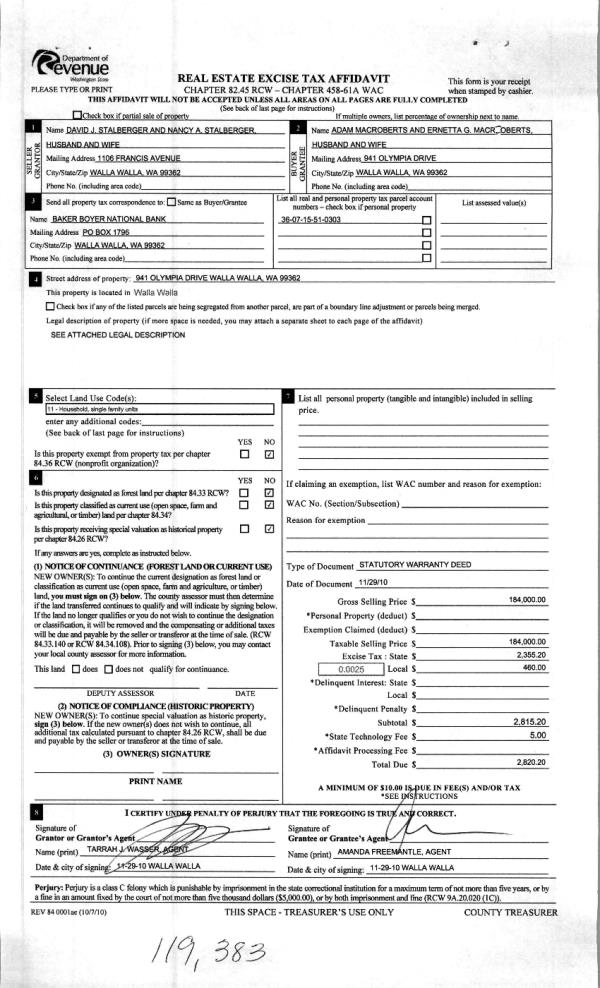
Property
Account |
| Property ID: | 16055 | Abbreviated Legal Description: | MELODY PARK LOT 15 BLK 2 |
| Parcel Number: | 360716530215 | Agent Code: | |
| Type: | Real | | |
| Tax Area: | 5 - OL-140 | Land Use Code | 11 |
| Open Space: | N | DFL | N |
| Historic Property: | N | Remodel Property: | N |
| Multi-Family Redevelopment: | N | | |
| Township: | 7 | Section: | 16 |
| Range: | 36 |
Location |
| Address: | 2036 LARK DR WA 99362 | Mapsco: | |
| Neighborhood: | A-Superior SFR | Map ID: | |
| Neighborhood CD: | 513211 |
Owner |
| Name: | SHELTON TAMI RAE | Owner ID: | 56246 |
| Mailing Address: | GAIL SHELTON & GARY SHELTON 2036 LARK DR WALLA WALLA, WA 99362 | % Ownership: | 100.0000000000% |
| | | Exemptions: | |
Taxes and Assessment Details
Values
| (+) Improvement Homesite Value: | + | $0 | |
| (+) Improvement Non-Homesite Value: | + | $267,300 | |
| (+) Land Homesite Value: | + | $0 | |
| (+) Land Non-Homesite Value: | + | $46,750 | |
| (+) Curr Use (HS): | + | $0 | $0 |
| (+) Curr Use (NHS): | + | $0 | $0 |
| | | -------------------------- | |
| (=) Market Value: | = | $314,050 | |
| (–) Productivity Loss: | – | $0 | |
| | | -------------------------- | |
| (=) Subtotal: | = | $314,050 | |
| (+) Senior Appraised Value: | + | $0 | |
| (+) Non-Senior Appraised Value: | + | $314,050 | |
| | | -------------------------- | |
| (=) Total Appraised Value: | = | $314,050 | |
| (–) Senior Exemption Loss: | – | $0 | |
| (–) Exemption Loss: | – | $0 | |
| | | -------------------------- | |
| (=) Taxable Value: | = | $314,050 | |
Taxing Jurisdiction
| Owner: | SHELTON TAMI RAE | | |
| % Ownership: | 100.0000000000% | | |
| Total Value: | $314,050 | | |
| Tax Area: | 5 - OL-140 |
| CERFD | CURRENT EXPENSE REFUND 010 | 0.0000000000 | $314,050 | $314,050 | $0.00 | | |
| CURREXP | CURRENT EXPENSE 010 | 1.0175366760 | $314,050 | $314,050 | $319.56 | | |
| HUMNSERV | HUMAN SERVICES 119 | 0.0250000000 | $314,050 | $314,050 | $7.85 | | |
| SLDREL | SOLDIERS RELIEF 121 | 0.0155990005 | $314,050 | $314,050 | $4.90 | | |
| EMERGSER | EMS 147 | 0.3792580840 | $314,050 | $314,050 | $119.11 | | |
| EMSRFD | EMS REFUND 147 | 0.0000000000 | $314,050 | $314,050 | $0.00 | | |
| PORTRFD | PORT REFUND 640 | 0.0000000000 | $314,050 | $314,050 | $0.00 | | |
| PORTWWGEN | PORT OF WW 640 | 0.2460186015 | $314,050 | $314,050 | $77.26 | | |
| SD140BOND | SD #140 BOND 764 | 0.8342371393 | $314,050 | $314,050 | $261.99 | | |
| SD140GEN | SD #140 GENERAL 760 | 2.0646500647 | $314,050 | $314,050 | $648.40 | | |
| ST2 | STATE SCHOOL PART 2 600 | 0.8131451643 | $314,050 | $314,050 | $255.37 | | |
| STATESCHL | STATE SCHOOL 600 | 1.5158548041 | $314,050 | $314,050 | $476.05 | | |
| STREFUND | STATE REFUND LEVY 603 | 0.0000000000 | $314,050 | $314,050 | $0.00 | | |
| CWWBOND | C OF WW BOND 643 | 0.2760494372 | $314,050 | $314,050 | $86.69 | | |
| CWWGEN | CITY OF WW 631 | 1.6100204973 | $314,050 | $314,050 | $505.63 | | |
| CWWRFD | CITY OF WALLA WALLA REFUND 631 | 0.0000000000 | $314,050 | $314,050 | $0.00 | | |
| | Total Tax Rate: | 8.7973694689 | | | | | |
| | | | | Taxes w/Current Exemptions: | $2,762.81 | | |
| | | | | Taxes w/o Exemptions: | $2,762.81 | | |
Improvement / Building
| Improvement #1: | RESIDENTIAL | State Code: | 11 | 960.0 sqft | Value: | $267,300 |
| Exterior Wall: | SIDING | Heating/Cooling: | FORCED AIR | | Number of Bathrooms: | 1 | Number of Bedrooms: | 3 | | Plumbing: | 6 | Roof Covering: | COMP SHINGLE |
|
| | Type | Description | Class CD | Sub Class CD | Year Built | Area |
| | MA | Main Area | 1 | 30 | 1959 | 960.0 |
| | SI1 | SITE IMPROVEMENT | 1 | 30 | 1959 | 1.5 |
| | BASE | BASEMENT | 1 | 30 | 1959 | 960.0 |
| | BPF | BASEMENT -PARTITIONED FINISH | 1 | 30 | 1959 | 633.0 |
| | RPS | PORCH W/STEPS,ROOF | 1 | 30 | 1959 | 36.0 |
| | S1F | Single One Story Fireplace | 1 | 30 | 1959 | 1.0 |
| | RPO | OPEN PORCH W/ROOF | 1 | 30 | 1959 | 68.0 |
| | CPC | COVERED CARPORT/PATIO | 1 | 30 | 1959 | 1120.0 |
Sketch
Property Image
Land
| 1 | RES 1 | Converted: Residential | 0.1717 | 7480.00 | 0.00 | 0.00 | 1.00 | $46,750 | $0 |
Roll Value History
| 2025 | N/A | N/A | N/A | N/A | N/A |
| 2024 | $257,450 | $74,800 | $0 | $332,250 | $332,250 |
| 2023 | $267,300 | $46,750 | $0 | $314,050 | $314,050 |
| 2022 | $243,000 | $46,750 | $0 | $289,750 | $289,750 |
| 2021 | $202,500 | $46,750 | $0 | $249,250 | $249,250 |
| 2020 | $150,000 | $46,750 | $0 | $196,750 | $196,750 |
| 2019 | $150,000 | $46,750 | $0 | $196,750 | $196,750 |
| 2018 | $125,000 | $46,750 | $0 | $171,750 | $171,750 |
| 2017 | $118,970 | $29,900 | $0 | $148,870 | $148,870 |
| 2016 | $99,140 | $29,900 | $0 | $129,040 | $129,040 |
| 2015 | $99,140 | $29,900 | $0 | $129,040 | $129,040 |
| 2014 | $106,600 | $29,900 | $0 | $136,500 | $136,500 |
| 2013 | $106,600 | $29,900 | $0 | $136,500 | $136,500 |
| 2012 | $106,600 | $29,900 | $0 | $0 | $0 |
| 2011 | $88,800 | $29,900 | $0 | $0 | $0 |
| 2010 | $83,100 | $29,900 | $0 | $0 | $0 |
| 2009 | $95,700 | $29,900 | $0 | $0 | $0 |
| 2008 | $95,700 | $29,900 | $0 | $0 | $0 |
| 2007 | $95,700 | $29,900 | $0 | $0 | $0 |
| 2006 | $68,400 | $15,000 | $0 | $0 | $0 |
Deed and Sales History
| 1 | 02/03/2015 | WARRANTY D | WARRANTY DEED | BANK OF NEW YORK MELLON TRUST COMPANY NA | SHELTON TAMI RAE | | | $105,900.00 | 127380 | 2015-00999 |
| 2 | 12/04/2014 | TRUSTEES D | TRUSTEE'S DEED | CATLETT KEVIN C & JENNIFER D | BANK OF NEW YORK MELLON TRUST COMPANY NA | | | $196,865.00 | 127053 | 2014-08800 |
| 3 | 05/25/2006 | WARRANTY D | WARRANTY DEED | GASCON, RUTH E ESTATE OF | CATLETT, KEVIN C & JENNIFER D | | | $145,000.00 | 110339 | 2006-06026 |
| 4 | 10/08/1968 | WARRANTY D | WARRANTY DEED | | | | | $17,250.00 | 0 | 3330-504288 |
Payout Agreement
| No payout information available.. |