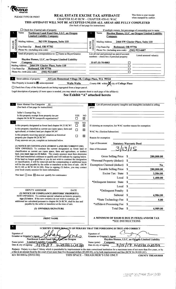
Property
Account |
| Property ID: | 16054 | Abbreviated Legal Description: | CAINS LOT 7 BLK 26 |
| Parcel Number: | 360720572607 | Agent Code: | |
| Type: | Real | | |
| Tax Area: | 1 - OL-140-F | Land Use Code | 11 |
| Open Space: | N | DFL | N |
| Historic Property: | N | Remodel Property: | N |
| Multi-Family Redevelopment: | N | | |
| Township: | 7 | Section: | 20 |
| Range: | 36 |
Location |
| Address: | 409 E CHERRY ST WA 99362 | Mapsco: | |
| Neighborhood: | F SFR | Map ID: | |
| Neighborhood CD: | 512011 |
Owner |
| Name: | CALDERONE SHANNON MARIE | Owner ID: | 61347 |
| Mailing Address: | WENDY ELIZABETH OLESON 409 E CHERRY ST WALLA WALLA, WA 99362 | % Ownership: | 100.0000000000% |
| | | Exemptions: | |
Taxes and Assessment Details
Values
| (+) Improvement Homesite Value: | + | $0 | |
| (+) Improvement Non-Homesite Value: | + | $253,430 | |
| (+) Land Homesite Value: | + | $0 | |
| (+) Land Non-Homesite Value: | + | $37,800 | |
| (+) Curr Use (HS): | + | $0 | $0 |
| (+) Curr Use (NHS): | + | $0 | $0 |
| | | -------------------------- | |
| (=) Market Value: | = | $291,230 | |
| (–) Productivity Loss: | – | $0 | |
| | | -------------------------- | |
| (=) Subtotal: | = | $291,230 | |
| (+) Senior Appraised Value: | + | $0 | |
| (+) Non-Senior Appraised Value: | + | $291,230 | |
| | | -------------------------- | |
| (=) Total Appraised Value: | = | $291,230 | |
| (–) Senior Exemption Loss: | – | $0 | |
| (–) Exemption Loss: | – | $0 | |
| | | -------------------------- | |
| (=) Taxable Value: | = | $291,230 | |
Taxing Jurisdiction
| Owner: | CALDERONE SHANNON MARIE | | |
| % Ownership: | 100.0000000000% | | |
| Total Value: | $291,230 | | |
| Tax Area: | 1 - OL-140-F |
| CERFD | CURRENT EXPENSE REFUND 010 | 0.0000000000 | $291,230 | $291,230 | $0.00 | | |
| CURREXP | CURRENT EXPENSE 010 | 1.0175366760 | $291,230 | $291,230 | $296.34 | | |
| HUMNSERV | HUMAN SERVICES 119 | 0.0250000000 | $291,230 | $291,230 | $7.28 | | |
| SLDREL | SOLDIERS RELIEF 121 | 0.0155990005 | $291,230 | $291,230 | $4.54 | | |
| EMERGSER | EMS 147 | 0.3792580840 | $291,230 | $291,230 | $110.45 | | |
| EMSRFD | EMS REFUND 147 | 0.0000000000 | $291,230 | $291,230 | $0.00 | | |
| PORTRFD | PORT REFUND 640 | 0.0000000000 | $291,230 | $291,230 | $0.00 | | |
| PORTWWGEN | PORT OF WW 640 | 0.2460186015 | $291,230 | $291,230 | $71.65 | | |
| SD140BOND | SD #140 BOND 764 | 0.8342371393 | $291,230 | $291,230 | $242.95 | | |
| SD140GEN | SD #140 GENERAL 760 | 2.0646500647 | $291,230 | $291,230 | $601.29 | | |
| ST2 | STATE SCHOOL PART 2 600 | 0.8131451643 | $291,230 | $291,230 | $236.81 | | |
| STATESCHL | STATE SCHOOL 600 | 1.5158548041 | $291,230 | $291,230 | $441.46 | | |
| STREFUND | STATE REFUND LEVY 603 | 0.0000000000 | $291,230 | $291,230 | $0.00 | | |
| CWWBOND | C OF WW BOND 643 | 0.2760494372 | $291,230 | $291,230 | $80.39 | | |
| CWWGEN | CITY OF WW 631 | 1.6100204973 | $291,230 | $291,230 | $468.89 | | |
| CWWRFD | CITY OF WALLA WALLA REFUND 631 | 0.0000000000 | $291,230 | $291,230 | $0.00 | | |
| | Total Tax Rate: | 8.7973694689 | | | | | |
| | | | | Taxes w/Current Exemptions: | $2,562.05 | | |
| | | | | Taxes w/o Exemptions: | $2,562.05 | | |
Improvement / Building
| Improvement #1: | RESIDENTIAL | State Code: | 11 | 1833.0 sqft | Value: | $253,430 |
| Exterior Wall: | SIDING | Heating/Cooling: | WARM & COOLED AIR | | Number of Bathrooms: | 1 | Number of Bedrooms: | 3 | | Plumbing: | 7 | Roof Covering: | COMP SHINGLE |
|
| | Type | Description | Class CD | Sub Class CD | Year Built | Area |
| | MA | Main Area | 4 | 30 | 1895 | 1833.0 |
| | SI1 | SITE IMPROVEMENT | 4 | 30 | 0 | 1.0 |
| | UPFL | Upper Floor (included in main area) | 4 | 30 | 0 | 812.0 |
| | WOD | Wood Deck | 4 | 30 | 0 | 32.0 |
Sketch
Property Image
Land
| 1 | RES 1 | Converted: Residential | 0.1653 | 7200.00 | 0.00 | 0.00 | 1.00 | $37,800 | $0 |
Roll Value History
| 2025 | N/A | N/A | N/A | N/A | N/A |
| 2024 | $292,350 | $64,800 | $0 | $357,150 | $357,150 |
| 2023 | $253,430 | $37,800 | $0 | $291,230 | $291,230 |
| 2022 | $220,380 | $37,800 | $0 | $258,180 | $258,180 |
| 2021 | $191,630 | $37,800 | $0 | $229,430 | $229,430 |
| 2020 | $166,640 | $37,800 | $0 | $204,440 | $204,440 |
| 2019 | $166,640 | $37,800 | $0 | $204,440 | $204,440 |
| 2018 | $158,700 | $37,800 | $0 | $196,500 | $196,500 |
| 2017 | $139,460 | $21,600 | $0 | $161,060 | $161,060 |
| 2016 | $107,280 | $21,600 | $0 | $128,880 | $128,880 |
| 2015 | $107,280 | $21,600 | $0 | $128,880 | $128,880 |
| 2014 | $89,400 | $21,600 | $0 | $111,000 | $111,000 |
| 2013 | $89,400 | $21,600 | $0 | $111,000 | $111,000 |
| 2012 | $28,800 | $21,600 | $0 | $0 | $0 |
| 2011 | $41,400 | $21,600 | $0 | $0 | $0 |
| 2010 | $41,300 | $21,600 | $0 | $0 | $0 |
| 2009 | $48,300 | $21,600 | $0 | $0 | $0 |
| 2008 | $48,300 | $21,600 | $0 | $0 | $0 |
| 2007 | $48,300 | $21,600 | $0 | $0 | $0 |
| 2006 | $22,100 | $14,400 | $0 | $0 | $0 |
Deed and Sales History
| 1 | 07/17/2017 | SWD | STATUTORY WARRANTY DEED | BRIDGES BILLIE J | CALDERONE SHANNON MARIE | | | $204,000.00 | 132789 | 2017-05459 |
| 2 | 02/28/2011 | WARRANTY D | WARRANTY DEED | SINCLAIR, TIMOTHY P & KATHY S | BRIDGES, BILLIE J | | | $50,000.00 | 119796 | 2011-01811 |
| 3 | 07/18/2008 | WARRANTY D | WARRANTY DEED | DOBRIN, ANTHONY G & ESTHER L T | SINCLAIR, TIMOTHY P & KATHY S | | | $84,000.00 | 115359 | 2008-07418 |
| 4 | 05/26/2006 | WARRANTY D | WARRANTY DEED | ANDERSON, STEVEN J | DOBRIN, ANTHONY G & ESTHER L~T | | | $70,000.00 | 110356 | 2006-06100 |
| 5 | 06/21/1976 | WARRANTY D | WARRANTY DEED | | | | | $4,000.00 | 0 | 4303-01000 |
Payout Agreement
| No payout information available.. |