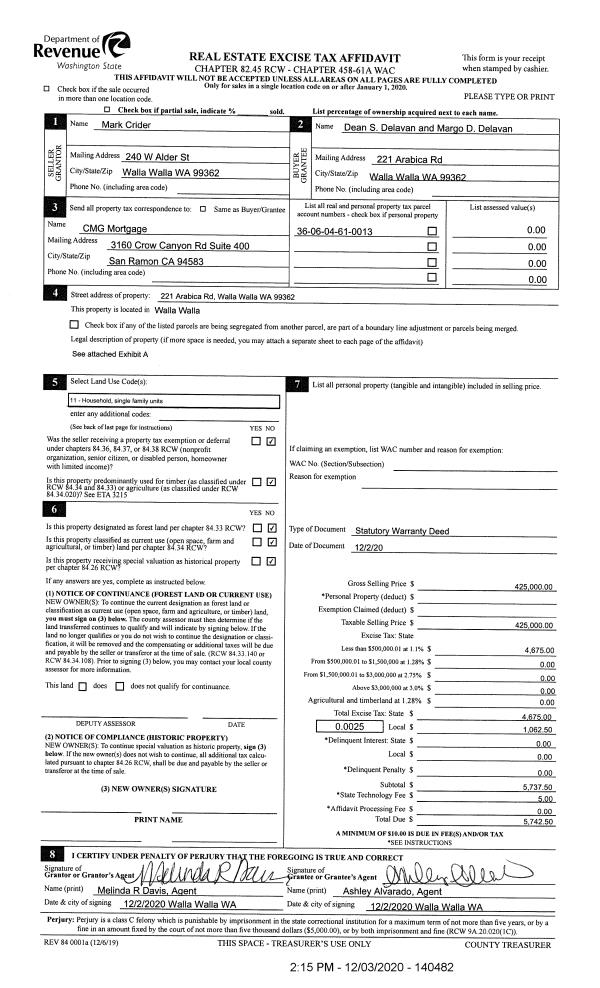
Property
Account |
| Property ID: | 15971 | Abbreviated Legal Description: | PARKVIEW LOT 10 |
| Parcel Number: | 360720680010 | Agent Code: | |
| Type: | Real | | |
| Tax Area: | 1 - OL-140-F | Land Use Code | 13 |
| Open Space: | N | DFL | N |
| Historic Property: | N | Remodel Property: | N |
| Multi-Family Redevelopment: | N | | |
| Township: | 7 | Section: | 20 |
| Range: | 36 |
Location |
| Address: | 950 E SUMACH ST WA 99362 | Mapsco: | |
| Neighborhood: | WW Downtown Core area #3 | Map ID: | |
| Neighborhood CD: | 5343 |
Owner |
| Name: | WILLIAM DRYDEN LIVING TRUST | Owner ID: | 71614 |
| Mailing Address: | 3494 S PHEASANT TAIL WAY BOISE, ID 83716 | % Ownership: | 100.0000000000% |
| | | Exemptions: | |
Taxes and Assessment Details
Values
| (+) Improvement Homesite Value: | + | $0 | |
| (+) Improvement Non-Homesite Value: | + | $164,400 | |
| (+) Land Homesite Value: | + | $0 | |
| (+) Land Non-Homesite Value: | + | $89,800 | |
| (+) Curr Use (HS): | + | $0 | $0 |
| (+) Curr Use (NHS): | + | $0 | $0 |
| | | -------------------------- | |
| (=) Market Value: | = | $254,200 | |
| (–) Productivity Loss: | – | $0 | |
| | | -------------------------- | |
| (=) Subtotal: | = | $254,200 | |
| (+) Senior Appraised Value: | + | $0 | |
| (+) Non-Senior Appraised Value: | + | $254,200 | |
| | | -------------------------- | |
| (=) Total Appraised Value: | = | $254,200 | |
| (–) Senior Exemption Loss: | – | $0 | |
| (–) Exemption Loss: | – | $0 | |
| | | -------------------------- | |
| (=) Taxable Value: | = | $254,200 | |
Taxing Jurisdiction
| Owner: | WILLIAM DRYDEN LIVING TRUST | | |
| % Ownership: | 100.0000000000% | | |
| Total Value: | $254,200 | | |
| Tax Area: | 1 - OL-140-F |
| CERFD | CURRENT EXPENSE REFUND 010 | 0.0000000000 | $254,200 | $254,200 | $0.00 | | |
| CURREXP | CURRENT EXPENSE 010 | 1.0175366760 | $254,200 | $254,200 | $258.66 | | |
| HUMNSERV | HUMAN SERVICES 119 | 0.0250000000 | $254,200 | $254,200 | $6.36 | | |
| SLDREL | SOLDIERS RELIEF 121 | 0.0155990005 | $254,200 | $254,200 | $3.97 | | |
| EMERGSER | EMS 147 | 0.3792580840 | $254,200 | $254,200 | $96.41 | | |
| EMSRFD | EMS REFUND 147 | 0.0000000000 | $254,200 | $254,200 | $0.00 | | |
| PORTRFD | PORT REFUND 640 | 0.0000000000 | $254,200 | $254,200 | $0.00 | | |
| PORTWWGEN | PORT OF WW 640 | 0.2460186015 | $254,200 | $254,200 | $62.54 | | |
| SD140BOND | SD #140 BOND 764 | 0.8342371393 | $254,200 | $254,200 | $212.06 | | |
| SD140GEN | SD #140 GENERAL 760 | 2.0646500647 | $254,200 | $254,200 | $524.83 | | |
| ST2 | STATE SCHOOL PART 2 600 | 0.8131451643 | $254,200 | $254,200 | $206.70 | | |
| STATESCHL | STATE SCHOOL 600 | 1.5158548041 | $254,200 | $254,200 | $385.33 | | |
| STREFUND | STATE REFUND LEVY 603 | 0.0000000000 | $254,200 | $254,200 | $0.00 | | |
| CWWBOND | C OF WW BOND 643 | 0.2760494372 | $254,200 | $254,200 | $70.17 | | |
| CWWGEN | CITY OF WW 631 | 1.6100204973 | $254,200 | $254,200 | $409.27 | | |
| CWWRFD | CITY OF WALLA WALLA REFUND 631 | 0.0000000000 | $254,200 | $254,200 | $0.00 | | |
| | Total Tax Rate: | 8.7973694689 | | | | | |
| | | | | Taxes w/Current Exemptions: | $2,236.30 | | |
| | | | | Taxes w/o Exemptions: | $2,236.30 | | |
Improvement / Building
| Improvement #1: | COMMERCIAL | State Code: | 13 | 5942.0 sqft | Value: | $164,400 |
| | Type | Description | Class CD | Sub Class CD | Year Built | Area |
| | MA | Main Area | D | * | 1979 | 5942.0 |
| | SI1 | SITE IMPROVEMENT | D | * | 1979 | 6.0 |
| | BLW | WOOD BALCONIES | D | * | 1979 | 340.0 |
| | EWS | EXT WOOD STAIRS | D | * | 1979 | 2.0 |
| | PRKSTLA | PARK STALL AVERAGE | D | * | 1979 | 11.0 |
Sketch
Property Image
Land
| 1 | COM 1 | Converted: Commercial | 0.4580 | 19950.00 | 0.00 | 0.00 | 1.00 | $89,800 | $0 |
Roll Value History
| 2025 | N/A | N/A | N/A | N/A | N/A |
| 2024 | $249,000 | $107,500 | $0 | $356,500 | $356,500 |
| 2023 | $164,400 | $89,800 | $0 | $254,200 | $254,200 |
| 2022 | $164,400 | $89,800 | $0 | $254,200 | $254,200 |
| 2021 | $164,400 | $89,800 | $0 | $254,200 | $254,200 |
| 2020 | $164,400 | $89,800 | $0 | $254,200 | $254,200 |
| 2019 | $164,400 | $89,800 | $0 | $254,200 | $254,200 |
| 2018 | $164,400 | $89,800 | $0 | $254,200 | $254,200 |
| 2017 | $160,700 | $89,800 | $0 | $250,500 | $250,500 |
| 2016 | $160,700 | $89,800 | $0 | $250,500 | $250,500 |
| 2015 | $160,700 | $89,800 | $0 | $250,500 | $250,500 |
| 2014 | $160,700 | $89,800 | $0 | $250,500 | $250,500 |
| 2013 | $160,700 | $89,800 | $0 | $250,500 | $250,500 |
| 2012 | $193,700 | $47,500 | $0 | $0 | $0 |
| 2011 | $193,700 | $47,500 | $0 | $0 | $0 |
| 2010 | $193,700 | $47,500 | $0 | $0 | $0 |
| 2009 | $193,700 | $47,500 | $0 | $0 | $0 |
| 2008 | $193,700 | $47,500 | $0 | $0 | $0 |
| 2007 | $193,700 | $47,500 | $0 | $0 | $0 |
| 2006 | $167,400 | $34,900 | $0 | $0 | $0 |
Deed and Sales History
| 1 | 05/11/2022 | SWD | STATUTORY WARRANTY DEED | DAVIS BRIAN & NANCY | WILLIAM DRYDEN LIVING TRUST | | | $167,200.00 | 143922 | 2022-04009 |
| 2 | 01/15/2021 | QCD | QUIT CLAIM DEED | DRYDEN WILLIAM A JR | DRYDEN WILLIAM LIVING TRUST | | | $0.00 | 140775 | 2021-00786 |
| 3 | 10/28/2020 | DPR | DEED OF PERSONAL REPRESENTATIVE | DRYDEN WILLIAM & SUSAN | DRYDEN WILLIAM A JR | | | | 140201 | 2020-11253 |
| 4 | 09/29/2000 | WARRANTY D | WARRANTY DEED | | | | | $213,500.00 | 95894 | 3030-009319 |
Payout Agreement
| No payout information available.. |