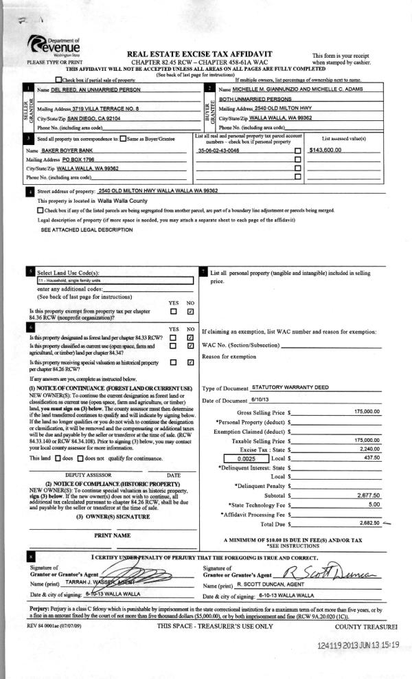
Property
Account |
| Property ID: | 15905 | Abbreviated Legal Description: | WALLULA TOWNSITE LOTS 22, 23, 24, 25 & 26 BLOCK 1 |
| Parcel Number: | 310714510138 | Agent Code: | |
| Type: | Real | | |
| Tax Area: | 327 - 400-5-WI-C-M | Land Use Code | 11 |
| Open Space: | N | DFL | N |
| Historic Property: | N | Remodel Property: | N |
| Multi-Family Redevelopment: | N | | |
| Township: | 7 | Section: | 14 |
| Range: | 31 |
Location |
| Address: | 361 BURDETT WAY WA 99363 | Mapsco: | |
| Neighborhood: | Wallula A SFR | Map ID: | |
| Neighborhood CD: | 213811 |
Owner |
| Name: | TRI CONSTRUCTION LLC | Owner ID: | 73984 |
| Mailing Address: | 3821 W HAVSTAD ST PASCO, WA 99301 | % Ownership: | 100.0000000000% |
| | | Exemptions: | |
Taxes and Assessment Details
Values
| (+) Improvement Homesite Value: | + | $0 | |
| (+) Improvement Non-Homesite Value: | + | $143,700 | |
| (+) Land Homesite Value: | + | $0 | |
| (+) Land Non-Homesite Value: | + | $39,770 | |
| (+) Curr Use (HS): | + | $0 | $0 |
| (+) Curr Use (NHS): | + | $0 | $0 |
| | | -------------------------- | |
| (=) Market Value: | = | $183,470 | |
| (–) Productivity Loss: | – | $0 | |
| | | -------------------------- | |
| (=) Subtotal: | = | $183,470 | |
| (+) Senior Appraised Value: | + | $0 | |
| (+) Non-Senior Appraised Value: | + | $183,470 | |
| | | -------------------------- | |
| (=) Total Appraised Value: | = | $183,470 | |
| (–) Senior Exemption Loss: | – | $0 | |
| (–) Exemption Loss: | – | $0 | |
| | | -------------------------- | |
| (=) Taxable Value: | = | $183,470 | |
Taxing Jurisdiction
| Owner: | TRI CONSTRUCTION LLC | | |
| % Ownership: | 100.0000000000% | | |
| Total Value: | $183,470 | | |
| Tax Area: | 327 - 400-5-WI-C-M |
| CERFD | CURRENT EXPENSE REFUND 010 | 0.0000000000 | $183,470 | $183,470 | $0.00 | | |
| CURREXP | CURRENT EXPENSE 010 | 1.0175366760 | $183,470 | $183,470 | $186.69 | | |
| HUMNSERV | HUMAN SERVICES 119 | 0.0250000000 | $183,470 | $183,470 | $4.59 | | |
| SLDREL | SOLDIERS RELIEF 121 | 0.0155990005 | $183,470 | $183,470 | $2.86 | | |
| EMERGSER | EMS 147 | 0.3792580840 | $183,470 | $183,470 | $69.58 | | |
| EMSRFD | EMS REFUND 147 | 0.0000000000 | $183,470 | $183,470 | $0.00 | | |
| FD5EXP | FD #5 EXPENSE 689 | 1.2045331840 | $183,470 | $183,470 | $221.00 | | |
| RLBRFD | RURAL LIBRARY REFUND 623 | 0.0000000000 | $183,470 | $183,470 | $0.00 | | |
| RURALLIB | RURAL LIBRARY 623 | 0.3710609029 | $183,470 | $183,470 | $68.08 | | |
| PORTRFD | PORT REFUND 640 | 0.0000000000 | $183,470 | $183,470 | $0.00 | | |
| PORTWWGEN | PORT OF WW 640 | 0.2460186015 | $183,470 | $183,470 | $45.14 | | |
| SD400BOND | SD #400 BOND 793 | 0.0000000000 | $183,470 | $183,470 | $0.00 | | |
| SD400CAP | SD #400 CP 792 | 0.3443722657 | $183,470 | $183,470 | $63.18 | | |
| SD400GEN | SD #400 GENERAL 790 | 1.9278469916 | $183,470 | $183,470 | $353.70 | | |
| ST2 | STATE SCHOOL PART 2 600 | 0.8131451643 | $183,470 | $183,470 | $149.19 | | |
| STATESCHL | STATE SCHOOL 600 | 1.5158548041 | $183,470 | $183,470 | $278.11 | | |
| STREFUND | STATE REFUND LEVY 603 | 0.0000000000 | $183,470 | $183,470 | $0.00 | | |
| COROAD | COUNTY ROAD 115 | 1.6549953990 | $183,470 | $183,470 | $303.64 | | |
| CRPRD | COUNTY ROAD REFUND 115 | 0.0000000000 | $183,470 | $183,470 | $0.00 | | |
| | Total Tax Rate: | 9.5152210736 | | | | | |
| | | | | Taxes w/Current Exemptions: | $1,745.76 | | |
| | | | | Taxes w/o Exemptions: | $1,745.76 | | |
Improvement / Building
| Improvement #1: | RESIDENTIAL | State Code: | 11 | 864.0 sqft | Value: | $143,700 |
| Exterior Wall: | PLYWOOD | Heating/Cooling: | WARM & COOLED AIR | | Number of Bathrooms: | 1 | Number of Bedrooms: | 2 | | Plumbing: | 6 | Roof Covering: | COMP SHINGLE |
|
| | Type | Description | Class CD | Sub Class CD | Year Built | Area |
| | MA | Main Area | 1 | 20 | 1981 | 864.0 |
| | SI1 | SITE IMPROVEMENT | 1 | 20 | 1981 | 1.0 |
| | BASE | BASEMENT | 1 | 20 | 1981 | 864.0 |
| | OPS | OPEN PORCH W/STEPS | 1 | 20 | 1981 | 240.0 |
| | POL2 | POLE BUILDING-CONCRETE | 1 | 20 | 1981 | 960.0 |
| | S1F | Single One Story Fireplace | 1 | 20 | 1981 | 1.0 |
Sketch
Property Image
Land
| 1 | RES 1 | Converted: Residential | 0.5500 | 23958.00 | 0.00 | 0.00 | 1.00 | $39,770 | $0 |
Roll Value History
| 2025 | N/A | N/A | N/A | N/A | N/A |
| 2024 | $256,230 | $39,770 | $0 | $296,000 | $296,000 |
| 2023 | $143,700 | $39,770 | $0 | $183,470 | $183,470 |
| 2022 | $102,860 | $39,770 | $0 | $142,630 | $142,630 |
| 2021 | $85,720 | $39,770 | $0 | $125,490 | $125,490 |
| 2020 | $93,320 | $13,000 | $0 | $106,320 | $106,320 |
| 2019 | $93,320 | $13,000 | $0 | $106,320 | $106,320 |
| 2018 | $84,840 | $13,000 | $0 | $97,840 | $97,840 |
| 2017 | $84,840 | $13,000 | $0 | $97,840 | $97,840 |
| 2016 | $84,840 | $13,000 | $0 | $97,840 | $97,840 |
| 2015 | $84,840 | $13,000 | $0 | $97,840 | $97,840 |
| 2014 | $60,600 | $13,000 | $0 | $73,600 | $73,600 |
| 2013 | $60,600 | $13,000 | $0 | $73,600 | $73,600 |
| 2012 | $60,600 | $13,000 | $0 | $0 | $0 |
| 2011 | $51,000 | $13,000 | $0 | $0 | $0 |
| 2010 | $51,000 | $13,000 | $0 | $0 | $0 |
| 2009 | $39,800 | $12,100 | $0 | $0 | $0 |
| 2008 | $39,700 | $12,200 | $0 | $0 | $0 |
| 2007 | $39,700 | $12,200 | $0 | $0 | $0 |
| 2006 | $60,600 | $13,000 | $0 | $0 | $0 |
Deed and Sales History
| 1 | 02/07/2024 | SWD | STATUTORY WARRANTY DEED | TRI CONSTRUCTION LLC | WILSON TANNER MICHAEL | | | $335,000.00 | 147119 | 2024-00634 |
| 2 | 08/14/2023 | SWD | STATUTORY WARRANTY DEED | MC KEOWN JEREMY F ESTATE OF | TRI CONSTRUCTION LLC | | | $185,000.00 | 146323 | 2023-04721 |
| 3 | 01/09/2015 | SWD | STATUTORY WARRANTY DEED | WHIPPLE CHARLES E ESTATE OF | MC KEOWN JEREMY F ESTATE OF | | | $99,900.00 | 127241 | 2015-00193 |
| 4 | 06/30/2000 | WARRANTY D | WARRANTY DEED | | | | | | 95380 | 3000-006310 |
Payout Agreement
| No payout information available.. |