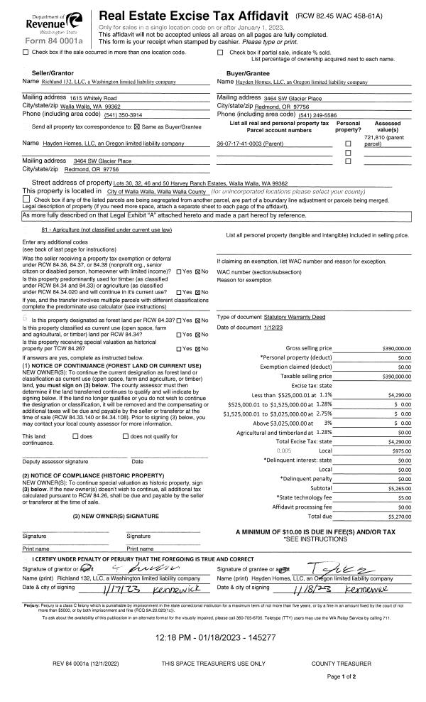
Property
Account |
| Property ID: | 15787 | Abbreviated Legal Description: | 28-7-36 TAX 17B |
| Parcel Number: | 360728120039 | Agent Code: | |
| Type: | Real | | |
| Tax Area: | 1 - OL-140-F | Land Use Code | 11 |
| Open Space: | N | DFL | N |
| Historic Property: | N | Remodel Property: | N |
| Multi-Family Redevelopment: | N | | |
| Township: | 7 | Section: | 28 |
| Range: | 36 |
Location |
| Address: | 613 FERN AVE WA 99362 | Mapsco: | |
| Neighborhood: | G Res | Map ID: | |
| Neighborhood CD: | 614011 |
Owner |
| Name: | FRIEDEMANN KURT | Owner ID: | 71065 |
| Mailing Address: | 613 FERN AVE WALLA WALLA, WA 99362 | % Ownership: | 100.0000000000% |
| | | Exemptions: | |
Taxes and Assessment Details
Values
| (+) Improvement Homesite Value: | + | $0 | |
| (+) Improvement Non-Homesite Value: | + | $447,130 | |
| (+) Land Homesite Value: | + | $0 | |
| (+) Land Non-Homesite Value: | + | $87,120 | |
| (+) Curr Use (HS): | + | $0 | $0 |
| (+) Curr Use (NHS): | + | $0 | $0 |
| | | -------------------------- | |
| (=) Market Value: | = | $534,250 | |
| (–) Productivity Loss: | – | $0 | |
| | | -------------------------- | |
| (=) Subtotal: | = | $534,250 | |
| (+) Senior Appraised Value: | + | $0 | |
| (+) Non-Senior Appraised Value: | + | $534,250 | |
| | | -------------------------- | |
| (=) Total Appraised Value: | = | $534,250 | |
| (–) Senior Exemption Loss: | – | $0 | |
| (–) Exemption Loss: | – | $0 | |
| | | -------------------------- | |
| (=) Taxable Value: | = | $534,250 | |
Taxing Jurisdiction
| Owner: | FRIEDEMANN KURT | | |
| % Ownership: | 100.0000000000% | | |
| Total Value: | $534,250 | | |
| Tax Area: | 1 - OL-140-F |
| CERFD | CURRENT EXPENSE REFUND 010 | 0.0000000000 | $534,250 | $534,250 | $0.00 | | |
| CURREXP | CURRENT EXPENSE 010 | 1.0175366760 | $534,250 | $534,250 | $543.62 | | |
| HUMNSERV | HUMAN SERVICES 119 | 0.0250000000 | $534,250 | $534,250 | $13.36 | | |
| SLDREL | SOLDIERS RELIEF 121 | 0.0155990005 | $534,250 | $534,250 | $8.33 | | |
| EMERGSER | EMS 147 | 0.3792580840 | $534,250 | $534,250 | $202.62 | | |
| EMSRFD | EMS REFUND 147 | 0.0000000000 | $534,250 | $534,250 | $0.00 | | |
| PORTRFD | PORT REFUND 640 | 0.0000000000 | $534,250 | $534,250 | $0.00 | | |
| PORTWWGEN | PORT OF WW 640 | 0.2460186015 | $534,250 | $534,250 | $131.44 | | |
| SD140BOND | SD #140 BOND 764 | 0.8342371393 | $534,250 | $534,250 | $445.69 | | |
| SD140GEN | SD #140 GENERAL 760 | 2.0646500647 | $534,250 | $534,250 | $1,103.04 | | |
| ST2 | STATE SCHOOL PART 2 600 | 0.8131451643 | $534,250 | $534,250 | $434.42 | | |
| STATESCHL | STATE SCHOOL 600 | 1.5158548041 | $534,250 | $534,250 | $809.85 | | |
| STREFUND | STATE REFUND LEVY 603 | 0.0000000000 | $534,250 | $534,250 | $0.00 | | |
| CWWBOND | C OF WW BOND 643 | 0.2760494372 | $534,250 | $534,250 | $147.48 | | |
| CWWGEN | CITY OF WW 631 | 1.6100204973 | $534,250 | $534,250 | $860.15 | | |
| CWWRFD | CITY OF WALLA WALLA REFUND 631 | 0.0000000000 | $534,250 | $534,250 | $0.00 | | |
| | Total Tax Rate: | 8.7973694689 | | | | | |
| | | | | Taxes w/Current Exemptions: | $4,700.00 | | |
| | | | | Taxes w/o Exemptions: | $4,700.00 | | |
Improvement / Building
| Improvement #1: | RESIDENTIAL | State Code: | 11 | 2159.0 sqft | Value: | $447,130 |
| Exterior Wall: | HARDBOARD | Heating/Cooling: | MINI-SPLIT HP SYSTEM | | Number of Bathrooms: | 2 | Number of Bedrooms: | 4 | | Plumbing: | 15 | Roof Covering: | COMP SHINGLE |
|
| | Type | Description | Class CD | Sub Class CD | Year Built | Area |
| | MA | Main Area | 1 | 35 | 2020 | 2159.0 |
| | SI1 | SITE IMPROVEMENT | 1 | 35 | 2020 | 4.0 |
| | WDR | WOOD DECK W/ROOF | 1 | 35 | 2020 | 95.0 |
| | WDR | WOOD DECK W/ROOF | 1 | 35 | 2020 | 208.0 |
| | ATG | Attached Garage | 1 | 35 | 2020 | 484.0 |
| | GFP | GAS FIREPLACE | 1 | 35 | 2020 | 1.0 |
Sketch
Property Image
Land
| 1 | RES 1 | Converted: Residential | 0.2000 | 8712.00 | 0.00 | 0.00 | 1.00 | $87,120 | $0 |
Roll Value History
| 2025 | N/A | N/A | N/A | N/A | N/A |
| 2024 | $447,130 | $87,120 | $0 | $534,250 | $534,250 |
| 2023 | $447,130 | $87,120 | $0 | $534,250 | $534,250 |
| 2022 | $447,130 | $71,870 | $0 | $519,000 | $519,000 |
| 2021 | $237,600 | $71,870 | $0 | $309,470 | $309,470 |
| 2020 | $0 | $71,870 | $0 | $71,870 | $71,870 |
| 2019 | $0 | $71,870 | $0 | $71,870 | $71,870 |
| 2018 | $0 | $46,000 | $0 | $46,000 | $46,000 |
| 2017 | $0 | $46,000 | $0 | $46,000 | $46,000 |
| 2016 | $0 | $46,000 | $0 | $46,000 | $46,000 |
| 2015 | $20,400 | $46,000 | $0 | $66,400 | $66,400 |
| 2014 | $20,400 | $46,000 | $0 | $66,400 | $66,400 |
| 2013 | $20,400 | $46,000 | $0 | $66,400 | $66,400 |
| 2012 | $20,400 | $46,000 | $0 | $0 | $0 |
| 2011 | $20,400 | $46,000 | $0 | $0 | $0 |
| 2010 | $33,100 | $46,000 | $0 | $0 | $0 |
| 2009 | $41,900 | $46,000 | $0 | $0 | $0 |
| 2008 | $41,900 | $46,000 | $0 | $0 | $0 |
| 2007 | $47,500 | $23,500 | $0 | $0 | $0 |
| 2006 | $47,500 | $23,500 | $0 | $0 | $0 |
Deed and Sales History
| 1 | 01/28/2022 | SWD | STATUTORY WARRANTY DEED | SOLBERG MARY ELIZABETH | FRIEDEMANN KURT | | | $519,000.00 | 143313 | 2022-00867 |
| 2 | 01/28/2022 | LOPA | LACK OF PROBATE AFFIDAVIT | SOLBERG DALE RICHARD & MARY ELIZABETH | SOLBERG MARY ELIZABETH | | | $0.00 | 143312 | 2022-00866 |
| 3 | 02/27/2019 | SWD | STATUTORY WARRANTY DEED | ARLEAH PROPERTIES LLC | SOLBERG DALE RICHARD & MARY ELIZABETH | | | $92,000.00 | 136449 | 2019-01277 |
| 4 | 04/03/2018 | SWD | STATUTORY WARRANTY DEED | SURRATT DAVID & DELIA C | ARLEAH PROPERTIES LLC | | | $59,000.00 | 134436 | 2018-02571 |
| 5 | 02/08/2006 | QCD | QUIT CLAIM DEED | HERNANDEZ, HERMENEJILDA ESTATE | SURRATT, DAVID & DELIA C | | | | 109621 | 2006-01554 |
| 6 | 06/15/1972 | WARRANTY D | WARRANTY DEED | | | | | $3,500.00 | 0 | 3450-521931 |
Payout Agreement
| No payout information available.. |