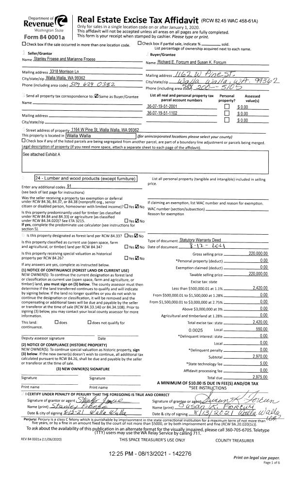
Property
Account |
| Property ID: | 1577 | Abbreviated Legal Description: | BURBANK LOTS 6 & 7 BLK 18 |
| Parcel Number: | 300802531818 | Agent Code: | |
| Type: | Real | | |
| Tax Area: | 328 - 400-M-5 | Land Use Code | 11 |
| Open Space: | N | DFL | N |
| Historic Property: | N | Remodel Property: | N |
| Multi-Family Redevelopment: | N | | |
| Township: | 8 | Section: | 2 |
| Range: | 30 |
Location |
| Address: | 131 BIRCH ST WA 99323 | Mapsco: | |
| Neighborhood: | Burbank F SFR | Map ID: | |
| Neighborhood CD: | 212711 |
Owner |
| Name: | HENSLEY ROCKY M | Owner ID: | 66670 |
| Mailing Address: | PO BOX 85 BURBANK, WA 99323 | % Ownership: | 100.0000000000% |
| | | Exemptions: | SNR/DSBL |
Taxes and Assessment Details
Values
| (+) Improvement Homesite Value: | + | $136,540 | |
| (+) Improvement Non-Homesite Value: | + | $0 | |
| (+) Land Homesite Value: | + | $48,190 | |
| (+) Land Non-Homesite Value: | + | $0 | |
| (+) Curr Use (HS): | + | $0 | $0 |
| (+) Curr Use (NHS): | + | $0 | $0 |
| | | -------------------------- | |
| (=) Market Value: | = | $184,730 | |
| (–) Productivity Loss: | – | $0 | |
| | | -------------------------- | |
| (=) Subtotal: | = | $184,730 | |
| (+) Senior Appraised Value: | + | $78,370 | |
| (+) Non-Senior Appraised Value: | + | $0 | |
| | | -------------------------- | |
| (=) Total Appraised Value: | = | $78,370 | |
| (–) Senior Exemption Loss: | – | $60,000 | |
| (–) Exemption Loss: | – | $0 | |
| | | -------------------------- | |
| (=) Taxable Value: | = | $18,370 | |
Taxing Jurisdiction
| Owner: | HENSLEY ROCKY M | | |
| % Ownership: | 100.0000000000% | | |
| Total Value: | $184,730 | | |
| Tax Area: | 328 - 400-M-5 |
| CERFD | CURRENT EXPENSE REFUND 010 | 0.0000000000 | $184,730 | $18,370 | $0.00 | | |
| CURREXP | CURRENT EXPENSE 010 | 1.0175366760 | $184,730 | $18,370 | $18.69 | | |
| HUMNSERV | HUMAN SERVICES 119 | 0.0250000000 | $184,730 | $18,370 | $0.46 | | |
| SLDREL | SOLDIERS RELIEF 121 | 0.0155990005 | $184,730 | $18,370 | $0.29 | | |
| EMERGSER | EMS 147 | 0.3792580840 | $184,730 | $18,370 | $6.97 | | |
| EMSRFD | EMS REFUND 147 | 0.0000000000 | $184,730 | $18,370 | $0.00 | | |
| FD5EXP | FD #5 EXPENSE 689 | 1.2045331840 | $184,730 | $18,370 | $22.13 | | |
| RLBRFD | RURAL LIBRARY REFUND 623 | 0.0000000000 | $184,730 | $18,370 | $0.00 | | |
| RURALLIB | RURAL LIBRARY 623 | 0.3710609029 | $184,730 | $18,370 | $6.82 | | |
| PORTRFD | PORT REFUND 640 | 0.0000000000 | $184,730 | $18,370 | $0.00 | | |
| PORTWWGEN | PORT OF WW 640 | 0.2460186015 | $184,730 | $18,370 | $4.52 | | |
| SD400BOND | SD #400 BOND 793 | 0.0000000000 | $184,730 | $0 | $0.00 | | |
| SD400CAP | SD #400 CP 792 | 0.0000000000 | $184,730 | $0 | $0.00 | | |
| SD400GEN | SD #400 GENERAL 790 | 0.0000000000 | $184,730 | $0 | $0.00 | | |
| ST2 | STATE SCHOOL PART 2 600 | 0.0000000000 | $184,730 | $0 | $0.00 | | |
| STATESCHL | STATE SCHOOL 600 | 1.5158548041 | $184,730 | $18,370 | $27.85 | | |
| STREFUND | STATE REFUND LEVY 603 | 0.0000000000 | $184,730 | $18,370 | $0.00 | | |
| COROAD | COUNTY ROAD 115 | 1.6549953990 | $184,730 | $18,370 | $30.40 | | |
| CRPRD | COUNTY ROAD REFUND 115 | 0.0000000000 | $184,730 | $18,370 | $0.00 | | |
| | Total Tax Rate: | 6.4298566520 | | | | | |
| | | | | Taxes w/Current Exemptions: | $118.13 | | |
| | | | | Taxes w/o Exemptions: | $1,757.75 | | |
Improvement / Building
| Improvement #1: | RESIDENTIAL | State Code: | 11 | 1150.0 sqft | Value: | $136,540 |
| Exterior Wall: | SIDING | Heating/Cooling: | GRAVITY FURNACE | | Number of Bathrooms: | 1 | Number of Bedrooms: | 2 | | Plumbing: | 6 | Roof Covering: | COMP SHINGLE |
|
| | Type | Description | Class CD | Sub Class CD | Year Built | Area |
| | MA | Main Area | 4 | 20 | 1923 | 1150.0 |
| | SI1 | SITE IMPROVEMENT | 4 | 20 | 1923 | 1.0 |
| | UPFL | Upper Floor (included in main area) | 4 | 20 | 1923 | 204.0 |
| | KWP | Knee Walla Porch w/Glass | 4 | 20 | 1923 | 160.0 |
| | TOOL | TOOL SHED | 4 | 20 | 1923 | 300.0 |
Sketch
Property Image
Land
| 1 | RES 1 | Converted: Residential | 0.2640 | 11500.00 | 0.00 | 0.00 | 1.00 | $48,190 | $0 |
Roll Value History
| 2025 | N/A | N/A | N/A | N/A | N/A |
| 2024 | $136,540 | $48,190 | $0 | $184,730 | $18,370 |
| 2023 | $136,540 | $48,190 | $0 | $184,730 | $18,370 |
| 2022 | $113,780 | $48,190 | $0 | $161,970 | $18,370 |
| 2021 | $56,890 | $48,190 | $0 | $105,080 | $18,370 |
| 2020 | $56,070 | $22,300 | $0 | $78,370 | $18,370 |
| 2019 | $56,070 | $22,300 | $0 | $78,370 | $78,370 |
| 2018 | $46,730 | $22,300 | $0 | $69,030 | $69,030 |
| 2017 | $46,730 | $22,300 | $0 | $69,030 | $69,030 |
| 2016 | $44,500 | $22,300 | $0 | $66,800 | $66,800 |
| 2015 | $44,500 | $22,300 | $0 | $66,800 | $66,800 |
| 2014 | $44,500 | $22,300 | $0 | $66,800 | $66,800 |
| 2013 | $44,500 | $22,300 | $0 | $66,800 | $66,800 |
| 2012 | $44,500 | $22,300 | $0 | $0 | $0 |
| 2011 | $44,500 | $22,300 | $0 | $0 | $0 |
| 2010 | $44,500 | $22,300 | $0 | $0 | $0 |
| 2009 | $53,300 | $17,300 | $0 | $0 | $0 |
| 2008 | $39,200 | $17,300 | $0 | $0 | $0 |
| 2007 | $39,200 | $17,300 | $0 | $0 | $0 |
| 2006 | $39,200 | $17,300 | $0 | $0 | $0 |
Deed and Sales History
| 1 | 01/16/2020 | ADMD | ADMINISTRATOR'S DEED | HENSLEY JERRY M | HENSLEY ROCKY M | | | $0.00 | 138574 | 2020-01156 |
| 2 | 10/30/1998 | WARRANTY D | WARRANTY DEED | | | | | $54,500.00 | 91544 | 2759-812517 |
Payout Agreement
| No payout information available.. |