Property
Account |
| Property ID: | 15647 | Abbreviated Legal Description: | BABCOCKS TAX 5 LOT 12 BLK 1 |
| Parcel Number: | 360729510131 | Agent Code: | |
| Type: | Real | | |
| Tax Area: | 1 - OL-140-F | Land Use Code | 11 |
| Open Space: | N | DFL | N |
| Historic Property: | N | Remodel Property: | N |
| Multi-Family Redevelopment: | N | | |
| Township: | 7 | Section: | 29 |
| Range: | 36 |
Location |
| Address: | 128 EAGAN ST WA 99362 | Mapsco: | |
| Neighborhood: | Fair Inferior Res | Map ID: | |
| Neighborhood CD: | 512111 |
Owner |
| Name: | CALLAWAY PROPERTIES LLC | Owner ID: | 57740 |
| Mailing Address: | PO BOX 991 WALLA WALLA, WA 99362 | % Ownership: | 100.0000000000% |
| | | Exemptions: | |
Taxes and Assessment Details
Values
| (+) Improvement Homesite Value: | + | $0 | |
| (+) Improvement Non-Homesite Value: | + | $377,250 | |
| (+) Land Homesite Value: | + | $0 | |
| (+) Land Non-Homesite Value: | + | $31,160 | |
| (+) Curr Use (HS): | + | $0 | $0 |
| (+) Curr Use (NHS): | + | $0 | $0 |
| | | -------------------------- | |
| (=) Market Value: | = | $408,410 | |
| (–) Productivity Loss: | – | $0 | |
| | | -------------------------- | |
| (=) Subtotal: | = | $408,410 | |
| (+) Senior Appraised Value: | + | $0 | |
| (+) Non-Senior Appraised Value: | + | $408,410 | |
| | | -------------------------- | |
| (=) Total Appraised Value: | = | $408,410 | |
| (–) Senior Exemption Loss: | – | $0 | |
| (–) Exemption Loss: | – | $0 | |
| | | -------------------------- | |
| (=) Taxable Value: | = | $408,410 | |
Taxing Jurisdiction
| Owner: | CALLAWAY PROPERTIES LLC | | |
| % Ownership: | 100.0000000000% | | |
| Total Value: | $408,410 | | |
| Tax Area: | 1 - OL-140-F |
| CERFD | CURRENT EXPENSE REFUND 010 | 0.0000000000 | $408,410 | $408,410 | $0.00 | | |
| CURREXP | CURRENT EXPENSE 010 | 1.0175366760 | $408,410 | $408,410 | $415.57 | | |
| HUMNSERV | HUMAN SERVICES 119 | 0.0250000000 | $408,410 | $408,410 | $10.21 | | |
| SLDREL | SOLDIERS RELIEF 121 | 0.0155990005 | $408,410 | $408,410 | $6.37 | | |
| EMERGSER | EMS 147 | 0.3792580840 | $408,410 | $408,410 | $154.89 | | |
| EMSRFD | EMS REFUND 147 | 0.0000000000 | $408,410 | $408,410 | $0.00 | | |
| PORTRFD | PORT REFUND 640 | 0.0000000000 | $408,410 | $408,410 | $0.00 | | |
| PORTWWGEN | PORT OF WW 640 | 0.2460186015 | $408,410 | $408,410 | $100.48 | | |
| SD140BOND | SD #140 BOND 764 | 0.8342371393 | $408,410 | $408,410 | $340.71 | | |
| SD140GEN | SD #140 GENERAL 760 | 2.0646500647 | $408,410 | $408,410 | $843.22 | | |
| ST2 | STATE SCHOOL PART 2 600 | 0.8131451643 | $408,410 | $408,410 | $332.10 | | |
| STATESCHL | STATE SCHOOL 600 | 1.5158548041 | $408,410 | $408,410 | $619.09 | | |
| STREFUND | STATE REFUND LEVY 603 | 0.0000000000 | $408,410 | $408,410 | $0.00 | | |
| CWWBOND | C OF WW BOND 643 | 0.2760494372 | $408,410 | $408,410 | $112.74 | | |
| CWWGEN | CITY OF WW 631 | 1.6100204973 | $408,410 | $408,410 | $657.55 | | |
| CWWRFD | CITY OF WALLA WALLA REFUND 631 | 0.0000000000 | $408,410 | $408,410 | $0.00 | | |
| | Total Tax Rate: | 8.7973694689 | | | | | |
| | | | | Taxes w/Current Exemptions: | $3,592.93 | | |
| | | | | Taxes w/o Exemptions: | $3,592.93 | | |
Improvement / Building
| Improvement #1: | RESIDENTIAL | State Code: | 11 | 1965.0 sqft | Value: | $377,250 |
| Exterior Wall: | VINYL | Heating/Cooling: | WARM & COOLED AIR | | Number of Bathrooms: | 3 | Number of Bedrooms: | 3 | | Plumbing: | 14 | Roof Covering: | COMP SHINGLE |
|
| | Type | Description | Class CD | Sub Class CD | Year Built | Area |
| | MA | Main Area | 2 | 35 | 1935 | 1965.0 |
| | UPFL | Upper Floor (included in main area) | 2 | 35 | 1935 | 922.0 |
| | SI1 | SITE IMPROVEMENT | 2 | 35 | 1935 | 1.5 |
| | BASE | BASEMENT | 2 | 35 | 1935 | 240.0 |
| | PRC | PORCH W STEPS, ROOF,CEILED | 2 | 35 | 1935 | 84.0 |
| | SWP | Solid Wall Porch | 2 | 35 | 1935 | 165.0 |
| | DTG | Detached Garage | 2 | 35 | 1935 | 220.0 |
Sketch
Property Image
Land
| 1 | RES 1 | Converted: Residential | 0.1363 | 5936.00 | 0.00 | 0.00 | 1.00 | $31,160 | $0 |
Roll Value History
| 2025 | N/A | N/A | N/A | N/A | N/A |
| 2024 | $321,400 | $53,420 | $0 | $374,820 | $374,820 |
| 2023 | $377,250 | $31,160 | $0 | $408,410 | $408,410 |
| 2022 | $328,040 | $31,160 | $0 | $359,200 | $359,200 |
| 2021 | $312,420 | $31,160 | $0 | $343,580 | $343,580 |
| 2020 | $208,280 | $31,160 | $0 | $239,440 | $239,440 |
| 2019 | $208,280 | $31,160 | $0 | $239,440 | $239,440 |
| 2018 | $208,280 | $31,160 | $0 | $239,440 | $239,440 |
| 2017 | $203,840 | $35,600 | $0 | $239,440 | $239,440 |
| 2016 | $145,600 | $35,600 | $0 | $181,200 | $181,200 |
| 2015 | $145,600 | $35,600 | $0 | $181,200 | $181,200 |
| 2014 | $145,600 | $35,600 | $0 | $181,200 | $181,200 |
| 2013 | $145,600 | $35,600 | $0 | $181,200 | $181,200 |
| 2012 | $145,600 | $35,600 | $0 | $0 | $0 |
| 2011 | $145,600 | $35,600 | $0 | $0 | $0 |
| 2010 | $115,400 | $35,600 | $0 | $0 | $0 |
| 2009 | $142,100 | $35,600 | $0 | $0 | $0 |
| 2008 | $142,100 | $35,600 | $0 | $0 | $0 |
| 2007 | $85,500 | $11,900 | $0 | $0 | $0 |
| 2006 | $85,500 | $11,900 | $0 | $0 | $0 |
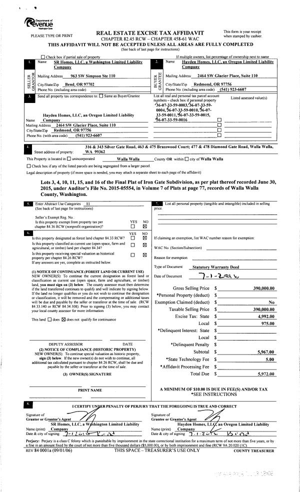
Deed and Sales History
| 1 | 10/26/2020 | SWD | STATUTORY WARRANTY DEED | KEYES FAMILY TRUST | CALLAWAY PROPERTIES LLC | | | $352,501.00 | 140184 | 2020-11134 |
| 2 | 01/03/2017 | SWD | STATUTORY WARRANTY DEED | H & R MEENACH LIVING TRUST | KEYES FAMILY TRUST | | | $152,042.00 | 131703 | 2017-00020 |
| 3 | 11/14/2016 | SWD | STATUTORY WARRANTY DEED | FISCHER DENNIS L & LORI M | H & R MEENACH LIVING TRUST | | | $259,900.00 | 131425 | 2016-09424 |
| 4 | 08/25/2008 | WARRANTY D | WARRANTY DEED | LAUGHERY, MICHAEL J & ALISON D | FISCHER, DENNIS L & LORI M | | | $203,500.00 | 115544 | 2008-08773 |
| 5 | 11/29/2005 | WARRANTY D | WARRANTY DEED | JENKINS, BEVERLY S | LAUGHERY, MICHAEL J & ALISON D | | | $140,000.00 | 109131 | 2005-14950 |
| 6 | 10/17/2003 | WARRANTY D | WARRANTY DEED | STEVENS, GLORIA EST | JENKINS, BEVERLY S | | | $85,250.00 | 103294 | 2003-16057 |
| 7 | 11/09/1989 | WARRANTY D | WARRANTY DEED | | | | | $7,250.00 | 0 | 1798-907531 |
Payout Agreement
| No payout information available.. |