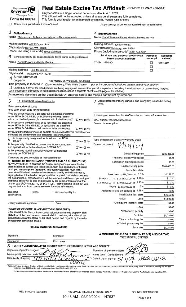
Property
Account |
| Property ID: | 15630 | Abbreviated Legal Description: | BROWNS N 62.71' OF LOT 2 BLK 4 |
| Parcel Number: | 360721520402 | Agent Code: | |
| Type: | Real | | |
| Tax Area: | 1 - OL-140-F | Land Use Code | 11 |
| Open Space: | N | DFL | N |
| Historic Property: | N | Remodel Property: | N |
| Multi-Family Redevelopment: | N | | |
| Township: | 7 | Section: | 21 |
| Range: | 36 |
Location |
| Address: | 25 WITHVA ST WA 99362 | Mapsco: | |
| Neighborhood: | A-SFR | Map ID: | |
| Neighborhood CD: | 513011 |
Owner |
| Name: | MILLER DONALD D | Owner ID: | 49395 |
| Mailing Address: | 11 S ROOSEVELT ST WALLA WALLA, WA 99362 | % Ownership: | 100.0000000000% |
| | | Exemptions: | |
Taxes and Assessment Details
Values
| (+) Improvement Homesite Value: | + | $0 | |
| (+) Improvement Non-Homesite Value: | + | $280,740 | |
| (+) Land Homesite Value: | + | $0 | |
| (+) Land Non-Homesite Value: | + | $20,930 | |
| (+) Curr Use (HS): | + | $0 | $0 |
| (+) Curr Use (NHS): | + | $0 | $0 |
| | | -------------------------- | |
| (=) Market Value: | = | $301,670 | |
| (–) Productivity Loss: | – | $0 | |
| | | -------------------------- | |
| (=) Subtotal: | = | $301,670 | |
| (+) Senior Appraised Value: | + | $0 | |
| (+) Non-Senior Appraised Value: | + | $301,670 | |
| | | -------------------------- | |
| (=) Total Appraised Value: | = | $301,670 | |
| (–) Senior Exemption Loss: | – | $0 | |
| (–) Exemption Loss: | – | $0 | |
| | | -------------------------- | |
| (=) Taxable Value: | = | $301,670 | |
Taxing Jurisdiction
| Owner: | MILLER DONALD D | | |
| % Ownership: | 100.0000000000% | | |
| Total Value: | $301,670 | | |
| Tax Area: | 1 - OL-140-F |
| CERFD | CURRENT EXPENSE REFUND 010 | 0.0000000000 | $301,670 | $301,670 | $0.00 | | |
| CURREXP | CURRENT EXPENSE 010 | 1.0175366760 | $301,670 | $301,670 | $306.96 | | |
| HUMNSERV | HUMAN SERVICES 119 | 0.0250000000 | $301,670 | $301,670 | $7.54 | | |
| SLDREL | SOLDIERS RELIEF 121 | 0.0155990005 | $301,670 | $301,670 | $4.71 | | |
| EMERGSER | EMS 147 | 0.3792580840 | $301,670 | $301,670 | $114.41 | | |
| EMSRFD | EMS REFUND 147 | 0.0000000000 | $301,670 | $301,670 | $0.00 | | |
| PORTRFD | PORT REFUND 640 | 0.0000000000 | $301,670 | $301,670 | $0.00 | | |
| PORTWWGEN | PORT OF WW 640 | 0.2460186015 | $301,670 | $301,670 | $74.22 | | |
| SD140BOND | SD #140 BOND 764 | 0.8342371393 | $301,670 | $301,670 | $251.66 | | |
| SD140GEN | SD #140 GENERAL 760 | 2.0646500647 | $301,670 | $301,670 | $622.84 | | |
| ST2 | STATE SCHOOL PART 2 600 | 0.8131451643 | $301,670 | $301,670 | $245.30 | | |
| STATESCHL | STATE SCHOOL 600 | 1.5158548041 | $301,670 | $301,670 | $457.29 | | |
| STREFUND | STATE REFUND LEVY 603 | 0.0000000000 | $301,670 | $301,670 | $0.00 | | |
| CWWBOND | C OF WW BOND 643 | 0.2760494372 | $301,670 | $301,670 | $83.28 | | |
| CWWGEN | CITY OF WW 631 | 1.6100204973 | $301,670 | $301,670 | $485.69 | | |
| CWWRFD | CITY OF WALLA WALLA REFUND 631 | 0.0000000000 | $301,670 | $301,670 | $0.00 | | |
| | Total Tax Rate: | 8.7973694689 | | | | | |
| | | | | Taxes w/Current Exemptions: | $2,653.90 | | |
| | | | | Taxes w/o Exemptions: | $2,653.90 | | |
Improvement / Building
| Improvement #1: | RESIDENTIAL | State Code: | 11 | 806.0 sqft | Value: | $280,740 |
| Exterior Wall: | SIDING | Heating/Cooling: | FORCED AIR | | Number of Bathrooms: | 1 | Number of Bedrooms: | 2 | | Plumbing: | 8 | Roof Covering: | COMP SHINGLE |
|
| | Type | Description | Class CD | Sub Class CD | Year Built | Area |
| | MA | Main Area | 1 | 30 | 1938 | 806.0 |
| | PRC | PORCH W STEPS, ROOF,CEILED | 1 | 30 | 0 | 84.0 |
| | SI1 | SITE IMPROVEMENT | 1 | 30 | 0 | 2.0 |
| | BASE | BASEMENT | 1 | 30 | 1938 | 364.0 |
| | KWP | Knee Walla Porch w/Glass | 1 | 30 | 1938 | 72.0 |
| | BPF | BASEMENT -PARTITIONED FINISH | 1 | 30 | 1938 | 364.0 |
Sketch
Property Image
Land
| 1 | RES 1 | Converted: Residential | 0.0769 | 3349.00 | 0.00 | 0.00 | 1.00 | $20,930 | $0 |
Roll Value History
| 2025 | N/A | N/A | N/A | N/A | N/A |
| 2024 | $246,910 | $33,490 | $0 | $280,400 | $280,400 |
| 2023 | $280,740 | $20,930 | $0 | $301,670 | $301,670 |
| 2022 | $267,380 | $20,930 | $0 | $288,310 | $288,310 |
| 2021 | $232,500 | $20,930 | $0 | $253,430 | $253,430 |
| 2020 | $150,000 | $20,930 | $0 | $170,930 | $170,930 |
| 2019 | $150,000 | $20,930 | $0 | $170,930 | $170,930 |
| 2018 | $125,000 | $20,930 | $0 | $145,930 | $145,930 |
| 2017 | $136,080 | $13,400 | $0 | $149,480 | $149,480 |
| 2016 | $129,600 | $13,400 | $0 | $143,000 | $143,000 |
| 2015 | $129,600 | $13,400 | $0 | $143,000 | $143,000 |
| 2014 | $96,000 | $13,400 | $0 | $109,400 | $109,400 |
| 2013 | $96,000 | $13,400 | $0 | $109,400 | $109,400 |
| 2012 | $96,000 | $13,400 | $0 | $0 | $0 |
| 2011 | $90,800 | $13,400 | $0 | $0 | $0 |
| 2010 | $85,800 | $13,400 | $0 | $0 | $0 |
| 2009 | $96,800 | $13,400 | $0 | $0 | $0 |
| 2008 | $96,800 | $13,400 | $0 | $0 | $0 |
| 2007 | $96,800 | $13,400 | $0 | $0 | $0 |
| 2006 | $50,400 | $6,700 | $0 | $0 | $0 |
Deed and Sales History
| 1 | 06/22/2015 | SWD | STATUTORY WARRANTY DEED | WOLFORD MICHAEL A & AMANDA M | MILLER DONALD D | | 2-PARCELS | $149,000.00 | 128209 | 2015-05211 |
|   | |
| 2 | 12/05/2005 | WARRANTY D | WARRANTY DEED | BOGGS WILLIAM H | WOLFORD MICHAEL A & AMANDA M | | | $123,000.00 | 109173 | 2005-15185 |
|   | |
| 3 | 12/03/2004 | WARRANTY D | WARRANTY DEED | MAHERAS ANDY | BOGGS WILLIAM H | | | $95,000.00 | 106326 | 2004-13912 |
|   | |
| 4 | 09/03/1998 | WARRANTY D | WARRANTY DEED | | | | | | 91178 | 2729-810182 |
Payout Agreement
| No payout information available.. |