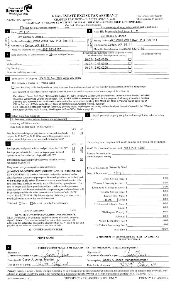
Property
Account |
| Property ID: | 15613 | Abbreviated Legal Description: | CP #2 REPLAT OF BLK 17 TAX 10 LOT E BLK 17 |
| Parcel Number: | 350735601741 | Agent Code: | |
| Type: | Real | | |
| Tax Area: | 75 - CP 250 | Land Use Code | 91 |
| Open Space: | N | DFL | N |
| Historic Property: | N | Remodel Property: | N |
| Multi-Family Redevelopment: | N | | |
| Township: | 7 | Section: | 35 |
| Range: | 35 |
Location |
| Address: | WA 99324 | Mapsco: | |
| Neighborhood: | A SFR Contig | Map ID: | |
| Neighborhood CD: | 113097 |
Owner |
| Name: | WALLA WALLA UNIVERSITY | Owner ID: | 45263 |
| Mailing Address: | 204 S COLLEGE AVE COLLEGE PLACE, WA 99324 | % Ownership: | 100.0000000000% |
| | | Exemptions: | |
Taxes and Assessment Details
Values
| (+) Improvement Homesite Value: | + | $0 | |
| (+) Improvement Non-Homesite Value: | + | $0 | |
| (+) Land Homesite Value: | + | $0 | |
| (+) Land Non-Homesite Value: | + | $18,590 | |
| (+) Curr Use (HS): | + | $0 | $0 |
| (+) Curr Use (NHS): | + | $0 | $0 |
| | | -------------------------- | |
| (=) Market Value: | = | $18,590 | |
| (–) Productivity Loss: | – | $0 | |
| | | -------------------------- | |
| (=) Subtotal: | = | $18,590 | |
| (+) Senior Appraised Value: | + | $0 | |
| (+) Non-Senior Appraised Value: | + | $18,590 | |
| | | -------------------------- | |
| (=) Total Appraised Value: | = | $18,590 | |
| (–) Senior Exemption Loss: | – | $0 | |
| (–) Exemption Loss: | – | $0 | |
| | | -------------------------- | |
| (=) Taxable Value: | = | $18,590 | |
Taxing Jurisdiction
| Owner: | WALLA WALLA UNIVERSITY | | |
| % Ownership: | 100.0000000000% | | |
| Total Value: | $18,590 | | |
| Tax Area: | 75 - CP 250 |
| CERFD | CURRENT EXPENSE REFUND 010 | 0.0000000000 | $18,590 | $18,590 | $0.00 | | |
| CURREXP | CURRENT EXPENSE 010 | 1.0175366760 | $18,590 | $18,590 | $18.92 | | |
| HUMNSERV | HUMAN SERVICES 119 | 0.0250000000 | $18,590 | $18,590 | $0.46 | | |
| SLDREL | SOLDIERS RELIEF 121 | 0.0155990005 | $18,590 | $18,590 | $0.29 | | |
| COLLPLBOND | C OF CP BOND 644 | 0.4374241808 | $18,590 | $18,590 | $8.13 | | |
| COLLPLGEN | CITY OF CP 632 | 1.4453819216 | $18,590 | $18,590 | $26.87 | | |
| EMERGSER | EMS 147 | 0.3792580840 | $18,590 | $18,590 | $7.05 | | |
| EMSRFD | EMS REFUND 147 | 0.0000000000 | $18,590 | $18,590 | $0.00 | | |
| RURALLIB | RURAL LIBRARY 623 | 0.3710609029 | $18,590 | $18,590 | $6.90 | | |
| PORTRFD | PORT REFUND 640 | 0.0000000000 | $18,590 | $18,590 | $0.00 | | |
| PORTWWGEN | PORT OF WW 640 | 0.2460186015 | $18,590 | $18,590 | $4.57 | | |
| SD250BOND | SD #250 BOND 773 | 1.4560608159 | $18,590 | $18,590 | $27.07 | | |
| SD250GEN | SD #250 GENERAL 770 | 2.3880724087 | $18,590 | $18,590 | $44.39 | | |
| ST2 | STATE SCHOOL PART 2 600 | 0.8131451643 | $18,590 | $18,590 | $15.12 | | |
| STATESCHL | STATE SCHOOL 600 | 1.5158548041 | $18,590 | $18,590 | $28.18 | | |
| STREFUND | STATE REFUND LEVY 603 | 0.0000000000 | $18,590 | $18,590 | $0.00 | | |
| | Total Tax Rate: | 10.1104125603 | | | | | |
| | | | | Taxes w/Current Exemptions: | $187.95 | | |
| | | | | Taxes w/o Exemptions: | $187.95 | | |
Improvement / Building
Sketch
| No sketches available for this property. |
Property Image
Land
| 1 | RES 1 | Converted: Residential | 0.0632 | 2754.00 | 0.00 | 0.00 | 1.00 | $18,590 | $0 |
Roll Value History
| 2025 | N/A | N/A | N/A | N/A | N/A |
| 2024 | $0 | $18,590 | $0 | $18,590 | $18,590 |
| 2023 | $0 | $18,590 | $0 | $18,590 | $18,590 |
| 2022 | $0 | $18,590 | $0 | $18,590 | $18,590 |
| 2021 | $0 | $18,590 | $0 | $18,590 | $18,590 |
| 2020 | $0 | $18,590 | $0 | $18,590 | $18,590 |
| 2019 | $0 | $16,500 | $0 | $16,500 | $16,500 |
| 2018 | $0 | $16,500 | $0 | $16,500 | $16,500 |
| 2017 | $0 | $16,500 | $0 | $16,500 | $16,500 |
| 2016 | $0 | $16,500 | $0 | $16,500 | $16,500 |
| 2015 | $0 | $16,500 | $0 | $16,500 | $16,500 |
| 2014 | $0 | $16,500 | $0 | $16,500 | $16,500 |
| 2013 | $0 | $16,500 | $0 | $16,500 | $16,500 |
| 2012 | $0 | $16,500 | $0 | $0 | $0 |
| 2011 | $0 | $16,500 | $0 | $0 | $0 |
| 2010 | $0 | $16,500 | $0 | $0 | $0 |
| 2009 | $0 | $16,500 | $0 | $0 | $0 |
| 2008 | $0 | $8,300 | $0 | $0 | $0 |
| 2007 | $0 | $8,300 | $0 | $0 | $0 |
| 2006 | $0 | $8,300 | $0 | $0 | $0 |
Deed and Sales History
| 1 | 10/01/2006 | OCN | ORDER CHGING NAME | WALLA WALLA COLLEGE | WALLA WALLA UNIVERSITY | | | | 0 | |
| 2 | 01/03/2006 | WARRANTY D | WARRANTY DEED | "MAXTED, J EDWARD" | WALLA WALLA COLLEGE | | | | 109395 | 2006-00081 |
| 3 | 03/17/1970 | WARRANTY D | WARRANTY DEED | | | | | $0.00 | 0 | 3350-506791 |
Payout Agreement
| No payout information available.. |