Property
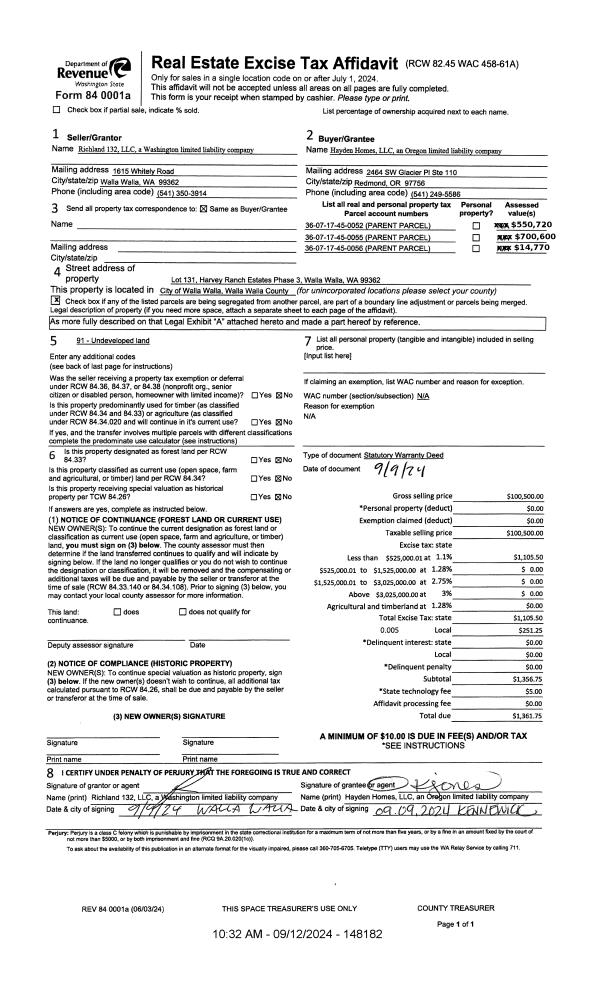
Account |
| Property ID: | 15502 | Abbreviated Legal Description: | TABLEROCK SUBDIVISION II LOT 44 |
| Parcel Number: | 360604590044 | Agent Code: | |
| Type: | Real | | |
| Tax Area: | 5 - OL-140 | Land Use Code | 11 |
| Open Space: | N | DFL | N |
| Historic Property: | N | Remodel Property: | N |
| Multi-Family Redevelopment: | N | | |
| Township: | 6 | Section: | 4 |
| Range: | 36 |
Location |
| Address: | 278 COYOTE RIDGE DR WA 99362 | Mapsco: | |
| Neighborhood: | VG Res Rural/City Inf | Map ID: | |
| Neighborhood CD: | 615012 |
Owner |
| Name: | DAVENPORT RYAN & KATHRYN | Owner ID: | 65889 |
| Mailing Address: | 278 COYOTE RIDGE DR WALLA WALLA, WA 99362 | % Ownership: | 100.0000000000% |
| | | Exemptions: | |
Taxes and Assessment Details
Values
| (+) Improvement Homesite Value: | + | $0 | |
| (+) Improvement Non-Homesite Value: | + | $574,720 | |
| (+) Land Homesite Value: | + | $0 | |
| (+) Land Non-Homesite Value: | + | $120,000 | |
| (+) Curr Use (HS): | + | $0 | $0 |
| (+) Curr Use (NHS): | + | $0 | $0 |
| | | -------------------------- | |
| (=) Market Value: | = | $694,720 | |
| (–) Productivity Loss: | – | $0 | |
| | | -------------------------- | |
| (=) Subtotal: | = | $694,720 | |
| (+) Senior Appraised Value: | + | $0 | |
| (+) Non-Senior Appraised Value: | + | $694,720 | |
| | | -------------------------- | |
| (=) Total Appraised Value: | = | $694,720 | |
| (–) Senior Exemption Loss: | – | $0 | |
| (–) Exemption Loss: | – | $0 | |
| | | -------------------------- | |
| (=) Taxable Value: | = | $694,720 | |
Taxing Jurisdiction
| Owner: | DAVENPORT RYAN & KATHRYN | | |
| % Ownership: | 100.0000000000% | | |
| Total Value: | $694,720 | | |
| Tax Area: | 5 - OL-140 |
| CERFD | CURRENT EXPENSE REFUND 010 | 0.0000000000 | $694,720 | $694,720 | $0.00 | | |
| CURREXP | CURRENT EXPENSE 010 | 1.0175366760 | $694,720 | $694,720 | $706.90 | | |
| HUMNSERV | HUMAN SERVICES 119 | 0.0250000000 | $694,720 | $694,720 | $17.37 | | |
| SLDREL | SOLDIERS RELIEF 121 | 0.0155990005 | $694,720 | $694,720 | $10.84 | | |
| EMERGSER | EMS 147 | 0.3792580840 | $694,720 | $694,720 | $263.48 | | |
| EMSRFD | EMS REFUND 147 | 0.0000000000 | $694,720 | $694,720 | $0.00 | | |
| PORTRFD | PORT REFUND 640 | 0.0000000000 | $694,720 | $694,720 | $0.00 | | |
| PORTWWGEN | PORT OF WW 640 | 0.2460186015 | $694,720 | $694,720 | $170.91 | | |
| SD140BOND | SD #140 BOND 764 | 0.8342371393 | $694,720 | $694,720 | $579.56 | | |
| SD140GEN | SD #140 GENERAL 760 | 2.0646500647 | $694,720 | $694,720 | $1,434.35 | | |
| ST2 | STATE SCHOOL PART 2 600 | 0.8131451643 | $694,720 | $694,720 | $564.91 | | |
| STATESCHL | STATE SCHOOL 600 | 1.5158548041 | $694,720 | $694,720 | $1,053.09 | | |
| STREFUND | STATE REFUND LEVY 603 | 0.0000000000 | $694,720 | $694,720 | $0.00 | | |
| CWWBOND | C OF WW BOND 643 | 0.2760494372 | $694,720 | $694,720 | $191.78 | | |
| CWWGEN | CITY OF WW 631 | 1.6100204973 | $694,720 | $694,720 | $1,118.51 | | |
| CWWRFD | CITY OF WALLA WALLA REFUND 631 | 0.0000000000 | $694,720 | $694,720 | $0.00 | | |
| | Total Tax Rate: | 8.7973694689 | | | | | |
| | | | | Taxes w/Current Exemptions: | $6,111.70 | | |
| | | | | Taxes w/o Exemptions: | $6,111.70 | | |
Improvement / Building
| Improvement #1: | RESIDENTIAL | State Code: | 11 | 2688.0 sqft | Value: | $574,720 |
| Exterior Wall: | STUCCO | Heating/Cooling: | HEAT PUMP | | Number of Bathrooms: | 4.5 | Number of Bedrooms: | 4 | | Plumbing: | 19 | Roof Covering: | COMP SHINGLE |
|
| | Type | Description | Class CD | Sub Class CD | Year Built | Area |
| | MA | Main Area | 1 | 50 | 2008 | 2688.0 |
| | SI1 | SITE IMPROVEMENT | 1 | 50 | 2008 | 6.0 |
| | ATG | Attached Garage | 1 | 50 | 2008 | 804.0 |
| | BONU | BONUS ROOM W/FINISH | 1 | 50 | 2008 | 355.0 |
| | PRC | PORCH W STEPS, ROOF,CEILED | 1 | 50 | 2008 | 161.0 |
| | PRC | PORCH W STEPS, ROOF,CEILED | 1 | 50 | 2008 | 280.0 |
| | GFP | GAS FIREPLACE | 1 | 50 | 2008 | 2.0 |
Sketch
Property Image
Land
| 1 | RES 1 | Converted: Residential | 0.2961 | 12898.00 | 0.00 | 0.00 | 1.00 | $120,000 | $0 |
Roll Value History
| 2025 | N/A | N/A | N/A | N/A | N/A |
| 2024 | $574,720 | $120,000 | $0 | $694,720 | $694,720 |
| 2023 | $574,720 | $120,000 | $0 | $694,720 | $694,720 |
| 2022 | $547,350 | $95,000 | $0 | $642,350 | $642,350 |
| 2021 | $547,350 | $95,000 | $0 | $642,350 | $642,350 |
| 2020 | $421,040 | $95,000 | $0 | $516,040 | $516,040 |
| 2019 | $421,040 | $95,000 | $0 | $516,040 | $516,040 |
| 2018 | $440,340 | $50,000 | $0 | $490,340 | $490,340 |
| 2017 | $440,340 | $50,000 | $0 | $490,340 | $490,340 |
| 2016 | $419,370 | $50,000 | $0 | $469,370 | $469,370 |
| 2015 | $419,370 | $50,000 | $0 | $469,370 | $469,370 |
| 2014 | $399,400 | $50,000 | $0 | $449,400 | $449,400 |
| 2013 | $389,200 | $50,000 | $0 | $439,200 | $439,200 |
| 2012 | $371,200 | $65,000 | $0 | $0 | $0 |
| 2011 | $356,200 | $80,000 | $0 | $0 | $0 |
| 2010 | $356,200 | $80,000 | $0 | $0 | $0 |
| 2009 | $405,900 | $80,000 | $0 | $0 | $0 |
| 2008 | $0 | $80,000 | $0 | $0 | $0 |
| 2007 | $0 | $500 | $0 | $0 | $0 |
| 2006 | $0 | $500 | $0 | $0 | $0 |
Deed and Sales History
| 1 | 05/02/2025 | SWD | STATUTORY WARRANTY DEED | DAVENPORT RYAN & KATHRYN | STEVENSON BRETT A | | | $882,000.00 | 149324 | 2025-02386 |
| 2 | 09/12/2019 | SWD | STATUTORY WARRANTY DEED | BELL GLENN | DAVENPORT RYAN & KATHRYN | | | $585,000.00 | 137671 | 2019-07104 |
| 3 | 01/21/2014 | QCD | QUIT CLAIM DEED | | BELL GLENN | | | | 125303 | 2014-00479 |
| 4 | 01/21/2014 | WARRANTY D | WARRANTY DEED | ANLIKER GREG & BRENDA D ESTATE OF | BELL GLENN | | | $475,000.00 | 125304 | 2014-00480 |
| 5 | 11/23/2005 | WARRANTY D | WARRANTY DEED | GATEWOOD, W PAUL & CAROL | ANLIKER, GREG & BRENDA | | | $80,000.00 | 109115 | 2005-14822 |
Payout Agreement
| No payout information available.. |