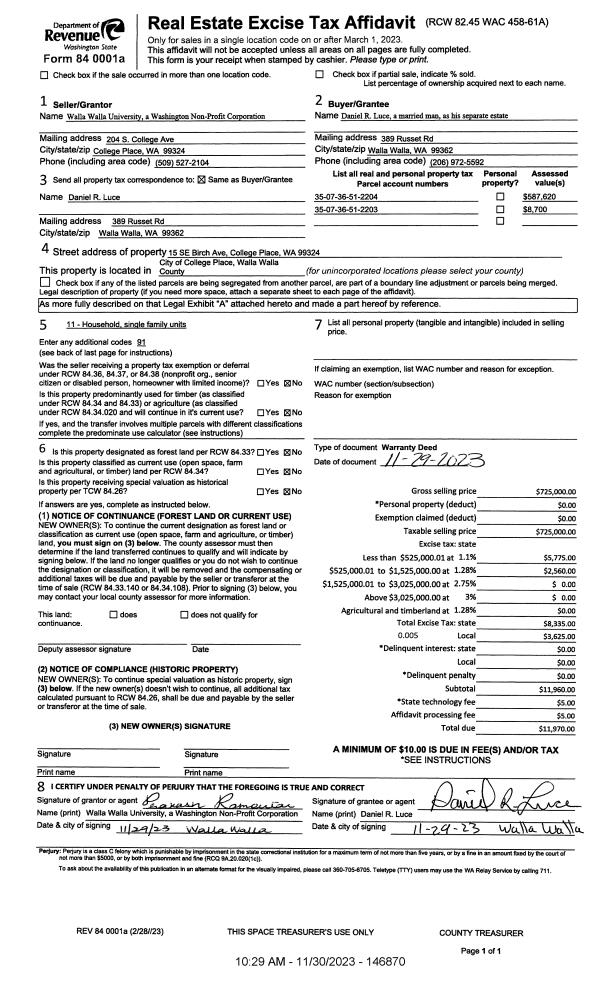
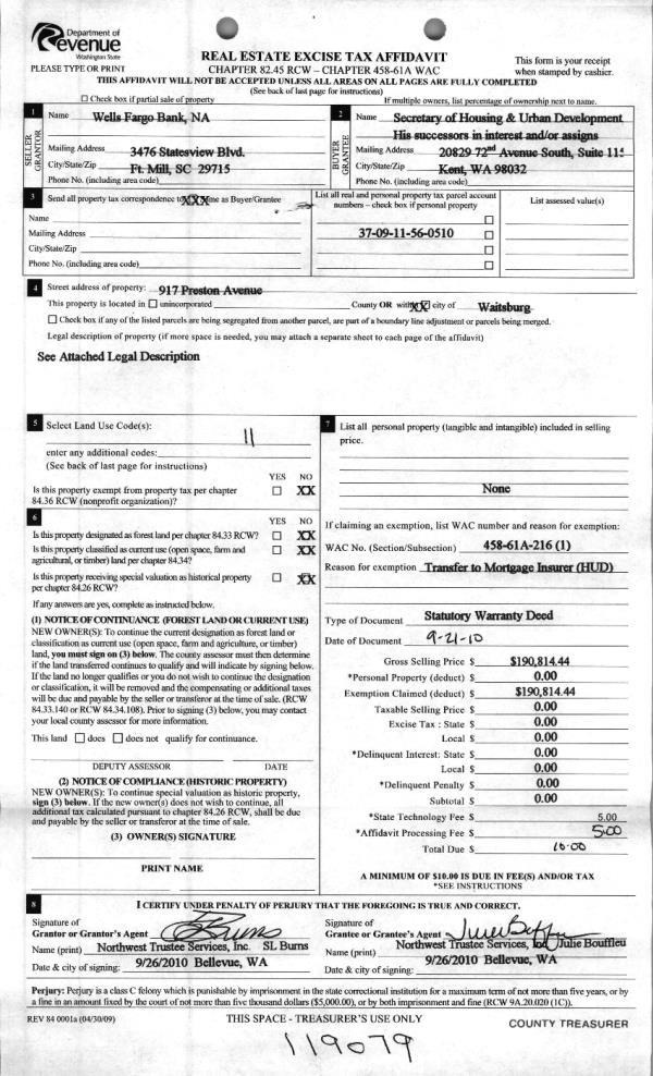
Property
Account |
| Property ID: | 15375 | Abbreviated Legal Description: | 15-6-35 TAX 11 |
| Parcel Number: | 350615210011 | Agent Code: | |
| Type: | Real | | |
| Tax Area: | 311 - 250-4 | Land Use Code | 83 |
| Open Space: | Y | DFL | N |
| Historic Property: | N | Remodel Property: | N |
| Multi-Family Redevelopment: | N | | |
| Township: | 6 | Section: | 15 |
| Range: | 35 |
Location |
| Address: | WA 99324 | Mapsco: | |
| Neighborhood: | 0 Farm | Map ID: | |
| Neighborhood CD: | 2220 |
Owner |
| Name: | RIES GINGER | Owner ID: | 73048 |
| Mailing Address: | 16758 EMERALD GREEN LANE SE JEFFERSON, OR 97352 | % Ownership: | 100.0000000000% |
| | | Exemptions: | |
Taxes and Assessment Details
Values
| (+) Improvement Homesite Value: | + | $0 | |
| (+) Improvement Non-Homesite Value: | + | $0 | |
| (+) Land Homesite Value: | + | $0 | |
| (+) Land Non-Homesite Value: | + | $0 | |
| (+) Curr Use (HS): | + | $0 | $0 |
| (+) Curr Use (NHS): | + | $39,710 | $8,200 |
| | | -------------------------- | |
| (=) Market Value: | = | $39,710 | |
| (–) Productivity Loss: | – | $31,510 | |
| | | -------------------------- | |
| (=) Subtotal: | = | $8,200 | |
| (+) Senior Appraised Value: | + | $0 | |
| (+) Non-Senior Appraised Value: | + | $8,200 | |
| | | -------------------------- | |
| (=) Total Appraised Value: | = | $8,200 | |
| (–) Senior Exemption Loss: | – | $0 | |
| (–) Exemption Loss: | – | $0 | |
| | | -------------------------- | |
| (=) Taxable Value: | = | $8,200 | |
Taxing Jurisdiction
| Owner: | RIES GINGER | | |
| % Ownership: | 100.0000000000% | | |
| Total Value: | $39,710 | | |
| Tax Area: | 311 - 250-4 |
| CERFD | CURRENT EXPENSE REFUND 010 | 0.0000000000 | $8,200 | $8,200 | $0.00 | | |
| CURREXP | CURRENT EXPENSE 010 | 1.0175366760 | $8,200 | $8,200 | $8.34 | | |
| HUMNSERV | HUMAN SERVICES 119 | 0.0250000000 | $8,200 | $8,200 | $0.21 | | |
| SLDREL | SOLDIERS RELIEF 121 | 0.0155990005 | $8,200 | $8,200 | $0.13 | | |
| EMERGSER | EMS 147 | 0.3792580840 | $8,200 | $8,200 | $3.11 | | |
| EMSRFD | EMS REFUND 147 | 0.0000000000 | $8,200 | $8,200 | $0.00 | | |
| FD4EXP | FD #4 EXPENSE 686 | 0.8836993059 | $8,200 | $8,200 | $7.25 | | |
| RLBRFD | RURAL LIBRARY REFUND 623 | 0.0000000000 | $8,200 | $8,200 | $0.00 | | |
| RURALLIB | RURAL LIBRARY 623 | 0.3710609029 | $8,200 | $8,200 | $3.04 | | |
| PORTRFD | PORT REFUND 640 | 0.0000000000 | $8,200 | $8,200 | $0.00 | | |
| PORTWWGEN | PORT OF WW 640 | 0.2460186015 | $8,200 | $8,200 | $2.02 | | |
| SD250BOND | SD #250 BOND 773 | 1.4560608159 | $8,200 | $8,200 | $11.94 | | |
| SD250GEN | SD #250 GENERAL 770 | 2.3880724087 | $8,200 | $8,200 | $19.58 | | |
| ST2 | STATE SCHOOL PART 2 600 | 0.8131451643 | $8,200 | $8,200 | $6.67 | | |
| STATESCHL | STATE SCHOOL 600 | 1.5158548041 | $8,200 | $8,200 | $12.43 | | |
| STREFUND | STATE REFUND LEVY 603 | 0.0000000000 | $8,200 | $8,200 | $0.00 | | |
| COROAD | COUNTY ROAD 115 | 1.6549953990 | $8,200 | $8,200 | $13.57 | | |
| CRPRD | COUNTY ROAD REFUND 115 | 0.0000000000 | $8,200 | $8,200 | $0.00 | | |
| | Total Tax Rate: | 10.7663011628 | | | | | |
| | | | | Taxes w/Current Exemptions: | $88.29 | | |
| | | | | Taxes w/o Exemptions: | $88.29 | | |
Improvement / Building
Sketch
| No sketches available for this property. |
Property Image
Land
| 1 | C1-I | Class 1 Irrigated | 6.5100 | 283575.60 | 0.00 | 0.00 | 1.00 | $39,710 | $8,200 |
Roll Value History
| 2025 | N/A | N/A | N/A | N/A | N/A |
| 2024 | $0 | $41,010 | $8,240 | $8,240 | $8,240 |
| 2023 | $0 | $39,710 | $8,200 | $8,200 | $8,200 |
| 2022 | $0 | $39,660 | $8,760 | $8,760 | $8,760 |
| 2021 | $0 | $36,050 | $8,930 | $8,930 | $8,930 |
| 2020 | $0 | $28,840 | $9,120 | $9,120 | $9,120 |
| 2019 | $0 | $25,240 | $9,400 | $9,400 | $9,400 |
| 2018 | $0 | $24,510 | $9,580 | $9,580 | $9,580 |
| 2017 | $0 | $24,510 | $9,890 | $9,890 | $9,890 |
| 2016 | $0 | $24,510 | $9,920 | $9,920 | $9,920 |
| 2015 | $0 | $21,630 | $9,030 | $9,030 | $9,030 |
| 2014 | $0 | $21,630 | $9,030 | $9,030 | $9,030 |
| 2013 | $0 | $20,900 | $7,800 | $7,800 | $7,800 |
| 2012 | $0 | $6,200 | $0 | $0 | $0 |
| 2011 | $0 | $5,900 | $0 | $0 | $0 |
| 2010 | $0 | $6,100 | $0 | $0 | $0 |
| 2009 | $0 | $6,000 | $0 | $0 | $0 |
| 2008 | $0 | $8,300 | $0 | $0 | $0 |
| 2007 | $0 | $8,300 | $0 | $0 | $0 |
| 2006 | $0 | $8,300 | $0 | $0 | $0 |
Deed and Sales History
| 1 | 02/06/2023 | SURVEY | SURVEY | | | 14 | 94 | | 0 | 2023-00597 |
| 2 | 01/10/2023 | DPR | DEED OF PERSONAL REPRESENTATIVE | RIES RICHARD C ESTATE OF | RIES GINGER | | | $0.00 | 145250 | 2023-00152 |
| 3 | 04/18/2022 | COMMUNITY | COMMUNITY PROPERTY AGREEMENT | RIES RICHARD C ESTATE OF | RIES RICHARD CLARK & LINDA ARLENE | | | | 0 | 2022-03244 |
| 4 | 04/28/1973 | WARRANTY D | WARRANTY DEED | | | | | $13,000.00 | 0 | 4052-8649 |
|   | |
Payout Agreement
| No payout information available.. |