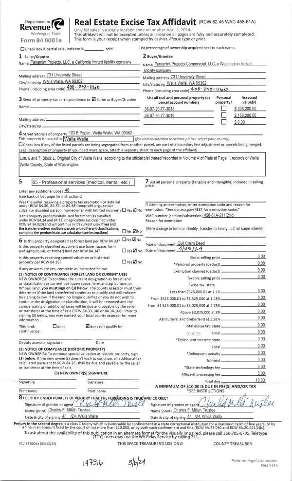
Property
Account |
| Property ID: | 15108 | Abbreviated Legal Description: | LENNONS & WILDWOOD LOT 6 & W 10' OF LOT 5 BLK 4 |
| Parcel Number: | 360721630406 | Agent Code: | |
| Type: | Real | | |
| Tax Area: | 1 - OL-140-F | Land Use Code | 11 |
| Open Space: | N | DFL | N |
| Historic Property: | N | Remodel Property: | N |
| Multi-Family Redevelopment: | N | | |
| Township: | 7 | Section: | 21 |
| Range: | 36 |
Location |
| Address: | 1010 FRANCIS AVE WA 99362 | Mapsco: | |
| Neighborhood: | G-SFR | Map ID: | |
| Neighborhood CD: | 514011 |
Owner |
| Name: | BROWN JENNY L | Owner ID: | 50600 |
| Mailing Address: | 1101 W 11TH ST VANCOUVER, WA 98660-3061 | % Ownership: | 100.0000000000% |
| | | Exemptions: | |
Taxes and Assessment Details
Values
| (+) Improvement Homesite Value: | + | $0 | |
| (+) Improvement Non-Homesite Value: | + | $270,390 | |
| (+) Land Homesite Value: | + | $0 | |
| (+) Land Non-Homesite Value: | + | $52,200 | |
| (+) Curr Use (HS): | + | $0 | $0 |
| (+) Curr Use (NHS): | + | $0 | $0 |
| | | -------------------------- | |
| (=) Market Value: | = | $322,590 | |
| (–) Productivity Loss: | – | $0 | |
| | | -------------------------- | |
| (=) Subtotal: | = | $322,590 | |
| (+) Senior Appraised Value: | + | $0 | |
| (+) Non-Senior Appraised Value: | + | $322,590 | |
| | | -------------------------- | |
| (=) Total Appraised Value: | = | $322,590 | |
| (–) Senior Exemption Loss: | – | $0 | |
| (–) Exemption Loss: | – | $0 | |
| | | -------------------------- | |
| (=) Taxable Value: | = | $322,590 | |
Taxing Jurisdiction
| Owner: | BROWN JENNY L | | |
| % Ownership: | 100.0000000000% | | |
| Total Value: | $322,590 | | |
| Tax Area: | 1 - OL-140-F |
| CERFD | CURRENT EXPENSE REFUND 010 | 0.0000000000 | $322,590 | $322,590 | $0.00 | | |
| CURREXP | CURRENT EXPENSE 010 | 1.0175366760 | $322,590 | $322,590 | $328.25 | | |
| HUMNSERV | HUMAN SERVICES 119 | 0.0250000000 | $322,590 | $322,590 | $8.06 | | |
| SLDREL | SOLDIERS RELIEF 121 | 0.0155990005 | $322,590 | $322,590 | $5.03 | | |
| EMERGSER | EMS 147 | 0.3792580840 | $322,590 | $322,590 | $122.34 | | |
| EMSRFD | EMS REFUND 147 | 0.0000000000 | $322,590 | $322,590 | $0.00 | | |
| PORTRFD | PORT REFUND 640 | 0.0000000000 | $322,590 | $322,590 | $0.00 | | |
| PORTWWGEN | PORT OF WW 640 | 0.2460186015 | $322,590 | $322,590 | $79.36 | | |
| SD140BOND | SD #140 BOND 764 | 0.8342371393 | $322,590 | $322,590 | $269.12 | | |
| SD140GEN | SD #140 GENERAL 760 | 2.0646500647 | $322,590 | $322,590 | $666.04 | | |
| ST2 | STATE SCHOOL PART 2 600 | 0.8131451643 | $322,590 | $322,590 | $262.31 | | |
| STATESCHL | STATE SCHOOL 600 | 1.5158548041 | $322,590 | $322,590 | $489.00 | | |
| STREFUND | STATE REFUND LEVY 603 | 0.0000000000 | $322,590 | $322,590 | $0.00 | | |
| CWWBOND | C OF WW BOND 643 | 0.2760494372 | $322,590 | $322,590 | $89.05 | | |
| CWWGEN | CITY OF WW 631 | 1.6100204973 | $322,590 | $322,590 | $519.38 | | |
| CWWRFD | CITY OF WALLA WALLA REFUND 631 | 0.0000000000 | $322,590 | $322,590 | $0.00 | | |
| | Total Tax Rate: | 8.7973694689 | | | | | |
| | | | | Taxes w/Current Exemptions: | $2,837.94 | | |
| | | | | Taxes w/o Exemptions: | $2,837.94 | | |
Improvement / Building
| Improvement #1: | RESIDENTIAL | State Code: | 11 | 1101.0 sqft | Value: | $270,390 |
| Exterior Wall: | SIDING | Heating/Cooling: | WARM & COOLED AIR | | Number of Bathrooms: | 2 | Number of Bedrooms: | 3 | | Plumbing: | 11 | Roof Covering: | COMP SHINGLE |
|
| | Type | Description | Class CD | Sub Class CD | Year Built | Area |
| | MA | Main Area | 1 | 35 | 1916 | 1101.0 |
| | SI1 | SITE IMPROVEMENT | 1 | 35 | 1916 | 1.5 |
| | S1F | Single One Story Fireplace | 1 | 35 | 1916 | 1.0 |
| | WOD | Wood Deck | 1 | 35 | 1916 | 40.0 |
| | PRC | PORCH W STEPS, ROOF,CEILED | 1 | 35 | 1916 | 91.0 |
Sketch
Property Image
Land
| 1 | RES 1 | Converted: Residential | 0.1653 | 7200.00 | 0.00 | 0.00 | 1.00 | $52,200 | $0 |
Roll Value History
| 2025 | N/A | N/A | N/A | N/A | N/A |
| 2024 | $292,750 | $79,200 | $0 | $371,950 | $371,950 |
| 2023 | $270,390 | $52,200 | $0 | $322,590 | $322,590 |
| 2022 | $245,810 | $52,200 | $0 | $298,010 | $298,010 |
| 2021 | $196,650 | $52,200 | $0 | $248,850 | $248,850 |
| 2020 | $163,880 | $52,200 | $0 | $216,080 | $216,080 |
| 2019 | $163,880 | $52,200 | $0 | $216,080 | $216,080 |
| 2018 | $142,500 | $52,200 | $0 | $194,700 | $194,700 |
| 2017 | $155,230 | $32,400 | $0 | $187,630 | $187,630 |
| 2016 | $129,360 | $32,400 | $0 | $161,760 | $161,760 |
| 2015 | $129,360 | $32,400 | $0 | $161,760 | $161,760 |
| 2014 | $123,200 | $32,400 | $0 | $155,600 | $155,600 |
| 2013 | $123,200 | $32,400 | $0 | $155,600 | $155,600 |
| 2012 | $86,200 | $32,400 | $0 | $0 | $0 |
| 2011 | $86,200 | $32,400 | $0 | $0 | $0 |
| 2010 | $78,800 | $32,400 | $0 | $0 | $0 |
| 2009 | $91,100 | $32,400 | $0 | $0 | $0 |
| 2008 | $62,700 | $28,800 | $0 | $0 | $0 |
| 2007 | $62,700 | $28,800 | $0 | $0 | $0 |
| 2006 | $58,300 | $14,400 | $0 | $0 | $0 |
Deed and Sales History
| 1 | 05/24/2024 | SWD | STATUTORY WARRANTY DEED | BROWN JENNY L | MICHAEL DANIEL & HEATHER | | | $488,000.00 | 147614 | 2024-02778 |
| 2 | 12/08/2011 | WARRANTY D | WARRANTY DEED | MUSICK, WILLIAM R & REBECCA K | BROWN, JENNY L | | | $160,000.00 | 121101 | 2011-09660 |
| 3 | 05/16/2005 | WARRANTY D | WARRANTY DEED | HEISER, GRETA N | MUSICK, WILLIAM R & REBECCA K | | | $90,000.00 | 107493 | 2005-05855 |
| 4 | 09/30/1997 | WARRANTY D | WARRANTY DEED | | | | | $75,000.00 | 89033 | 2579-709461 |
Payout Agreement
| No payout information available.. |