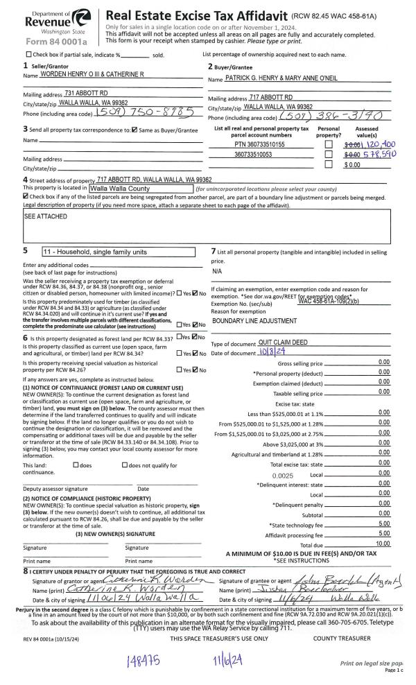
Property
Account |
| Property ID: | 15083 | Abbreviated Legal Description: | WOODBURY ESTATES LOT 2 |
| Parcel Number: | 360728860002 | Agent Code: | |
| Type: | Real | | |
| Tax Area: | 6 - OL-140-F-FB | Land Use Code | 11 |
| Open Space: | N | DFL | N |
| Historic Property: | N | Remodel Property: | N |
| Multi-Family Redevelopment: | N | | |
| Township: | | Section: | |
| Range: | |
Location |
| Address: | 728 WOODBURY LN WA 99362 | Mapsco: | |
| Neighborhood: | A Res | Map ID: | |
| Neighborhood CD: | 613011 |
Owner |
| Name: | WILLIAMS MATTHEW W & LINDSEY M | Owner ID: | 49220 |
| Mailing Address: | 728 WOODBURY LN WALLA WALLA, WA 99362 | % Ownership: | 100.0000000000% |
| | | Exemptions: | |
Taxes and Assessment Details
Values
| (+) Improvement Homesite Value: | + | $0 | |
| (+) Improvement Non-Homesite Value: | + | $420,730 | |
| (+) Land Homesite Value: | + | $0 | |
| (+) Land Non-Homesite Value: | + | $85,000 | |
| (+) Curr Use (HS): | + | $0 | $0 |
| (+) Curr Use (NHS): | + | $0 | $0 |
| | | -------------------------- | |
| (=) Market Value: | = | $505,730 | |
| (–) Productivity Loss: | – | $0 | |
| | | -------------------------- | |
| (=) Subtotal: | = | $505,730 | |
| (+) Senior Appraised Value: | + | $0 | |
| (+) Non-Senior Appraised Value: | + | $505,730 | |
| | | -------------------------- | |
| (=) Total Appraised Value: | = | $505,730 | |
| (–) Senior Exemption Loss: | – | $0 | |
| (–) Exemption Loss: | – | $0 | |
| | | -------------------------- | |
| (=) Taxable Value: | = | $505,730 | |
Taxing Jurisdiction
| Owner: | WILLIAMS MATTHEW W & LINDSEY M | | |
| % Ownership: | 100.0000000000% | | |
| Total Value: | $505,730 | | |
| Tax Area: | 6 - OL-140-F-FB |
| CERFD | CURRENT EXPENSE REFUND 010 | 0.0000000000 | $505,730 | $505,730 | $0.00 | | |
| CURREXP | CURRENT EXPENSE 010 | 1.0175366760 | $505,730 | $505,730 | $514.60 | | |
| HUMNSERV | HUMAN SERVICES 119 | 0.0250000000 | $505,730 | $505,730 | $12.64 | | |
| SLDREL | SOLDIERS RELIEF 121 | 0.0155990005 | $505,730 | $505,730 | $7.89 | | |
| EMERGSER | EMS 147 | 0.3792580840 | $505,730 | $505,730 | $191.80 | | |
| EMSRFD | EMS REFUND 147 | 0.0000000000 | $505,730 | $505,730 | $0.00 | | |
| PORTRFD | PORT REFUND 640 | 0.0000000000 | $505,730 | $505,730 | $0.00 | | |
| PORTWWGEN | PORT OF WW 640 | 0.2460186015 | $505,730 | $505,730 | $124.42 | | |
| SD140BOND | SD #140 BOND 764 | 0.8342371393 | $505,730 | $505,730 | $421.90 | | |
| SD140GEN | SD #140 GENERAL 760 | 2.0646500647 | $505,730 | $505,730 | $1,044.16 | | |
| ST2 | STATE SCHOOL PART 2 600 | 0.8131451643 | $505,730 | $505,730 | $411.23 | | |
| STATESCHL | STATE SCHOOL 600 | 1.5158548041 | $505,730 | $505,730 | $766.61 | | |
| STREFUND | STATE REFUND LEVY 603 | 0.0000000000 | $505,730 | $505,730 | $0.00 | | |
| CWWBOND | C OF WW BOND 643 | 0.2760494372 | $505,730 | $505,730 | $139.61 | | |
| CWWGEN | CITY OF WW 631 | 1.6100204973 | $505,730 | $505,730 | $814.24 | | |
| CWWRFD | CITY OF WALLA WALLA REFUND 631 | 0.0000000000 | $505,730 | $505,730 | $0.00 | | |
| | Total Tax Rate: | 8.7973694689 | | | | | |
| | | | | Taxes w/Current Exemptions: | $4,449.10 | | |
| | | | | Taxes w/o Exemptions: | $4,449.10 | | |
Improvement / Building
| Improvement #1: | RESIDENTIAL | State Code: | 11 | 1984.0 sqft | Value: | $420,730 |
| Exterior Wall: | SHINGLE | Heating/Cooling: | WARM & COOLED AIR | | Number of Bathrooms: | 2 | Number of Bedrooms: | 4 | | Plumbing: | 12 | Roof Covering: | COMP SHINGLE |
|
| | Type | Description | Class CD | Sub Class CD | Year Built | Area |
| | MA | Main Area | 1 | 40 | 2006 | 1984.0 |
| | SI1 | SITE IMPROVEMENT | 1 | 40 | 2006 | 2.5 |
| | GFP | GAS FIREPLACE | 1 | 40 | 2006 | 1.0 |
| | ATG | Attached Garage | 1 | 40 | 2006 | 441.0 |
Sketch
Property Image
Land
| 1 | RES 1 | Converted: Residential | 0.1892 | 8243.00 | 0.00 | 0.00 | 1.00 | $85,000 | $0 |
Roll Value History
| 2025 | N/A | N/A | N/A | N/A | N/A |
| 2024 | $420,730 | $85,000 | $0 | $505,730 | $505,730 |
| 2023 | $420,730 | $85,000 | $0 | $505,730 | $505,730 |
| 2022 | $365,860 | $75,000 | $0 | $440,860 | $440,860 |
| 2021 | $318,140 | $75,000 | $0 | $393,140 | $393,140 |
| 2020 | $244,720 | $75,000 | $0 | $319,720 | $319,720 |
| 2019 | $244,720 | $75,000 | $0 | $319,720 | $319,720 |
| 2018 | $263,660 | $50,000 | $0 | $313,660 | $313,660 |
| 2017 | $239,690 | $50,000 | $0 | $289,690 | $289,690 |
| 2016 | $239,690 | $50,000 | $0 | $289,690 | $289,690 |
| 2015 | $239,690 | $50,000 | $0 | $289,690 | $289,690 |
| 2014 | $217,900 | $50,000 | $0 | $267,900 | $267,900 |
| 2013 | $217,900 | $50,000 | $0 | $267,900 | $267,900 |
| 2012 | $219,700 | $50,000 | $0 | $0 | $0 |
| 2011 | $190,800 | $50,000 | $0 | $0 | $0 |
| 2010 | $168,900 | $50,000 | $0 | $0 | $0 |
| 2009 | $193,200 | $50,000 | $0 | $0 | $0 |
| 2008 | $193,200 | $50,000 | $0 | $0 | $0 |
| 2007 | $213,500 | $23,100 | $0 | $0 | $0 |
| 2006 | $0 | $7,800 | $0 | $0 | $0 |
Deed and Sales History
| 1 | 07/31/2024 | QCD | QUIT CLAIM DEED | MENA JESSE JOE | MENA EVELYN HOPE | | | | 147956 | 2024-04174 |
| 2 | 07/31/2024 | SWD | STATUTORY WARRANTY DEED | WILLIAMS MATTHEW W & LINDSEY M | MENA EVELYN HOPE | | | $580,451.00 | 147955 | 2024-04173 |
| 3 | 06/30/2017 | SWD | STATUTORY WARRANTY DEED | DOMINGUEZ CHAUNDRA L | WILLIAMS MATTHEW W & LINDSEY M | | | $329,000.00 | 132703 | 2017-05031 |
| 4 | 06/15/2010 | WARRANTY D | WARRANTY DEED | OLTMAN, JAKE & CRYSTAL | DOMINGUEZ, CHAUNDRA L | | | $272,000.00 | 118622 | 2010-04612 |
| 5 | 04/29/2005 | WARRANTY D | WARRANTY DEED | GALL, GARY F | OLTMAN, JAKE & CRYSTAL | | | $50,000.00 | 107364 | 2005-04924 |
Payout Agreement
| No payout information available.. |