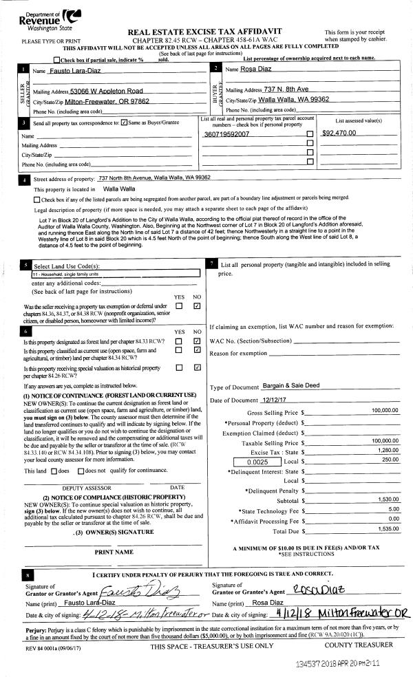
Property
Account |
| Property ID: | 15069 | Abbreviated Legal Description: | 13-7-38 SW1/4SE1/4 |
| Parcel Number: | 380713430010 | Agent Code: | |
| Type: | Real | | |
| Tax Area: | 309 - 101 | Land Use Code | 88 |
| Open Space: | N | DFL | Y |
| Historic Property: | N | Remodel Property: | N |
| Multi-Family Redevelopment: | N | | |
| Township: | 7 | Section: | 13 |
| Range: | 38 |
Location |
| Address: | 242 DENT RD WA 99329 | Mapsco: | |
| Neighborhood: | 0 Farm | Map ID: | |
| Neighborhood CD: | 5250 |
Owner |
| Name: | OLSON HANS E & NOELLE T | Owner ID: | 62896 |
| Mailing Address: | 504 W 2ND ST WAITSBURG, WA 99361 | % Ownership: | 100.0000000000% |
| | | Exemptions: | |
Taxes and Assessment Details
Values
| (+) Improvement Homesite Value: | + | $0 | |
| (+) Improvement Non-Homesite Value: | + | $67,500 | |
| (+) Land Homesite Value: | + | $0 | |
| (+) Land Non-Homesite Value: | + | $0 | |
| (+) Curr Use (HS): | + | $0 | $0 |
| (+) Curr Use (NHS): | + | $78,500 | $22,610 |
| | | -------------------------- | |
| (=) Market Value: | = | $146,000 | |
| (–) Productivity Loss: | – | $55,890 | |
| | | -------------------------- | |
| (=) Subtotal: | = | $90,110 | |
| (+) Senior Appraised Value: | + | $0 | |
| (+) Non-Senior Appraised Value: | + | $90,110 | |
| | | -------------------------- | |
| (=) Total Appraised Value: | = | $90,110 | |
| (–) Senior Exemption Loss: | – | $0 | |
| (–) Exemption Loss: | – | $0 | |
| | | -------------------------- | |
| (=) Taxable Value: | = | $90,110 | |
Taxing Jurisdiction
| Owner: | OLSON HANS E & NOELLE T | | |
| % Ownership: | 100.0000000000% | | |
| Total Value: | $146,000 | | |
| Tax Area: | 309 - 101 |
| CERFD | CURRENT EXPENSE REFUND 010 | 0.0000000000 | $90,110 | $90,110 | $0.00 | | |
| CURREXP | CURRENT EXPENSE 010 | 1.0175366760 | $90,110 | $90,110 | $91.69 | | |
| HUMNSERV | HUMAN SERVICES 119 | 0.0250000000 | $90,110 | $90,110 | $2.25 | | |
| SLDREL | SOLDIERS RELIEF 121 | 0.0155990005 | $90,110 | $90,110 | $1.41 | | |
| EMERGSER | EMS 147 | 0.3792580840 | $90,110 | $90,110 | $34.17 | | |
| EMSRFD | EMS REFUND 147 | 0.0000000000 | $90,110 | $90,110 | $0.00 | | |
| RLBRFD | RURAL LIBRARY REFUND 623 | 0.0000000000 | $90,110 | $90,110 | $0.00 | | |
| RURALLIB | RURAL LIBRARY 623 | 0.3710609029 | $90,110 | $90,110 | $33.44 | | |
| PORTRFD | PORT REFUND 640 | 0.0000000000 | $90,110 | $90,110 | $0.00 | | |
| PORTWWGEN | PORT OF WW 640 | 0.2460186015 | $90,110 | $90,110 | $22.17 | | |
| SD101CAP | SD #101 CAP 752 | 0.5894423472 | $90,110 | $90,110 | $53.11 | | |
| SD101GEN | SD #101 GENERAL 750 | 0.7455117868 | $90,110 | $90,110 | $67.18 | | |
| ST2 | STATE SCHOOL PART 2 600 | 0.8131451643 | $90,110 | $90,110 | $73.27 | | |
| STATESCHL | STATE SCHOOL 600 | 1.5158548041 | $90,110 | $90,110 | $136.59 | | |
| STREFUND | STATE REFUND LEVY 603 | 0.0000000000 | $90,110 | $90,110 | $0.00 | | |
| COROAD | COUNTY ROAD 115 | 1.6549953990 | $90,110 | $90,110 | $149.13 | | |
| CRPRD | COUNTY ROAD REFUND 115 | 0.0000000000 | $90,110 | $90,110 | $0.00 | | |
| | Total Tax Rate: | 7.3734227663 | | | | | |
| | | | | Taxes w/Current Exemptions: | $664.41 | | |
| | | | | Taxes w/o Exemptions: | $664.41 | | |
Improvement / Building
| Improvement #1: | RESIDENTIAL | State Code: | 88 | 1440.0 sqft | Value: | $67,500 |
| Exterior Wall: | FINSHED CABIN | Number of Bathrooms: | 1 | | Number of Bedrooms: | 2 | Roof Covering: | GALVANIZED METAL |
|
| | Type | Description | Class CD | Sub Class CD | Year Built | Area |
| | MA | Main Area | CABIN AVE- | CABFN | 2003 | 1440.0 |
| | UPFL | Upper Floor (included in main area) | CABIN AVE- | CABFN | 2003 | 432.0 |
| | CPC | COVERED CARPORT/PATIO | CABIN AVE- | CABFN | 2003 | 576.0 |
| | UTST | Utility Storage Shed | CABIN AVE- | 20 | 2003 | 192.0 |
| | BLW | WOOD BALCONIES | CABIN AVE- | CABFN | 2003 | 96.0 |
| | BLW | WOOD BALCONIES | CABIN AVE- | CABFN | 2003 | 48.0 |
| | WOD | Wood Deck | CABIN AVE- | CABFN | 2003 | 96.0 |
| | WOD | Wood Deck | CABIN AVE- | CABFN | 2003 | 96.0 |
Sketch
Property Image
Land
| 1 | 20,000-CS | CABIN SITE @ 20,000 | 1.0000 | 0.00 | 0.00 | 0.00 | 1.00 | $20,000 | $20,000 |
| 2 | 12-TBR | TBR @ 1,500 | 39.0000 | 0.00 | 0.00 | 0.00 | 1.00 | $58,500 | $2,610 |
Roll Value History
| 2025 | N/A | N/A | N/A | N/A | N/A |
| 2024 | $67,500 | $93,500 | $37,650 | $105,150 | $105,150 |
| 2023 | $67,500 | $78,500 | $22,610 | $90,110 | $90,110 |
| 2022 | $67,500 | $78,500 | $22,570 | $90,070 | $90,070 |
| 2021 | $67,500 | $78,500 | $22,570 | $90,070 | $90,070 |
| 2020 | $67,500 | $78,500 | $22,570 | $90,070 | $90,070 |
| 2019 | $67,500 | $78,500 | $22,460 | $89,960 | $89,960 |
| 2018 | $67,500 | $78,500 | $22,420 | $89,920 | $89,920 |
| 2017 | $26,200 | $28,400 | $7,420 | $33,620 | $33,620 |
| 2016 | $26,200 | $28,400 | $7,380 | $33,580 | $33,580 |
| 2015 | $26,200 | $28,400 | $7,260 | $33,460 | $33,460 |
| 2014 | $26,200 | $28,400 | $7,180 | $33,380 | $33,380 |
| 2013 | $26,200 | $28,400 | $7,200 | $33,400 | $33,400 |
| 2012 | $26,200 | $7,400 | $0 | $0 | $0 |
| 2011 | $0 | $4,900 | $0 | $0 | $0 |
| 2010 | $0 | $4,900 | $0 | $0 | $0 |
| 2009 | $0 | $4,800 | $0 | $0 | $0 |
| 2008 | $0 | $7,900 | $0 | $0 | $0 |
| 2007 | $0 | $7,900 | $0 | $0 | $0 |
| 2006 | $0 | $7,900 | $0 | $0 | $0 |
Deed and Sales History
| 1 | 04/12/2018 | SWD | STATUTORY WARRANTY DEED | GRITMAN FRED C | OLSON HANS E & NOELLE T | | | $180,000.00 | 134490 | 2018-02831 |
| 2 | 01/21/2004 | QCD | QUIT CLAIM DEED | GRITMAN, CARLA J | GRITMAN, FRED C | | | | 103961 | 2004-00731 |
| 3 | 12/23/2003 | WARRANTY D | WARRANTY DEED | GRITMAN, CARLA J | GRITMAN, FRED C | | | | 0 | 002-3-00298-1 |
| 4 | 04/14/1995 | WARRANTY D | WARRANTY DEED | | | | | $25,000.00 | 83831 | 2299-503456 |
Payout Agreement
| No payout information available.. |