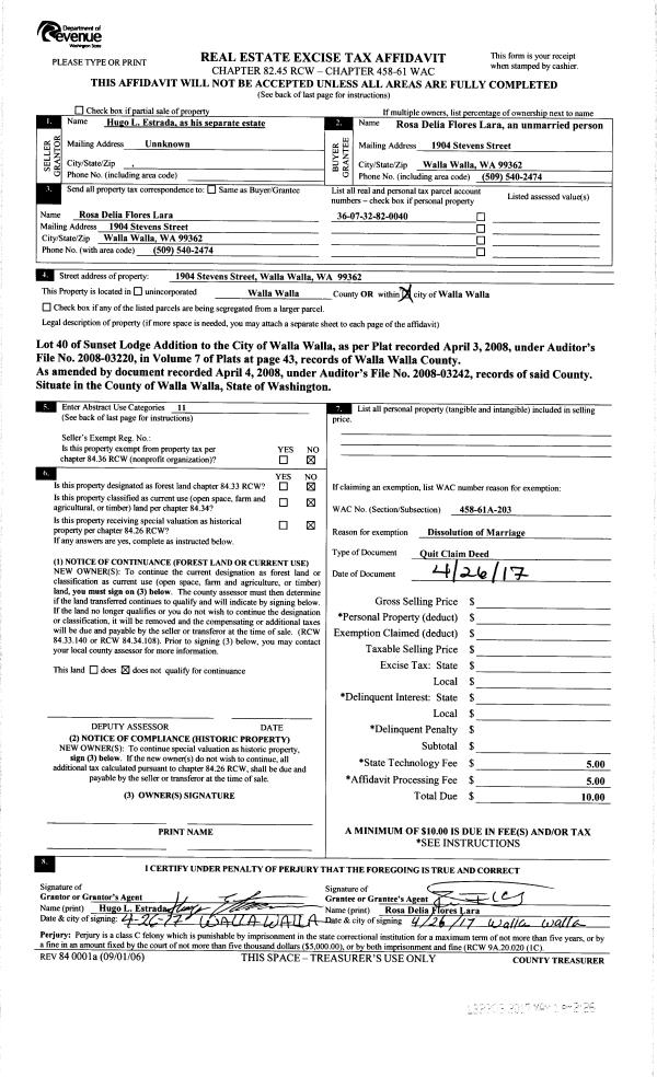
Property
Account |
| Property ID: | 1486 | Abbreviated Legal Description: | AUTUMN MEADOWS LT 10 BLK 3 |
| Parcel Number: | 350736970310 | Agent Code: | |
| Type: | Real | | |
| Tax Area: | 77 - CP-250-F | Land Use Code | 11 |
| Open Space: | N | DFL | N |
| Historic Property: | N | Remodel Property: | N |
| Multi-Family Redevelopment: | N | | |
| Township: | 7 | Section: | 36 |
| Range: | 35 |
Location |
| Address: | 1169 SE SURITA CT WA 99324 | Mapsco: | |
| Neighborhood: | A SFR | Map ID: | |
| Neighborhood CD: | 113011 |
Owner |
| Name: | TIDWELL NATHAN & MARJORIE | Owner ID: | 61293 |
| Mailing Address: | 4203 STRATTON LN OOLTEWAH, TN 37363 | % Ownership: | 100.0000000000% |
| | | Exemptions: | |
Taxes and Assessment Details
Values
| (+) Improvement Homesite Value: | + | $0 | |
| (+) Improvement Non-Homesite Value: | + | $365,330 | |
| (+) Land Homesite Value: | + | $0 | |
| (+) Land Non-Homesite Value: | + | $70,000 | |
| (+) Curr Use (HS): | + | $0 | $0 |
| (+) Curr Use (NHS): | + | $0 | $0 |
| | | -------------------------- | |
| (=) Market Value: | = | $435,330 | |
| (–) Productivity Loss: | – | $0 | |
| | | -------------------------- | |
| (=) Subtotal: | = | $435,330 | |
| (+) Senior Appraised Value: | + | $0 | |
| (+) Non-Senior Appraised Value: | + | $435,330 | |
| | | -------------------------- | |
| (=) Total Appraised Value: | = | $435,330 | |
| (–) Senior Exemption Loss: | – | $0 | |
| (–) Exemption Loss: | – | $0 | |
| | | -------------------------- | |
| (=) Taxable Value: | = | $435,330 | |
Taxing Jurisdiction
| Owner: | TIDWELL NATHAN & MARJORIE | | |
| % Ownership: | 100.0000000000% | | |
| Total Value: | $435,330 | | |
| Tax Area: | 77 - CP-250-F |
| CERFD | CURRENT EXPENSE REFUND 010 | 0.0000000000 | $435,330 | $435,330 | $0.00 | | |
| CURREXP | CURRENT EXPENSE 010 | 1.0175366760 | $435,330 | $435,330 | $442.96 | | |
| HUMNSERV | HUMAN SERVICES 119 | 0.0250000000 | $435,330 | $435,330 | $10.88 | | |
| SLDREL | SOLDIERS RELIEF 121 | 0.0155990005 | $435,330 | $435,330 | $6.79 | | |
| COLLPLBOND | C OF CP BOND 644 | 0.4374241808 | $435,330 | $435,330 | $190.42 | | |
| COLLPLGEN | CITY OF CP 632 | 1.4453819216 | $435,330 | $435,330 | $629.22 | | |
| EMERGSER | EMS 147 | 0.3792580840 | $435,330 | $435,330 | $165.10 | | |
| EMSRFD | EMS REFUND 147 | 0.0000000000 | $435,330 | $435,330 | $0.00 | | |
| RURALLIB | RURAL LIBRARY 623 | 0.3710609029 | $435,330 | $435,330 | $161.53 | | |
| PORTRFD | PORT REFUND 640 | 0.0000000000 | $435,330 | $435,330 | $0.00 | | |
| PORTWWGEN | PORT OF WW 640 | 0.2460186015 | $435,330 | $435,330 | $107.10 | | |
| SD250BOND | SD #250 BOND 773 | 1.4560608159 | $435,330 | $435,330 | $633.87 | | |
| SD250GEN | SD #250 GENERAL 770 | 2.3880724087 | $435,330 | $435,330 | $1,039.60 | | |
| ST2 | STATE SCHOOL PART 2 600 | 0.8131451643 | $435,330 | $435,330 | $353.99 | | |
| STATESCHL | STATE SCHOOL 600 | 1.5158548041 | $435,330 | $435,330 | $659.90 | | |
| STREFUND | STATE REFUND LEVY 603 | 0.0000000000 | $435,330 | $435,330 | $0.00 | | |
| | Total Tax Rate: | 10.1104125603 | | | | | |
| | | | | Taxes w/Current Exemptions: | $4,401.36 | | |
| | | | | Taxes w/o Exemptions: | $4,401.36 | | |
Improvement / Building
| Improvement #1: | RESIDENTIAL | State Code: | 11 | 2454.0 sqft | Value: | $365,330 |
| Exterior Wall: | PLYWOOD | Heating/Cooling: | WARM & COOLED AIR | | Number of Bathrooms: | 2 | Number of Bedrooms: | 4 | | Plumbing: | 9 | Roof Covering: | COMP SHINGLE |
|
| | Type | Description | Class CD | Sub Class CD | Year Built | Area |
| | MA | Main Area | 2 | 30 | 2003 | 2454.0 |
| | UPFL | Upper Floor (included in main area) | 2 | 30 | 2003 | 1446.0 |
| | SI1 | SITE IMPROVEMENT | 2 | 30 | 2003 | 2.0 |
| | ATG | Attached Garage | 2 | 30 | 2003 | 520.0 |
| | RPC | OPEN PORCH W/ROOF , CEILED | 2 | 30 | 2003 | 216.0 |
| | GFP | GAS FIREPLACE | 2 | 30 | 2003 | 1.0 |
Sketch
Property Image
Land
| 1 | RES 1 | Converted: Residential | 0.1573 | 6853.00 | 0.00 | 0.00 | 1.00 | $70,000 | $0 |
Roll Value History
| 2025 | N/A | N/A | N/A | N/A | N/A |
| 2024 | $365,330 | $70,000 | $0 | $435,330 | $435,330 |
| 2023 | $365,330 | $70,000 | $0 | $435,330 | $435,330 |
| 2022 | $365,330 | $70,000 | $0 | $435,330 | $435,330 |
| 2021 | $270,610 | $70,000 | $0 | $340,610 | $340,610 |
| 2020 | $186,630 | $70,000 | $0 | $256,630 | $256,630 |
| 2019 | $201,630 | $55,000 | $0 | $256,630 | $256,630 |
| 2018 | $192,020 | $55,000 | $0 | $247,020 | $247,020 |
| 2017 | $160,020 | $55,000 | $0 | $215,020 | $215,020 |
| 2016 | $160,020 | $55,000 | $0 | $215,020 | $215,020 |
| 2015 | $152,400 | $55,000 | $0 | $207,400 | $207,400 |
| 2014 | $127,000 | $55,000 | $0 | $182,000 | $182,000 |
| 2013 | $127,000 | $55,000 | $0 | $182,000 | $182,000 |
| 2012 | $127,000 | $55,000 | $0 | $0 | $0 |
| 2011 | $159,100 | $55,000 | $0 | $0 | $0 |
| 2010 | $159,100 | $55,000 | $0 | $0 | $0 |
| 2009 | $182,900 | $55,000 | $0 | $0 | $0 |
| 2008 | $134,700 | $30,000 | $0 | $0 | $0 |
| 2007 | $134,700 | $30,000 | $0 | $0 | $0 |
| 2006 | $134,700 | $30,000 | $0 | $0 | $0 |
Deed and Sales History
| 1 | 07/07/2017 | SWD | STATUTORY WARRANTY DEED | HINER TAD L & GRACE E | TIDWELL NATHAN & MARJORIE | | | $254,000.00 | 132742 | 2017-05223 |
| 2 | 05/23/2003 | WARRANTY D | WARRANTY DEED | HAYDEN ENTERPRISES INC | HINER, TAD L & GRACE E | | | $165,981.00 | 102144 | 2003-07599 |
| 3 | 08/21/2002 | WARRANTY D | WARRANTY DEED | VILLAGE PARK COLLEGE PLACE~LLC | | | | | 100199 | 2002-09391 |
Payout Agreement
| No payout information available.. |