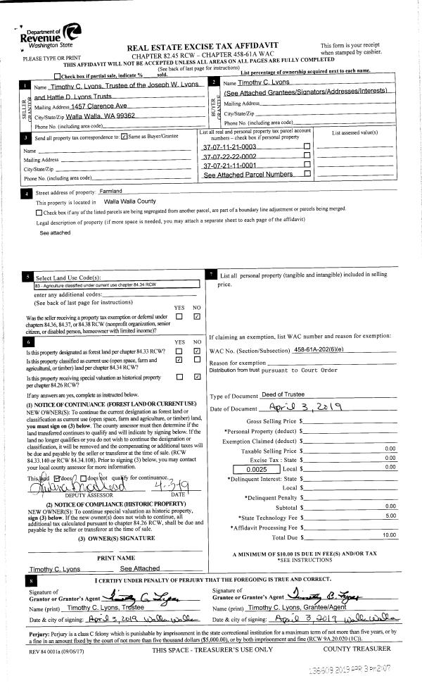
Property
Account |
| Property ID: | 1485 | Abbreviated Legal Description: | AUTUMN MEADOWS LT 5 BLK 5 |
| Parcel Number: | 350736970505 | Agent Code: | |
| Type: | Real | | |
| Tax Area: | 77 - CP-250-F | Land Use Code | 11 |
| Open Space: | N | DFL | N |
| Historic Property: | N | Remodel Property: | N |
| Multi-Family Redevelopment: | N | | |
| Township: | 7 | Section: | 36 |
| Range: | 35 |
Location |
| Address: | 1423 SE NEWGATE DR WA 99324 | Mapsco: | |
| Neighborhood: | A SFR | Map ID: | |
| Neighborhood CD: | 113011 |
Owner |
| Name: | FORTNEY MARTIN ERIK | Owner ID: | 70142 |
| Mailing Address: | 1423 SE NEWGATE DR COLLEGE PLACE, WA 99324 | % Ownership: | 100.0000000000% |
| | | Exemptions: | |
Taxes and Assessment Details
Values
| (+) Improvement Homesite Value: | + | $0 | |
| (+) Improvement Non-Homesite Value: | + | $238,500 | |
| (+) Land Homesite Value: | + | $0 | |
| (+) Land Non-Homesite Value: | + | $70,000 | |
| (+) Curr Use (HS): | + | $0 | $0 |
| (+) Curr Use (NHS): | + | $0 | $0 |
| | | -------------------------- | |
| (=) Market Value: | = | $308,500 | |
| (–) Productivity Loss: | – | $0 | |
| | | -------------------------- | |
| (=) Subtotal: | = | $308,500 | |
| (+) Senior Appraised Value: | + | $0 | |
| (+) Non-Senior Appraised Value: | + | $308,500 | |
| | | -------------------------- | |
| (=) Total Appraised Value: | = | $308,500 | |
| (–) Senior Exemption Loss: | – | $0 | |
| (–) Exemption Loss: | – | $0 | |
| | | -------------------------- | |
| (=) Taxable Value: | = | $308,500 | |
Taxing Jurisdiction
| Owner: | FORTNEY MARTIN ERIK | | |
| % Ownership: | 100.0000000000% | | |
| Total Value: | $308,500 | | |
| Tax Area: | 77 - CP-250-F |
| CERFD | CURRENT EXPENSE REFUND 010 | 0.0000000000 | $308,500 | $308,500 | $0.00 | | |
| CURREXP | CURRENT EXPENSE 010 | 1.0175366760 | $308,500 | $308,500 | $313.91 | | |
| HUMNSERV | HUMAN SERVICES 119 | 0.0250000000 | $308,500 | $308,500 | $7.71 | | |
| SLDREL | SOLDIERS RELIEF 121 | 0.0155990005 | $308,500 | $308,500 | $4.81 | | |
| COLLPLBOND | C OF CP BOND 644 | 0.4374241808 | $308,500 | $308,500 | $134.95 | | |
| COLLPLGEN | CITY OF CP 632 | 1.4453819216 | $308,500 | $308,500 | $445.90 | | |
| EMERGSER | EMS 147 | 0.3792580840 | $308,500 | $308,500 | $117.00 | | |
| EMSRFD | EMS REFUND 147 | 0.0000000000 | $308,500 | $308,500 | $0.00 | | |
| RURALLIB | RURAL LIBRARY 623 | 0.3710609029 | $308,500 | $308,500 | $114.47 | | |
| PORTRFD | PORT REFUND 640 | 0.0000000000 | $308,500 | $308,500 | $0.00 | | |
| PORTWWGEN | PORT OF WW 640 | 0.2460186015 | $308,500 | $308,500 | $75.90 | | |
| SD250BOND | SD #250 BOND 773 | 1.4560608159 | $308,500 | $308,500 | $449.19 | | |
| SD250GEN | SD #250 GENERAL 770 | 2.3880724087 | $308,500 | $308,500 | $736.72 | | |
| ST2 | STATE SCHOOL PART 2 600 | 0.8131451643 | $308,500 | $308,500 | $250.86 | | |
| STATESCHL | STATE SCHOOL 600 | 1.5158548041 | $308,500 | $308,500 | $467.64 | | |
| STREFUND | STATE REFUND LEVY 603 | 0.0000000000 | $308,500 | $308,500 | $0.00 | | |
| | Total Tax Rate: | 10.1104125603 | | | | | |
| | | | | Taxes w/Current Exemptions: | $3,119.06 | | |
| | | | | Taxes w/o Exemptions: | $3,119.06 | | |
Improvement / Building
| Improvement #1: | RESIDENTIAL | State Code: | 11 | 1008.0 sqft | Value: | $238,500 |
| Exterior Wall: | PLYWOOD | Heating/Cooling: | WARM & COOLED AIR | | Number of Bathrooms: | 2 | Number of Bedrooms: | 2 | | Plumbing: | 9 | Roof Covering: | COMP SHINGLE |
|
| | Type | Description | Class CD | Sub Class CD | Year Built | Area |
| | MA | Main Area | 1 | 30 | 2003 | 1008.0 |
| | SI1 | SITE IMPROVEMENT | 1 | 30 | 2003 | 1.5 |
| | ATG | Attached Garage | 1 | 30 | 2003 | 400.0 |
| | RPC | OPEN PORCH W/ROOF , CEILED | 1 | 30 | 2003 | 64.0 |
Sketch
Property Image
Land
| 1 | RES 1 | Converted: Residential | 0.1106 | 4817.00 | 0.00 | 0.00 | 1.00 | $70,000 | $0 |
Roll Value History
| 2025 | N/A | N/A | N/A | N/A | N/A |
| 2024 | $238,500 | $70,000 | $0 | $308,500 | $308,500 |
| 2023 | $238,500 | $70,000 | $0 | $308,500 | $308,500 |
| 2022 | $207,390 | $70,000 | $0 | $277,390 | $277,390 |
| 2021 | $165,920 | $70,000 | $0 | $235,920 | $235,920 |
| 2020 | $110,610 | $70,000 | $0 | $180,610 | $180,610 |
| 2019 | $125,610 | $55,000 | $0 | $180,610 | $180,610 |
| 2018 | $109,230 | $55,000 | $0 | $164,230 | $164,230 |
| 2017 | $104,030 | $55,000 | $0 | $159,030 | $159,030 |
| 2016 | $86,690 | $55,000 | $0 | $141,690 | $141,690 |
| 2015 | $82,560 | $55,000 | $0 | $137,560 | $137,560 |
| 2014 | $68,800 | $55,000 | $0 | $123,800 | $123,800 |
| 2013 | $68,800 | $55,000 | $0 | $123,800 | $123,800 |
| 2012 | $82,500 | $55,000 | $0 | $0 | $0 |
| 2011 | $89,700 | $55,000 | $0 | $0 | $0 |
| 2010 | $89,700 | $55,000 | $0 | $0 | $0 |
| 2009 | $105,800 | $55,000 | $0 | $0 | $0 |
| 2008 | $74,400 | $30,000 | $0 | $0 | $0 |
| 2007 | $74,400 | $30,000 | $0 | $0 | $0 |
| 2006 | $74,400 | $30,000 | $0 | $0 | $0 |
Deed and Sales History
| 1 | 08/20/2021 | SWD | STATUTORY WARRANTY DEED | TALBOTT MICHAEL | FORTNEY MARTIN ERIK | | | $277,900.00 | 142331 | 2021-10271 |
| 2 | 09/14/2004 | WARRANTY D | WARRANTY DEED | BRULOTTE, CAROLYN M | TALBOTT, MICHAEL | | | $119,900.00 | 105695 | 2004-10570 |
| 3 | 09/14/2004 | QCD | QUIT CLAIM DEED | TALBOTT, CHRISSY | TALBOTT, MICHAEL | | | | 105696 | 2004-10571 |
| 4 | 08/05/2003 | WARRANTY D | WARRANTY DEED | HAYDEN ENTERPRISES INC | BRULOTTE, CAROLYN M | | | $104,566.00 | 102723 | 2003-11701 |
| 5 | 08/21/2002 | WARRANTY D | WARRANTY DEED | VILLAGE PARK COLLEGE PLACE~LLC | | | | | 100199 | 2002-09391 |
Payout Agreement
| No payout information available.. |