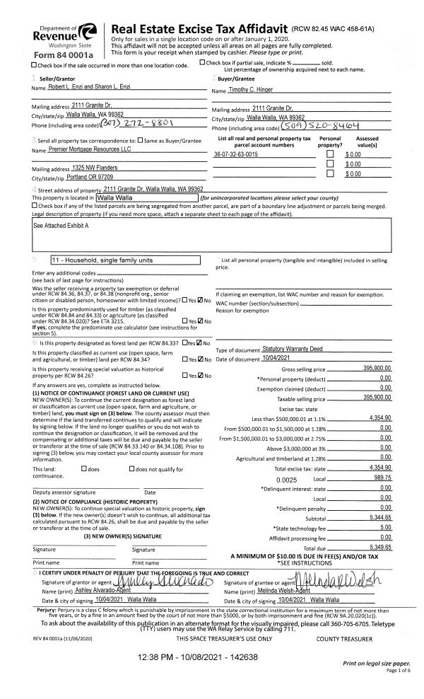
Property
Account |
| Property ID: | 1482 | Abbreviated Legal Description: | TRACT B OF SHORT PLAT 2/235 1993-09130 |
| Parcel Number: | 350731330010 | Agent Code: | |
| Type: | Real | | |
| Tax Area: | 101 - 140-4 | Land Use Code | 11 |
| Open Space: | N | DFL | N |
| Historic Property: | N | Remodel Property: | N |
| Multi-Family Redevelopment: | N | | |
| Township: | 7 | Section: | 31 |
| Range: | 35 |
Location |
| Address: | 2010 STOVALL RD WA 99362 | Mapsco: | |
| Neighborhood: | VG SFR RURAL | Map ID: | |
| Neighborhood CD: | 215013 |
Owner |
| Name: | HAMILTON KAREN GAIL | Owner ID: | 68355 |
| Mailing Address: | 2010 STOVALL RD WALLA WALLA, WA 99362 | % Ownership: | 100.0000000000% |
| | | Exemptions: | |
Taxes and Assessment Details
Values
| (+) Improvement Homesite Value: | + | $0 | |
| (+) Improvement Non-Homesite Value: | + | $546,300 | |
| (+) Land Homesite Value: | + | $0 | |
| (+) Land Non-Homesite Value: | + | $241,340 | |
| (+) Curr Use (HS): | + | $0 | $0 |
| (+) Curr Use (NHS): | + | $0 | $0 |
| | | -------------------------- | |
| (=) Market Value: | = | $787,640 | |
| (–) Productivity Loss: | – | $0 | |
| | | -------------------------- | |
| (=) Subtotal: | = | $787,640 | |
| (+) Senior Appraised Value: | + | $0 | |
| (+) Non-Senior Appraised Value: | + | $787,640 | |
| | | -------------------------- | |
| (=) Total Appraised Value: | = | $787,640 | |
| (–) Senior Exemption Loss: | – | $0 | |
| (–) Exemption Loss: | – | $0 | |
| | | -------------------------- | |
| (=) Taxable Value: | = | $787,640 | |
Taxing Jurisdiction
| Owner: | HAMILTON KAREN GAIL | | |
| % Ownership: | 100.0000000000% | | |
| Total Value: | $787,640 | | |
| Tax Area: | 101 - 140-4 |
| CERFD | CURRENT EXPENSE REFUND 010 | 0.0000000000 | $787,640 | $787,640 | $0.00 | | |
| CURREXP | CURRENT EXPENSE 010 | 1.0175366760 | $787,640 | $787,640 | $801.45 | | |
| HUMNSERV | HUMAN SERVICES 119 | 0.0250000000 | $787,640 | $787,640 | $19.69 | | |
| SLDREL | SOLDIERS RELIEF 121 | 0.0155990005 | $787,640 | $787,640 | $12.29 | | |
| EMERGSER | EMS 147 | 0.3792580840 | $787,640 | $787,640 | $298.72 | | |
| EMSRFD | EMS REFUND 147 | 0.0000000000 | $787,640 | $787,640 | $0.00 | | |
| FD4EXP | FD #4 EXPENSE 686 | 0.8836993059 | $787,640 | $787,640 | $696.04 | | |
| RLBRFD | RURAL LIBRARY REFUND 623 | 0.0000000000 | $787,640 | $787,640 | $0.00 | | |
| RURALLIB | RURAL LIBRARY 623 | 0.3710609029 | $787,640 | $787,640 | $292.26 | | |
| PORTRFD | PORT REFUND 640 | 0.0000000000 | $787,640 | $787,640 | $0.00 | | |
| PORTWWGEN | PORT OF WW 640 | 0.2460186015 | $787,640 | $787,640 | $193.77 | | |
| SD140BOND | SD #140 BOND 764 | 0.8342371393 | $787,640 | $787,640 | $657.08 | | |
| SD140GEN | SD #140 GENERAL 760 | 2.0646500647 | $787,640 | $787,640 | $1,626.20 | | |
| ST2 | STATE SCHOOL PART 2 600 | 0.8131451643 | $787,640 | $787,640 | $640.47 | | |
| STATESCHL | STATE SCHOOL 600 | 1.5158548041 | $787,640 | $787,640 | $1,193.95 | | |
| STREFUND | STATE REFUND LEVY 603 | 0.0000000000 | $787,640 | $787,640 | $0.00 | | |
| COROAD | COUNTY ROAD 115 | 1.6549953990 | $787,640 | $787,640 | $1,303.54 | | |
| CRPRD | COUNTY ROAD REFUND 115 | 0.0000000000 | $787,640 | $787,640 | $0.00 | | |
| | Total Tax Rate: | 9.8210551422 | | | | | |
| | | | | Taxes w/Current Exemptions: | $7,735.46 | | |
| | | | | Taxes w/o Exemptions: | $7,735.46 | | |
Improvement / Building
| Improvement #1: | RESIDENTIAL | State Code: | 11 | 2228.0 sqft | Value: | $546,300 |
| Exterior Wall: | SIDING | Heating/Cooling: | WARM & COOLED AIR | | Number of Bathrooms: | 2 | Number of Bedrooms: | 3 | | Plumbing: | 9 | Roof Covering: | COMP SHINGLE |
|
| | Type | Description | Class CD | Sub Class CD | Year Built | Area |
| | MA | Main Area | 1 | 40 | 1998 | 2228.0 |
| | SI1 | SITE IMPROVEMENT | 1 | 40 | 1998 | 4.0 |
| | BASE | BASEMENT | 1 | 40 | 1998 | 736.0 |
| | BPF | BASEMENT -PARTITIONED FINISH | 1 | 40 | 1998 | 736.0 |
| | RPS | PORCH W/STEPS,ROOF | 1 | 40 | 1998 | 24.0 |
| | WOD | Wood Deck | 1 | 40 | 1998 | 100.0 |
| | ATG | Attached Garage | 1 | 40 | 1998 | 600.0 |
| | POL3 | POLE BUILDING-CON,ELEC,INSU | 1 | 40 | 2002 | 2400.0 |
| | CPCD | CARPORT/DIRT FLOOR | 1 | 40 | 2002 | 1200.0 |
| | HAYSHED | HAYSHED | 1 | 40 | 2000 | 1800.0 |
| | LNTD | LEAN TO DIRT FLOOR | 1 | 40 | 2000 | 800.0 |
Sketch
Property Image
Land
| 1 | RES 1 | Converted: Residential | 17.7400 | 0.00 | 0.00 | 0.00 | 1.00 | $241,340 | $0 |
Roll Value History
| 2025 | N/A | N/A | N/A | N/A | N/A |
| 2024 | $546,300 | $241,340 | $0 | $787,640 | $787,640 |
| 2023 | $546,300 | $241,340 | $0 | $787,640 | $787,640 |
| 2022 | $520,280 | $241,340 | $0 | $761,620 | $761,620 |
| 2021 | $452,420 | $241,340 | $0 | $693,760 | $693,760 |
| 2020 | $419,370 | $137,800 | $0 | $557,170 | $557,170 |
| 2019 | $419,370 | $137,800 | $0 | $557,170 | $557,170 |
| 2018 | $381,250 | $137,800 | $0 | $519,050 | $519,050 |
| 2017 | $363,090 | $137,800 | $0 | $500,890 | $500,890 |
| 2016 | $345,800 | $137,800 | $0 | $483,600 | $483,600 |
| 2015 | $345,800 | $137,800 | $0 | $483,600 | $483,600 |
| 2014 | $345,800 | $137,800 | $0 | $483,600 | $483,600 |
| 2013 | $345,800 | $137,800 | $0 | $483,600 | $483,600 |
| 2012 | $345,800 | $137,800 | $0 | $0 | $0 |
| 2011 | $345,800 | $137,800 | $0 | $0 | $0 |
| 2010 | $345,800 | $137,800 | $0 | $0 | $0 |
| 2009 | $354,600 | $137,800 | $0 | $0 | $0 |
| 2008 | $354,600 | $137,800 | $0 | $0 | $0 |
| 2007 | $276,600 | $88,600 | $0 | $0 | $0 |
| 2006 | $276,600 | $88,600 | $0 | $0 | $0 |
Deed and Sales History
| 1 | 10/02/2024 | QCD | QUIT CLAIM DEED | HAMILTON KAREN GAIL | BROWN BRAD B | | | | 148309 | 2024-05727 |
| 2 | 11/12/2020 | SWD | STATUTORY WARRANTY DEED | MC KEAN CECILIA A | HAMILTON KAREN GAIL | | | $768,000.00 | 140328 | 2020-11959 |
| 3 | 03/14/2003 | WARRANTY D | WARRANTY DEED | STANLEY, DAVID C & FRANCINE N | MC KEAN, CECILIA A | | | $388,000.00 | 101593 | 2003-03432 |
| 4 | 06/02/1998 | WARRANTY D | WARRANTY DEED | | | | | $105,000.00 | 90535 | 2689-806053 |
Payout Agreement
| No payout information available.. |