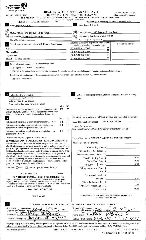
Property
Account |
| Property ID: | 1458 | Abbreviated Legal Description: | SUN BAR ADDN LT 5 BLK 1 |
| Parcel Number: | 360722570105 | Agent Code: | |
| Type: | Real | | |
| Tax Area: | 1 - OL-140-F | Land Use Code | 11 |
| Open Space: | N | DFL | N |
| Historic Property: | N | Remodel Property: | N |
| Multi-Family Redevelopment: | N | | |
| Township: | 7 | Section: | 22 |
| Range: | 36 |
Location |
| Address: | 2040 SUNBAR ST WA 99362 | Mapsco: | |
| Neighborhood: | A SFR | Map ID: | |
| Neighborhood CD: | 413011 |
Owner |
| Name: | SUNBAR LLC | Owner ID: | 65152 |
| Mailing Address: | 2249 INYO ST LOS OSOS, CA 93402 | % Ownership: | 100.0000000000% |
| | | Exemptions: | |
Taxes and Assessment Details
Values
| (+) Improvement Homesite Value: | + | $0 | |
| (+) Improvement Non-Homesite Value: | + | $293,080 | |
| (+) Land Homesite Value: | + | $0 | |
| (+) Land Non-Homesite Value: | + | $76,160 | |
| (+) Curr Use (HS): | + | $0 | $0 |
| (+) Curr Use (NHS): | + | $0 | $0 |
| | | -------------------------- | |
| (=) Market Value: | = | $369,240 | |
| (–) Productivity Loss: | – | $0 | |
| | | -------------------------- | |
| (=) Subtotal: | = | $369,240 | |
| (+) Senior Appraised Value: | + | $0 | |
| (+) Non-Senior Appraised Value: | + | $369,240 | |
| | | -------------------------- | |
| (=) Total Appraised Value: | = | $369,240 | |
| (–) Senior Exemption Loss: | – | $0 | |
| (–) Exemption Loss: | – | $0 | |
| | | -------------------------- | |
| (=) Taxable Value: | = | $369,240 | |
Taxing Jurisdiction
| Owner: | SUNBAR LLC | | |
| % Ownership: | 100.0000000000% | | |
| Total Value: | $369,240 | | |
| Tax Area: | 1 - OL-140-F |
| CERFD | CURRENT EXPENSE REFUND 010 | 0.0000000000 | $369,240 | $369,240 | $0.00 | | |
| CURREXP | CURRENT EXPENSE 010 | 1.0175366760 | $369,240 | $369,240 | $375.72 | | |
| HUMNSERV | HUMAN SERVICES 119 | 0.0250000000 | $369,240 | $369,240 | $9.23 | | |
| SLDREL | SOLDIERS RELIEF 121 | 0.0155990005 | $369,240 | $369,240 | $5.76 | | |
| EMERGSER | EMS 147 | 0.3792580840 | $369,240 | $369,240 | $140.04 | | |
| EMSRFD | EMS REFUND 147 | 0.0000000000 | $369,240 | $369,240 | $0.00 | | |
| PORTRFD | PORT REFUND 640 | 0.0000000000 | $369,240 | $369,240 | $0.00 | | |
| PORTWWGEN | PORT OF WW 640 | 0.2460186015 | $369,240 | $369,240 | $90.84 | | |
| SD140BOND | SD #140 BOND 764 | 0.8342371393 | $369,240 | $369,240 | $308.03 | | |
| SD140GEN | SD #140 GENERAL 760 | 2.0646500647 | $369,240 | $369,240 | $762.35 | | |
| ST2 | STATE SCHOOL PART 2 600 | 0.8131451643 | $369,240 | $369,240 | $300.25 | | |
| STATESCHL | STATE SCHOOL 600 | 1.5158548041 | $369,240 | $369,240 | $559.71 | | |
| STREFUND | STATE REFUND LEVY 603 | 0.0000000000 | $369,240 | $369,240 | $0.00 | | |
| CWWBOND | C OF WW BOND 643 | 0.2760494372 | $369,240 | $369,240 | $101.93 | | |
| CWWGEN | CITY OF WW 631 | 1.6100204973 | $369,240 | $369,240 | $594.48 | | |
| CWWRFD | CITY OF WALLA WALLA REFUND 631 | 0.0000000000 | $369,240 | $369,240 | $0.00 | | |
| | Total Tax Rate: | 8.7973694689 | | | | | |
| | | | | Taxes w/Current Exemptions: | $3,248.34 | | |
| | | | | Taxes w/o Exemptions: | $3,248.34 | | |
Improvement / Building
| Improvement #1: | RESIDENTIAL | State Code: | 11 | 1436.0 sqft | Value: | $293,080 |
| Exterior Wall: | PLYWOOD | Heating/Cooling: | HEAT PUMP | | Number of Bathrooms: | 2 | Number of Bedrooms: | 3 | | Plumbing: | 11 | Roof Covering: | COMP SHINGLE |
|
| | Type | Description | Class CD | Sub Class CD | Year Built | Area |
| | MA | Main Area | 1 | 35 | 1993 | 1436.0 |
| | SI1 | SITE IMPROVEMENT | 1 | 35 | 0 | 3.0 |
| | ATG | Attached Garage | 1 | 35 | 1993 | 600.0 |
| | RPS | PORCH W/STEPS,ROOF | 1 | 35 | 1993 | 12.0 |
| | WOD | Wood Deck | 1 | 35 | 1993 | 30.0 |
Sketch
Property Image
Land
| 1 | RES 1 | Converted: Residential | 0.2185 | 9520.00 | 0.00 | 0.00 | 1.00 | $76,160 | $0 |
Roll Value History
| 2025 | N/A | N/A | N/A | N/A | N/A |
| 2024 | $293,080 | $76,160 | $0 | $369,240 | $369,240 |
| 2023 | $293,080 | $76,160 | $0 | $369,240 | $369,240 |
| 2022 | $284,700 | $49,980 | $0 | $334,680 | $334,680 |
| 2021 | $219,000 | $49,980 | $0 | $268,980 | $268,980 |
| 2020 | $168,460 | $49,980 | $0 | $218,440 | $218,440 |
| 2019 | $168,460 | $49,980 | $0 | $218,440 | $218,440 |
| 2018 | $153,150 | $49,980 | $0 | $203,130 | $203,130 |
| 2017 | $145,850 | $49,980 | $0 | $195,830 | $195,830 |
| 2016 | $150,980 | $38,100 | $0 | $189,080 | $189,080 |
| 2015 | $146,580 | $38,100 | $0 | $184,680 | $184,680 |
| 2014 | $139,600 | $38,100 | $0 | $177,700 | $177,700 |
| 2013 | $139,600 | $38,100 | $0 | $177,700 | $177,700 |
| 2012 | $159,300 | $38,100 | $0 | $0 | $0 |
| 2011 | $163,700 | $38,100 | $0 | $0 | $0 |
| 2010 | $117,100 | $38,100 | $0 | $0 | $0 |
| 2009 | $134,300 | $38,100 | $0 | $0 | $0 |
| 2008 | $134,300 | $38,100 | $0 | $0 | $0 |
| 2007 | $134,300 | $38,100 | $0 | $0 | $0 |
| 2006 | $98,300 | $19,000 | $0 | $0 | $0 |
Deed and Sales History
| 1 | 05/22/2019 | SWD | STATUTORY WARRANTY DEED | TRACHTENBARG DAVID | SUNBAR LLC | | | $260,000.00 | 136914 | 2019-03430 |
| 2 | 04/15/2016 | SWD | STATUTORY WARRANTY DEED | KRAUSE TRACY J | TRACHTENBARG DAVID | | | $201,000.00 | 130028 | 2016-02771 |
| 3 | 11/14/2014 | QCD | QUIT CLAIM DEED | JONES ARVIN LEE | KRAUSE TRACY J | | | $0.00 | 126945 | 2014-08296 |
| 4 | 08/14/2009 | WARRANTY D | WARRANTY DEED | PALMER, CHARLES R | JONES, ARVIN LEE | | | $203,500.00 | 117171 | 2009-08285 |
| 5 | 01/31/2003 | WARRANTY D | WARRANTY DEED | BATCHELOR, DANIEL SIMPSON TST | PALMER, CHARLES R | | | $127,000.00 | 101310 | 2003-01450 |
| 6 | 02/02/2001 | WARRANTY D | WARRANTY DEED | | | | | $122,500.00 | 96561 | 3080-101072 |
Payout Agreement
| No payout information available.. |