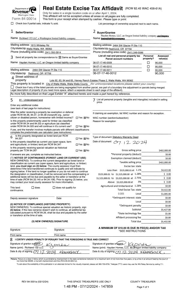
Property
Account |
| Property ID: | 14559 | Abbreviated Legal Description: | ROBERTS TAX 1 LOT 5 BLK 21 |
| Parcel Number: | 360729872104 | Agent Code: | |
| Type: | Real | | |
| Tax Area: | 1 - OL-140-F | Land Use Code | 11 |
| Open Space: | N | DFL | N |
| Historic Property: | N | Remodel Property: | N |
| Multi-Family Redevelopment: | N | | |
| Township: | 7 | Section: | 29 |
| Range: | 36 |
Location |
| Address: | 508 WHITMAN ST WA 99362 | Mapsco: | |
| Neighborhood: | G-SFR | Map ID: | |
| Neighborhood CD: | 514011 |
Owner |
| Name: | SCHOLZ DAVID T & HAVEN E | Owner ID: | 69552 |
| Mailing Address: | 508 WHITMAN ST WALLA WALLA, WA 99362 | % Ownership: | 100.0000000000% |
| | | Exemptions: | |
Taxes and Assessment Details
Values
| (+) Improvement Homesite Value: | + | $0 | |
| (+) Improvement Non-Homesite Value: | + | $484,260 | |
| (+) Land Homesite Value: | + | $0 | |
| (+) Land Non-Homesite Value: | + | $74,270 | |
| (+) Curr Use (HS): | + | $0 | $0 |
| (+) Curr Use (NHS): | + | $0 | $0 |
| | | -------------------------- | |
| (=) Market Value: | = | $558,530 | |
| (–) Productivity Loss: | – | $0 | |
| | | -------------------------- | |
| (=) Subtotal: | = | $558,530 | |
| (+) Senior Appraised Value: | + | $0 | |
| (+) Non-Senior Appraised Value: | + | $558,530 | |
| | | -------------------------- | |
| (=) Total Appraised Value: | = | $558,530 | |
| (–) Senior Exemption Loss: | – | $0 | |
| (–) Exemption Loss: | – | $0 | |
| | | -------------------------- | |
| (=) Taxable Value: | = | $558,530 | |
Taxing Jurisdiction
| Owner: | SCHOLZ DAVID T & HAVEN E | | |
| % Ownership: | 100.0000000000% | | |
| Total Value: | $558,530 | | |
| Tax Area: | 1 - OL-140-F |
| CERFD | CURRENT EXPENSE REFUND 010 | 0.0000000000 | $558,530 | $558,530 | $0.00 | | |
| CURREXP | CURRENT EXPENSE 010 | 1.0175366760 | $558,530 | $558,530 | $568.32 | | |
| HUMNSERV | HUMAN SERVICES 119 | 0.0250000000 | $558,530 | $558,530 | $13.96 | | |
| SLDREL | SOLDIERS RELIEF 121 | 0.0155990005 | $558,530 | $558,530 | $8.71 | | |
| EMERGSER | EMS 147 | 0.3792580840 | $558,530 | $558,530 | $211.83 | | |
| EMSRFD | EMS REFUND 147 | 0.0000000000 | $558,530 | $558,530 | $0.00 | | |
| PORTRFD | PORT REFUND 640 | 0.0000000000 | $558,530 | $558,530 | $0.00 | | |
| PORTWWGEN | PORT OF WW 640 | 0.2460186015 | $558,530 | $558,530 | $137.41 | | |
| SD140BOND | SD #140 BOND 764 | 0.8342371393 | $558,530 | $558,530 | $465.95 | | |
| SD140GEN | SD #140 GENERAL 760 | 2.0646500647 | $558,530 | $558,530 | $1,153.17 | | |
| ST2 | STATE SCHOOL PART 2 600 | 0.8131451643 | $558,530 | $558,530 | $454.17 | | |
| STATESCHL | STATE SCHOOL 600 | 1.5158548041 | $558,530 | $558,530 | $846.65 | | |
| STREFUND | STATE REFUND LEVY 603 | 0.0000000000 | $558,530 | $558,530 | $0.00 | | |
| CWWBOND | C OF WW BOND 643 | 0.2760494372 | $558,530 | $558,530 | $154.18 | | |
| CWWGEN | CITY OF WW 631 | 1.6100204973 | $558,530 | $558,530 | $899.24 | | |
| CWWRFD | CITY OF WALLA WALLA REFUND 631 | 0.0000000000 | $558,530 | $558,530 | $0.00 | | |
| | Total Tax Rate: | 8.7973694689 | | | | | |
| | | | | Taxes w/Current Exemptions: | $4,913.59 | | |
| | | | | Taxes w/o Exemptions: | $4,913.59 | | |
Improvement / Building
| Improvement #1: | RESIDENTIAL | State Code: | 11 | 1982.0 sqft | Value: | $484,260 |
| Exterior Wall: | SIDING | Heating/Cooling: | WARM & COOLED AIR | | Number of Bathrooms: | 2 | Number of Bedrooms: | 4 | | Plumbing: | 10 | Roof Covering: | COMP SHINGLE |
|
| | Type | Description | Class CD | Sub Class CD | Year Built | Area |
| | MA | Main Area | 2 | 40 | 1900 | 1982.0 |
| | UPFL | Upper Floor (included in main area) | 2 | 40 | 1900 | 572.0 |
| | SI1 | SITE IMPROVEMENT | 2 | 40 | 1900 | 3.0 |
| | BASE | BASEMENT | 2 | 40 | 1900 | 840.0 |
| | BPF | BASEMENT -PARTITIONED FINISH | 2 | 40 | 1900 | 840.0 |
| | RCD | WOOD DECK W/ROOF, CEILED | 2 | 40 | 1900 | 96.0 |
| | DTG | Detached Garage | 2 | 40 | 1900 | 528.0 |
Sketch
Property Image
Land
| 1 | RES 1 | Converted: Residential | 0.3002 | 13075.00 | 0.00 | 0.00 | 1.00 | $74,270 | $0 |
Roll Value History
| 2025 | N/A | N/A | N/A | N/A | N/A |
| 2024 | $428,200 | $132,970 | $0 | $561,170 | $561,170 |
| 2023 | $484,260 | $74,270 | $0 | $558,530 | $558,530 |
| 2022 | $440,240 | $74,270 | $0 | $514,510 | $514,510 |
| 2021 | $366,860 | $74,270 | $0 | $441,130 | $441,130 |
| 2020 | $305,720 | $74,270 | $0 | $379,990 | $379,990 |
| 2019 | $305,720 | $74,270 | $0 | $379,990 | $379,990 |
| 2018 | $200,670 | $74,270 | $0 | $274,940 | $274,940 |
| 2017 | $225,540 | $46,800 | $0 | $272,340 | $272,340 |
| 2016 | $214,800 | $46,800 | $0 | $261,600 | $261,600 |
| 2015 | $214,800 | $46,800 | $0 | $261,600 | $261,600 |
| 2014 | $179,000 | $46,800 | $0 | $225,800 | $225,800 |
| 2013 | $179,000 | $46,800 | $0 | $225,800 | $225,800 |
| 2012 | $166,700 | $46,800 | $0 | $0 | $0 |
| 2011 | $166,700 | $46,800 | $0 | $0 | $0 |
| 2010 | $156,500 | $46,800 | $0 | $0 | $0 |
| 2009 | $179,100 | $46,800 | $0 | $0 | $0 |
| 2008 | $179,100 | $46,800 | $0 | $0 | $0 |
| 2007 | $179,100 | $46,800 | $0 | $0 | $0 |
| 2006 | $118,700 | $20,900 | $0 | $0 | $0 |
Deed and Sales History
| 1 | 06/07/2021 | SWD | STATUTORY WARRANTY DEED | CARROUGHER ALEX J | SCHOLZ DAVID T & HAVEN E | | | $510,000.00 | 141734 | 2021-06857 |
| 2 | 07/02/2018 | SWD | STATUTORY WARRANTY DEED | SPRADLIN BRIAN & CARRIE | CARROUGHER ALEX J | | | $374,900.00 | 135049 | 2018-05313 |
| 3 | 04/30/2012 | WARRANTY D | WARRANTY DEED | GABBARD, CLINTON E & RONDA S | SPRADLIN, BRIAN & CARRIE | | | $263,800.00 | 121738 | 2012-03481 |
| 4 | 03/23/2005 | WARRANTY D | WARRANTY DEED | ISENHOWER, BRETT & DENISE | GABBARD, CLINTON E & RONDA S | | | $227,500.00 | 107049 | 2005-03275 |
| 5 | 04/01/1998 | WARRANTY D | WARRANTY DEED | | | | | $139,000.00 | 90129 | 2659-803418 |
Payout Agreement
| No payout information available.. |