Property
Account |
| Property ID: | 14438 | Abbreviated Legal Description: | LT 9 & W 10' LT 10 BLK F ST PAUL'S SCHOOL ADDN |
| Parcel Number: | 360729880209 | Agent Code: | |
| Type: | Real | | |
| Tax Area: | 1 - OL-140-F | Land Use Code | 11 |
| Open Space: | N | DFL | N |
| Historic Property: | N | Remodel Property: | N |
| Multi-Family Redevelopment: | N | | |
| Township: | 7 | Section: | 29 |
| Range: | 36 |
Location |
| Address: | 721 S PALOUSE ST WA 99362 | Mapsco: | |
| Neighborhood: | G-SFR | Map ID: | |
| Neighborhood CD: | 514011 |
Owner |
| Name: | WHITAKER STEPHANIE C | Owner ID: | 69490 |
| Mailing Address: | 721 S PALOUSE ST WALLA WALLA, WA 99362 | % Ownership: | 100.0000000000% |
| | | Exemptions: | |
Taxes and Assessment Details
Values
| (+) Improvement Homesite Value: | + | $0 | |
| (+) Improvement Non-Homesite Value: | + | $393,490 | |
| (+) Land Homesite Value: | + | $0 | |
| (+) Land Non-Homesite Value: | + | $23,740 | |
| (+) Curr Use (HS): | + | $0 | $0 |
| (+) Curr Use (NHS): | + | $0 | $0 |
| | | -------------------------- | |
| (=) Market Value: | = | $417,230 | |
| (–) Productivity Loss: | – | $0 | |
| | | -------------------------- | |
| (=) Subtotal: | = | $417,230 | |
| (+) Senior Appraised Value: | + | $0 | |
| (+) Non-Senior Appraised Value: | + | $417,230 | |
| | | -------------------------- | |
| (=) Total Appraised Value: | = | $417,230 | |
| (–) Senior Exemption Loss: | – | $0 | |
| (–) Exemption Loss: | – | $0 | |
| | | -------------------------- | |
| (=) Taxable Value: | = | $417,230 | |
Taxing Jurisdiction
| Owner: | WHITAKER STEPHANIE C | | |
| % Ownership: | 100.0000000000% | | |
| Total Value: | $417,230 | | |
| Tax Area: | 1 - OL-140-F |
| CERFD | CURRENT EXPENSE REFUND 010 | 0.0000000000 | $417,230 | $417,230 | $0.00 | | |
| CURREXP | CURRENT EXPENSE 010 | 1.0175366760 | $417,230 | $417,230 | $424.55 | | |
| HUMNSERV | HUMAN SERVICES 119 | 0.0250000000 | $417,230 | $417,230 | $10.43 | | |
| SLDREL | SOLDIERS RELIEF 121 | 0.0155990005 | $417,230 | $417,230 | $6.51 | | |
| EMERGSER | EMS 147 | 0.3792580840 | $417,230 | $417,230 | $158.24 | | |
| EMSRFD | EMS REFUND 147 | 0.0000000000 | $417,230 | $417,230 | $0.00 | | |
| PORTRFD | PORT REFUND 640 | 0.0000000000 | $417,230 | $417,230 | $0.00 | | |
| PORTWWGEN | PORT OF WW 640 | 0.2460186015 | $417,230 | $417,230 | $102.65 | | |
| SD140BOND | SD #140 BOND 764 | 0.8342371393 | $417,230 | $417,230 | $348.07 | | |
| SD140GEN | SD #140 GENERAL 760 | 2.0646500647 | $417,230 | $417,230 | $861.43 | | |
| ST2 | STATE SCHOOL PART 2 600 | 0.8131451643 | $417,230 | $417,230 | $339.27 | | |
| STATESCHL | STATE SCHOOL 600 | 1.5158548041 | $417,230 | $417,230 | $632.46 | | |
| STREFUND | STATE REFUND LEVY 603 | 0.0000000000 | $417,230 | $417,230 | $0.00 | | |
| CWWBOND | C OF WW BOND 643 | 0.2760494372 | $417,230 | $417,230 | $115.18 | | |
| CWWGEN | CITY OF WW 631 | 1.6100204973 | $417,230 | $417,230 | $671.75 | | |
| CWWRFD | CITY OF WALLA WALLA REFUND 631 | 0.0000000000 | $417,230 | $417,230 | $0.00 | | |
| | Total Tax Rate: | 8.7973694689 | | | | | |
| | | | | Taxes w/Current Exemptions: | $3,670.54 | | |
| | | | | Taxes w/o Exemptions: | $3,670.54 | | |
Improvement / Building
| Improvement #1: | RESIDENTIAL | State Code: | 11 | 936.0 sqft | Value: | $393,490 |
| Exterior Wall: | SIDING | Heating/Cooling: | WARM & COOLED AIR | | Number of Bathrooms: | 2 | Number of Bedrooms: | 4 | | Plumbing: | 10 | Roof Covering: | COMP SHINGLE |
|
| | Type | Description | Class CD | Sub Class CD | Year Built | Area |
| | MA | Main Area | 1 | 35 | 1926 | 936.0 |
| | SI1 | SITE IMPROVEMENT | 1 | 35 | 1926 | 1.5 |
| | BASE | BASEMENT | 1 | 35 | 1926 | 936.0 |
| | BPF | BASEMENT -PARTITIONED FINISH | 1 | 35 | 1926 | 720.0 |
| | S1F | Single One Story Fireplace | 1 | 35 | 1926 | 1.0 |
| | STG1 | Sub Terrain Garage Single | 1 | 35 | 1926 | 1.0 |
| | WOD | Wood Deck | 1 | 35 | 1926 | 24.0 |
| | CPC | COVERED CARPORT/PATIO | 1 | 35 | 1926 | 110.0 |
Sketch
Property Image
Land
| 1 | RES 1 | Converted: Residential | 0.0752 | 3275.00 | 0.00 | 0.00 | 1.00 | $23,740 | $0 |
Roll Value History
| 2025 | N/A | N/A | N/A | N/A | N/A |
| 2024 | $366,440 | $36,030 | $0 | $402,470 | $402,470 |
| 2023 | $393,490 | $23,740 | $0 | $417,230 | $417,230 |
| 2022 | $357,720 | $23,740 | $0 | $381,460 | $381,460 |
| 2021 | $264,980 | $23,740 | $0 | $288,720 | $288,720 |
| 2020 | $182,740 | $23,740 | $0 | $206,480 | $206,480 |
| 2019 | $182,740 | $23,740 | $0 | $206,480 | $206,480 |
| 2018 | $174,040 | $23,740 | $0 | $197,780 | $197,780 |
| 2017 | $153,900 | $13,100 | $0 | $167,000 | $167,000 |
| 2016 | $153,900 | $13,100 | $0 | $167,000 | $167,000 |
| 2015 | $153,900 | $13,100 | $0 | $167,000 | $167,000 |
| 2014 | $153,900 | $13,100 | $0 | $167,000 | $167,000 |
| 2013 | $153,900 | $13,100 | $0 | $167,000 | $167,000 |
| 2012 | $153,900 | $13,100 | $0 | $0 | $0 |
| 2011 | $145,900 | $13,100 | $0 | $0 | $0 |
| 2010 | $138,300 | $13,100 | $0 | $0 | $0 |
| 2009 | $155,100 | $13,100 | $0 | $0 | $0 |
| 2008 | $148,500 | $19,700 | $0 | $0 | $0 |
| 2007 | $75,900 | $6,600 | $0 | $0 | $0 |
| 2006 | $75,900 | $6,600 | $0 | $0 | $0 |
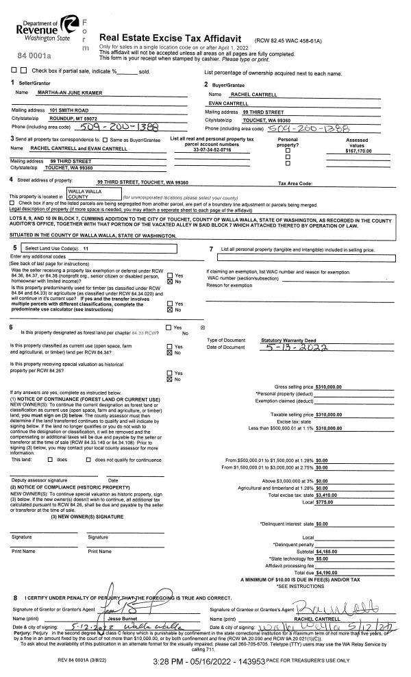
Deed and Sales History
| 1 | 05/28/2021 | SWD | STATUTORY WARRANTY DEED | HUNDIS JUDITH | WHITAKER STEPHANIE C | | | $425,000.00 | 141664 | 2021-06510 |
| 2 | 01/10/2020 | SWD | STATUTORY WARRANTY DEED | VANDIVER ELIZABETH | HUNDIS JUDITH | | | $260,000.00 | 138398 | 2020-00261 |
| 3 | 02/22/2005 | WARRANTY D | WARRANTY DEED | LALONDE, RONALD R | VANDIVER, ELIZABETH | | | $159,500.00 | 106816 | 2005-02022 |
| 4 | 04/29/2003 | QCD | QUIT CLAIM DEED | LALONDE, RONALD JR | LALONDE, RONALD R | | | $43,213.00 | 101948 | 2003-06062 |
| 5 | 06/23/1999 | WARRANTY D | WARRANTY DEED | | | | | $84,000.00 | 93014 | 2859-907360 |
Payout Agreement
| No payout information available.. |