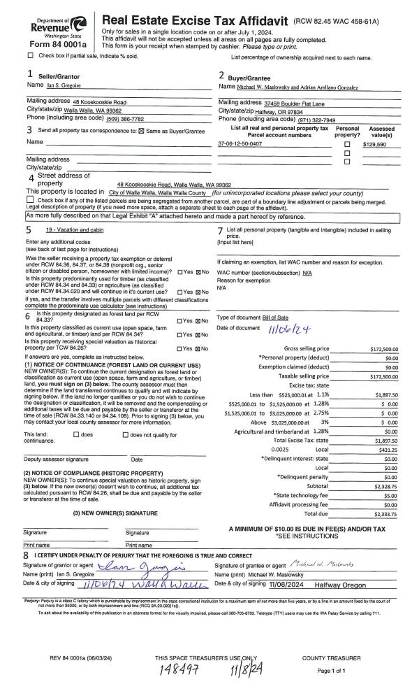
Property
Account |
| Property ID: | 14337 | Abbreviated Legal Description: | MEADOW VIEW LOT 9 BLK 6 |
| Parcel Number: | 360732550609 | Agent Code: | |
| Type: | Real | | |
| Tax Area: | 1 - OL-140-F | Land Use Code | 11 |
| Open Space: | N | DFL | N |
| Historic Property: | N | Remodel Property: | N |
| Multi-Family Redevelopment: | N | | |
| Township: | 7 | Section: | 32 |
| Range: | 36 |
Location |
| Address: | 1865 LEONARD DR WA 99362 | Mapsco: | |
| Neighborhood: | A Res | Map ID: | |
| Neighborhood CD: | 613011 |
Owner |
| Name: | SHORT MICHEL | Owner ID: | 65472 |
| Mailing Address: | 1865 LEONARD DR WALLA WALLA, WA 99362 | % Ownership: | 100.0000000000% |
| | | Exemptions: | SNR/DSBL |
Taxes and Assessment Details
Values
| (+) Improvement Homesite Value: | + | $271,860 | |
| (+) Improvement Non-Homesite Value: | + | $0 | |
| (+) Land Homesite Value: | + | $69,300 | |
| (+) Land Non-Homesite Value: | + | $0 | |
| (+) Curr Use (HS): | + | $0 | $0 |
| (+) Curr Use (NHS): | + | $0 | $0 |
| | | -------------------------- | |
| (=) Market Value: | = | $341,160 | |
| (–) Productivity Loss: | – | $0 | |
| | | -------------------------- | |
| (=) Subtotal: | = | $341,160 | |
| (+) Senior Appraised Value: | + | $253,540 | |
| (+) Non-Senior Appraised Value: | + | $0 | |
| | | -------------------------- | |
| (=) Total Appraised Value: | = | $253,540 | |
| (–) Senior Exemption Loss: | – | $152,124 | |
| (–) Exemption Loss: | – | $0 | |
| | | -------------------------- | |
| (=) Taxable Value: | = | $101,416 | |
Taxing Jurisdiction
| Owner: | SHORT MICHEL | | |
| % Ownership: | 100.0000000000% | | |
| Total Value: | $341,160 | | |
| Tax Area: | 1 - OL-140-F |
| CERFD | CURRENT EXPENSE REFUND 010 | 0.0000000000 | $341,160 | $101,416 | $0.00 | | |
| CURREXP | CURRENT EXPENSE 010 | 1.0175366760 | $341,160 | $101,416 | $103.19 | | |
| HUMNSERV | HUMAN SERVICES 119 | 0.0250000000 | $341,160 | $101,416 | $2.54 | | |
| SLDREL | SOLDIERS RELIEF 121 | 0.0155990005 | $341,160 | $101,416 | $1.58 | | |
| EMERGSER | EMS 147 | 0.3792580840 | $341,160 | $101,416 | $38.46 | | |
| EMSRFD | EMS REFUND 147 | 0.0000000000 | $341,160 | $101,416 | $0.00 | | |
| PORTRFD | PORT REFUND 640 | 0.0000000000 | $341,160 | $101,416 | $0.00 | | |
| PORTWWGEN | PORT OF WW 640 | 0.2460186015 | $341,160 | $101,416 | $24.95 | | |
| SD140BOND | SD #140 BOND 764 | 0.0000000000 | $341,160 | $0 | $0.00 | | |
| SD140GEN | SD #140 GENERAL 760 | 0.0000000000 | $341,160 | $0 | $0.00 | | |
| ST2 | STATE SCHOOL PART 2 600 | 0.0000000000 | $341,160 | $0 | $0.00 | | |
| STATESCHL | STATE SCHOOL 600 | 1.5158548041 | $341,160 | $101,416 | $153.73 | | |
| STREFUND | STATE REFUND LEVY 603 | 0.0000000000 | $341,160 | $101,416 | $0.00 | | |
| CWWBOND | C OF WW BOND 643 | 0.0000000000 | $341,160 | $0 | $0.00 | | |
| CWWGEN | CITY OF WW 631 | 1.6100204973 | $341,160 | $101,416 | $163.28 | | |
| CWWRFD | CITY OF WALLA WALLA REFUND 631 | 0.0000000000 | $341,160 | $101,416 | $0.00 | | |
| | Total Tax Rate: | 4.8092876634 | | | | | |
| | | | | Taxes w/Current Exemptions: | $487.73 | | |
| | | | | Taxes w/o Exemptions: | $3,001.31 | | |
Improvement / Building
| Improvement #1: | RESIDENTIAL | State Code: | 11 | 1334.0 sqft | Value: | $271,860 |
| Exterior Wall: | VINYL | Heating/Cooling: | WARM & COOLED AIR | | Number of Bathrooms: | 2 | Number of Bedrooms: | 3 | | Plumbing: | 9 | Roof Covering: | BITUMEN MEMBRANE |
|
| | Type | Description | Class CD | Sub Class CD | Year Built | Area |
| | MA | Main Area | 1 | 30 | 1960 | 1334.0 |
| | SI1 | SITE IMPROVEMENT | 1 | 30 | 1960 | 1.5 |
| | S1F | Single One Story Fireplace | 1 | 30 | 1960 | 1.0 |
| | CPCS | CARPORT/SHED OR FLAT ROOF | 1 | 30 | 1960 | 440.0 |
| | WOD | Wood Deck | 1 | 30 | 1960 | 196.0 |
Sketch
Property Image
Land
| 1 | RES 1 | Converted: Residential | 0.1768 | 7700.00 | 0.00 | 0.00 | 1.00 | $69,300 | $0 |
Roll Value History
| 2025 | N/A | N/A | N/A | N/A | N/A |
| 2024 | $271,860 | $69,300 | $0 | $341,160 | $101,416 |
| 2023 | $271,860 | $69,300 | $0 | $341,160 | $101,416 |
| 2022 | $217,480 | $55,830 | $0 | $273,310 | $183,540 |
| 2021 | $197,710 | $55,830 | $0 | $253,540 | $183,540 |
| 2020 | $158,170 | $55,830 | $0 | $214,000 | $214,000 |
| 2019 | $158,170 | $55,830 | $0 | $214,000 | $214,000 |
| 2018 | $137,610 | $45,200 | $0 | $182,810 | $59,520 |
| 2017 | $125,100 | $45,200 | $0 | $170,300 | $59,520 |
| 2016 | $108,780 | $45,200 | $0 | $153,980 | $59,520 |
| 2015 | $103,600 | $45,200 | $0 | $148,800 | $59,520 |
| 2014 | $103,600 | $45,200 | $0 | $148,800 | $59,520 |
| 2013 | $103,600 | $45,200 | $0 | $148,800 | $148,800 |
| 2012 | $91,800 | $45,200 | $0 | $0 | $0 |
| 2011 | $91,800 | $45,200 | $0 | $0 | $0 |
| 2010 | $91,800 | $45,200 | $0 | $0 | $0 |
| 2009 | $107,000 | $45,200 | $0 | $0 | $0 |
| 2008 | $107,000 | $45,200 | $0 | $0 | $0 |
| 2007 | $77,900 | $22,700 | $0 | $0 | $0 |
| 2006 | $77,900 | $22,700 | $0 | $0 | $0 |
Deed and Sales History
| 1 | 07/12/2019 | SWD | STATUTORY WARRANTY DEED | HEIMBIGNER PATRICIA J ESTATE OF | SHORT MICHEL | | | $235,000.00 | 137267 | 2019-04984 |
| 2 | 10/25/2012 | QCD | QUIT CLAIM DEED | HEIMBIGNER, RAYMOND G | HEIMBIGNER, PATRICIA J | | | $0.00 | 122882 | 2012-09432 |
| 3 | 06/21/1993 | WARRANTY D | WARRANTY DEED | | | | | $88,500.00 | 79357 | 2089-306214 |
Payout Agreement
| No payout information available.. |