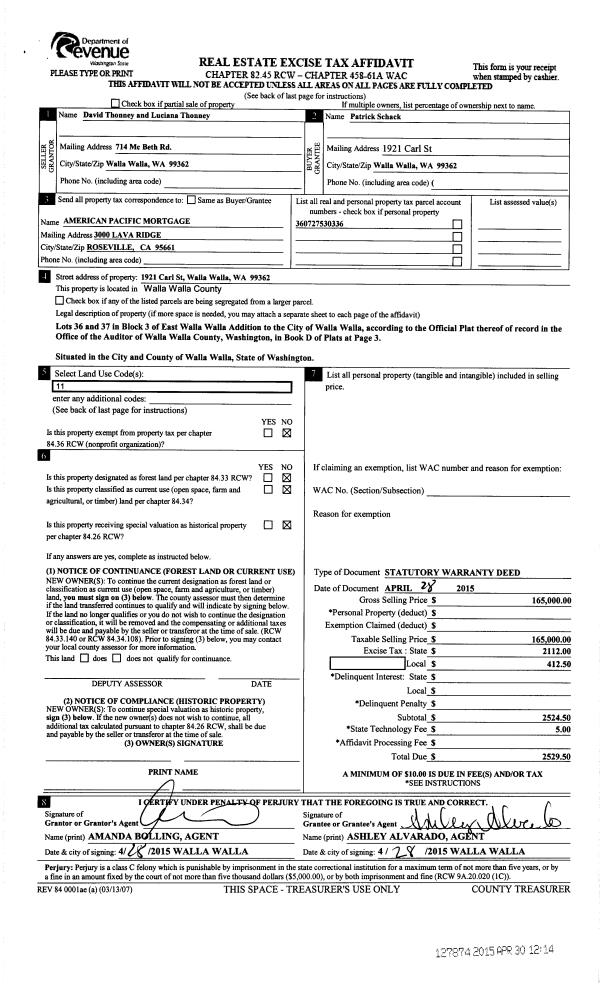
Property
Account |
| Property ID: | 14303 | Abbreviated Legal Description: | SINGLETONS 2ND TAX 5 LOT 15 BLK 3 |
| Parcel Number: | 360729790315 | Agent Code: | |
| Type: | Real | | |
| Tax Area: | 1 - OL-140-F | Land Use Code | 11 |
| Open Space: | N | DFL | N |
| Historic Property: | N | Remodel Property: | N |
| Multi-Family Redevelopment: | N | | |
| Township: | 7 | Section: | 29 |
| Range: | 36 |
Location |
| Address: | 176 E CHESTNUT ST WA 99362 | Mapsco: | |
| Neighborhood: | A Res | Map ID: | |
| Neighborhood CD: | 613011 |
Owner |
| Name: | OSTER CYNTHIA | Owner ID: | 57355 |
| Mailing Address: | 176 E CHESTNUT ST WALLA WALLA, WA 99362 | % Ownership: | 100.0000000000% |
| | | Exemptions: | |
Taxes and Assessment Details
Values
| (+) Improvement Homesite Value: | + | $0 | |
| (+) Improvement Non-Homesite Value: | + | $322,810 | |
| (+) Land Homesite Value: | + | $0 | |
| (+) Land Non-Homesite Value: | + | $48,590 | |
| (+) Curr Use (HS): | + | $0 | $0 |
| (+) Curr Use (NHS): | + | $0 | $0 |
| | | -------------------------- | |
| (=) Market Value: | = | $371,400 | |
| (–) Productivity Loss: | – | $0 | |
| | | -------------------------- | |
| (=) Subtotal: | = | $371,400 | |
| (+) Senior Appraised Value: | + | $0 | |
| (+) Non-Senior Appraised Value: | + | $371,400 | |
| | | -------------------------- | |
| (=) Total Appraised Value: | = | $371,400 | |
| (–) Senior Exemption Loss: | – | $0 | |
| (–) Exemption Loss: | – | $0 | |
| | | -------------------------- | |
| (=) Taxable Value: | = | $371,400 | |
Taxing Jurisdiction
| Owner: | OSTER CYNTHIA | | |
| % Ownership: | 100.0000000000% | | |
| Total Value: | $371,400 | | |
| Tax Area: | 1 - OL-140-F |
| CERFD | CURRENT EXPENSE REFUND 010 | 0.0000000000 | $371,400 | $371,400 | $0.00 | | |
| CURREXP | CURRENT EXPENSE 010 | 1.0175366760 | $371,400 | $371,400 | $377.91 | | |
| HUMNSERV | HUMAN SERVICES 119 | 0.0250000000 | $371,400 | $371,400 | $9.29 | | |
| SLDREL | SOLDIERS RELIEF 121 | 0.0155990005 | $371,400 | $371,400 | $5.79 | | |
| EMERGSER | EMS 147 | 0.3792580840 | $371,400 | $371,400 | $140.86 | | |
| EMSRFD | EMS REFUND 147 | 0.0000000000 | $371,400 | $371,400 | $0.00 | | |
| PORTRFD | PORT REFUND 640 | 0.0000000000 | $371,400 | $371,400 | $0.00 | | |
| PORTWWGEN | PORT OF WW 640 | 0.2460186015 | $371,400 | $371,400 | $91.37 | | |
| SD140BOND | SD #140 BOND 764 | 0.8342371393 | $371,400 | $371,400 | $309.84 | | |
| SD140GEN | SD #140 GENERAL 760 | 2.0646500647 | $371,400 | $371,400 | $766.81 | | |
| ST2 | STATE SCHOOL PART 2 600 | 0.8131451643 | $371,400 | $371,400 | $302.00 | | |
| STATESCHL | STATE SCHOOL 600 | 1.5158548041 | $371,400 | $371,400 | $562.99 | | |
| STREFUND | STATE REFUND LEVY 603 | 0.0000000000 | $371,400 | $371,400 | $0.00 | | |
| CWWBOND | C OF WW BOND 643 | 0.2760494372 | $371,400 | $371,400 | $102.52 | | |
| CWWGEN | CITY OF WW 631 | 1.6100204973 | $371,400 | $371,400 | $597.96 | | |
| CWWRFD | CITY OF WALLA WALLA REFUND 631 | 0.0000000000 | $371,400 | $371,400 | $0.00 | | |
| | Total Tax Rate: | 8.7973694689 | | | | | |
| | | | | Taxes w/Current Exemptions: | $3,267.34 | | |
| | | | | Taxes w/o Exemptions: | $3,267.34 | | |
Improvement / Building
| Improvement #1: | RESIDENTIAL | State Code: | 11 | 1818.0 sqft | Value: | $322,810 |
| Exterior Wall: | VINYL | Heating/Cooling: | WARM & COOLED AIR | | Number of Bathrooms: | 2 | Number of Bedrooms: | 4 | | Plumbing: | 10 | Roof Covering: | COMP SHINGLE |
|
| | Type | Description | Class CD | Sub Class CD | Year Built | Area |
| | MA | Main Area | 4 | 35 | 1890 | 1818.0 |
| | SI1 | SITE IMPROVEMENT | 4 | 35 | 1890 | 2.5 |
| | UPFL | Upper Floor (included in main area) | 4 | 35 | 1890 | 576.0 |
| | DTG | Detached Garage | 4 | 35 | 1890 | 336.0 |
| | RPO | OPEN PORCH W/ROOF | 4 | 35 | 1890 | 80.0 |
| | TOOL | TOOL SHED | 4 | 35 | 1890 | 126.0 |
| | WDR | WOOD DECK W/ROOF | 4 | 35 | 1890 | 235.0 |
Sketch
Property Image
Land
| 1 | RES 1 | Converted: Residential | 0.1377 | 5998.21 | 0.00 | 0.00 | 1.00 | $48,590 | $0 |
Roll Value History
| 2025 | N/A | N/A | N/A | N/A | N/A |
| 2024 | $322,810 | $48,590 | $0 | $371,400 | $371,400 |
| 2023 | $322,810 | $48,590 | $0 | $371,400 | $371,400 |
| 2022 | $322,810 | $39,150 | $0 | $361,960 | $361,960 |
| 2021 | $248,310 | $39,150 | $0 | $287,460 | $287,460 |
| 2020 | $171,250 | $39,150 | $0 | $210,400 | $210,400 |
| 2019 | $171,250 | $39,150 | $0 | $210,400 | $210,400 |
| 2018 | $154,200 | $36,000 | $0 | $190,200 | $190,200 |
| 2017 | $154,200 | $36,000 | $0 | $190,200 | $190,200 |
| 2016 | $154,200 | $36,000 | $0 | $190,200 | $190,200 |
| 2015 | $154,200 | $36,000 | $0 | $190,200 | $190,200 |
| 2014 | $154,200 | $36,000 | $0 | $190,200 | $190,200 |
| 2013 | $154,200 | $36,000 | $0 | $190,200 | $190,200 |
| 2012 | $155,900 | $36,000 | $0 | $0 | $0 |
| 2011 | $155,900 | $36,000 | $0 | $0 | $0 |
| 2010 | $155,900 | $36,000 | $0 | $0 | $0 |
| 2009 | $177,200 | $36,000 | $0 | $0 | $0 |
| 2008 | $177,200 | $36,000 | $0 | $0 | $0 |
| 2007 | $153,200 | $12,000 | $0 | $0 | $0 |
| 2006 | $153,200 | $12,000 | $0 | $0 | $0 |
Deed and Sales History
| 1 | 08/31/2015 | SWP | Special Warranty Deed | BANK OF NEW YORK MELLON TRUST COMPANY NA | OSTER CYNTHIA | | 2-PARCELS | $170,925.00 | 128719 | 2015-07593 |
|   | |
| 2 | 02/04/2015 | TRUSTEES D | TRUSTEE'S DEED | TAYLOR RICHARD D & CONNIE J | BANK OF NEW YORK MELLON TRUST COMPANY NA | | 2-PARCELS | $214,749.00 | 127386 | 2015-01021 |
|   | |
| 3 | 05/01/2003 | WARRANTY D | WARRANTY DEED | FLAHERTY TIMOTHY | TAYLOR RICHARD D & CONNIE J | | | $175,000.00 | 101982 | 2003-06299 |
|   | |
| 4 | 10/23/1987 | WARRANTY D | WARRANTY DEED | | | | | | 0 | 1678-708001 |
Payout Agreement
| No payout information available.. |