Property
Account |
| Property ID: | 14239 | Abbreviated Legal Description: | HENDERSON LOT 3 BLK B |
| Parcel Number: | 360729682903 | Agent Code: | |
| Type: | Real | | |
| Tax Area: | 1 - OL-140-F | Land Use Code | 11 |
| Open Space: | N | DFL | N |
| Historic Property: | N | Remodel Property: | N |
| Multi-Family Redevelopment: | N | | |
| Township: | 7 | Section: | 29 |
| Range: | 36 |
Location |
| Address: | 148 MALCOLM ST WA 99362 | Mapsco: | |
| Neighborhood: | Fair Res | Map ID: | |
| Neighborhood CD: | 612011 |
Owner |
| Name: | SMITH LISA M | Owner ID: | 58784 |
| Mailing Address: | 148 MALCOLM ST WALLA WALLA, WA 99362 | % Ownership: | 100.0000000000% |
| | | Exemptions: | |
Taxes and Assessment Details
Values
| (+) Improvement Homesite Value: | + | $0 | |
| (+) Improvement Non-Homesite Value: | + | $145,940 | |
| (+) Land Homesite Value: | + | $0 | |
| (+) Land Non-Homesite Value: | + | $40,000 | |
| (+) Curr Use (HS): | + | $0 | $0 |
| (+) Curr Use (NHS): | + | $0 | $0 |
| | | -------------------------- | |
| (=) Market Value: | = | $185,940 | |
| (–) Productivity Loss: | – | $0 | |
| | | -------------------------- | |
| (=) Subtotal: | = | $185,940 | |
| (+) Senior Appraised Value: | + | $0 | |
| (+) Non-Senior Appraised Value: | + | $185,940 | |
| | | -------------------------- | |
| (=) Total Appraised Value: | = | $185,940 | |
| (–) Senior Exemption Loss: | – | $0 | |
| (–) Exemption Loss: | – | $0 | |
| | | -------------------------- | |
| (=) Taxable Value: | = | $185,940 | |
Taxing Jurisdiction
| Owner: | SMITH LISA M | | |
| % Ownership: | 100.0000000000% | | |
| Total Value: | $185,940 | | |
| Tax Area: | 1 - OL-140-F |
| CERFD | CURRENT EXPENSE REFUND 010 | 0.0000000000 | $185,940 | $185,940 | $0.00 | | |
| CURREXP | CURRENT EXPENSE 010 | 1.0175366760 | $185,940 | $185,940 | $189.20 | | |
| HUMNSERV | HUMAN SERVICES 119 | 0.0250000000 | $185,940 | $185,940 | $4.65 | | |
| SLDREL | SOLDIERS RELIEF 121 | 0.0155990005 | $185,940 | $185,940 | $2.90 | | |
| EMERGSER | EMS 147 | 0.3792580840 | $185,940 | $185,940 | $70.52 | | |
| EMSRFD | EMS REFUND 147 | 0.0000000000 | $185,940 | $185,940 | $0.00 | | |
| PORTRFD | PORT REFUND 640 | 0.0000000000 | $185,940 | $185,940 | $0.00 | | |
| PORTWWGEN | PORT OF WW 640 | 0.2460186015 | $185,940 | $185,940 | $45.74 | | |
| SD140BOND | SD #140 BOND 764 | 0.8342371393 | $185,940 | $185,940 | $155.12 | | |
| SD140GEN | SD #140 GENERAL 760 | 2.0646500647 | $185,940 | $185,940 | $383.90 | | |
| ST2 | STATE SCHOOL PART 2 600 | 0.8131451643 | $185,940 | $185,940 | $151.20 | | |
| STATESCHL | STATE SCHOOL 600 | 1.5158548041 | $185,940 | $185,940 | $281.86 | | |
| STREFUND | STATE REFUND LEVY 603 | 0.0000000000 | $185,940 | $185,940 | $0.00 | | |
| CWWBOND | C OF WW BOND 643 | 0.2760494372 | $185,940 | $185,940 | $51.33 | | |
| CWWGEN | CITY OF WW 631 | 1.6100204973 | $185,940 | $185,940 | $299.37 | | |
| CWWRFD | CITY OF WALLA WALLA REFUND 631 | 0.0000000000 | $185,940 | $185,940 | $0.00 | | |
| | Total Tax Rate: | 8.7973694689 | | | | | |
| | | | | Taxes w/Current Exemptions: | $1,635.79 | | |
| | | | | Taxes w/o Exemptions: | $1,635.79 | | |
Improvement / Building
| Improvement #1: | RESIDENTIAL | State Code: | 11 | 647.0 sqft | Value: | $145,940 |
| Exterior Wall: | VINYL | Heating/Cooling: | FLOOR FURNACE | | Number of Bathrooms: | 1 | Number of Bedrooms: | 2 | | Plumbing: | 7 | Roof Covering: | COMP SHINGLE |
|
| | Type | Description | Class CD | Sub Class CD | Year Built | Area |
| | MA | Main Area | 1 | 20 | 1896 | 647.0 |
| | SI1 | SITE IMPROVEMENT | 1 | 20 | 0 | 1.0 |
| | RPS | PORCH W/STEPS,ROOF | 1 | 20 | 1896 | 25.0 |
| | SWP | Solid Wall Porch | 1 | 20 | 1896 | 96.0 |
| | UTST | Utility Storage Shed | 1 | 20 | 1896 | 252.0 |
Sketch
Property Image
Land
| 1 | RES 1 | Converted: Residential | 0.1148 | 5000.00 | 0.00 | 0.00 | 1.00 | $40,000 | $0 |
Roll Value History
| 2025 | N/A | N/A | N/A | N/A | N/A |
| 2024 | $145,940 | $40,000 | $0 | $185,940 | $185,940 |
| 2023 | $145,940 | $40,000 | $0 | $185,940 | $185,940 |
| 2022 | $138,990 | $31,250 | $0 | $170,240 | $170,240 |
| 2021 | $132,380 | $31,250 | $0 | $163,630 | $163,630 |
| 2020 | $88,250 | $31,250 | $0 | $119,500 | $119,500 |
| 2019 | $88,250 | $31,250 | $0 | $119,500 | $119,500 |
| 2018 | $64,260 | $30,000 | $0 | $94,260 | $94,260 |
| 2017 | $58,420 | $30,000 | $0 | $88,420 | $88,420 |
| 2016 | $48,680 | $30,000 | $0 | $78,680 | $78,680 |
| 2015 | $23,900 | $30,000 | $0 | $53,900 | $53,900 |
| 2014 | $23,900 | $30,000 | $0 | $53,900 | $53,900 |
| 2013 | $23,900 | $30,000 | $0 | $53,900 | $53,900 |
| 2012 | $23,900 | $30,000 | $0 | $0 | $0 |
| 2011 | $23,900 | $30,000 | $0 | $0 | $0 |
| 2010 | $23,900 | $30,000 | $0 | $0 | $0 |
| 2009 | $52,100 | $30,000 | $0 | $0 | $0 |
| 2008 | $52,100 | $30,000 | $0 | $0 | $0 |
| 2007 | $35,900 | $10,000 | $0 | $0 | $0 |
| 2006 | $35,900 | $10,000 | $0 | $0 | $0 |
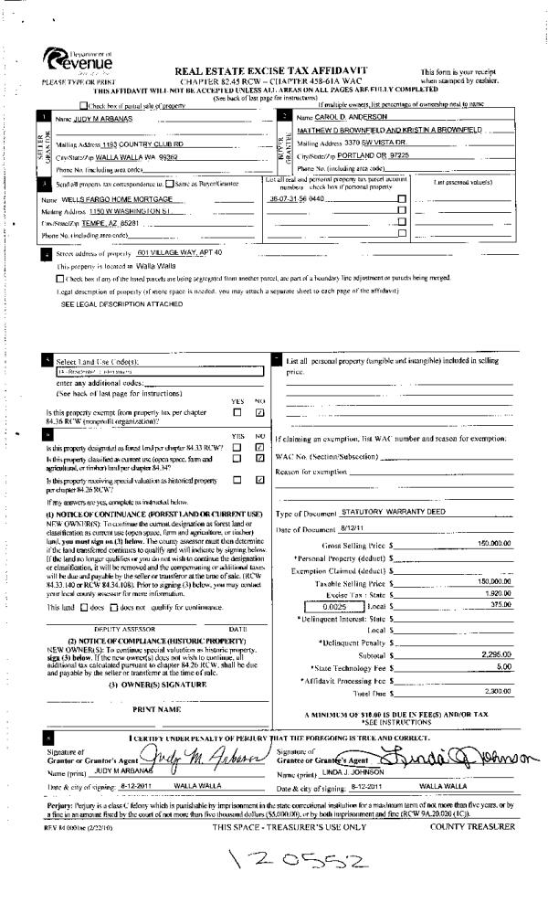
Deed and Sales History
| 1 | 05/20/2016 | WARRANTY D | WARRANTY DEED | BARNETT SHELBY | SMITH LISA M | | | $95,000.00 | 130252 | 2016-03787 |
| 2 | 11/05/2014 | SWP | Special Warranty Deed | SECRETARY OF HOUSING & URBAN DEVELOPMENT | BARNETT SHELBY | | | $38,501.00 | 126902 | 2014-08107 |
| 3 | 09/12/2014 | SWD | STATUTORY WARRANTY DEED | US BANK NATIONAL ASSOCIATION | SECRETARY OF HOUSING & URBAN DEVELOPMENT | | | $63,599.00 | 126650 | 2014-06779 |
| 4 | 11/05/2013 | WARRANTY D | WARRANTY DEED | PEAK FORECLOSURE SERVICES OF W | US BANK NATIONAL ASSOCIATION | | | $62,300.00 | 124917 | 2013-11028 |
| 5 | 01/31/2005 | WARRANTY D | WARRANTY DEED | GARCIA, JASON & DEBORAH | MENDEZ, AARON M & SAKURA C | | | $68,150.00 | 106696 | 2005-01212 |
| 6 | 10/23/1997 | WARRANTY D | WARRANTY DEED | | | | | $17,500.00 | 89191 | 2589-710279 |
Payout Agreement
| No payout information available.. |