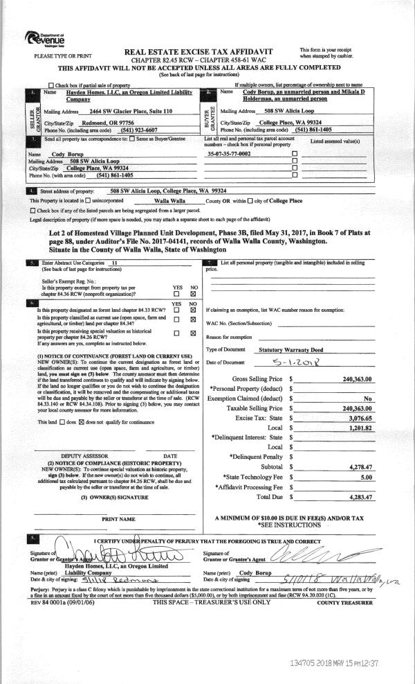
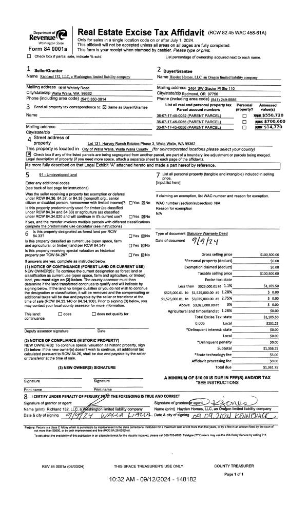
Property
Account |
| Property ID: | 14212 | Abbreviated Legal Description: | HATCH TAX 1 LOT 2 BLK 1 |
| Parcel Number: | 360728590112 | Agent Code: | |
| Type: | Real | | |
| Tax Area: | 1 - OL-140-F | Land Use Code | 11 |
| Open Space: | N | DFL | N |
| Historic Property: | N | Remodel Property: | N |
| Multi-Family Redevelopment: | N | | |
| Township: | 7 | Section: | 28 |
| Range: | 36 |
Location |
| Address: | 1245 DAKOTA ST WA 99362 | Mapsco: | |
| Neighborhood: | A Res | Map ID: | |
| Neighborhood CD: | 613011 |
Owner |
| Name: | WOODS JULIA | Owner ID: | 59859 |
| Mailing Address: | 1245 DAKOTA ST WALLA WALLA, WA 99362 | % Ownership: | 100.0000000000% |
| | | Exemptions: | |
Taxes and Assessment Details
Values
| (+) Improvement Homesite Value: | + | $0 | |
| (+) Improvement Non-Homesite Value: | + | $306,650 | |
| (+) Land Homesite Value: | + | $0 | |
| (+) Land Non-Homesite Value: | + | $60,000 | |
| (+) Curr Use (HS): | + | $0 | $0 |
| (+) Curr Use (NHS): | + | $0 | $0 |
| | | -------------------------- | |
| (=) Market Value: | = | $366,650 | |
| (–) Productivity Loss: | – | $0 | |
| | | -------------------------- | |
| (=) Subtotal: | = | $366,650 | |
| (+) Senior Appraised Value: | + | $0 | |
| (+) Non-Senior Appraised Value: | + | $366,650 | |
| | | -------------------------- | |
| (=) Total Appraised Value: | = | $366,650 | |
| (–) Senior Exemption Loss: | – | $0 | |
| (–) Exemption Loss: | – | $0 | |
| | | -------------------------- | |
| (=) Taxable Value: | = | $366,650 | |
Taxing Jurisdiction
| Owner: | WOODS JULIA | | |
| % Ownership: | 100.0000000000% | | |
| Total Value: | $366,650 | | |
| Tax Area: | 1 - OL-140-F |
| CERFD | CURRENT EXPENSE REFUND 010 | 0.0000000000 | $366,650 | $366,650 | $0.00 | | |
| CURREXP | CURRENT EXPENSE 010 | 1.0175366760 | $366,650 | $366,650 | $373.08 | | |
| HUMNSERV | HUMAN SERVICES 119 | 0.0250000000 | $366,650 | $366,650 | $9.17 | | |
| SLDREL | SOLDIERS RELIEF 121 | 0.0155990005 | $366,650 | $366,650 | $5.72 | | |
| EMERGSER | EMS 147 | 0.3792580840 | $366,650 | $366,650 | $139.05 | | |
| EMSRFD | EMS REFUND 147 | 0.0000000000 | $366,650 | $366,650 | $0.00 | | |
| PORTRFD | PORT REFUND 640 | 0.0000000000 | $366,650 | $366,650 | $0.00 | | |
| PORTWWGEN | PORT OF WW 640 | 0.2460186015 | $366,650 | $366,650 | $90.20 | | |
| SD140BOND | SD #140 BOND 764 | 0.8342371393 | $366,650 | $366,650 | $305.87 | | |
| SD140GEN | SD #140 GENERAL 760 | 2.0646500647 | $366,650 | $366,650 | $757.00 | | |
| ST2 | STATE SCHOOL PART 2 600 | 0.8131451643 | $366,650 | $366,650 | $298.14 | | |
| STATESCHL | STATE SCHOOL 600 | 1.5158548041 | $366,650 | $366,650 | $555.79 | | |
| STREFUND | STATE REFUND LEVY 603 | 0.0000000000 | $366,650 | $366,650 | $0.00 | | |
| CWWBOND | C OF WW BOND 643 | 0.2760494372 | $366,650 | $366,650 | $101.21 | | |
| CWWGEN | CITY OF WW 631 | 1.6100204973 | $366,650 | $366,650 | $590.31 | | |
| CWWRFD | CITY OF WALLA WALLA REFUND 631 | 0.0000000000 | $366,650 | $366,650 | $0.00 | | |
| | Total Tax Rate: | 8.7973694689 | | | | | |
| | | | | Taxes w/Current Exemptions: | $3,225.54 | | |
| | | | | Taxes w/o Exemptions: | $3,225.54 | | |
Improvement / Building
| Improvement #1: | RESIDENTIAL | State Code: | 11 | 1118.0 sqft | Value: | $306,650 |
| Exterior Wall: | SIDING | Foundation: | SLAB FOUNDATION | | Heating/Cooling: | WARM & COOLED AIR | Number of Bathrooms: | 1 | | Number of Bedrooms: | 3 | Plumbing: | 6 | | Roof Covering: | COMP SHINGLE |   |   |
|
| | Type | Description | Class CD | Sub Class CD | Year Built | Area |
| | MA | Main Area | 1 | 30 | 1951 | 1118.0 |
| | SI1 | SITE IMPROVEMENT | 1 | 30 | 1951 | 1.0 |
| | BASE | BASEMENT | 1 | 30 | 1951 | 808.0 |
| | BRF | BASEMENT - REC FINISH | 1 | 30 | 1951 | 606.0 |
| | RPS | PORCH W/STEPS,ROOF | 1 | 30 | 1951 | 48.0 |
| | DTG | Detached Garage | 1 | 30 | 1951 | 264.0 |
Sketch
Property Image
Land
| 1 | RES 1 | Converted: Residential | 0.1302 | 5670.00 | 0.00 | 0.00 | 1.00 | $60,000 | $0 |
Roll Value History
| 2025 | N/A | N/A | N/A | N/A | N/A |
| 2024 | $306,650 | $60,000 | $0 | $366,650 | $366,650 |
| 2023 | $306,650 | $60,000 | $0 | $366,650 | $366,650 |
| 2022 | $292,050 | $45,000 | $0 | $337,050 | $337,050 |
| 2021 | $194,700 | $45,000 | $0 | $239,700 | $239,700 |
| 2020 | $139,070 | $45,000 | $0 | $184,070 | $184,070 |
| 2019 | $139,070 | $45,000 | $0 | $184,070 | $184,070 |
| 2018 | $119,830 | $34,000 | $0 | $153,830 | $153,830 |
| 2017 | $114,120 | $34,000 | $0 | $148,120 | $148,120 |
| 2016 | $95,100 | $34,000 | $0 | $129,100 | $129,100 |
| 2015 | $95,100 | $34,000 | $0 | $129,100 | $129,100 |
| 2014 | $95,100 | $34,000 | $0 | $129,100 | $129,100 |
| 2013 | $95,100 | $34,000 | $0 | $129,100 | $129,100 |
| 2012 | $87,500 | $34,000 | $0 | $0 | $0 |
| 2011 | $87,500 | $34,000 | $0 | $0 | $0 |
| 2010 | $87,500 | $34,000 | $0 | $0 | $0 |
| 2009 | $101,000 | $34,000 | $0 | $0 | $0 |
| 2008 | $101,000 | $34,000 | $0 | $0 | $0 |
| 2007 | $62,200 | $17,000 | $0 | $0 | $0 |
| 2006 | $62,200 | $17,000 | $0 | $0 | $0 |
Deed and Sales History
| 1 | 10/24/2016 | SWD | STATUTORY WARRANTY DEED | HENETT BRYCE T & ERIN K | WOODS JULIA | | | $152,000.00 | 131305 | 2016-08821 |
| 2 | 05/01/2015 | WARRANTY D | WARRANTY DEED | LAMB NEIL & JOY | HENETT BRYCE T & ERIN K | | | $125,000.00 | 127891 | 2015-03656 |
| 3 | 08/26/2005 | WARRANTY D | WARRANTY DEED | ARELLANO, OSCAR & VERONICA | LAMB, NEIL & JOY | | | $136,000.00 | 108331 | 2005-10602 |
| 4 | 12/17/2004 | WARRANTY D | WARRANTY DEED | NAKONIECZNY, JOHN J | ARELLANO, OSCAR & VERONICA | | | $90,100.00 | 106430 | 2004-14528 |
| 5 | 03/25/1996 | WARRANTY D | WARRANTY DEED | | | | | $60,000.00 | 85809 | 2399-602845 |
Payout Agreement
| No payout information available.. |