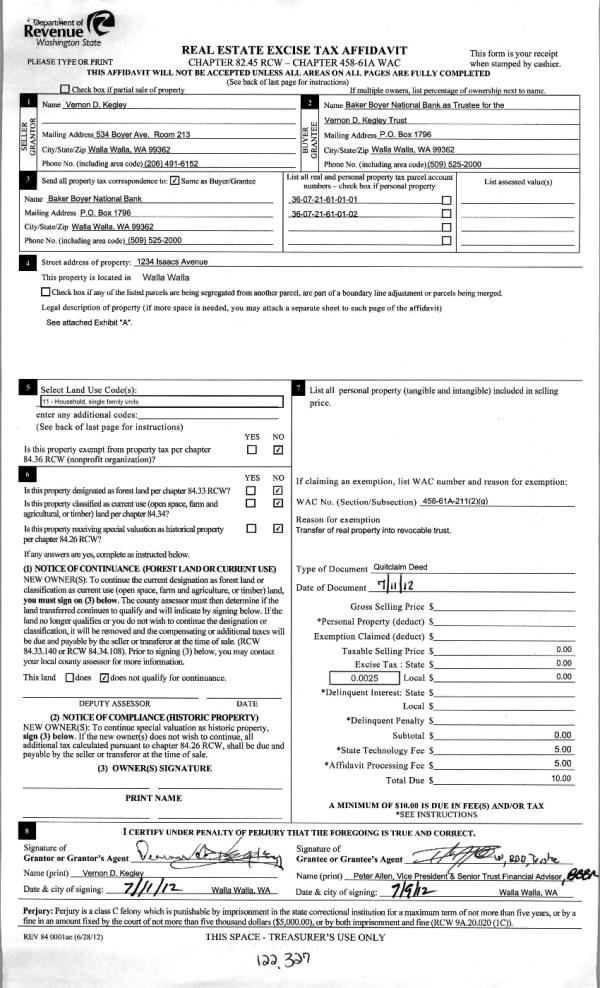
Property
Account |
| Property ID: | 14206 | Abbreviated Legal Description: | 16-7-36 TAX 59 |
| Parcel Number: | 360716340020 | Agent Code: | |
| Type: | Real | | |
| Tax Area: | 5 - OL-140 | Land Use Code | 11 |
| Open Space: | N | DFL | N |
| Historic Property: | N | Remodel Property: | N |
| Multi-Family Redevelopment: | N | | |
| Township: | 7 | Section: | 16 |
| Range: | 36 |
Location |
| Address: | 1557 TRUMAN ST WA 99362 | Mapsco: | |
| Neighborhood: | A-SFR | Map ID: | |
| Neighborhood CD: | 513011 |
Owner |
| Name: | BRIX NANCY A | Owner ID: | 66728 |
| Mailing Address: | 1557 TRUMAN ST WALLA WALLA, WA 99362 | % Ownership: | 100.0000000000% |
| | | Exemptions: | |
Taxes and Assessment Details
Values
| (+) Improvement Homesite Value: | + | $0 | |
| (+) Improvement Non-Homesite Value: | + | $272,590 | |
| (+) Land Homesite Value: | + | $0 | |
| (+) Land Non-Homesite Value: | + | $43,560 | |
| (+) Curr Use (HS): | + | $0 | $0 |
| (+) Curr Use (NHS): | + | $0 | $0 |
| | | -------------------------- | |
| (=) Market Value: | = | $316,150 | |
| (–) Productivity Loss: | – | $0 | |
| | | -------------------------- | |
| (=) Subtotal: | = | $316,150 | |
| (+) Senior Appraised Value: | + | $0 | |
| (+) Non-Senior Appraised Value: | + | $316,150 | |
| | | -------------------------- | |
| (=) Total Appraised Value: | = | $316,150 | |
| (–) Senior Exemption Loss: | – | $0 | |
| (–) Exemption Loss: | – | $0 | |
| | | -------------------------- | |
| (=) Taxable Value: | = | $316,150 | |
Taxing Jurisdiction
| Owner: | BRIX NANCY A | | |
| % Ownership: | 100.0000000000% | | |
| Total Value: | $316,150 | | |
| Tax Area: | 5 - OL-140 |
| CERFD | CURRENT EXPENSE REFUND 010 | 0.0000000000 | $316,150 | $316,150 | $0.00 | | |
| CURREXP | CURRENT EXPENSE 010 | 1.0175366760 | $316,150 | $316,150 | $321.69 | | |
| HUMNSERV | HUMAN SERVICES 119 | 0.0250000000 | $316,150 | $316,150 | $7.90 | | |
| SLDREL | SOLDIERS RELIEF 121 | 0.0155990005 | $316,150 | $316,150 | $4.93 | | |
| EMERGSER | EMS 147 | 0.3792580840 | $316,150 | $316,150 | $119.90 | | |
| EMSRFD | EMS REFUND 147 | 0.0000000000 | $316,150 | $316,150 | $0.00 | | |
| PORTRFD | PORT REFUND 640 | 0.0000000000 | $316,150 | $316,150 | $0.00 | | |
| PORTWWGEN | PORT OF WW 640 | 0.2460186015 | $316,150 | $316,150 | $77.78 | | |
| SD140BOND | SD #140 BOND 764 | 0.8342371393 | $316,150 | $316,150 | $263.74 | | |
| SD140GEN | SD #140 GENERAL 760 | 2.0646500647 | $316,150 | $316,150 | $652.74 | | |
| ST2 | STATE SCHOOL PART 2 600 | 0.8131451643 | $316,150 | $316,150 | $257.08 | | |
| STATESCHL | STATE SCHOOL 600 | 1.5158548041 | $316,150 | $316,150 | $479.24 | | |
| STREFUND | STATE REFUND LEVY 603 | 0.0000000000 | $316,150 | $316,150 | $0.00 | | |
| CWWBOND | C OF WW BOND 643 | 0.2760494372 | $316,150 | $316,150 | $87.27 | | |
| CWWGEN | CITY OF WW 631 | 1.6100204973 | $316,150 | $316,150 | $509.01 | | |
| CWWRFD | CITY OF WALLA WALLA REFUND 631 | 0.0000000000 | $316,150 | $316,150 | $0.00 | | |
| | Total Tax Rate: | 8.7973694689 | | | | | |
| | | | | Taxes w/Current Exemptions: | $2,781.28 | | |
| | | | | Taxes w/o Exemptions: | $2,781.28 | | |
Improvement / Building
| Improvement #1: | RESIDENTIAL | State Code: | 11 | 907.0 sqft | Value: | $272,590 |
| Exterior Wall: | VINYL | Heating/Cooling: | WARM & COOLED AIR | | Number of Bathrooms: | 1 | Number of Bedrooms: | 2 | | Plumbing: | 6 | Roof Covering: | COMP SHINGLE |
|
| | Type | Description | Class CD | Sub Class CD | Year Built | Area |
| | MA | Main Area | 1 | 30 | 1947 | 907.0 |
| | SI1 | SITE IMPROVEMENT | 1 | 30 | 1947 | 1.0 |
| | BASE | BASEMENT | 1 | 30 | 1947 | 907.0 |
| | OPS | OPEN PORCH W/STEPS | 1 | 30 | 1947 | 30.0 |
| | OPS | OPEN PORCH W/STEPS | 1 | 30 | 1947 | 35.0 |
| | BPF | BASEMENT -PARTITIONED FINISH | 1 | 30 | 1947 | 700.0 |
| | DTG | Detached Garage | 1 | 30 | 1947 | 231.0 |
| | CPC | COVERED CARPORT/PATIO | 1 | 30 | 1947 | 210.0 |
Sketch
Property Image
Land
| 1 | RES 1 | Converted: Residential | 0.1600 | 6969.00 | 0.00 | 0.00 | 1.00 | $43,560 | $0 |
Roll Value History
| 2025 | N/A | N/A | N/A | N/A | N/A |
| 2024 | $225,510 | $69,690 | $0 | $295,200 | $295,200 |
| 2023 | $272,590 | $43,560 | $0 | $316,150 | $316,150 |
| 2022 | $237,040 | $43,560 | $0 | $280,600 | $280,600 |
| 2021 | $182,340 | $43,560 | $0 | $225,900 | $225,900 |
| 2020 | $130,240 | $43,560 | $0 | $173,800 | $173,800 |
| 2019 | $130,240 | $43,560 | $0 | $173,800 | $173,800 |
| 2018 | $118,400 | $43,560 | $0 | $161,960 | $161,960 |
| 2017 | $128,930 | $27,900 | $0 | $156,830 | $156,830 |
| 2016 | $117,210 | $27,900 | $0 | $145,110 | $145,110 |
| 2015 | $111,630 | $27,900 | $0 | $139,530 | $139,530 |
| 2014 | $89,300 | $27,900 | $0 | $117,200 | $117,200 |
| 2013 | $89,300 | $27,900 | $0 | $117,200 | $117,200 |
| 2012 | $83,900 | $27,900 | $0 | $0 | $0 |
| 2011 | $61,500 | $27,900 | $0 | $0 | $0 |
| 2010 | $57,200 | $27,900 | $0 | $0 | $0 |
| 2009 | $66,600 | $27,900 | $0 | $0 | $0 |
| 2008 | $66,600 | $27,900 | $0 | $0 | $0 |
| 2007 | $66,600 | $27,900 | $0 | $0 | $0 |
| 2006 | $42,200 | $13,900 | $0 | $0 | $0 |
Deed and Sales History
| 1 | 02/14/2020 | SWD | STATUTORY WARRANTY DEED | TOWSLEY DAVID L & DANI M | BRIX NANCY A | | | $230,200.00 | 138624 | 2020-01428 |
| 2 | 12/23/2014 | BARGAIN & | BARGAIN & SALE DEED | US BANK TRUST NA AS TRUSTEE LSF8 MASTER PARTICIPATION TRUST | TOWSLEY DAVID L & DANI M | | | $85,500.00 | 127173 | 2014-09361 |
| 3 | 05/06/2014 | TRUSTEES D | TRUSTEE'S DEED | BUSHEY JEREMY & JESSICA | US BANK TRUST NA AS TRUSTEE LSF8 MASTER PARTICIPATION TRUST | | | $105,786.00 | 126615 | 2014-06638 |
| 4 | 12/27/2004 | WARRANTY D | WARRANTY DEED | SMIRES, MICHAEL | BUSHEY, JEREMY & JESSICA | | | $94,300.00 | 106502 | 2004-14851 |
| 5 | 08/08/1988 | WARRANTY D | WARRANTY DEED | | | | | $39,502.00 | 0 | 1728-805211 |
Payout Agreement
| No payout information available.. |