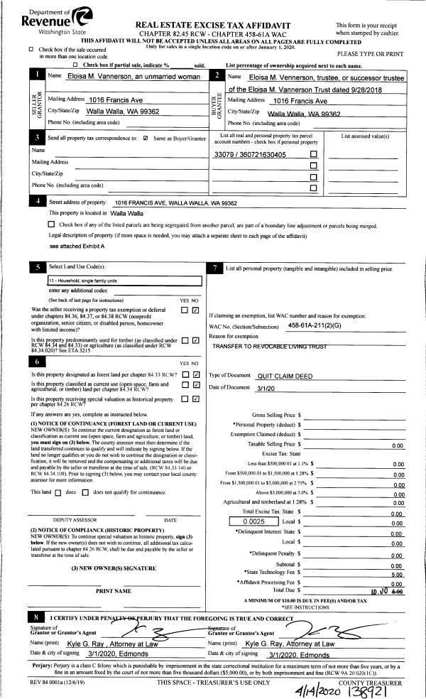
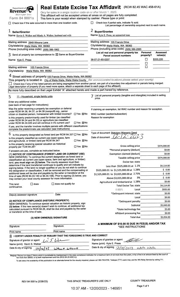
Property
Account |
| Property ID: | 14096 | Abbreviated Legal Description: | COUNTRY COURT CONDOS LOT 2 |
| Parcel Number: | 360731970002 | Agent Code: | |
| Type: | Real | | |
| Tax Area: | 101 - 140-4 | Land Use Code | 11 |
| Open Space: | N | DFL | N |
| Historic Property: | N | Remodel Property: | N |
| Multi-Family Redevelopment: | N | | |
| Township: | 7 | Section: | 31 |
| Range: | 36 |
Location |
| Address: | 35 COUNTRY COURT PL WA 99362 | Mapsco: | |
| Neighborhood: | Country Court Pl | Map ID: | |
| Neighborhood CD: | 115212 |
Owner |
| Name: | LEFRIEC JOHN P & TERESA M | Owner ID: | 61010 |
| Mailing Address: | 35 COUNTRY COURT PL WALLA WALLA, WA 99362 | % Ownership: | 100.0000000000% |
| | | Exemptions: | |
Taxes and Assessment Details
Values
| (+) Improvement Homesite Value: | + | $0 | |
| (+) Improvement Non-Homesite Value: | + | $551,200 | |
| (+) Land Homesite Value: | + | $0 | |
| (+) Land Non-Homesite Value: | + | $110,000 | |
| (+) Curr Use (HS): | + | $0 | $0 |
| (+) Curr Use (NHS): | + | $0 | $0 |
| | | -------------------------- | |
| (=) Market Value: | = | $661,200 | |
| (–) Productivity Loss: | – | $0 | |
| | | -------------------------- | |
| (=) Subtotal: | = | $661,200 | |
| (+) Senior Appraised Value: | + | $0 | |
| (+) Non-Senior Appraised Value: | + | $661,200 | |
| | | -------------------------- | |
| (=) Total Appraised Value: | = | $661,200 | |
| (–) Senior Exemption Loss: | – | $0 | |
| (–) Exemption Loss: | – | $0 | |
| | | -------------------------- | |
| (=) Taxable Value: | = | $661,200 | |
Taxing Jurisdiction
| Owner: | LEFRIEC JOHN P & TERESA M | | |
| % Ownership: | 100.0000000000% | | |
| Total Value: | $661,200 | | |
| Tax Area: | 101 - 140-4 |
| CERFD | CURRENT EXPENSE REFUND 010 | 0.0000000000 | $661,200 | $661,200 | $0.00 | | |
| CURREXP | CURRENT EXPENSE 010 | 1.0175366760 | $661,200 | $661,200 | $672.80 | | |
| HUMNSERV | HUMAN SERVICES 119 | 0.0250000000 | $661,200 | $661,200 | $16.53 | | |
| SLDREL | SOLDIERS RELIEF 121 | 0.0155990005 | $661,200 | $661,200 | $10.31 | | |
| EMERGSER | EMS 147 | 0.3792580840 | $661,200 | $661,200 | $250.77 | | |
| EMSRFD | EMS REFUND 147 | 0.0000000000 | $661,200 | $661,200 | $0.00 | | |
| FD4EXP | FD #4 EXPENSE 686 | 0.8836993059 | $661,200 | $661,200 | $584.30 | | |
| RLBRFD | RURAL LIBRARY REFUND 623 | 0.0000000000 | $661,200 | $661,200 | $0.00 | | |
| RURALLIB | RURAL LIBRARY 623 | 0.3710609029 | $661,200 | $661,200 | $245.35 | | |
| PORTRFD | PORT REFUND 640 | 0.0000000000 | $661,200 | $661,200 | $0.00 | | |
| PORTWWGEN | PORT OF WW 640 | 0.2460186015 | $661,200 | $661,200 | $162.67 | | |
| SD140BOND | SD #140 BOND 764 | 0.8342371393 | $661,200 | $661,200 | $551.60 | | |
| SD140GEN | SD #140 GENERAL 760 | 2.0646500647 | $661,200 | $661,200 | $1,365.15 | | |
| ST2 | STATE SCHOOL PART 2 600 | 0.8131451643 | $661,200 | $661,200 | $537.65 | | |
| STATESCHL | STATE SCHOOL 600 | 1.5158548041 | $661,200 | $661,200 | $1,002.28 | | |
| STREFUND | STATE REFUND LEVY 603 | 0.0000000000 | $661,200 | $661,200 | $0.00 | | |
| COROAD | COUNTY ROAD 115 | 1.6549953990 | $661,200 | $661,200 | $1,094.28 | | |
| CRPRD | COUNTY ROAD REFUND 115 | 0.0000000000 | $661,200 | $661,200 | $0.00 | | |
| | Total Tax Rate: | 9.8210551422 | | | | | |
| | | | | Taxes w/Current Exemptions: | $6,493.69 | | |
| | | | | Taxes w/o Exemptions: | $6,493.69 | | |
Improvement / Building
| Improvement #1: | RESIDENTIAL | State Code: | 11 | 3158.0 sqft | Value: | $551,200 |
| Exterior Wall: | CEMENT FIBER | Heating/Cooling: | WARM & COOLED AIR | | Number of Bathrooms: | 2 | Number of Bedrooms: | 4 | | Plumbing: | 15 | Roof Covering: | COMP SHINGLE |
|
| | Type | Description | Class CD | Sub Class CD | Year Built | Area |
| | MA | Main Area | 4 | 45 | 2005 | 3158.0 |
| | GFP | GAS FIREPLACE | 4 | 45 | 0 | 1.0 |
| | PRC | PORCH W STEPS, ROOF,CEILED | 4 | 45 | 0 | 120.0 |
| | SI1 | SITE IMPROVEMENT | 4 | 45 | 0 | 4.0 |
| | ATG | Attached Garage | 4 | 45 | 2005 | 988.0 |
| | UPFL | Upper Floor (included in main area) | 4 | 45 | 0 | 865.0 |
| | SMP | SWIMMING POOL | 4 | 45 | 0 | 1.0 |
Sketch
Property Image
Land
| 1 | RES 1 | Converted: Residential | 0.2518 | 10967.00 | 0.00 | 0.00 | 1.00 | $110,000 | $0 |
Roll Value History
| 2025 | N/A | N/A | N/A | N/A | N/A |
| 2024 | $551,200 | $110,000 | $0 | $661,200 | $661,200 |
| 2023 | $551,200 | $110,000 | $0 | $661,200 | $661,200 |
| 2022 | $551,200 | $110,000 | $0 | $661,200 | $661,200 |
| 2021 | $551,200 | $110,000 | $0 | $661,200 | $661,200 |
| 2020 | $367,460 | $110,000 | $0 | $477,460 | $477,460 |
| 2019 | $367,460 | $110,000 | $0 | $477,460 | $477,460 |
| 2018 | $349,970 | $110,000 | $0 | $459,970 | $459,970 |
| 2017 | $318,150 | $110,000 | $0 | $428,150 | $428,150 |
| 2016 | $303,000 | $110,000 | $0 | $413,000 | $413,000 |
| 2015 | $303,000 | $110,000 | $0 | $413,000 | $413,000 |
| 2014 | $303,000 | $110,000 | $0 | $413,000 | $413,000 |
| 2013 | $303,000 | $110,000 | $0 | $413,000 | $413,000 |
| 2012 | $303,000 | $110,000 | $0 | $0 | $0 |
| 2011 | $323,000 | $90,000 | $0 | $0 | $0 |
| 2010 | $323,000 | $90,000 | $0 | $0 | $0 |
| 2009 | $344,700 | $90,000 | $0 | $0 | $0 |
| 2008 | $317,500 | $80,000 | $0 | $0 | $0 |
| 2007 | $317,500 | $80,000 | $0 | $0 | $0 |
| 2006 | $68,100 | $80,000 | $0 | $0 | $0 |
Deed and Sales History
| 1 | 06/02/2017 | SWD | STATUTORY WARRANTY DEED | PEHA CHRIS-ALLAN K & JENNIFER K | LEFRIEC JOHN P & TERESA M | | | $485,000.00 | 132526 | 2017-04224 |
| 2 | 12/02/2004 | WARRANTY D | WARRANTY DEED | HAYNER, JAMES K | PEHA, CHRIS ALLAN K & JENNIFER | | | $80,000.00 | 106316 | 2004-13819 |
Payout Agreement
| No payout information available.. |