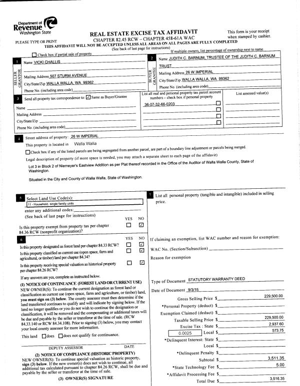
Property
Account |
| Property ID: | 13616 | Abbreviated Legal Description: | RITZ LOT 11 BLK 18 |
| Parcel Number: | 360730541811 | Agent Code: | |
| Type: | Real | | |
| Tax Area: | 1 - OL-140-F | Land Use Code | 11 |
| Open Space: | N | DFL | N |
| Historic Property: | N | Remodel Property: | N |
| Multi-Family Redevelopment: | N | | |
| Township: | 7 | Section: | 30 |
| Range: | 36 |
Location |
| Address: | 1008 W ALDER ST WA 99362 | Mapsco: | |
| Neighborhood: | A-SFR | Map ID: | |
| Neighborhood CD: | 313011 |
Owner |
| Name: | RAMOS MARIA C | Owner ID: | 59468 |
| Mailing Address: | 1008 W ALDER ST WALLA WALLA, WA 99362 | % Ownership: | 100.0000000000% |
| | | Exemptions: | |
Taxes and Assessment Details
Values
| (+) Improvement Homesite Value: | + | $253,540 | |
| (+) Improvement Non-Homesite Value: | + | $0 | |
| (+) Land Homesite Value: | + | $0 | |
| (+) Land Non-Homesite Value: | + | $49,500 | |
| (+) Curr Use (HS): | + | $0 | $0 |
| (+) Curr Use (NHS): | + | $0 | $0 |
| | | -------------------------- | |
| (=) Market Value: | = | $303,040 | |
| (–) Productivity Loss: | – | $0 | |
| | | -------------------------- | |
| (=) Subtotal: | = | $303,040 | |
| (+) Senior Appraised Value: | + | $0 | |
| (+) Non-Senior Appraised Value: | + | $303,040 | |
| | | -------------------------- | |
| (=) Total Appraised Value: | = | $303,040 | |
| (–) Senior Exemption Loss: | – | $0 | |
| (–) Exemption Loss: | – | $0 | |
| | | -------------------------- | |
| (=) Taxable Value: | = | $303,040 | |
Taxing Jurisdiction
| Owner: | RAMOS MARIA C | | |
| % Ownership: | 100.0000000000% | | |
| Total Value: | $303,040 | | |
| Tax Area: | 1 - OL-140-F |
| CERFD | CURRENT EXPENSE REFUND 010 | 0.0000000000 | $303,040 | $303,040 | $0.00 | | |
| CURREXP | CURRENT EXPENSE 010 | 1.0175366760 | $303,040 | $303,040 | $308.35 | | |
| HUMNSERV | HUMAN SERVICES 119 | 0.0250000000 | $303,040 | $303,040 | $7.58 | | |
| SLDREL | SOLDIERS RELIEF 121 | 0.0155990005 | $303,040 | $303,040 | $4.73 | | |
| EMERGSER | EMS 147 | 0.3792580840 | $303,040 | $303,040 | $114.93 | | |
| EMSRFD | EMS REFUND 147 | 0.0000000000 | $303,040 | $303,040 | $0.00 | | |
| PORTRFD | PORT REFUND 640 | 0.0000000000 | $303,040 | $303,040 | $0.00 | | |
| PORTWWGEN | PORT OF WW 640 | 0.2460186015 | $303,040 | $303,040 | $74.55 | | |
| SD140BOND | SD #140 BOND 764 | 0.8342371393 | $303,040 | $303,040 | $252.81 | | |
| SD140GEN | SD #140 GENERAL 760 | 2.0646500647 | $303,040 | $303,040 | $625.67 | | |
| ST2 | STATE SCHOOL PART 2 600 | 0.8131451643 | $303,040 | $303,040 | $246.42 | | |
| STATESCHL | STATE SCHOOL 600 | 1.5158548041 | $303,040 | $303,040 | $459.36 | | |
| STREFUND | STATE REFUND LEVY 603 | 0.0000000000 | $303,040 | $303,040 | $0.00 | | |
| CWWBOND | C OF WW BOND 643 | 0.2760494372 | $303,040 | $303,040 | $83.65 | | |
| CWWGEN | CITY OF WW 631 | 1.6100204973 | $303,040 | $303,040 | $487.90 | | |
| CWWRFD | CITY OF WALLA WALLA REFUND 631 | 0.0000000000 | $303,040 | $303,040 | $0.00 | | |
| | Total Tax Rate: | 8.7973694689 | | | | | |
| | | | | Taxes w/Current Exemptions: | $2,665.95 | | |
| | | | | Taxes w/o Exemptions: | $2,665.95 | | |
Improvement / Building
| Improvement #1: | RESIDENTIAL | State Code: | 11 | 1280.0 sqft | Value: | $253,540 |
| Exterior Wall: | HARDBOARD | Heating/Cooling: | HEAT PUMP | | Number of Bathrooms: | 2 | Number of Bedrooms: | 2 | | Plumbing: | 9 | Roof Covering: | COMP SHINGLE |
|
| | Type | Description | Class CD | Sub Class CD | Year Built | Area |
| | MA | Main Area | 1 | 30 | 2017 | 1280.0 |
| | SI1 | SITE IMPROVEMENT | 1 | 30 | 2017 | 2.0 |
| | RPC | OPEN PORCH W/ROOF , CEILED | 1 | 30 | 2017 | 100.0 |
| | RPO | OPEN PORCH W/ROOF | 1 | 30 | 2017 | 112.0 |
| | ATG | Attached Garage | 1 | 30 | 2017 | 480.0 |
Sketch
Property Image
Land
| 1 | RES 1 | Converted: Residential | 0.1377 | 6000.00 | 0.00 | 0.00 | 1.00 | $49,500 | $0 |
Roll Value History
| 2025 | N/A | N/A | N/A | N/A | N/A |
| 2024 | $278,890 | $49,500 | $0 | $328,390 | $328,390 |
| 2023 | $253,540 | $49,500 | $0 | $303,040 | $303,040 |
| 2022 | $181,100 | $49,500 | $0 | $230,600 | $230,600 |
| 2021 | $177,280 | $24,400 | $0 | $201,680 | $201,680 |
| 2020 | $161,160 | $24,400 | $0 | $185,560 | $185,560 |
| 2019 | $161,160 | $24,400 | $0 | $185,560 | $185,560 |
| 2018 | $161,160 | $24,400 | $0 | $185,560 | $185,560 |
| 2017 | $0 | $24,400 | $0 | $24,400 | $24,400 |
| 2016 | $0 | $24,400 | $0 | $24,400 | $24,400 |
| 2015 | $0 | $24,400 | $0 | $24,400 | $24,400 |
| 2014 | $0 | $24,400 | $0 | $24,400 | $24,400 |
| 2013 | $0 | $24,400 | $0 | $24,400 | $24,400 |
| 2012 | $0 | $24,400 | $0 | $0 | $0 |
| 2011 | $2,600 | $24,400 | $0 | $0 | $0 |
| 2010 | $2,600 | $24,400 | $0 | $0 | $0 |
| 2009 | $0 | $10,500 | $0 | $0 | $0 |
| 2008 | $17,400 | $10,500 | $0 | $0 | $0 |
| 2007 | $17,400 | $10,500 | $0 | $0 | $0 |
| 2006 | $17,400 | $10,500 | $0 | $0 | $0 |
Deed and Sales History
| 1 | 08/17/2016 | SWD | STATUTORY WARRANTY DEED | AGUILAR JOE M & BENITA | RAMOS MARIA C | | | $32,000.00 | 130845 | 2016-06566 |
| 2 | 10/21/2004 | QCD | QUIT CLAIM DEED | AGUILAR, GARCIA, CORONADO CO-T | AGUILAR, JOE M & BENITA | | | $10,000.00 | 106025 | 2004-12204 |
| 3 | 09/21/2004 | QCD | QUIT CLAIM DEED | CORONADO, VICENTE L ESTATE | AGUILAR, GARCIA, CORONADO CO-T | | | | 105761 | 2004-10892 |
| 4 | 11/16/1984 | WARRANTY D | WARRANTY DEED | | | | | | 0 | 1468-407828 |
Payout Agreement
| No payout information available.. |