Property
Account |
| Property ID: | 13502 | Abbreviated Legal Description: | 31-8-37 NW1/4SW1/4 S OF OF RD LESS RD; SW1/4SW1/4 LESS RD LESS .40AC FOR RD TO WW CO |
| Parcel Number: | 370831320001 | Agent Code: | |
| Type: | Real | | |
| Tax Area: | 310 - 101-8 | Land Use Code | 83 |
| Open Space: | Y | DFL | N |
| Historic Property: | N | Remodel Property: | N |
| Multi-Family Redevelopment: | N | | |
| Township: | 8 | Section: | 31 |
| Range: | 37 |
Location |
| Address: | WA 99329 | Mapsco: | |
| Neighborhood: | 0 Farm | Map ID: | |
| Neighborhood CD: | 4240 |
Owner |
| Name: | ARLINE STRUTHERS PROPERTIES LLC | Owner ID: | 69183 |
| Mailing Address: | C/O WTF CONSULTING PO BOX 1961 WALLA WALLA, WA 99362 | % Ownership: | 100.0000000000% |
| | | Exemptions: | |
Taxes and Assessment Details
Values
| (+) Improvement Homesite Value: | + | $0 | |
| (+) Improvement Non-Homesite Value: | + | $700 | |
| (+) Land Homesite Value: | + | $0 | |
| (+) Land Non-Homesite Value: | + | $0 | |
| (+) Curr Use (HS): | + | $0 | $0 |
| (+) Curr Use (NHS): | + | $181,400 | $64,650 |
| | | -------------------------- | |
| (=) Market Value: | = | $182,100 | |
| (–) Productivity Loss: | – | $116,760 | |
| | | -------------------------- | |
| (=) Subtotal: | = | $65,340 | |
| (+) Senior Appraised Value: | + | $0 | |
| (+) Non-Senior Appraised Value: | + | $65,350 | |
| | | -------------------------- | |
| (=) Total Appraised Value: | = | $65,350 | |
| (–) Senior Exemption Loss: | – | $0 | |
| (–) Exemption Loss: | – | $0 | |
| | | -------------------------- | |
| (=) Taxable Value: | = | $65,350 | |
Taxing Jurisdiction
| Owner: | ARLINE STRUTHERS PROPERTIES LLC | | |
| % Ownership: | 100.0000000000% | | |
| Total Value: | $182,100 | | |
| Tax Area: | 310 - 101-8 |
| CERFD | CURRENT EXPENSE REFUND 010 | 0.0000000000 | $65,350 | $65,350 | $0.00 | | |
| CURREXP | CURRENT EXPENSE 010 | 1.0175366760 | $65,350 | $65,350 | $66.50 | | |
| HUMNSERV | HUMAN SERVICES 119 | 0.0250000000 | $65,350 | $65,350 | $1.63 | | |
| SLDREL | SOLDIERS RELIEF 121 | 0.0155990005 | $65,350 | $65,350 | $1.02 | | |
| EMERGSER | EMS 147 | 0.3792580840 | $65,350 | $65,350 | $24.78 | | |
| EMSRFD | EMS REFUND 147 | 0.0000000000 | $65,350 | $65,350 | $0.00 | | |
| FD8EXP | FD #8 EXPENSE 697 | 0.6647992540 | $65,350 | $65,350 | $43.44 | | |
| RLBRFD | RURAL LIBRARY REFUND 623 | 0.0000000000 | $65,350 | $65,350 | $0.00 | | |
| RURALLIB | RURAL LIBRARY 623 | 0.3710609029 | $65,350 | $65,350 | $24.25 | | |
| PORTRFD | PORT REFUND 640 | 0.0000000000 | $65,350 | $65,350 | $0.00 | | |
| PORTWWGEN | PORT OF WW 640 | 0.2460186015 | $65,350 | $65,350 | $16.08 | | |
| SD101CAP | SD #101 CAP 752 | 0.5894423472 | $65,350 | $65,350 | $38.52 | | |
| SD101GEN | SD #101 GENERAL 750 | 0.7455117868 | $65,350 | $65,350 | $48.72 | | |
| ST2 | STATE SCHOOL PART 2 600 | 0.8131451643 | $65,350 | $65,350 | $53.14 | | |
| STATESCHL | STATE SCHOOL 600 | 1.5158548041 | $65,350 | $65,350 | $99.06 | | |
| STREFUND | STATE REFUND LEVY 603 | 0.0000000000 | $65,350 | $65,350 | $0.00 | | |
| COROAD | COUNTY ROAD 115 | 1.6549953990 | $65,350 | $65,350 | $108.15 | | |
| CRPRD | COUNTY ROAD REFUND 115 | 0.0000000000 | $65,350 | $65,350 | $0.00 | | |
| | Total Tax Rate: | 8.0382220203 | | | | | |
| | | | | Taxes w/Current Exemptions: | $525.29 | | |
| | | | | Taxes w/o Exemptions: | $525.29 | | |
Improvement / Building
| Improvement #1: | RESIDENTIAL | State Code: | 83 | 0.0 sqft | Value: | $700 |
Sketch
Property Image
Land
| 1 | WASTE | Waste | 3.6000 | 0.00 | 0.00 | 0.00 | 1.00 | $0 | $0 |
| 2 | 85-C1AN | Class 1 85 BU Annual | 54.9700 | 0.00 | 0.00 | 0.00 | 1.00 | $181,400 | $64,650 |
Roll Value History
| 2025 | N/A | N/A | N/A | N/A | N/A |
| 2024 | $700 | $186,070 | $62,450 | $63,150 | $63,150 |
| 2023 | $700 | $181,400 | $64,650 | $65,350 | $65,350 |
| 2022 | $700 | $173,820 | $61,900 | $62,600 | $62,600 |
| 2021 | $700 | $164,470 | $61,510 | $62,210 | $62,210 |
| 2020 | $700 | $155,130 | $63,110 | $63,810 | $63,810 |
| 2019 | $700 | $150,230 | $64,320 | $65,020 | $65,020 |
| 2018 | $700 | $149,740 | $73,220 | $73,920 | $73,920 |
| 2017 | $700 | $148,360 | $74,430 | $75,130 | $75,130 |
| 2016 | $700 | $148,360 | $74,590 | $75,290 | $75,290 |
| 2015 | $700 | $148,360 | $66,180 | $66,880 | $66,880 |
| 2014 | $700 | $148,360 | $66,680 | $67,380 | $67,380 |
| 2013 | $700 | $141,300 | $53,900 | $54,600 | $54,600 |
| 2012 | $700 | $34,700 | $0 | $0 | $0 |
| 2011 | $700 | $32,800 | $0 | $0 | $0 |
| 2010 | $700 | $29,600 | $0 | $0 | $0 |
| 2009 | $700 | $30,600 | $0 | $0 | $0 |
| 2008 | $700 | $25,700 | $0 | $0 | $0 |
| 2007 | $600 | $40,000 | $0 | $0 | $0 |
| 2006 | $600 | $40,000 | $0 | $0 | $0 |
Deed and Sales History
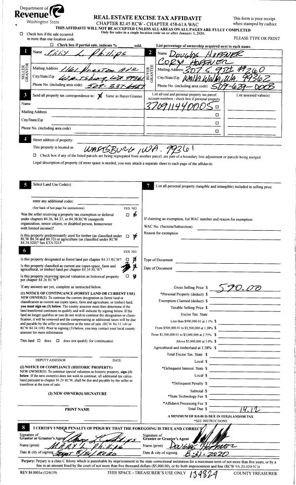
| 1 | 04/07/2021 | QCD | QUIT CLAIM DEED | RHODES ELAINE SEAR | ARLINE STRUTHERS PROPERTIES LLC | | 7 PARCELS | $0.00 | 141292 | 2021-04132 |
| 2 | 12/14/2020 | QCD | QUIT CLAIM DEED | DECKER GARY JOSEPH | ARLINE STRUTHERS PROPERTIES LLC | | 7 PARCELS | $0.00 | 141289 | 2021-04131 |
| 3 | 12/14/2020 | QCD | QUIT CLAIM DEED | SEARS RONALD B | ARLINE STRUTHERS PROPERTIES LLC | | 7 PARCELS | $0.00 | 141291 | 2021-04133 |
| 4 | 01/15/2021 | QCD | QUIT CLAIM DEED | BRAWLEY FAMILY TRUST | ARLINE STRUTHERS PROPERTIES LLC | | 7 PARCELS | $0.00 | 141290 | 2021-04134 |
| 5 | 08/23/2005 | WARRANTY D | WARRANTY DEED | BRAWLEY FAMILY TRUST | | | | | 107921 | 2005-10410 |
| 6 | 01/01/1950 | WARRANTY D | WARRANTY DEED | | | | | $0.00 | 0 | 5900-36290 |
Payout Agreement
| No payout information available.. |