Property
Account |
| Property ID: | 13451 | Abbreviated Legal Description: | SEC 27 TWP 7 RNG 31 SO. PTN. TAX 8A (TRACT B) |
| Parcel Number: | 310727410009 | Agent Code: | |
| Type: | Real | | |
| Tax Area: | 333 - 400-5-C-M | Land Use Code | 11 |
| Open Space: | N | DFL | N |
| Historic Property: | N | Remodel Property: | N |
| Multi-Family Redevelopment: | N | | |
| Township: | 7 | Section: | 27 |
| Range: | 31 |
Location |
| Address: | 101 HATCH GRADE RD WA 99363 | Mapsco: | |
| Neighborhood: | Wallula A SFR | Map ID: | |
| Neighborhood CD: | 213811 |
Owner |
| Name: | HOOVER ROGER QUINN & | Owner ID: | 68790 |
| Mailing Address: | SONYA K VELDMAN PO BOX 722 WALLULA, WA 99363 | % Ownership: | 100.0000000000% |
| | | Exemptions: | |
Taxes and Assessment Details
Values
| (+) Improvement Homesite Value: | + | $0 | |
| (+) Improvement Non-Homesite Value: | + | $350,740 | |
| (+) Land Homesite Value: | + | $0 | |
| (+) Land Non-Homesite Value: | + | $24,400 | |
| (+) Curr Use (HS): | + | $0 | $0 |
| (+) Curr Use (NHS): | + | $0 | $0 |
| | | -------------------------- | |
| (=) Market Value: | = | $375,140 | |
| (–) Productivity Loss: | – | $0 | |
| | | -------------------------- | |
| (=) Subtotal: | = | $375,140 | |
| (+) Senior Appraised Value: | + | $0 | |
| (+) Non-Senior Appraised Value: | + | $375,140 | |
| | | -------------------------- | |
| (=) Total Appraised Value: | = | $375,140 | |
| (–) Senior Exemption Loss: | – | $0 | |
| (–) Exemption Loss: | – | $0 | |
| | | -------------------------- | |
| (=) Taxable Value: | = | $375,140 | |
Taxing Jurisdiction
| Owner: | HOOVER ROGER QUINN & | | |
| % Ownership: | 100.0000000000% | | |
| Total Value: | $375,140 | | |
| Tax Area: | 333 - 400-5-C-M |
| CERFD | CURRENT EXPENSE REFUND 010 | 0.0000000000 | $375,140 | $375,140 | $0.00 | | |
| CURREXP | CURRENT EXPENSE 010 | 1.0175366760 | $375,140 | $375,140 | $381.72 | | |
| HUMNSERV | HUMAN SERVICES 119 | 0.0250000000 | $375,140 | $375,140 | $9.38 | | |
| SLDREL | SOLDIERS RELIEF 121 | 0.0155990005 | $375,140 | $375,140 | $5.85 | | |
| EMERGSER | EMS 147 | 0.3792580840 | $375,140 | $375,140 | $142.27 | | |
| EMSRFD | EMS REFUND 147 | 0.0000000000 | $375,140 | $375,140 | $0.00 | | |
| FD5EXP | FD #5 EXPENSE 689 | 1.2045331840 | $375,140 | $375,140 | $451.87 | | |
| RLBRFD | RURAL LIBRARY REFUND 623 | 0.0000000000 | $375,140 | $375,140 | $0.00 | | |
| RURALLIB | RURAL LIBRARY 623 | 0.3710609029 | $375,140 | $375,140 | $139.20 | | |
| PORTRFD | PORT REFUND 640 | 0.0000000000 | $375,140 | $375,140 | $0.00 | | |
| PORTWWGEN | PORT OF WW 640 | 0.2460186015 | $375,140 | $375,140 | $92.29 | | |
| SD400BOND | SD #400 BOND 793 | 0.0000000000 | $375,140 | $375,140 | $0.00 | | |
| SD400CAP | SD #400 CP 792 | 0.3443722657 | $375,140 | $375,140 | $129.19 | | |
| SD400GEN | SD #400 GENERAL 790 | 1.9278469916 | $375,140 | $375,140 | $723.21 | | |
| ST2 | STATE SCHOOL PART 2 600 | 0.8131451643 | $375,140 | $375,140 | $305.04 | | |
| STATESCHL | STATE SCHOOL 600 | 1.5158548041 | $375,140 | $375,140 | $568.66 | | |
| STREFUND | STATE REFUND LEVY 603 | 0.0000000000 | $375,140 | $375,140 | $0.00 | | |
| COROAD | COUNTY ROAD 115 | 1.6549953990 | $375,140 | $375,140 | $620.85 | | |
| CRPRD | COUNTY ROAD REFUND 115 | 0.0000000000 | $375,140 | $375,140 | $0.00 | | |
| | Total Tax Rate: | 9.5152210736 | | | | | |
| | | | | Taxes w/Current Exemptions: | $3,569.53 | | |
| | | | | Taxes w/o Exemptions: | $3,569.53 | | |
Improvement / Building
| Improvement #1: | RESIDENTIAL | State Code: | 11 | 2112.0 sqft | Value: | $350,740 |
| Exterior Wall: | VINYL | Heating/Cooling: | HEAT PUMP | | Number of Bathrooms: | 3 | Number of Bedrooms: | 3 | | Plumbing: | 12 | Roof Covering: | GALVANIZED METAL |
|
| | Type | Description | Class CD | Sub Class CD | Year Built | Area |
| | MA | Main Area | 1 | 30 | 1997 | 2112.0 |
| | SI1 | SITE IMPROVEMENT | 1 | 30 | 1997 | 4.0 |
| | BASE | BASEMENT | 1 | 30 | 1997 | 1408.0 |
| | BRF | BASEMENT - REC FINISH | 1 | 30 | 1997 | 1408.0 |
| | SWP | Solid Wall Porch | 1 | 30 | 1997 | 60.0 |
| | WOD | Wood Deck | 1 | 30 | 1997 | 196.0 |
Sketch
Property Image
Land
| 1 | RES 1 | Converted: Residential | 0.2700 | 11761.00 | 0.00 | 0.00 | 1.00 | $24,400 | $0 |
Roll Value History
| 2025 | N/A | N/A | N/A | N/A | N/A |
| 2024 | $350,740 | $24,400 | $0 | $375,140 | $375,140 |
| 2023 | $350,740 | $24,400 | $0 | $375,140 | $375,140 |
| 2022 | $350,740 | $24,400 | $0 | $375,140 | $375,140 |
| 2021 | $269,800 | $24,400 | $0 | $294,200 | $294,200 |
| 2020 | $198,740 | $9,900 | $0 | $208,640 | $208,640 |
| 2019 | $198,740 | $9,900 | $0 | $208,640 | $208,640 |
| 2018 | $198,740 | $9,900 | $0 | $208,640 | $208,640 |
| 2017 | $189,280 | $9,900 | $0 | $199,180 | $199,180 |
| 2016 | $189,280 | $9,900 | $0 | $199,180 | $199,180 |
| 2015 | $189,280 | $9,900 | $0 | $199,180 | $199,180 |
| 2014 | $135,200 | $9,900 | $0 | $145,100 | $145,100 |
| 2013 | $135,200 | $9,900 | $0 | $145,100 | $145,100 |
| 2012 | $135,200 | $9,900 | $0 | $0 | $0 |
| 2011 | $135,200 | $9,900 | $0 | $0 | $0 |
| 2010 | $135,200 | $9,900 | $0 | $0 | $0 |
| 2009 | $132,800 | $7,100 | $0 | $0 | $0 |
| 2008 | $132,800 | $7,100 | $0 | $0 | $0 |
| 2007 | $132,800 | $7,100 | $0 | $0 | $0 |
| 2006 | $132,800 | $7,100 | $0 | $0 | $0 |
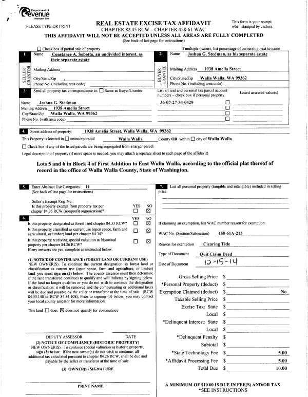
Deed and Sales History
| 1 | 12/13/2024 | SWD | STATUTORY WARRANTY DEED | HOOVER ROGER QUINN & | PAULUS KASEY | | 2-PARCLES | $430,000.00 | 148661 | 2024-07237 |
|   | |
| 2 | 02/03/2021 | SWD | STATUTORY WARRANTY DEED | LARSON KENNETH M & BONNIE L | HOOVER ROGER QUINN & | | 2-PARCELS | $395,000.00 | 140902 | 2021-01690 |
|   | |
| 3 | 03/23/2004 | QCD | QUIT CLAIM DEED | GROSS, BONNIE L | LARSON, KENNETH M & BONNIE L | | | | 104333 | 2004-03045 |
Payout Agreement
| No payout information available.. |