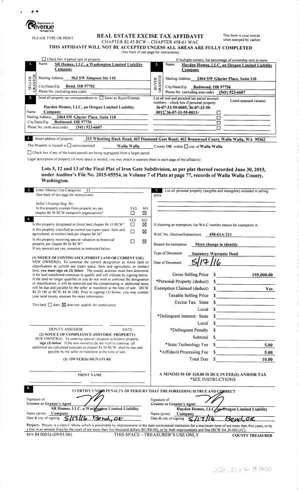
Property
Account |
| Property ID: | 13413 | Abbreviated Legal Description: | DIXIE LOTS 4 THRU 6 BLK 39 N1/2 OF LOTS 7 THRU 9 BLK 39 |
| Parcel Number: | 370826513904 | Agent Code: | |
| Type: | Real | | |
| Tax Area: | 310 - 101-8 | Land Use Code | 11 |
| Open Space: | N | DFL | N |
| Historic Property: | N | Remodel Property: | N |
| Multi-Family Redevelopment: | N | | |
| Township: | 8 | Section: | 26 |
| Range: | 37 |
Location |
| Address: | 101 GILLIAM ST WA 99329 | Mapsco: | |
| Neighborhood: | Cycle 4 Dixie (SF) | Map ID: | |
| Neighborhood CD: | 413511 |
Owner |
| Name: | DAVIS JEFFERY LYNN | Owner ID: | 60027 |
| Mailing Address: | PO BOX 205 DIXIE, WA 99329 | % Ownership: | 100.0000000000% |
| | | Exemptions: | |
Taxes and Assessment Details
Values
| (+) Improvement Homesite Value: | + | $0 | |
| (+) Improvement Non-Homesite Value: | + | $71,020 | |
| (+) Land Homesite Value: | + | $0 | |
| (+) Land Non-Homesite Value: | + | $46,290 | |
| (+) Curr Use (HS): | + | $0 | $0 |
| (+) Curr Use (NHS): | + | $0 | $0 |
| | | -------------------------- | |
| (=) Market Value: | = | $117,310 | |
| (–) Productivity Loss: | – | $0 | |
| | | -------------------------- | |
| (=) Subtotal: | = | $117,310 | |
| (+) Senior Appraised Value: | + | $0 | |
| (+) Non-Senior Appraised Value: | + | $117,310 | |
| | | -------------------------- | |
| (=) Total Appraised Value: | = | $117,310 | |
| (–) Senior Exemption Loss: | – | $0 | |
| (–) Exemption Loss: | – | $0 | |
| | | -------------------------- | |
| (=) Taxable Value: | = | $117,310 | |
Taxing Jurisdiction
| Owner: | DAVIS JEFFERY LYNN | | |
| % Ownership: | 100.0000000000% | | |
| Total Value: | $117,310 | | |
| Tax Area: | 310 - 101-8 |
| CERFD | CURRENT EXPENSE REFUND 010 | 0.0000000000 | $117,310 | $117,310 | $0.00 | | |
| CURREXP | CURRENT EXPENSE 010 | 1.0175366760 | $117,310 | $117,310 | $119.37 | | |
| HUMNSERV | HUMAN SERVICES 119 | 0.0250000000 | $117,310 | $117,310 | $2.93 | | |
| SLDREL | SOLDIERS RELIEF 121 | 0.0155990005 | $117,310 | $117,310 | $1.83 | | |
| EMERGSER | EMS 147 | 0.3792580840 | $117,310 | $117,310 | $44.49 | | |
| EMSRFD | EMS REFUND 147 | 0.0000000000 | $117,310 | $117,310 | $0.00 | | |
| FD8EXP | FD #8 EXPENSE 697 | 0.6647992540 | $117,310 | $117,310 | $77.99 | | |
| RLBRFD | RURAL LIBRARY REFUND 623 | 0.0000000000 | $117,310 | $117,310 | $0.00 | | |
| RURALLIB | RURAL LIBRARY 623 | 0.3710609029 | $117,310 | $117,310 | $43.53 | | |
| PORTRFD | PORT REFUND 640 | 0.0000000000 | $117,310 | $117,310 | $0.00 | | |
| PORTWWGEN | PORT OF WW 640 | 0.2460186015 | $117,310 | $117,310 | $28.86 | | |
| SD101CAP | SD #101 CAP 752 | 0.5894423472 | $117,310 | $117,310 | $69.15 | | |
| SD101GEN | SD #101 GENERAL 750 | 0.7455117868 | $117,310 | $117,310 | $87.46 | | |
| ST2 | STATE SCHOOL PART 2 600 | 0.8131451643 | $117,310 | $117,310 | $95.39 | | |
| STATESCHL | STATE SCHOOL 600 | 1.5158548041 | $117,310 | $117,310 | $177.82 | | |
| STREFUND | STATE REFUND LEVY 603 | 0.0000000000 | $117,310 | $117,310 | $0.00 | | |
| COROAD | COUNTY ROAD 115 | 1.6549953990 | $117,310 | $117,310 | $194.15 | | |
| CRPRD | COUNTY ROAD REFUND 115 | 0.0000000000 | $117,310 | $117,310 | $0.00 | | |
| | Total Tax Rate: | 8.0382220203 | | | | | |
| | | | | Taxes w/Current Exemptions: | $942.97 | | |
| | | | | Taxes w/o Exemptions: | $942.97 | | |
Improvement / Building
| Improvement #1: | RESIDENTIAL | State Code: | 11 | 520.0 sqft | Value: | $71,020 |
| Exterior Wall: | SIDING | Foundation: | POST & PIER | | Heating/Cooling: | STOVE-NO HEAT | Number of Bathrooms: | 1 | | Number of Bedrooms: | 1 | Plumbing: | 6 | | Roof Covering: | COMP SHINGLE |   |   |
|
| | Type | Description | Class CD | Sub Class CD | Year Built | Area |
| | MA | Main Area | 1 | 20 | 1904 | 520.0 |
| | SI1 | SITE IMPROVEMENT | 1 | 20 | 1904 | 1.0 |
| | UTST | Utility Storage Shed | 1 | 20 | 1904 | 200.0 |
Sketch
Property Image
Land
| 1 | RES 1 | Converted: Residential | 0.5159 | 22473.00 | 0.00 | 0.00 | 1.00 | $46,290 | $0 |
Roll Value History
| 2025 | N/A | N/A | N/A | N/A | N/A |
| 2024 | $71,020 | $46,290 | $0 | $117,310 | $117,310 |
| 2023 | $71,020 | $46,290 | $0 | $117,310 | $117,310 |
| 2022 | $58,790 | $30,200 | $0 | $88,990 | $88,990 |
| 2021 | $29,400 | $30,200 | $0 | $59,600 | $59,600 |
| 2020 | $21,000 | $30,200 | $0 | $51,200 | $51,200 |
| 2019 | $21,000 | $30,200 | $0 | $51,200 | $51,200 |
| 2018 | $19,090 | $30,200 | $0 | $49,290 | $49,290 |
| 2017 | $19,090 | $30,200 | $0 | $49,290 | $49,290 |
| 2016 | $17,900 | $30,200 | $0 | $48,100 | $48,100 |
| 2015 | $17,900 | $30,200 | $0 | $48,100 | $48,100 |
| 2014 | $17,900 | $30,200 | $0 | $48,100 | $48,100 |
| 2013 | $17,900 | $30,200 | $0 | $48,100 | $48,100 |
| 2012 | $17,900 | $30,200 | $0 | $0 | $0 |
| 2011 | $0 | $30,200 | $0 | $0 | $0 |
| 2010 | $0 | $30,200 | $0 | $0 | $0 |
| 2009 | $10,800 | $19,400 | $0 | $0 | $0 |
| 2008 | $5,800 | $19,400 | $0 | $0 | $0 |
| 2007 | $5,800 | $19,400 | $0 | $0 | $0 |
| 2006 | $5,800 | $19,400 | $0 | $0 | $0 |
Deed and Sales History
| 1 | 11/21/2024 | QCD | QUIT CLAIM DEED | DAVIS JEFFERY LYNN | DAVIS MICHAEL G | | | | 148544 | 2024-06741 |
| 2 | 05/30/2017 | TODD | TRANSFER ON DEATH DEED | DAVIS TERRY L | DAVIS JEFFERY LYNN | | | $0.00 | 132490 | 2017-04125 |
| 3 | 12/09/2016 | DEED DEATH | DEED DEATH | DAVIS TERRY L | DAVIS JEFFERY LYNN | | | | 0 | 2016-09915 |
| 4 | 10/07/2011 | QCD | QUIT CLAIM DEED | DAVIS FAMILY TRUST | DAVIS, TERRY L | | | $28,200.00 | 120797 | 2011-07884 |
| 5 | 06/18/1975 | WARRANTY D | WARRANTY DEED | | | | | $0.00 | 0 | 2805-45568 |
Payout Agreement
| No payout information available.. |