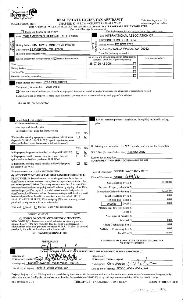
Property
Account |
| Property ID: | 13283 | Abbreviated Legal Description: | MILBROOKE PARK LOT 27 BLK 3 |
| Parcel Number: | 360721650327 | Agent Code: | |
| Type: | Real | | |
| Tax Area: | 1 - OL-140-F | Land Use Code | 11 |
| Open Space: | N | DFL | N |
| Historic Property: | N | Remodel Property: | N |
| Multi-Family Redevelopment: | N | | |
| Township: | 7 | Section: | 21 |
| Range: | 36 |
Location |
| Address: | 26 FRANCIS DR WA 99362 | Mapsco: | |
| Neighborhood: | A-Superior SFR | Map ID: | |
| Neighborhood CD: | 513211 |
Owner |
| Name: | MELHUS NANCY ANN | Owner ID: | 59151 |
| Mailing Address: | 26 FRANCIS DR WALLA WALLA, WA 99362 | % Ownership: | 100.0000000000% |
| | | Exemptions: | SNR/DSBL |
Taxes and Assessment Details
Values
| (+) Improvement Homesite Value: | + | $287,670 | |
| (+) Improvement Non-Homesite Value: | + | $0 | |
| (+) Land Homesite Value: | + | $36,050 | |
| (+) Land Non-Homesite Value: | + | $0 | |
| (+) Curr Use (HS): | + | $0 | $0 |
| (+) Curr Use (NHS): | + | $0 | $0 |
| | | -------------------------- | |
| (=) Market Value: | = | $323,720 | |
| (–) Productivity Loss: | – | $0 | |
| | | -------------------------- | |
| (=) Subtotal: | = | $323,720 | |
| (+) Senior Appraised Value: | + | $176,550 | |
| (+) Non-Senior Appraised Value: | + | $0 | |
| | | -------------------------- | |
| (=) Total Appraised Value: | = | $176,550 | |
| (–) Senior Exemption Loss: | – | $105,930 | |
| (–) Exemption Loss: | – | $0 | |
| | | -------------------------- | |
| (=) Taxable Value: | = | $70,620 | |
Taxing Jurisdiction
| Owner: | MELHUS NANCY ANN | | |
| % Ownership: | 100.0000000000% | | |
| Total Value: | $323,720 | | |
| Tax Area: | 1 - OL-140-F |
| CERFD | CURRENT EXPENSE REFUND 010 | 0.0000000000 | $323,720 | $70,620 | $0.00 | | |
| CURREXP | CURRENT EXPENSE 010 | 1.0175366760 | $323,720 | $70,620 | $71.86 | | |
| HUMNSERV | HUMAN SERVICES 119 | 0.0250000000 | $323,720 | $70,620 | $1.77 | | |
| SLDREL | SOLDIERS RELIEF 121 | 0.0155990005 | $323,720 | $70,620 | $1.10 | | |
| EMERGSER | EMS 147 | 0.3792580840 | $323,720 | $70,620 | $26.78 | | |
| EMSRFD | EMS REFUND 147 | 0.0000000000 | $323,720 | $70,620 | $0.00 | | |
| PORTRFD | PORT REFUND 640 | 0.0000000000 | $323,720 | $70,620 | $0.00 | | |
| PORTWWGEN | PORT OF WW 640 | 0.2460186015 | $323,720 | $70,620 | $17.37 | | |
| SD140BOND | SD #140 BOND 764 | 0.0000000000 | $323,720 | $0 | $0.00 | | |
| SD140GEN | SD #140 GENERAL 760 | 0.0000000000 | $323,720 | $0 | $0.00 | | |
| ST2 | STATE SCHOOL PART 2 600 | 0.0000000000 | $323,720 | $0 | $0.00 | | |
| STATESCHL | STATE SCHOOL 600 | 1.5158548041 | $323,720 | $70,620 | $107.05 | | |
| STREFUND | STATE REFUND LEVY 603 | 0.0000000000 | $323,720 | $70,620 | $0.00 | | |
| CWWBOND | C OF WW BOND 643 | 0.0000000000 | $323,720 | $0 | $0.00 | | |
| CWWGEN | CITY OF WW 631 | 1.6100204973 | $323,720 | $70,620 | $113.70 | | |
| CWWRFD | CITY OF WALLA WALLA REFUND 631 | 0.0000000000 | $323,720 | $70,620 | $0.00 | | |
| | Total Tax Rate: | 4.8092876634 | | | | | |
| | | | | Taxes w/Current Exemptions: | $339.63 | | |
| | | | | Taxes w/o Exemptions: | $2,847.88 | | |
Improvement / Building
| Improvement #1: | RESIDENTIAL | State Code: | 11 | 1040.0 sqft | Value: | $287,670 |
| Exterior Wall: | SIDING | Heating/Cooling: | WARM & COOLED AIR | | Number of Bathrooms: | 1 | Number of Bedrooms: | 3 | | Plumbing: | 6 | Roof Covering: | COMP SHINGLE |
|
| | Type | Description | Class CD | Sub Class CD | Year Built | Area |
| | MA | Main Area | 1 | 30 | 1952 | 1040.0 |
| | SI1 | SITE IMPROVEMENT | 1 | 30 | 1952 | 1.5 |
| | BASE | BASEMENT | 1 | 30 | 1952 | 1040.0 |
| | RPS | PORCH W/STEPS,ROOF | 1 | 30 | 1952 | 25.0 |
Sketch
Property Image
Land
| 1 | RES 1 | Converted: Residential | 0.1324 | 5768.00 | 0.00 | 0.00 | 1.00 | $36,050 | $0 |
Roll Value History
| 2025 | N/A | N/A | N/A | N/A | N/A |
| 2024 | $250,960 | $57,680 | $0 | $308,640 | $70,620 |
| 2023 | $287,670 | $36,050 | $0 | $323,720 | $70,620 |
| 2022 | $273,980 | $36,050 | $0 | $310,030 | $114,757 |
| 2021 | $210,750 | $36,050 | $0 | $246,800 | $70,620 |
| 2020 | $140,500 | $36,050 | $0 | $176,550 | $70,620 |
| 2019 | $140,500 | $36,050 | $0 | $176,550 | $70,620 |
| 2018 | $140,500 | $36,050 | $0 | $176,550 | $176,550 |
| 2017 | $151,830 | $23,100 | $0 | $174,930 | $174,930 |
| 2016 | $126,530 | $23,100 | $0 | $149,630 | $149,630 |
| 2015 | $126,530 | $23,100 | $0 | $149,630 | $149,630 |
| 2014 | $120,500 | $23,100 | $0 | $143,600 | $143,600 |
| 2013 | $120,500 | $23,100 | $0 | $143,600 | $143,600 |
| 2012 | $126,900 | $23,100 | $0 | $0 | $0 |
| 2011 | $126,900 | $23,100 | $0 | $0 | $0 |
| 2010 | $119,800 | $23,100 | $0 | $0 | $0 |
| 2009 | $135,700 | $23,100 | $0 | $0 | $0 |
| 2008 | $115,000 | $23,100 | $0 | $0 | $0 |
| 2007 | $115,000 | $23,100 | $0 | $0 | $0 |
| 2006 | $68,100 | $11,500 | $0 | $0 | $0 |
Deed and Sales History
| 1 | 07/26/2016 | QCD | QUIT CLAIM DEED | MELHUS CURTIS E | MELHUS NANCY ANN | | | $0.00 | 130706 | 2016-05896 |
| 2 | 05/25/1978 | WARRANTY D | WARRANTY DEED | | | | | $39,000.00 | 0 | 8378-04751 |
Payout Agreement
| No payout information available.. |