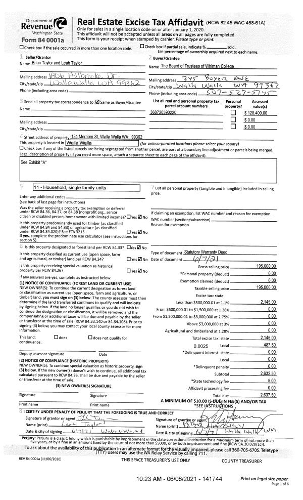
Property
Account |
| Property ID: | 13217 | Abbreviated Legal Description: | WALLULA TOWNSITE LOTS 9 & 10 BLK 5 LOTS 11 & 12 BLK 5 (1/5 INT INWELL LOCATED ON LOT 31) |
| Parcel Number: | 310714510509 | Agent Code: | |
| Type: | Real | | |
| Tax Area: | 327 - 400-5-WI-C-M | Land Use Code | 11 |
| Open Space: | N | DFL | N |
| Historic Property: | N | Remodel Property: | N |
| Multi-Family Redevelopment: | N | | |
| Township: | 7 | Section: | 14 |
| Range: | 31 |
Location |
| Address: | 290 COLUMBIA WAY WA 99323 | Mapsco: | |
| Neighborhood: | Wallula A SFR | Map ID: | |
| Neighborhood CD: | 213811 |
Owner |
| Name: | NELSON JASON & DANIELA | Owner ID: | 72648 |
| Mailing Address: | PO BOX 633 WALLULA, WA 99363 | % Ownership: | 100.0000000000% |
| | | Exemptions: | |
Taxes and Assessment Details
Values
| (+) Improvement Homesite Value: | + | $0 | |
| (+) Improvement Non-Homesite Value: | + | $210,640 | |
| (+) Land Homesite Value: | + | $0 | |
| (+) Land Non-Homesite Value: | + | $34,840 | |
| (+) Curr Use (HS): | + | $0 | $0 |
| (+) Curr Use (NHS): | + | $0 | $0 |
| | | -------------------------- | |
| (=) Market Value: | = | $245,480 | |
| (–) Productivity Loss: | – | $0 | |
| | | -------------------------- | |
| (=) Subtotal: | = | $245,480 | |
| (+) Senior Appraised Value: | + | $0 | |
| (+) Non-Senior Appraised Value: | + | $245,480 | |
| | | -------------------------- | |
| (=) Total Appraised Value: | = | $245,480 | |
| (–) Senior Exemption Loss: | – | $0 | |
| (–) Exemption Loss: | – | $0 | |
| | | -------------------------- | |
| (=) Taxable Value: | = | $245,480 | |
Taxing Jurisdiction
| Owner: | NELSON JASON & DANIELA | | |
| % Ownership: | 100.0000000000% | | |
| Total Value: | $245,480 | | |
| Tax Area: | 327 - 400-5-WI-C-M |
| CERFD | CURRENT EXPENSE REFUND 010 | 0.0000000000 | $245,480 | $245,480 | $0.00 | | |
| CURREXP | CURRENT EXPENSE 010 | 1.0175366760 | $245,480 | $245,480 | $249.78 | | |
| HUMNSERV | HUMAN SERVICES 119 | 0.0250000000 | $245,480 | $245,480 | $6.14 | | |
| SLDREL | SOLDIERS RELIEF 121 | 0.0155990005 | $245,480 | $245,480 | $3.83 | | |
| EMERGSER | EMS 147 | 0.3792580840 | $245,480 | $245,480 | $93.10 | | |
| EMSRFD | EMS REFUND 147 | 0.0000000000 | $245,480 | $245,480 | $0.00 | | |
| FD5EXP | FD #5 EXPENSE 689 | 1.2045331840 | $245,480 | $245,480 | $295.69 | | |
| RLBRFD | RURAL LIBRARY REFUND 623 | 0.0000000000 | $245,480 | $245,480 | $0.00 | | |
| RURALLIB | RURAL LIBRARY 623 | 0.3710609029 | $245,480 | $245,480 | $91.09 | | |
| PORTRFD | PORT REFUND 640 | 0.0000000000 | $245,480 | $245,480 | $0.00 | | |
| PORTWWGEN | PORT OF WW 640 | 0.2460186015 | $245,480 | $245,480 | $60.39 | | |
| SD400BOND | SD #400 BOND 793 | 0.0000000000 | $245,480 | $245,480 | $0.00 | | |
| SD400CAP | SD #400 CP 792 | 0.3443722657 | $245,480 | $245,480 | $84.54 | | |
| SD400GEN | SD #400 GENERAL 790 | 1.9278469916 | $245,480 | $245,480 | $473.25 | | |
| ST2 | STATE SCHOOL PART 2 600 | 0.8131451643 | $245,480 | $245,480 | $199.61 | | |
| STATESCHL | STATE SCHOOL 600 | 1.5158548041 | $245,480 | $245,480 | $372.11 | | |
| STREFUND | STATE REFUND LEVY 603 | 0.0000000000 | $245,480 | $245,480 | $0.00 | | |
| COROAD | COUNTY ROAD 115 | 1.6549953990 | $245,480 | $245,480 | $406.27 | | |
| CRPRD | COUNTY ROAD REFUND 115 | 0.0000000000 | $245,480 | $245,480 | $0.00 | | |
| | Total Tax Rate: | 9.5152210736 | | | | | |
| | | | | Taxes w/Current Exemptions: | $2,335.80 | | |
| | | | | Taxes w/o Exemptions: | $2,335.80 | | |
Improvement / Building
| Improvement #1: | RESIDENTIAL | State Code: | 11 | 1320.0 sqft | Value: | $210,640 |
| Exterior Wall: | SHINGLE | Heating/Cooling: | WARM & COOLED AIR | | Number of Bathrooms: | 1 | Number of Bedrooms: | 2 | | Plumbing: | 6 | Roof Covering: | COMP SHINGLE |
|
| | Type | Description | Class CD | Sub Class CD | Year Built | Area |
| | MA | Main Area | 1 | 20 | 1960 | 1320.0 |
| | SI1 | SITE IMPROVEMENT | 1 | 20 | 1960 | 1.0 |
| | DTG | Detached Garage | 1 | 20 | 2010 | 784.0 |
| | CPC | COVERED CARPORT/PATIO | 1 | 20 | 1960 | 450.0 |
Sketch
Property Image
Land
| 1 | RES 1 | Converted: Residential | 0.4419 | 19250.00 | 0.00 | 0.00 | 1.00 | $34,840 | $0 |
Roll Value History
| 2025 | N/A | N/A | N/A | N/A | N/A |
| 2024 | $210,640 | $34,840 | $0 | $245,480 | $245,480 |
| 2023 | $210,640 | $34,840 | $0 | $245,480 | $245,480 |
| 2022 | $117,020 | $34,840 | $0 | $151,860 | $151,860 |
| 2021 | $97,520 | $34,840 | $0 | $132,360 | $132,360 |
| 2020 | $100,670 | $13,000 | $0 | $113,670 | $113,670 |
| 2019 | $100,670 | $13,000 | $0 | $113,670 | $113,670 |
| 2018 | $91,520 | $13,000 | $0 | $104,520 | $104,520 |
| 2017 | $91,520 | $13,000 | $0 | $104,520 | $104,520 |
| 2016 | $91,520 | $13,000 | $0 | $104,520 | $104,520 |
| 2015 | $83,200 | $13,000 | $0 | $96,200 | $96,200 |
| 2014 | $83,200 | $13,000 | $0 | $96,200 | $96,200 |
| 2013 | $83,200 | $13,000 | $0 | $96,200 | $96,200 |
| 2012 | $83,200 | $13,000 | $0 | $0 | $0 |
| 2011 | $67,200 | $13,000 | $0 | $0 | $0 |
| 2010 | $56,100 | $13,000 | $0 | $0 | $0 |
| 2009 | $55,200 | $10,200 | $0 | $0 | $0 |
| 2008 | $55,200 | $10,200 | $0 | $0 | $0 |
| 2007 | $45,500 | $10,200 | $0 | $0 | $0 |
| 2006 | $45,500 | $10,200 | $0 | $0 | $0 |
Deed and Sales History
| 1 | 10/17/2022 | SWD | STATUTORY WARRANTY DEED | PARDUE LOUISE M ESTATE OF | NELSON JASON & DANIELA | | | $256,500.00 | 144872 | 2022-08498 |
| 2 | 02/12/2006 | QCD | QUIT CLAIM DEED | PARDUE JAMES A | PARDUE LOUISE M ESTATE OF | | | | 125466 | 2014-01309 |
| 3 | 12/27/2004 | WARRANTY D | WARRANTY DEED | HOUSEHOLD REALTY CORP | PARDUE, JAMES A | | | $55,000.00 | 106499 | 2004-14836 |
| 4 | 08/26/2004 | WARRANTY D | WARRANTY DEED | KRUMSICK, SHARON M | HOUSEHOLD REALTY CORP | | | | 105583 | 2004-09870 |
| 5 | 10/12/1972 | WARRANTY D | WARRANTY DEED | | | | | $6,500.00 | 0 | 1278-101971 |
Payout Agreement
| No payout information available.. |