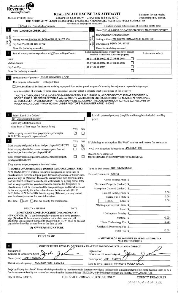
Property
Account |
| Property ID: | 13144 | Abbreviated Legal Description: | 5-7-37 NE1/4NE1/4 LESS ST HIWAY |
| Parcel Number: | 370705110001 | Agent Code: | |
| Type: | Real | | |
| Tax Area: | 310 - 101-8 | Land Use Code | 83 |
| Open Space: | Y | DFL | N |
| Historic Property: | N | Remodel Property: | N |
| Multi-Family Redevelopment: | N | | |
| Township: | 7 | Section: | 5 |
| Range: | 37 |
Location |
| Address: | WA 99329 | Mapsco: | |
| Neighborhood: | 0 Farm | Map ID: | |
| Neighborhood CD: | 4240 |
Owner |
| Name: | NOWOGROSKI FAMILY TRUST | Owner ID: | 61053 |
| Mailing Address: | 483 SPRING CREEK RD WAITSBURG, WA 99361 | % Ownership: | 100.0000000000% |
| | | Exemptions: | |
Taxes and Assessment Details
Values
| (+) Improvement Homesite Value: | + | $0 | |
| (+) Improvement Non-Homesite Value: | + | $0 | |
| (+) Land Homesite Value: | + | $0 | |
| (+) Land Non-Homesite Value: | + | $0 | |
| (+) Curr Use (HS): | + | $0 | $0 |
| (+) Curr Use (NHS): | + | $119,590 | $41,680 |
| | | -------------------------- | |
| (=) Market Value: | = | $119,590 | |
| (–) Productivity Loss: | – | $77,910 | |
| | | -------------------------- | |
| (=) Subtotal: | = | $41,680 | |
| (+) Senior Appraised Value: | + | $0 | |
| (+) Non-Senior Appraised Value: | + | $41,680 | |
| | | -------------------------- | |
| (=) Total Appraised Value: | = | $41,680 | |
| (–) Senior Exemption Loss: | – | $0 | |
| (–) Exemption Loss: | – | $0 | |
| | | -------------------------- | |
| (=) Taxable Value: | = | $41,680 | |
Taxing Jurisdiction
| Owner: | NOWOGROSKI FAMILY TRUST | | |
| % Ownership: | 100.0000000000% | | |
| Total Value: | $119,590 | | |
| Tax Area: | 310 - 101-8 |
| CERFD | CURRENT EXPENSE REFUND 010 | 0.0000000000 | $41,680 | $41,680 | $0.00 | | |
| CURREXP | CURRENT EXPENSE 010 | 1.0175366760 | $41,680 | $41,680 | $42.41 | | |
| HUMNSERV | HUMAN SERVICES 119 | 0.0250000000 | $41,680 | $41,680 | $1.04 | | |
| SLDREL | SOLDIERS RELIEF 121 | 0.0155990005 | $41,680 | $41,680 | $0.65 | | |
| EMERGSER | EMS 147 | 0.3792580840 | $41,680 | $41,680 | $15.81 | | |
| EMSRFD | EMS REFUND 147 | 0.0000000000 | $41,680 | $41,680 | $0.00 | | |
| FD8EXP | FD #8 EXPENSE 697 | 0.6647992540 | $41,680 | $41,680 | $27.71 | | |
| RLBRFD | RURAL LIBRARY REFUND 623 | 0.0000000000 | $41,680 | $41,680 | $0.00 | | |
| RURALLIB | RURAL LIBRARY 623 | 0.3710609029 | $41,680 | $41,680 | $15.47 | | |
| PORTRFD | PORT REFUND 640 | 0.0000000000 | $41,680 | $41,680 | $0.00 | | |
| PORTWWGEN | PORT OF WW 640 | 0.2460186015 | $41,680 | $41,680 | $10.25 | | |
| SD101CAP | SD #101 CAP 752 | 0.5894423472 | $41,680 | $41,680 | $24.57 | | |
| SD101GEN | SD #101 GENERAL 750 | 0.7455117868 | $41,680 | $41,680 | $31.07 | | |
| ST2 | STATE SCHOOL PART 2 600 | 0.8131451643 | $41,680 | $41,680 | $33.89 | | |
| STATESCHL | STATE SCHOOL 600 | 1.5158548041 | $41,680 | $41,680 | $63.18 | | |
| STREFUND | STATE REFUND LEVY 603 | 0.0000000000 | $41,680 | $41,680 | $0.00 | | |
| COROAD | COUNTY ROAD 115 | 1.6549953990 | $41,680 | $41,680 | $68.98 | | |
| CRPRD | COUNTY ROAD REFUND 115 | 0.0000000000 | $41,680 | $41,680 | $0.00 | | |
| | Total Tax Rate: | 8.0382220203 | | | | | |
| | | | | Taxes w/Current Exemptions: | $335.03 | | |
| | | | | Taxes w/o Exemptions: | $335.03 | | |
Improvement / Building
Sketch
| No sketches available for this property. |
Property Image
Land
| 1 | 90-C1AN | Class 1 90 BU Annual | 33.6400 | 0.00 | 0.00 | 0.00 | 1.00 | $119,590 | $41,680 |
| 2 | WASTE | Waste | 4.5000 | 0.00 | 0.00 | 0.00 | 1.00 | $0 | $0 |
Roll Value History
| 2025 | N/A | N/A | N/A | N/A | N/A |
| 2024 | $0 | $122,620 | $40,270 | $40,270 | $40,270 |
| 2023 | $0 | $119,590 | $41,680 | $41,680 | $41,680 |
| 2022 | $0 | $115,050 | $39,900 | $39,900 | $39,900 |
| 2021 | $0 | $108,990 | $39,660 | $39,660 | $39,660 |
| 2020 | $0 | $102,940 | $40,700 | $40,700 | $40,700 |
| 2019 | $0 | $99,610 | $41,480 | $41,480 | $41,480 |
| 2018 | $0 | $99,310 | $47,230 | $47,230 | $47,230 |
| 2017 | $0 | $98,400 | $48,000 | $48,000 | $48,000 |
| 2016 | $0 | $98,400 | $48,070 | $48,070 | $48,070 |
| 2015 | $0 | $98,400 | $42,660 | $42,660 | $42,660 |
| 2014 | $0 | $98,400 | $43,030 | $43,030 | $43,030 |
| 2013 | $0 | $93,900 | $34,800 | $34,800 | $34,800 |
| 2012 | $0 | $22,400 | $0 | $0 | $0 |
| 2011 | $0 | $21,200 | $0 | $0 | $0 |
| 2010 | $0 | $19,100 | $0 | $0 | $0 |
| 2009 | $0 | $19,800 | $0 | $0 | $0 |
| 2008 | $0 | $29,500 | $0 | $0 | $0 |
| 2007 | $0 | $29,500 | $0 | $0 | $0 |
| 2006 | $0 | $29,500 | $0 | $0 | $0 |
Deed and Sales History
| 1 | 06/06/2017 | QCD | QUIT CLAIM DEED | NOWOGROSKI JOHN E | NOWOGROSKI FAMILY TRUST | | | $0.00 | 132563 | 2017-04408 |
| 2 | 10/30/1986 | QCD | QUIT CLAIM DEED | | | | | $850,000.00 | 0 | 1839-004861 |
|   | |
Payout Agreement
| No payout information available.. |