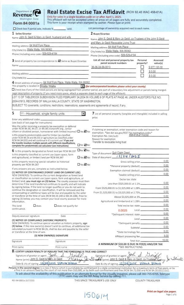
Property
Account |
| Property ID: | 1314 | Abbreviated Legal Description: | RITZ'S ADDN LT 2 BLK 13 |
| Parcel Number: | 360730541302 | Agent Code: | |
| Type: | Real | | |
| Tax Area: | 1 - OL-140-F | Land Use Code | 11 |
| Open Space: | N | DFL | N |
| Historic Property: | N | Remodel Property: | N |
| Multi-Family Redevelopment: | N | | |
| Township: | 7 | Section: | 30 |
| Range: | 36 |
Location |
| Address: | 903 W POPLAR ST WA 99362 | Mapsco: | |
| Neighborhood: | COMMERCIAL | Map ID: | |
| Neighborhood CD: | 3302 |
Owner |
| Name: | JIMENEZ PAUL & MONICA | Owner ID: | 57699 |
| Mailing Address: | 903 W POPLAR ST WALLA WALLA, WA 99362 | % Ownership: | 100.0000000000% |
| | | Exemptions: | |
Taxes and Assessment Details
Values
| (+) Improvement Homesite Value: | + | $0 | |
| (+) Improvement Non-Homesite Value: | + | $185,000 | |
| (+) Land Homesite Value: | + | $0 | |
| (+) Land Non-Homesite Value: | + | $49,500 | |
| (+) Curr Use (HS): | + | $0 | $0 |
| (+) Curr Use (NHS): | + | $0 | $0 |
| | | -------------------------- | |
| (=) Market Value: | = | $234,500 | |
| (–) Productivity Loss: | – | $0 | |
| | | -------------------------- | |
| (=) Subtotal: | = | $234,500 | |
| (+) Senior Appraised Value: | + | $0 | |
| (+) Non-Senior Appraised Value: | + | $234,500 | |
| | | -------------------------- | |
| (=) Total Appraised Value: | = | $234,500 | |
| (–) Senior Exemption Loss: | – | $0 | |
| (–) Exemption Loss: | – | $0 | |
| | | -------------------------- | |
| (=) Taxable Value: | = | $234,500 | |
Taxing Jurisdiction
| Owner: | JIMENEZ PAUL & MONICA | | |
| % Ownership: | 100.0000000000% | | |
| Total Value: | $234,500 | | |
| Tax Area: | 1 - OL-140-F |
| CERFD | CURRENT EXPENSE REFUND 010 | 0.0000000000 | $234,500 | $234,500 | $0.00 | | |
| CURREXP | CURRENT EXPENSE 010 | 1.0175366760 | $234,500 | $234,500 | $238.61 | | |
| HUMNSERV | HUMAN SERVICES 119 | 0.0250000000 | $234,500 | $234,500 | $5.86 | | |
| SLDREL | SOLDIERS RELIEF 121 | 0.0155990005 | $234,500 | $234,500 | $3.66 | | |
| EMERGSER | EMS 147 | 0.3792580840 | $234,500 | $234,500 | $88.94 | | |
| EMSRFD | EMS REFUND 147 | 0.0000000000 | $234,500 | $234,500 | $0.00 | | |
| PORTRFD | PORT REFUND 640 | 0.0000000000 | $234,500 | $234,500 | $0.00 | | |
| PORTWWGEN | PORT OF WW 640 | 0.2460186015 | $234,500 | $234,500 | $57.69 | | |
| SD140BOND | SD #140 BOND 764 | 0.8342371393 | $234,500 | $234,500 | $195.63 | | |
| SD140GEN | SD #140 GENERAL 760 | 2.0646500647 | $234,500 | $234,500 | $484.16 | | |
| ST2 | STATE SCHOOL PART 2 600 | 0.8131451643 | $234,500 | $234,500 | $190.68 | | |
| STATESCHL | STATE SCHOOL 600 | 1.5158548041 | $234,500 | $234,500 | $355.47 | | |
| STREFUND | STATE REFUND LEVY 603 | 0.0000000000 | $234,500 | $234,500 | $0.00 | | |
| CWWBOND | C OF WW BOND 643 | 0.2760494372 | $234,500 | $234,500 | $64.73 | | |
| CWWGEN | CITY OF WW 631 | 1.6100204973 | $234,500 | $234,500 | $377.55 | | |
| CWWRFD | CITY OF WALLA WALLA REFUND 631 | 0.0000000000 | $234,500 | $234,500 | $0.00 | | |
| | Total Tax Rate: | 8.7973694689 | | | | | |
| | | | | Taxes w/Current Exemptions: | $2,062.98 | | |
| | | | | Taxes w/o Exemptions: | $2,062.98 | | |
Improvement / Building
| Improvement #1: | RESIDENTIAL | State Code: | 11 | 2295.0 sqft | Value: | $185,000 |
| Exterior Wall: | SIDING | Heating/Cooling: | BASEBOARD ELECTRIC | | Number of Bathrooms: | 1 | Number of Bedrooms: | 2 | | Plumbing: | 9 | Roof Covering: | GALVANIZED METAL |
|
| | Type | Description | Class CD | Sub Class CD | Year Built | Area |
| | MA | Main Area | 4 | 30 | 1900 | 2295.0 |
| | SI1 | SITE IMPROVEMENT | 4 | 30 | 1900 | 1.0 |
| | WDR | WOOD DECK W/ROOF | 4 | 30 | 1900 | 110.0 |
| | SWP | Solid Wall Porch | 4 | 30 | 1900 | 84.0 |
| | UPFL | Upper Floor (included in main area) | 4 | 30 | 1900 | 755.0 |
Sketch
Property Image
Land
| 1 | RES 1 | Converted: Residential | 0.1377 | 6000.00 | 0.00 | 0.00 | 1.00 | $49,500 | $0 |
Roll Value History
| 2025 | N/A | N/A | N/A | N/A | N/A |
| 2024 | $185,000 | $49,500 | $0 | $234,500 | $234,500 |
| 2023 | $185,000 | $49,500 | $0 | $234,500 | $234,500 |
| 2022 | $105,100 | $49,500 | $0 | $154,600 | $154,600 |
| 2021 | $36,300 | $30,000 | $0 | $66,300 | $66,300 |
| 2020 | $36,300 | $30,000 | $0 | $66,300 | $66,300 |
| 2019 | $36,300 | $30,000 | $0 | $66,300 | $66,300 |
| 2018 | $36,300 | $30,000 | $0 | $66,300 | $66,300 |
| 2017 | $36,300 | $30,000 | $0 | $66,300 | $66,300 |
| 2016 | $36,300 | $30,000 | $0 | $66,300 | $66,300 |
| 2015 | $36,300 | $30,000 | $0 | $66,300 | $66,300 |
| 2014 | $36,300 | $30,000 | $0 | $66,300 | $66,300 |
| 2013 | $36,300 | $30,000 | $0 | $66,300 | $66,300 |
| 2012 | $36,300 | $30,000 | $0 | $0 | $0 |
| 2011 | $36,300 | $30,000 | $0 | $0 | $0 |
| 2010 | $37,600 | $24,400 | $0 | $0 | $0 |
| 2009 | $54,800 | $10,500 | $0 | $0 | $0 |
| 2008 | $39,700 | $10,500 | $0 | $0 | $0 |
| 2007 | $39,700 | $10,500 | $0 | $0 | $0 |
| 2006 | $39,700 | $10,500 | $0 | $0 | $0 |
Deed and Sales History
| 1 | 10/29/2015 | SWD | STATUTORY WARRANTY DEED | CARMONA EURIEL & TERESA | JIMENEZ PAUL & MONICA | | | $80,000.00 | 129098 | 2015-09478 |
| 2 | 01/17/2003 | QCD | QUIT CLAIM DEED | DELA O, JOSE & ROSA | CARMONA, EURIEL & TERESA | | | | 101228 | 2003-00770 |
| 3 | 10/29/1998 | WARRANTY D | WARRANTY DEED | | | | | $30,000.00 | 91518 | 2759-812416 |
Payout Agreement
| No payout information available.. |