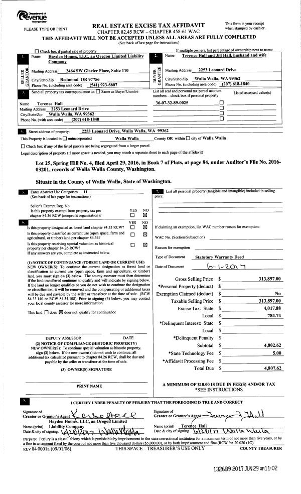
Property
Account |
| Property ID: | 13131 | Abbreviated Legal Description: | 1-7-37 SE1/4SE1/4; TAX 2 |
| Parcel Number: | 370701410004 | Agent Code: | |
| Type: | Real | | |
| Tax Area: | 310 - 101-8 | Land Use Code | 83 |
| Open Space: | Y | DFL | N |
| Historic Property: | N | Remodel Property: | N |
| Multi-Family Redevelopment: | N | | |
| Township: | 7 | Section: | 1 |
| Range: | 37 |
Location |
| Address: | WA 99329 | Mapsco: | |
| Neighborhood: | 0 Farm | Map ID: | |
| Neighborhood CD: | 4240 |
Owner |
| Name: | KK 4 FARMS LLC | Owner ID: | 65012 |
| Mailing Address: | 3023 E HAZELWOOD ST PHOENIX, AZ 85016-5071 | % Ownership: | 100.0000000000% |
| | | Exemptions: | |
Taxes and Assessment Details
Values
| (+) Improvement Homesite Value: | + | $0 | |
| (+) Improvement Non-Homesite Value: | + | $0 | |
| (+) Land Homesite Value: | + | $0 | |
| (+) Land Non-Homesite Value: | + | $0 | |
| (+) Curr Use (HS): | + | $0 | $0 |
| (+) Curr Use (NHS): | + | $129,620 | $46,590 |
| | | -------------------------- | |
| (=) Market Value: | = | $129,620 | |
| (–) Productivity Loss: | – | $83,030 | |
| | | -------------------------- | |
| (=) Subtotal: | = | $46,590 | |
| (+) Senior Appraised Value: | + | $0 | |
| (+) Non-Senior Appraised Value: | + | $46,590 | |
| | | -------------------------- | |
| (=) Total Appraised Value: | = | $46,590 | |
| (–) Senior Exemption Loss: | – | $0 | |
| (–) Exemption Loss: | – | $0 | |
| | | -------------------------- | |
| (=) Taxable Value: | = | $46,590 | |
Taxing Jurisdiction
| Owner: | KK 4 FARMS LLC | | |
| % Ownership: | 100.0000000000% | | |
| Total Value: | $129,620 | | |
| Tax Area: | 310 - 101-8 |
| CERFD | CURRENT EXPENSE REFUND 010 | 0.0000000000 | $46,590 | $46,590 | $0.00 | | |
| CURREXP | CURRENT EXPENSE 010 | 1.0175366760 | $46,590 | $46,590 | $47.41 | | |
| HUMNSERV | HUMAN SERVICES 119 | 0.0250000000 | $46,590 | $46,590 | $1.16 | | |
| SLDREL | SOLDIERS RELIEF 121 | 0.0155990005 | $46,590 | $46,590 | $0.73 | | |
| EMERGSER | EMS 147 | 0.3792580840 | $46,590 | $46,590 | $17.67 | | |
| EMSRFD | EMS REFUND 147 | 0.0000000000 | $46,590 | $46,590 | $0.00 | | |
| FD8EXP | FD #8 EXPENSE 697 | 0.6647992540 | $46,590 | $46,590 | $30.97 | | |
| RLBRFD | RURAL LIBRARY REFUND 623 | 0.0000000000 | $46,590 | $46,590 | $0.00 | | |
| RURALLIB | RURAL LIBRARY 623 | 0.3710609029 | $46,590 | $46,590 | $17.29 | | |
| PORTRFD | PORT REFUND 640 | 0.0000000000 | $46,590 | $46,590 | $0.00 | | |
| PORTWWGEN | PORT OF WW 640 | 0.2460186015 | $46,590 | $46,590 | $11.46 | | |
| SD101CAP | SD #101 CAP 752 | 0.5894423472 | $46,590 | $46,590 | $27.46 | | |
| SD101GEN | SD #101 GENERAL 750 | 0.7455117868 | $46,590 | $46,590 | $34.73 | | |
| ST2 | STATE SCHOOL PART 2 600 | 0.8131451643 | $46,590 | $46,590 | $37.88 | | |
| STATESCHL | STATE SCHOOL 600 | 1.5158548041 | $46,590 | $46,590 | $70.62 | | |
| STREFUND | STATE REFUND LEVY 603 | 0.0000000000 | $46,590 | $46,590 | $0.00 | | |
| COROAD | COUNTY ROAD 115 | 1.6549953990 | $46,590 | $46,590 | $77.11 | | |
| CRPRD | COUNTY ROAD REFUND 115 | 0.0000000000 | $46,590 | $46,590 | $0.00 | | |
| | Total Tax Rate: | 8.0382220203 | | | | | |
| | | | | Taxes w/Current Exemptions: | $374.49 | | |
| | | | | Taxes w/o Exemptions: | $374.49 | | |
Improvement / Building
Sketch
| No sketches available for this property. |
Property Image
Land
| 1 | WASTE | Waste | 1.5000 | 0.00 | 0.00 | 0.00 | 1.00 | $0 | $0 |
| 2 | 75-C3AN | Class 3 75 BU Annual | 57.6600 | 0.00 | 0.00 | 0.00 | 1.00 | $129,620 | $46,590 |
Roll Value History
| 2025 | N/A | N/A | N/A | N/A | N/A |
| 2024 | $0 | $133,080 | $45,030 | $45,030 | $45,030 |
| 2023 | $0 | $129,620 | $46,590 | $46,590 | $46,590 |
| 2022 | $0 | $122,820 | $44,630 | $44,630 | $44,630 |
| 2021 | $0 | $115,900 | $44,400 | $44,400 | $44,400 |
| 2020 | $0 | $109,150 | $45,490 | $45,490 | $45,490 |
| 2019 | $0 | $105,860 | $46,300 | $46,300 | $46,300 |
| 2018 | $0 | $105,520 | $52,820 | $52,820 | $52,820 |
| 2017 | $0 | $104,650 | $53,620 | $53,620 | $53,620 |
| 2016 | $0 | $104,650 | $53,740 | $53,740 | $53,740 |
| 2015 | $0 | $104,650 | $47,800 | $47,800 | $47,800 |
| 2014 | $0 | $104,650 | $48,090 | $48,090 | $48,090 |
| 2013 | $0 | $99,500 | $38,700 | $38,700 | $38,700 |
| 2012 | $0 | $24,900 | $0 | $0 | $0 |
| 2011 | $0 | $23,500 | $0 | $0 | $0 |
| 2010 | $0 | $21,200 | $0 | $0 | $0 |
| 2009 | $0 | $22,000 | $0 | $0 | $0 |
| 2008 | $0 | $32,900 | $0 | $0 | $0 |
| 2007 | $0 | $32,900 | $0 | $0 | $0 |
| 2006 | $0 | $32,900 | $0 | $0 | $0 |
Deed and Sales History
| 1 | 04/25/2019 | QCD | QUIT CLAIM DEED | KILBURG KRISTINE L 50% | KK 4 FARMS LLC | 8 PARCELS | | $0.00 | 136765 | 2019-02679 |
| 2 | 04/25/2019 | DPR | DEED OF PERSONAL REPRESENTATIVE | KELLER FREDERICK W ESTATE & KK4 FARMS LLC | KILBURG KRISTINE L 50% | 8 PARCELS | | $0.00 | 136760 | 2019-02676 |
| 3 | 04/08/2019 | DPR | DEED OF PERSONAL REPRESENTATIVE | KELLER FREDERICK W ESTATE & KK4 FARMS LLC | KILBURG KRISTINE L 50% | 8 PARCELS | | $0.00 | 136666 | 2019-02326 |
| 4 | 09/23/2016 | DPR | DEED OF PERSONAL REPRESENTATIVE | KELLER MIRIAM L | KK4 FARMS INC | | | $0.00 | 131166 | 2016-08058 |
| 5 | 09/23/2016 | DPR | DEED OF PERSONAL REPRESENTATIVE | KELLER FREDERICK W | KELLER FREDERICK W ESTATE | | | $0.00 | 131165 | 2016-08057 |
| 6 | 10/05/1999 | WARRANTY D | WARRANTY DEED | | | | | | 93767 | 2909-911587 |
Payout Agreement
| No payout information available.. |