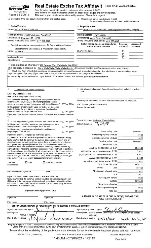
Property
Account |
| Property ID: | 12719 | Abbreviated Legal Description: | 29-8-36 NW1/4NW1/4 LESS OW RY & RD LESS PTN TO WWCO |
| Parcel Number: | 360829220005 | Agent Code: | |
| Type: | Real | | |
| Tax Area: | 100 - 140-8 | Land Use Code | 83 |
| Open Space: | Y | DFL | N |
| Historic Property: | N | Remodel Property: | N |
| Multi-Family Redevelopment: | N | | |
| Township: | 8 | Section: | 29 |
| Range: | 36 |
Location |
| Address: | 1153 MCINROE RD WA 99362 | Mapsco: | |
| Neighborhood: | 0 Farm | Map ID: | |
| Neighborhood CD: | 3230 |
Owner |
| Name: | YEEND ARLISS ANN | Owner ID: | 70875 |
| Mailing Address: | 1400 DALLES MILITARY RD #141 WALLA WALLA, WA 99362 | % Ownership: | 100.0000000000% |
| | | Exemptions: | |
Taxes and Assessment Details
Values
| (+) Improvement Homesite Value: | + | $0 | |
| (+) Improvement Non-Homesite Value: | + | $144,600 | |
| (+) Land Homesite Value: | + | $0 | |
| (+) Land Non-Homesite Value: | + | $0 | |
| (+) Curr Use (HS): | + | $150,000 | $370 |
| (+) Curr Use (NHS): | + | $80,840 | $20,290 |
| | | -------------------------- | |
| (=) Market Value: | = | $375,440 | |
| (–) Productivity Loss: | – | $210,180 | |
| | | -------------------------- | |
| (=) Subtotal: | = | $165,260 | |
| (+) Senior Appraised Value: | + | $0 | |
| (+) Non-Senior Appraised Value: | + | $165,260 | |
| | | -------------------------- | |
| (=) Total Appraised Value: | = | $165,260 | |
| (–) Senior Exemption Loss: | – | $0 | |
| (–) Exemption Loss: | – | $0 | |
| | | -------------------------- | |
| (=) Taxable Value: | = | $165,260 | |
Taxing Jurisdiction
| Owner: | YEEND ARLISS ANN | | |
| % Ownership: | 100.0000000000% | | |
| Total Value: | $375,440 | | |
| Tax Area: | 100 - 140-8 |
| CERFD | CURRENT EXPENSE REFUND 010 | 0.0000000000 | $165,260 | $165,260 | $0.00 | | |
| CURREXP | CURRENT EXPENSE 010 | 1.0175366760 | $165,260 | $165,260 | $168.16 | | |
| HUMNSERV | HUMAN SERVICES 119 | 0.0250000000 | $165,260 | $165,260 | $4.13 | | |
| SLDREL | SOLDIERS RELIEF 121 | 0.0155990005 | $165,260 | $165,260 | $2.58 | | |
| EMERGSER | EMS 147 | 0.3792580840 | $165,260 | $165,260 | $62.68 | | |
| EMSRFD | EMS REFUND 147 | 0.0000000000 | $165,260 | $165,260 | $0.00 | | |
| FD8EXP | FD #8 EXPENSE 697 | 0.6647992540 | $165,260 | $165,260 | $109.86 | | |
| RLBRFD | RURAL LIBRARY REFUND 623 | 0.0000000000 | $165,260 | $165,260 | $0.00 | | |
| RURALLIB | RURAL LIBRARY 623 | 0.3710609029 | $165,260 | $165,260 | $61.32 | | |
| PORTRFD | PORT REFUND 640 | 0.0000000000 | $165,260 | $165,260 | $0.00 | | |
| PORTWWGEN | PORT OF WW 640 | 0.2460186015 | $165,260 | $165,260 | $40.66 | | |
| SD140BOND | SD #140 BOND 764 | 0.8342371393 | $165,260 | $165,260 | $137.87 | | |
| SD140GEN | SD #140 GENERAL 760 | 2.0646500647 | $165,260 | $165,260 | $341.20 | | |
| ST2 | STATE SCHOOL PART 2 600 | 0.8131451643 | $165,260 | $165,260 | $134.38 | | |
| STATESCHL | STATE SCHOOL 600 | 1.5158548041 | $165,260 | $165,260 | $250.51 | | |
| STREFUND | STATE REFUND LEVY 603 | 0.0000000000 | $165,260 | $165,260 | $0.00 | | |
| COROAD | COUNTY ROAD 115 | 1.6549953990 | $165,260 | $165,260 | $273.50 | | |
| CRPRD | COUNTY ROAD REFUND 115 | 0.0000000000 | $165,260 | $165,260 | $0.00 | | |
| | Total Tax Rate: | 9.6021550903 | | | | | |
| | | | | Taxes w/Current Exemptions: | $1,586.85 | | |
| | | | | Taxes w/o Exemptions: | $1,586.85 | | |
Improvement / Building
| Improvement #1: | RESIDENTIAL | State Code: | 83 | 1680.0 sqft | Value: | $144,600 |
| Exterior Wall: | MASONRY VENEER | Heating/Cooling: | FORCED AIR | | Number of Bathrooms: | 2 | Number of Bedrooms: | 4 | | Plumbing: | 8 | Roof Covering: | SLATE |
|
| | Type | Description | Class CD | Sub Class CD | Year Built | Area |
| | MA | Main Area | 1 | 30 | 1950 | 1680.0 |
| | CPC | COVERED CARPORT/PATIO | 1 | 30 | 1950 | 216.0 |
| | SI1 | SITE IMPROVEMENT | 1 | 30 | 1950 | 1.0 |
| | BASE | BASEMENT | 1 | 30 | 1950 | 1568.0 |
| | OPS | OPEN PORCH W/STEPS | 1 | 30 | 1950 | 48.0 |
| | BPF | BASEMENT -PARTITIONED FINISH | 1 | 30 | 1950 | 784.0 |
| | S1F | Single One Story Fireplace | 1 | 30 | 1950 | 2.0 |
| | UTIL-STOR | UTILITY STORAGE | 1 | 10 | 1940 | 72.0 |
| | UTIL-STOR | UTILITY STORAGE | 1 | 10 | 1940 | 576.0 |
| | GBIN | Grain Bin | 1 | 10 | 1940 | 1484.0 |
| | GBIN | Grain Bin | 1 | 10 | 1940 | 4327.0 |
| | BARN | BARN-AVE | 1 | 10 | 1940 | 1920.0 |
| | UTIL-STOR | UTILITY STORAGE | 1 | 10 | 1940 | 1536.0 |
| | UTIL-STOR | UTILITY STORAGE | 1 | 10 | 1940 | 576.0 |
| | UTILITY | UTILITY BUILDING | 1 | 20 | 1940 | 960.0 |
| | GBIN | Grain Bin | 1 | 10 | 1940 | 8832.0 |
| | GBIN | Grain Bin | 1 | 10 | 1940 | 8832.0 |
| | GBIN | Grain Bin | 1 | 10 | 1940 | 31542.0 |
| | TOOL | TOOL SHED | 1 | 20 | 1950 | 300.0 |
| | UTIL-STOR | UTILITY STORAGE | 1 | 10 | 1940 | 1536.0 |
Sketch
Property Image
Land
| 1 | 70-4000 | Class 4 65 BU | 9.0000 | 392040.00 | 0.00 | 0.00 | 1.00 | $45,000 | $6,340 |
| 2 | 15-HS | HOMESITE 150,000 | 1.0000 | 0.00 | 0.00 | 0.00 | 1.00 | $150,000 | $370 |
| 3 | 70-C2 | Class 2 70 Bu | 21.8000 | 949608.00 | 0.00 | 0.00 | 1.00 | $35,840 | $13,950 |
| 4 | WASTE | Waste | 2.9700 | 0.00 | 0.00 | 0.00 | 1.00 | $0 | $0 |
Roll Value History
| 2025 | N/A | N/A | N/A | N/A | N/A |
| 2024 | $144,600 | $231,730 | $19,980 | $164,580 | $164,580 |
| 2023 | $144,600 | $230,840 | $20,660 | $165,260 | $165,260 |
| 2022 | $144,600 | $228,310 | $19,810 | $164,410 | $164,410 |
| 2021 | $144,600 | $118,180 | $19,190 | $163,790 | $163,790 |
| 2020 | $144,600 | $115,160 | $19,720 | $164,320 | $164,320 |
| 2019 | $144,600 | $113,470 | $20,240 | $164,840 | $164,840 |
| 2018 | $144,600 | $113,280 | $22,890 | $167,490 | $167,490 |
| 2017 | $144,600 | $111,680 | $23,230 | $167,830 | $167,830 |
| 2016 | $144,600 | $111,680 | $23,310 | $167,910 | $167,910 |
| 2015 | $144,600 | $66,380 | $20,660 | $165,260 | $165,260 |
| 2014 | $144,600 | $66,380 | $21,020 | $165,620 | $165,620 |
| 2013 | $144,600 | $64,400 | $17,200 | $161,800 | $161,800 |
| 2012 | $144,300 | $12,100 | $0 | $0 | $0 |
| 2011 | $145,200 | $12,500 | $0 | $0 | $0 |
| 2010 | $144,500 | $11,700 | $0 | $0 | $0 |
| 2009 | $151,600 | $11,800 | $0 | $0 | $0 |
| 2008 | $151,600 | $10,300 | $0 | $0 | $0 |
| 2007 | $98,100 | $40,400 | $0 | $0 | $0 |
| 2006 | $98,100 | $40,400 | $0 | $0 | $0 |
Deed and Sales History
| 1 | 11/21/2021 | COMMUNITY | COMMUNITY PROPERTY AGREEMENT | YEEND DARRELL C & ARLISS A | YEEND ARLISS ANN | | | $0.00 | 143188 | 2022-00166 |
Payout Agreement
| No payout information available.. |