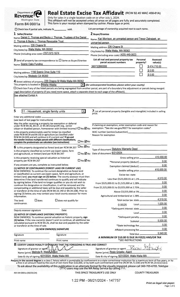
Property
Account |
| Property ID: | 1269 | Abbreviated Legal Description: | BRYANTS S 60' OF LTS 23,24 BLK 5 |
| Parcel Number: | 360728530525 | Agent Code: | |
| Type: | Real | | |
| Tax Area: | 1 - OL-140-F | Land Use Code | 11 |
| Open Space: | N | DFL | N |
| Historic Property: | N | Remodel Property: | N |
| Multi-Family Redevelopment: | N | | |
| Township: | 7 | Section: | 28 |
| Range: | 36 |
Location |
| Address: | 915 HOWARD ST WA 99362 | Mapsco: | |
| Neighborhood: | A Res | Map ID: | |
| Neighborhood CD: | 613011 |
Owner |
| Name: | SCOTT JENNIFER K | Owner ID: | 35247 |
| Mailing Address: | 915 HOWARD ST WALLA WALLA, WA 99362 | % Ownership: | 100.0000000000% |
| | | Exemptions: | |
Taxes and Assessment Details
Values
| (+) Improvement Homesite Value: | + | $0 | |
| (+) Improvement Non-Homesite Value: | + | $312,230 | |
| (+) Land Homesite Value: | + | $0 | |
| (+) Land Non-Homesite Value: | + | $70,000 | |
| (+) Curr Use (HS): | + | $0 | $0 |
| (+) Curr Use (NHS): | + | $0 | $0 |
| | | -------------------------- | |
| (=) Market Value: | = | $382,230 | |
| (–) Productivity Loss: | – | $0 | |
| | | -------------------------- | |
| (=) Subtotal: | = | $382,230 | |
| (+) Senior Appraised Value: | + | $0 | |
| (+) Non-Senior Appraised Value: | + | $382,230 | |
| | | -------------------------- | |
| (=) Total Appraised Value: | = | $382,230 | |
| (–) Senior Exemption Loss: | – | $0 | |
| (–) Exemption Loss: | – | $0 | |
| | | -------------------------- | |
| (=) Taxable Value: | = | $382,230 | |
Taxing Jurisdiction
| Owner: | SCOTT JENNIFER K | | |
| % Ownership: | 100.0000000000% | | |
| Total Value: | $382,230 | | |
| Tax Area: | 1 - OL-140-F |
| CERFD | CURRENT EXPENSE REFUND 010 | 0.0000000000 | $382,230 | $382,230 | $0.00 | | |
| CURREXP | CURRENT EXPENSE 010 | 1.0175366760 | $382,230 | $382,230 | $388.93 | | |
| HUMNSERV | HUMAN SERVICES 119 | 0.0250000000 | $382,230 | $382,230 | $9.56 | | |
| SLDREL | SOLDIERS RELIEF 121 | 0.0155990005 | $382,230 | $382,230 | $5.96 | | |
| EMERGSER | EMS 147 | 0.3792580840 | $382,230 | $382,230 | $144.96 | | |
| EMSRFD | EMS REFUND 147 | 0.0000000000 | $382,230 | $382,230 | $0.00 | | |
| PORTRFD | PORT REFUND 640 | 0.0000000000 | $382,230 | $382,230 | $0.00 | | |
| PORTWWGEN | PORT OF WW 640 | 0.2460186015 | $382,230 | $382,230 | $94.04 | | |
| SD140BOND | SD #140 BOND 764 | 0.8342371393 | $382,230 | $382,230 | $318.87 | | |
| SD140GEN | SD #140 GENERAL 760 | 2.0646500647 | $382,230 | $382,230 | $789.17 | | |
| ST2 | STATE SCHOOL PART 2 600 | 0.8131451643 | $382,230 | $382,230 | $310.81 | | |
| STATESCHL | STATE SCHOOL 600 | 1.5158548041 | $382,230 | $382,230 | $579.41 | | |
| STREFUND | STATE REFUND LEVY 603 | 0.0000000000 | $382,230 | $382,230 | $0.00 | | |
| CWWBOND | C OF WW BOND 643 | 0.2760494372 | $382,230 | $382,230 | $105.51 | | |
| CWWGEN | CITY OF WW 631 | 1.6100204973 | $382,230 | $382,230 | $615.40 | | |
| CWWRFD | CITY OF WALLA WALLA REFUND 631 | 0.0000000000 | $382,230 | $382,230 | $0.00 | | |
| | Total Tax Rate: | 8.7973694689 | | | | | |
| | | | | Taxes w/Current Exemptions: | $3,362.62 | | |
| | | | | Taxes w/o Exemptions: | $3,362.62 | | |
Improvement / Building
| Improvement #1: | RESIDENTIAL | State Code: | 11 | 1908.0 sqft | Value: | $312,230 |
| Exterior Wall: | SIDING | Heating/Cooling: | WARM & COOLED AIR | | Number of Bathrooms: | 3 | Number of Bedrooms: | 4 | | Plumbing: | 12 | Roof Covering: | COMP SHINGLE |
|
| | Type | Description | Class CD | Sub Class CD | Year Built | Area |
| | MA | Main Area | 2 | 30 | 2002 | 1908.0 |
| | UPFL | Upper Floor (included in main area) | 2 | 30 | 2002 | 880.0 |
| | SI1 | SITE IMPROVEMENT | 2 | 30 | 2002 | 2.0 |
| | RPC | OPEN PORCH W/ROOF , CEILED | 2 | 30 | 2002 | 42.0 |
| | CPC | COVERED CARPORT/PATIO | 2 | 30 | 2002 | 200.0 |
| | DTG | Detached Garage | 2 | 30 | 2002 | 400.0 |
Sketch
Property Image
Land
| 1 | RES 1 | Converted: Residential | 0.1377 | 6000.00 | 0.00 | 0.00 | 1.00 | $70,000 | $0 |
Roll Value History
| 2025 | N/A | N/A | N/A | N/A | N/A |
| 2024 | $312,230 | $70,000 | $0 | $382,230 | $382,230 |
| 2023 | $312,230 | $70,000 | $0 | $382,230 | $382,230 |
| 2022 | $312,230 | $55,000 | $0 | $367,230 | $367,230 |
| 2021 | $223,020 | $55,000 | $0 | $278,020 | $278,020 |
| 2020 | $185,850 | $55,000 | $0 | $240,850 | $240,850 |
| 2019 | $185,850 | $55,000 | $0 | $240,850 | $240,850 |
| 2018 | $179,370 | $36,000 | $0 | $215,370 | $215,370 |
| 2017 | $170,830 | $36,000 | $0 | $206,830 | $206,830 |
| 2016 | $155,300 | $36,000 | $0 | $191,300 | $191,300 |
| 2015 | $155,300 | $36,000 | $0 | $191,300 | $191,300 |
| 2014 | $155,300 | $36,000 | $0 | $191,300 | $191,300 |
| 2013 | $155,300 | $36,000 | $0 | $191,300 | $191,300 |
| 2012 | $155,300 | $36,000 | $0 | $0 | $0 |
| 2011 | $155,300 | $36,000 | $0 | $0 | $0 |
| 2010 | $155,300 | $36,000 | $0 | $0 | $0 |
| 2009 | $155,300 | $36,000 | $0 | $0 | $0 |
| 2008 | $155,300 | $36,000 | $0 | $0 | $0 |
| 2007 | $114,800 | $18,000 | $0 | $0 | $0 |
| 2006 | $114,800 | $18,000 | $0 | $0 | $0 |
Deed and Sales History
| 1 | 02/10/2025 | SWD | STATUTORY WARRANTY DEED | SCOTT JENNIFER K | THEOBALD DONNA PATTY & JOHN NICHOLAS | | | $455,000.00 | 148898 | 2025-00668 |
| 2 | 06/03/2005 | WARRANTY D | WARRANTY DEED | BOETTCHER, SAMUEL & KATHERINE | SCOTT, JENNIFER K | | | $183,000.00 | 107653 | 2005-06690 |
| 3 | 11/18/2002 | WARRANTY D | WARRANTY DEED | HOSLER, JOAN L | BOETTCHER, SAMUEL & KATHERINE | | | $136,000.00 | 100825 | 2002-13056 |
| 4 | 07/31/2001 | QCD | QUIT CLAIM DEED | | | | | $0.00 | 97720 | 3170-108198 |
Payout Agreement
| No payout information available.. |