Property
Account |
| Property ID: | 12670 | Abbreviated Legal Description: | 19-8-36 TAX 2 |
| Parcel Number: | 360819130016 | Agent Code: | |
| Type: | Real | | |
| Tax Area: | 100 - 140-8 | Land Use Code | 83 |
| Open Space: | Y | DFL | N |
| Historic Property: | N | Remodel Property: | N |
| Multi-Family Redevelopment: | N | | |
| Township: | 8 | Section: | 19 |
| Range: | 36 |
Location |
| Address: | WA 99362 | Mapsco: | |
| Neighborhood: | 0 Farm | Map ID: | |
| Neighborhood CD: | 3230 |
Owner |
| Name: | YEEND ARLISS ANN | Owner ID: | 70875 |
| Mailing Address: | 1400 DALLES MILITARY RD #141 WALLA WALLA, WA 99362 | % Ownership: | 100.0000000000% |
| | | Exemptions: | |
Taxes and Assessment Details
Values
| (+) Improvement Homesite Value: | + | $0 | |
| (+) Improvement Non-Homesite Value: | + | $0 | |
| (+) Land Homesite Value: | + | $0 | |
| (+) Land Non-Homesite Value: | + | $0 | |
| (+) Curr Use (HS): | + | $0 | $0 |
| (+) Curr Use (NHS): | + | $16,440 | $6,400 |
| | | -------------------------- | |
| (=) Market Value: | = | $16,440 | |
| (–) Productivity Loss: | – | $10,040 | |
| | | -------------------------- | |
| (=) Subtotal: | = | $6,400 | |
| (+) Senior Appraised Value: | + | $0 | |
| (+) Non-Senior Appraised Value: | + | $6,400 | |
| | | -------------------------- | |
| (=) Total Appraised Value: | = | $6,400 | |
| (–) Senior Exemption Loss: | – | $0 | |
| (–) Exemption Loss: | – | $0 | |
| | | -------------------------- | |
| (=) Taxable Value: | = | $6,400 | |
Taxing Jurisdiction
| Owner: | YEEND ARLISS ANN | | |
| % Ownership: | 100.0000000000% | | |
| Total Value: | $16,440 | | |
| Tax Area: | 100 - 140-8 |
| CERFD | CURRENT EXPENSE REFUND 010 | 0.0000000000 | $6,400 | $6,400 | $0.00 | | |
| CURREXP | CURRENT EXPENSE 010 | 1.0175366760 | $6,400 | $6,400 | $6.51 | | |
| HUMNSERV | HUMAN SERVICES 119 | 0.0250000000 | $6,400 | $6,400 | $0.16 | | |
| SLDREL | SOLDIERS RELIEF 121 | 0.0155990005 | $6,400 | $6,400 | $0.10 | | |
| EMERGSER | EMS 147 | 0.3792580840 | $6,400 | $6,400 | $2.43 | | |
| EMSRFD | EMS REFUND 147 | 0.0000000000 | $6,400 | $6,400 | $0.00 | | |
| FD8EXP | FD #8 EXPENSE 697 | 0.6647992540 | $6,400 | $6,400 | $4.25 | | |
| RLBRFD | RURAL LIBRARY REFUND 623 | 0.0000000000 | $6,400 | $6,400 | $0.00 | | |
| RURALLIB | RURAL LIBRARY 623 | 0.3710609029 | $6,400 | $6,400 | $2.37 | | |
| PORTRFD | PORT REFUND 640 | 0.0000000000 | $6,400 | $6,400 | $0.00 | | |
| PORTWWGEN | PORT OF WW 640 | 0.2460186015 | $6,400 | $6,400 | $1.57 | | |
| SD140BOND | SD #140 BOND 764 | 0.8342371393 | $6,400 | $6,400 | $5.34 | | |
| SD140GEN | SD #140 GENERAL 760 | 2.0646500647 | $6,400 | $6,400 | $13.21 | | |
| ST2 | STATE SCHOOL PART 2 600 | 0.8131451643 | $6,400 | $6,400 | $5.20 | | |
| STATESCHL | STATE SCHOOL 600 | 1.5158548041 | $6,400 | $6,400 | $9.70 | | |
| STREFUND | STATE REFUND LEVY 603 | 0.0000000000 | $6,400 | $6,400 | $0.00 | | |
| COROAD | COUNTY ROAD 115 | 1.6549953990 | $6,400 | $6,400 | $10.59 | | |
| CRPRD | COUNTY ROAD REFUND 115 | 0.0000000000 | $6,400 | $6,400 | $0.00 | | |
| | Total Tax Rate: | 9.6021550903 | | | | | |
| | | | | Taxes w/Current Exemptions: | $61.43 | | |
| | | | | Taxes w/o Exemptions: | $61.43 | | |
Improvement / Building
Sketch
| No sketches available for this property. |
Property Image
Land
| 1 | 70-C2 | Class 2 70 Bu | 10.0000 | 0.00 | 0.00 | 0.00 | 1.00 | $16,440 | $6,400 |
Roll Value History
| 2025 | N/A | N/A | N/A | N/A | N/A |
| 2024 | $0 | $16,850 | $6,160 | $6,160 | $6,160 |
| 2023 | $0 | $16,440 | $6,400 | $6,400 | $6,400 |
| 2022 | $0 | $15,280 | $6,140 | $6,140 | $6,140 |
| 2021 | $0 | $14,020 | $6,110 | $6,110 | $6,110 |
| 2020 | $0 | $13,040 | $6,280 | $6,280 | $6,280 |
| 2019 | $0 | $12,490 | $6,440 | $6,440 | $6,440 |
| 2018 | $0 | $12,430 | $7,300 | $7,300 | $7,300 |
| 2017 | $0 | $11,910 | $7,410 | $7,410 | $7,410 |
| 2016 | $0 | $11,910 | $7,440 | $7,440 | $7,440 |
| 2015 | $0 | $11,810 | $6,580 | $6,580 | $6,580 |
| 2014 | $0 | $11,810 | $6,680 | $6,680 | $6,680 |
| 2013 | $0 | $11,200 | $5,500 | $5,500 | $5,500 |
| 2012 | $0 | $3,800 | $0 | $0 | $0 |
| 2011 | $0 | $4,000 | $0 | $0 | $0 |
| 2010 | $0 | $3,700 | $0 | $0 | $0 |
| 2009 | $0 | $3,700 | $0 | $0 | $0 |
| 2008 | $0 | $3,200 | $0 | $0 | $0 |
| 2007 | $0 | $3,400 | $0 | $0 | $0 |
| 2006 | $0 | $3,400 | $0 | $0 | $0 |
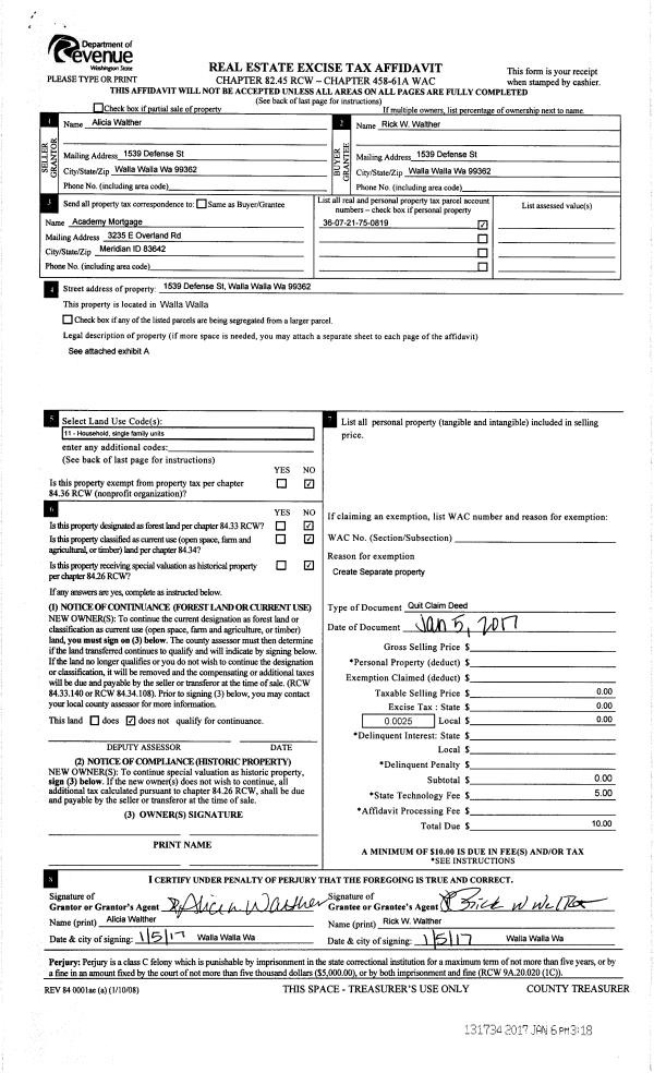
Deed and Sales History
| 1 | 11/21/2021 | COMMUNITY | COMMUNITY PROPERTY AGREEMENT | YEEND DARRELL C & ARLISS A | YEEND ARLISS ANN | | | $0.00 | 143188 | 2022-00166 |
Payout Agreement
| No payout information available.. |